There are no shipping fees if you buy one of our 2 plan packages "PDF file format" or "5 sets of blueprints + PDF". Shipping charges may apply if you buy additional sets of blueprints.
House plan Summer (1924)
Versatile plan for a tiny house, garden pavilion or small guest house, the choice is yours!
Other useful information on this plan
Beautiful and versatile tiny house offering a bedroom, a compact kitchen, a living room & many other features!
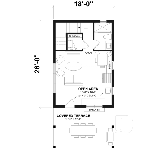
The SUMMER tiny house plan (plan #1924) offers 636 square feet on 2 floors. The foundation is a monolithic slab, but other foundations are available, depending on your needs. It's "old church" look gives it an undeniable charm and warmth at the same time.
The large covered terrace of 18' x 12' will seduce you with its rustic style by offering wooden arched beams as well as a front door of similar style. A shelf space has been strategically added under the front window, allowing efficient food circulation and distribution.
The central living area includes a simplified but stylish kitchen, as well as a bench seating breakfast area and a sitting room. The latter can accommodate different types of furniture configurations, while taking advantage of the beautiful large window on the left that allows full natural light to come in. In addition, the 17' sloped ceiling covers a good part of the living area, and is open to the mezzanine upstairs. At the back, there is a shower room and a small mechanical room with shelf storage.
The upper floor is fitted out as a bedroom, but could just as easily accommodate an office or a reading corner, depending on your needs. The ceiling is sloped and a small secret room will allow you to either use it as a wardrobe or for any other type of storage.
The versatility of the interior design allows you to build this pretty little house as a pool house, as a mini-house or guest house!
Distinctive elements
Small farmhouse style cottage, can be used as a guest house, pool house or built as a tiny-house.
Large portion of the "living area" sector open on two floors.
Compact but complete kitchen with breakfast area with bench seating area.
Bedroom is found in the mezzanine upstairs, and can also be used as an office or other according to your needs.
Large covered front terrace that can accommodate BBQ and table for 8 people.
Plan feature(s)
Open floor layout, Arch, Shelves, Bench seat(s), Mezzanine, Sloped ceiling, Deck, Breakfast nook
Plan architectural style(s)
Modern farmhouse, . Farmhouse, French Country, . Cabin plans, . Vacation and waterfront, . Pool House Plans and Cabanas, . Cottage, chalet, cabin, . Rustic
Similar plans
Previously Viewed Plans
Thank you for your comment! It must be approved before being put online, please allow a period of 24 hours.
Error with google reCaptcha! Try again
Here is a brief description of our different plan packages. Please select the plan package that suits your needs. You can change the package at the next step, if necessary.
PDF VERSION OF PLAN:
Complete digital version of plan (pdf format) sent by email (original plan format 18" x 24'' or 24" x 36'')
5 copies of plan + PDF:
Includes: 5 copies of plan, plan in PDF format (reduced size version), materials list.
Foundation type
Additional foundation types are available, a fee may apply. Please indicate your choice on the online order form, or to our customer service representative, when placing your house plan order.
If your desired foundation type is not available, please contact our customer service to receive your free plan modification quote.
Explanation of bonus space types
UNFINISHED BONUS ROOM
The bonus rooms are often planned above the garage and are accessible from the house. They are designed to be converted as an office, a laundry area, a bathroom, a library corner or even an additional bedroom for which homeowners must make sure to have a window that complies with current codes & standards.
STORAGE AREA
Often located above the garage, our storage areas are used only as storage and are usually accessible from the garage via a retractable staircase.
Do you like this plan but want it to be modified to suit your needs?
To add a garage, another bedroom, finish the basement or any other modification, click here and let us know about your desired changes and to get your free quote for the modification of your plan.
Conditions of use
Important copyright notice! Please take note of these copyright conditions before printing:
By printing this house plan, cottage or garage or the floorplan(s), you confirm being informed that every house plan on this website is the exclusive property of Drummond House
Plans and is protected by Canadian copyright law. You are aware that these prints cannot be used to build or even obtain a building permit. The graphic representations of these
models are offered by Drummond House Plans for the sole purpose of allowing you to notate modifications of a model and then take it to one of the Drummond House Plans Canadian dealers for
modification of the plan.
The purchase of a house plan, cottage or garage from Drummond House Plans is mandatory if you wish to build any of our models. The plan purchase allows you to build a single unit; you cannot resell or give your plan to anyone once the house, cottage or garage has been built. If you wish to build the same house, cottage or garage more than once, you need to obtain the licence to this effect. Please contact us for more details.
All plans from Drummond House Plans can only be modified by a licensed Drummond House Plan Canadian dealer. If any other business or individual with no affiliation to Drummond House Plans modifies a Drummond House Plan on your behalf, please ensure this business or individual has a licence to modify this specific plan or you will be subject to prosecution on the same level as the business or individual who modified or reproduced the plan.
For more details, do not hesitate to contact u by e-mail or by phone at 1-800-567-1413.
I agree to respect the conditions above to not reproduce, modify or build a model from Drummond House Plans without previously purchasing a complete house plan.















