There are no shipping fees if you buy one of our 2 plan packages "PDF file format" or "5 sets of blueprints + PDF". Shipping charges may apply if you buy additional sets of blueprints.
House plan The Thatchery (3931)
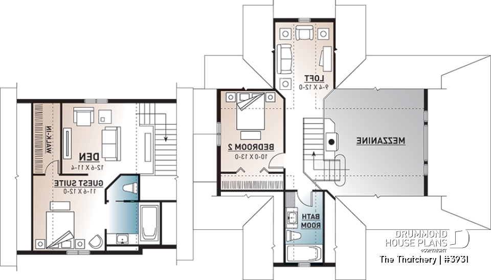
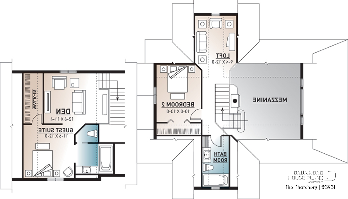
3 bedroom cottage plan, 3.5 baths, fantastic guest suite above 2-car garage,
Other useful information on this plan
For the fulfilment of guests...
Once again Drummond Designs proves to be listening to its clientele with this interesting variation of a very popular 4-seasons vacation home, by the addition of a double garage and even more liveable space. For you to consider.
The addition of the double garage bulk to original plan 2939 (which can be viewed on the internet site drummonddesigns.com) thereby adds square footage for the addition of a comfortable entrance foyer, an independent laundry area, a master bedroom suite with private bathroom and large closet, a more than enviable living room/dining room and a kitchen with central island and remarquable lunch counter.
On the upper level, a little more space for the secondary bedroom, the boudoir and the bathroom; but, our attention is especially drawn to the suite above the garage, which will surely be very much appreciated by guests who will feel a little more at home with their own bedroom, to which a bathroom and a living room has been added just for them and which is sure to be the envy of many families who value their guests.
Distinctive elements
Guest suite above garage, cathedral ceiling in family and dining rooms, large covered balcony.
Plan feature(s)
Fireplace, Cathedral ceiling, Mezzanine, Open floor layout, Gound floor laundry room, Panoramic view, Side entry garage, Island, Sloped ceiling, Guest suite, Master suite upstairs, Deck, Walk-in master bed.
Plan architectural style(s)
. Country, . Vacation and waterfront, . American, . A-Frame, . Ski chalets, . Mountain, . Cottage, chalet, cabin, . Farmhouse
Similar plans
Previously Viewed Plans
Questions and comments
August 22
Beth Cole
This house has been built on a slab (in-floor heat) in my neighborhood in Nova Scotia. Lots of curb appeal as it sits on a corner lot.
August 22
Customer service
Good day Ms. Cole
Thank you for the wonderful suggestion. I am sure that it will be helpfull to others who might want to do the same as this plan can be ordered with an optional slab foundation.
Please don't hesitate to contact me if you have any other comments or questions.
Regards
Deborah
February 21
Jennifer Kobe
I'm looking at ordering w3931, besides the cathedral ceiling, what are the ceiling heights in all the other rooms?
February 21
Customer service
Good day and thank you for your interest in our plans.
The ceiling height in the other rooms is 8', the garage is 8' 6".
Please let me know if I can be of further assistance.
Regards
Deborah
January 16
Juline
What would be the cost of building this house in Quebec?
January 17
S. Wilson
I am very interested in your w3931 model. What is the to date sq. foot cost in U.S.?
January 18
Customer service
Dear Mrs Wilson,
Thank you for your interest in Drummond House Plans.
Since we are located in Quebec, Canada, we do not have building costs for the U.S. You may want to contact local builders to get this information. They will be able to provide an average cost per square foot for your area.
Do not hesitate ton contact me again if you need further information on this plan or any other plan.
Best Regards,
Doreen, Customer Service Department
April 01
David Henley
Plan W3931
If the space over the Garage were removed and the stairway closed to the wall in the back of the entryway closet. What would de the square footage of the living space be? I know this would require modification of the plan but I need a place to start and that would require my knowing the footage.
David Henley
April 02
Customer service
Dear Mr Henley,
The space over the garage is 481 square feet. If you were to close the part on the left of the house, the square footage of this area would be approximately 275 square feet. It may vary depending on how high you want the knee walls, since the ceiling is sloped.
The total square footage would be approximately 2050 total.
Do not hesitate to contact us again if you need further information.
Best Regards,
Customer Service Department
Thank you for your comment! It must be approved before being put online, please allow a period of 24 hours.
Error with google reCaptcha! Try again
Here is a brief description of our different plan packages. Please select the plan package that suits your needs. You can change the package at the next step, if necessary.
PDF VERSION OF PLAN:
Complete digital version of plan (pdf format) sent by email (original plan format 18" x 24'' or 24" x 36'')
5 copies of plan + PDF:
Includes: 5 copies of plan, plan in PDF format (reduced size version), materials list.
Foundation type
Additional foundation types are available, a fee may apply. Please indicate your choice on the online order form, or to our customer service representative, when placing your house plan order.
If your desired foundation type is not available, please contact our customer service to receive your free plan modification quote.
Explanation of bonus space types
UNFINISHED BONUS ROOM
The bonus rooms are often planned above the garage and are accessible from the house. They are designed to be converted as an office, a laundry area, a bathroom, a library corner or even an additional bedroom for which homeowners must make sure to have a window that complies with current codes & standards.
STORAGE AREA
Often located above the garage, our storage areas are used only as storage and are usually accessible from the garage via a retractable staircase.
Do you like this plan but want it to be modified to suit your needs?
To add a garage, another bedroom, finish the basement or any other modification, click here and let us know about your desired changes and to get your free quote for the modification of your plan.
Conditions of use
Important copyright notice! Please take note of these copyright conditions before printing:
By printing this house plan, cottage or garage or the floorplan(s), you confirm being informed that every house plan on this website is the exclusive property of Drummond House
Plans and is protected by Canadian copyright law. You are aware that these prints cannot be used to build or even obtain a building permit. The graphic representations of these
models are offered by Drummond House Plans for the sole purpose of allowing you to notate modifications of a model and then take it to one of the Drummond House Plans Canadian dealers for
modification of the plan.
The purchase of a house plan, cottage or garage from Drummond House Plans is mandatory if you wish to build any of our models. The plan purchase allows you to build a single unit; you cannot resell or give your plan to anyone once the house, cottage or garage has been built. If you wish to build the same house, cottage or garage more than once, you need to obtain the licence to this effect. Please contact us for more details.
All plans from Drummond House Plans can only be modified by a licensed Drummond House Plan Canadian dealer. If any other business or individual with no affiliation to Drummond House Plans modifies a Drummond House Plan on your behalf, please ensure this business or individual has a licence to modify this specific plan or you will be subject to prosecution on the same level as the business or individual who modified or reproduced the plan.
For more details, do not hesitate to contact u by e-mail or by phone at 1-800-567-1413.
I agree to respect the conditions above to not reproduce, modify or build a model from Drummond House Plans without previously purchasing a complete house plan.










August 22
Beth Cole
This house has been built on a slab (in-floor heat) in my neighborhood in Nova Scotia. Lots of curb appeal as it sits on a corner lot.