There are no shipping fees if you buy one of our 2 plan packages "PDF file format" or "5 sets of blueprints + PDF". Shipping charges may apply if you buy additional sets of blueprints.
House plan Ashbury 4 (3133-V6)
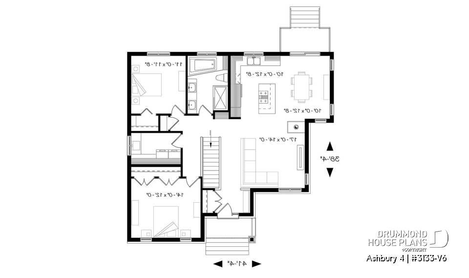
Craftsman house plan. open floor plan concept, three-sided fireplace, 2 bedrooms, large laundry room
Other useful information on this plan
Craftsman house plan - economical home design with open floor plan concept
Inspired by the popular plan # 3133, this version is particularly suited to those for whom the convenience of having everything on the same level, whether due to advanced age or other considerations, takes precedence over the number of bedrooms required.
The three bedrooms of the original plan become two as the third is replaced with a laundry/utility room in which a large counter complete with sink and place for a separate freezer are practical features that are sure to be appreciated by the occupants.
An open, well fenestrated activities area complete with a fireplace in the center, will offer comfort to his occupants. Another wonderful feature of this plan is the abundant storage space and kitchen island. There is a practical, double vanity in a bathroom that boasts a separate, corner tub an a 3' x 6' shower enclosure.
A well considered choice for homeowners who know what they want!
Distinctive elements
Appealing Craftsman bungalow.
Abundantly windowed dining room.
Kitchen / dinette with 40" x 60" central lunch island lunch.
Two good-sized bedrooms.
Bathroom with double vanity and 36" x 60" shower.
Large laundry room.
Fireplace in living room opened on three sides to the living room and the heart of the activities area.
Plan feature(s)
Open floor layout, Gound floor laundry room, Fireplace, Island, Separate bath and shower, Double sinks
Plan architectural style(s)
. Craftsman / Northwest, . Country, . Modern / Design, . American, . Modern rustic, . Contemporary, . Rustic, . Ranch, . Transitional
Similar plans
Previously Viewed Plans
Thank you for your comment! It must be approved before being put online, please allow a period of 24 hours.
Error with google reCaptcha! Try again
Here is a brief description of our different plan packages. Please select the plan package that suits your needs. You can change the package at the next step, if necessary.
PDF VERSION OF PLAN:
Complete digital version of plan (pdf format) sent by email (original plan format 18" x 24'' or 24" x 36'')
5 copies of plan + PDF:
Includes: 5 copies of plan, plan in PDF format (reduced size version), materials list.
Foundation type
Additional foundation types are available, a fee may apply. Please indicate your choice on the online order form, or to our customer service representative, when placing your house plan order.
If your desired foundation type is not available, please contact our customer service to receive your free plan modification quote.
Explanation of bonus space types
UNFINISHED BONUS ROOM
The bonus rooms are often planned above the garage and are accessible from the house. They are designed to be converted as an office, a laundry area, a bathroom, a library corner or even an additional bedroom for which homeowners must make sure to have a window that complies with current codes & standards.
STORAGE AREA
Often located above the garage, our storage areas are used only as storage and are usually accessible from the garage via a retractable staircase.
Do you like this plan but want it to be modified to suit your needs?
To add a garage, another bedroom, finish the basement or any other modification, click here and let us know about your desired changes and to get your free quote for the modification of your plan.
Conditions of use
Important copyright notice! Please take note of these copyright conditions before printing:
By printing this house plan, cottage or garage or the floorplan(s), you confirm being informed that every house plan on this website is the exclusive property of Drummond House
Plans and is protected by Canadian copyright law. You are aware that these prints cannot be used to build or even obtain a building permit. The graphic representations of these
models are offered by Drummond House Plans for the sole purpose of allowing you to notate modifications of a model and then take it to one of the Drummond House Plans Canadian dealers for
modification of the plan.
The purchase of a house plan, cottage or garage from Drummond House Plans is mandatory if you wish to build any of our models. The plan purchase allows you to build a single unit; you cannot resell or give your plan to anyone once the house, cottage or garage has been built. If you wish to build the same house, cottage or garage more than once, you need to obtain the licence to this effect. Please contact us for more details.
All plans from Drummond House Plans can only be modified by a licensed Drummond House Plan Canadian dealer. If any other business or individual with no affiliation to Drummond House Plans modifies a Drummond House Plan on your behalf, please ensure this business or individual has a licence to modify this specific plan or you will be subject to prosecution on the same level as the business or individual who modified or reproduced the plan.
For more details, do not hesitate to contact u by e-mail or by phone at 1-800-567-1413.
I agree to respect the conditions above to not reproduce, modify or build a model from Drummond House Plans without previously purchasing a complete house plan.








