There are no shipping fees if you buy one of our 2 plan packages "PDF file format" or "5 sets of blueprints + PDF". Shipping charges may apply if you buy additional sets of blueprints.
House plan The Trail Seeker 4 (3930-V1)
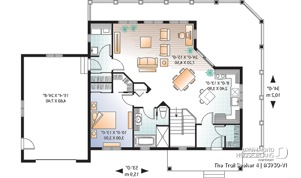
Cottage house plan, large terrace, 3 bedrooms, 2 living rooms, master suite on main level, open floor plan
Other useful information on this plan
Improved popular vacation house plan with 3 beds, 2 baths and a garage!
Upon its arrival on the market, plan 3900 was automatically popular. While originally a vacation-style plan, we frequently received requests for the addition of an attached garage and finished basement with two additional bedrooms. We are pleased to offer this alternate plan 3930-V1 in response to your requests.
A walkaround gallery punctuated by a dining/lounging gazebo is the hallmark of this model and we have retained this popular feature. Inside, nine foot ceilings in an open living area ensure a bright and cheery environment. The master bedroom on the main level boasts his and hers closets and the adjoining bathroom includes an independent shower and soaker tub. Storage abounds with generous closets at both entries plus a hall closet. Main level amenities would not be complete without a conveniently located laundry.
Downstairs, we discover two additional bedrooms, a family room, bathroom and significant storage room. The gazebo above forms a natural canopy for a ground-level patio.
Be sure to look at the related plans for additional floor plan options.
Distinctive elements
9' ceiling on main level. Entirely open activity area with abundant windows. Also on main floor a master bedroom, computer corner, a laundry room, a complete bathroom and access to the garage. Remarquable layout in the basement including two secondary bedrooms, a large family room with abundant windows and a large storage space with access to the workshop/storage room which is located under the garage with a garage door on the back.
Plan feature(s)
Access to basement from exterior, Ceiling over 8', Walk-in master bed., Mud room, Island, Gound floor laundry room, Open floor layout, Office / Study / Den, Warparound, Panoramic view, Game room, Separate bath and shower, Deck
Plan architectural style(s)
. Craftsman / Northwest, . Vacation and waterfront, . Ski chalets, . American, . Traditional, . Modern rustic, . Country, . Ranch, . Mountain, . Cottage, chalet, cabin
Similar plans
Previously Viewed Plans
Questions and comments
November 03
Laurie Kuipr
I would like to see the pictures of this completed house, but I'm not able to find them in the gallery.
November 03
Customer service
Good day Ms. Kuipr and thank you for your interest in this plan.
Since we do no actual construction, the only photos that we have are those which our clients have shared. Unfortunately there are none on file at the present time for this plan so I am unable to forward any for the moment.
Please let me know if you have any other questions or comments.
Regards
Deb
December 21
Gary Rogers
Are you interested in seeing some finished pictures of plan w3930-v1? I got plans from you a few years ago. I made some modifications to suit me and built it myself.I finished it three years ago. I've had several people say it should be in a magazine someplace. It looks very much like the rendering,even the color. Gary Rogers
December 21
Customer service
Good day Mr. Rogers and thank you for taking the time to write.
We would be delighted to receive any pictures that you wish to share as we always appreciate our clients sharing their finished projects with us.
Please send them to me via Email at
[email protected]
Wishing you and yours all the best for the holidays.
Deborah
October 23
Gary Goodyear
Hi
We really like this house W3930-V1, and may like to build in Sweden on a sloping garden plot where we already have a house,at the bottom of the slope,
do you have any additional photo's, or perhaps even
photo's of a finished house
October 25
Customer service
Dear Mr Goodyear,
Thank you for your interest in Drummond House Plans.
All the pictures for our house plans are posted on our website. These pictures were sent to us by customer who have purchased and built one of our plans. To this day, we did not receive any pictures for plan 3930-V1.
If you need further information, do not hesitate to contact me again. I will gladly answer any questions you may have.
Best Regards,
Doreen, Customer Service Department
Thank you for your comment! It must be approved before being put online, please allow a period of 24 hours.
Error with google reCaptcha! Try again
Here is a brief description of our different plan packages. Please select the plan package that suits your needs. You can change the package at the next step, if necessary.
PDF VERSION OF PLAN:
Complete digital version of plan (pdf format) sent by email (original plan format 18" x 24'' or 24" x 36'')
5 copies of plan + PDF:
Includes: 5 copies of plan, plan in PDF format (reduced size version), materials list.
Foundation type
Additional foundation types are available, a fee may apply. Please indicate your choice on the online order form, or to our customer service representative, when placing your house plan order.
If your desired foundation type is not available, please contact our customer service to receive your free plan modification quote.
Explanation of bonus space types
UNFINISHED BONUS ROOM
The bonus rooms are often planned above the garage and are accessible from the house. They are designed to be converted as an office, a laundry area, a bathroom, a library corner or even an additional bedroom for which homeowners must make sure to have a window that complies with current codes & standards.
STORAGE AREA
Often located above the garage, our storage areas are used only as storage and are usually accessible from the garage via a retractable staircase.
Do you like this plan but want it to be modified to suit your needs?
To add a garage, another bedroom, finish the basement or any other modification, click here and let us know about your desired changes and to get your free quote for the modification of your plan.
Conditions of use
Important copyright notice! Please take note of these copyright conditions before printing:
By printing this house plan, cottage or garage or the floorplan(s), you confirm being informed that every house plan on this website is the exclusive property of Drummond House
Plans and is protected by Canadian copyright law. You are aware that these prints cannot be used to build or even obtain a building permit. The graphic representations of these
models are offered by Drummond House Plans for the sole purpose of allowing you to notate modifications of a model and then take it to one of the Drummond House Plans Canadian dealers for
modification of the plan.
The purchase of a house plan, cottage or garage from Drummond House Plans is mandatory if you wish to build any of our models. The plan purchase allows you to build a single unit; you cannot resell or give your plan to anyone once the house, cottage or garage has been built. If you wish to build the same house, cottage or garage more than once, you need to obtain the licence to this effect. Please contact us for more details.
All plans from Drummond House Plans can only be modified by a licensed Drummond House Plan Canadian dealer. If any other business or individual with no affiliation to Drummond House Plans modifies a Drummond House Plan on your behalf, please ensure this business or individual has a licence to modify this specific plan or you will be subject to prosecution on the same level as the business or individual who modified or reproduced the plan.
For more details, do not hesitate to contact u by e-mail or by phone at 1-800-567-1413.
I agree to respect the conditions above to not reproduce, modify or build a model from Drummond House Plans without previously purchasing a complete house plan.







November 03
Laurie Kuipr
I would like to see the pictures of this completed house, but I'm not able to find them in the gallery.