There are no shipping fees if you buy one of our 2 plan packages "PDF file format" or "5 sets of blueprints + PDF". Shipping charges may apply if you buy additional sets of blueprints.
House plan The Skylark (3938)
A-Frame cabin house plan with 3 beds, 2 baths, mezzanine and open floor plan layout
Other useful information on this plan
Rustic 4-Season Chalet House Plan with Cathedral Ceiling, Loft, and Central Fireplace
This rustic 4-season chalet house plan is designed for nature lovers who want to enjoy the outdoors year-round. With its warm architectural style and abundant windows oriented toward the view, it offers breathtaking panoramas in every season—whether overlooking a lake, mountains, or a forest. Its timeless charm makes it the perfect retreat for vacations, weekend getaways, or even full-time living.
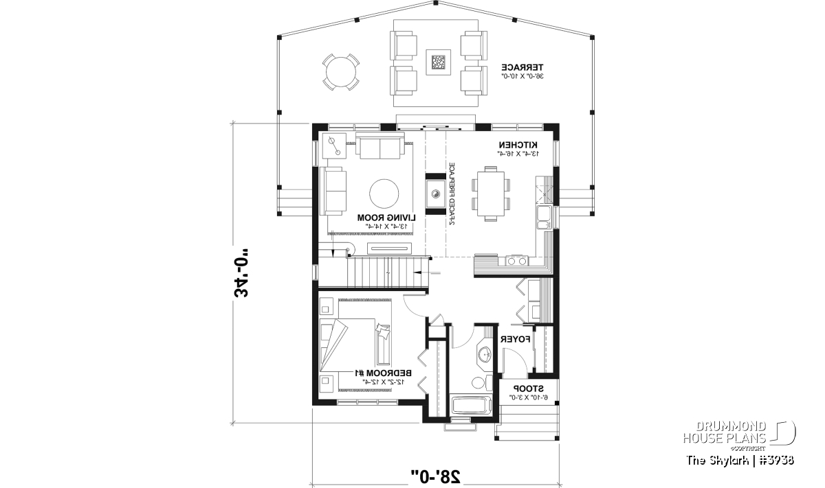
From the moment you step inside, the welcoming entry vestibule sets the tone. It features a practical closet and laundry area, making it ideal after outdoor activities. The heart of the home is revealed in the spectacular living room, where a cathedral ceiling soaring to 25’7’’ creates a grand, airy atmosphere filled with natural light.
The open kitchen is both inviting and functional, complete with a charming dinette that flows naturally into the living room. This layout encourages gatherings, whether it’s family dinners, casual brunches, or festive evenings with friends. The entire space is anchored by a dramatic central fireplace, open to two stories, becoming the focal point of the chalet. It’s the perfect place to relax and connect, whether on snowy winter nights or warm summer evenings.
The main floor primary suite provides a private haven of comfort. With its adjoining full bathroom, it offers convenience and intimacy while remaining close to the main living areas.
Upstairs, two bright secondary bedrooms welcome family or guests, complemented by a full bathroom. A lofted mezzanine overlooks the main living space and the fireplace, creating an inspiring spot for a reading nook, home office, or quiet lounge with stunning views of the outdoors.
The unfinished basement offers unlimited potential, ready to be customized to your family’s needs. It could include a spacious family room, additional bedrooms, a kids’ playroom, or even a home gym. This flexibility ensures the chalet can adapt to your lifestyle as it evolves.
By blending rustic style, bright open spaces, and functional design, this Rustic 4-Season Chalet House Plan with loft and central fireplace is the perfect choice for anyone dreaming of a warm, welcoming, and versatile retreat surrounded by nature.
Distinctive elements
Rustic 4-Season Chalet House Plan Designed to Enjoy Nature Year-Round.
This rustic 4-season chalet house plan is designed to make the most of nature in every season. With its bright design and abundant windows oriented toward the view, it offers breathtaking panoramas year-round, whether in summer or winter.
The welcoming entry vestibule includes a practical closet and is conveniently located next to a washer and dryer area. The spectacular living room features a cathedral ceiling soaring to 25’7’’, creating a grand, airy atmosphere filled with natural light.
The inviting kitchen with its cozy dinette, semi-open to the living room, forms a warm and friendly space where family and friends can gather. At the center of it all, a dramatic two-story fireplace becomes the heart of the home, offering both style and comfort.
On the main floor, the primary bedroom provides peace and relaxation, complete with a private full bathroom.
Upstairs, two secondary bedrooms are perfect for family or guests, along with a full bathroom and a bright mezzanine—an ideal spot for a reading nook, office, or lounge.
The unfinished basement offers endless potential for customization. It can easily be transformed into a family room, additional bedrooms, a playroom, or even a home gym, depending on your needs.
By combining rustic charm, bright living spaces, and flexible design, this chalet plan is perfect for anyone dreaming of a warm, welcoming retreat in harmony with nature.
Plan feature(s)
Cathedral ceiling, Fireplace, Master suite on main, Gound floor laundry room, Mezzanine, Open floor layout, Panoramic view, Sloped ceiling, Entrance hall
Plan architectural style(s)
. Cottage, chalet, cabin, . Vacation and waterfront, . Ski chalets, . Rustic, . A-Frame, . American, . Cabin plans, . Modern rustic, . Scandinavian, . Mountain
Similar plans
Previously Viewed Plans
Questions and comments
November 18
Denis Soubliere
im confused by the $245 charge for the walkout basement the picture showing this plan W3938 clearly shows a walkout basement
November 18
Customer service
Good day Mr. Soubliere and thank you for taking the time to write.
Since we do no actual construction, the only pictures that we have are those which our clients have so generously shared of their own projects.
The standard foundation is actually a full basement but in the case of the photo, the client preferred to order their plans with the optional walk-out basement as the foundation for their home.
Because the client's home is pictured, it has the foundation that they chose but the representative image of this plan does not show a walk-out.
I hope this answers your question and I invite you to contact me if I can be of further assistance.
Regards
Deb
November 03
Denis Soubliere
I noticed that the drawings show a walkout basement. is this included in the blue prints? also I would like the fireplace/ wood stove moved to the living room wall centered between the 2 windows is this possible?
November 03
Customer service
Good day Mr. Soubliere and thank you for your interest in this plan.
Although the full, unfinished basement is the standard foundation for this plan you can order it with the walk-out option for an additional $245.
Our modifications department would be happy to send you a free estimate within two business days after receipt of this on line form for any other changes that you need, such as relocating the fireplace.
Please let me know if you have any other questions or comments.
Regards
Deb
August 07
Edward Aldorisio
Can you redesign the 2d level into a one large bedroom
Also , can the center of the main room accommodate a fireplace on the wall opposite the from the kitchen on the right side of window ? this would have 2 flu's one for the F/P and one for the heater .
Can a garage go under on a similar lot under the kitchen area.
Can the house be mostly solar as it will get full sun and there would be tax incentives
August 07
Customer service
Good day Mr. Aldorisio and thank you for taking the time to write.
The changes that you require to make this plan conform to your needs are possible and we would be happy to send you a free estimate for the changes within two business days after receipt of this on line form.
Please let me know if I can further assist you
Regards
Deb
Thank you for your comment! It must be approved before being put online, please allow a period of 24 hours.
Error with google reCaptcha! Try again
Here is a brief description of our different plan packages. Please select the plan package that suits your needs. You can change the package at the next step, if necessary.
PDF VERSION OF PLAN:
Complete digital version of plan (pdf format) sent by email (original plan format 18" x 24'' or 24" x 36'')
5 copies of plan + PDF:
Includes: 5 copies of plan, plan in PDF format (reduced size version), materials list.
Foundation type
Additional foundation types are available, a fee may apply. Please indicate your choice on the online order form, or to our customer service representative, when placing your house plan order.
If your desired foundation type is not available, please contact our customer service to receive your free plan modification quote.
Explanation of bonus space types
UNFINISHED BONUS ROOM
The bonus rooms are often planned above the garage and are accessible from the house. They are designed to be converted as an office, a laundry area, a bathroom, a library corner or even an additional bedroom for which homeowners must make sure to have a window that complies with current codes & standards.
STORAGE AREA
Often located above the garage, our storage areas are used only as storage and are usually accessible from the garage via a retractable staircase.
Do you like this plan but want it to be modified to suit your needs?
To add a garage, another bedroom, finish the basement or any other modification, click here and let us know about your desired changes and to get your free quote for the modification of your plan.
Conditions of use
Important copyright notice! Please take note of these copyright conditions before printing:
By printing this house plan, cottage or garage or the floorplan(s), you confirm being informed that every house plan on this website is the exclusive property of Drummond House
Plans and is protected by Canadian copyright law. You are aware that these prints cannot be used to build or even obtain a building permit. The graphic representations of these
models are offered by Drummond House Plans for the sole purpose of allowing you to notate modifications of a model and then take it to one of the Drummond House Plans Canadian dealers for
modification of the plan.
The purchase of a house plan, cottage or garage from Drummond House Plans is mandatory if you wish to build any of our models. The plan purchase allows you to build a single unit; you cannot resell or give your plan to anyone once the house, cottage or garage has been built. If you wish to build the same house, cottage or garage more than once, you need to obtain the licence to this effect. Please contact us for more details.
All plans from Drummond House Plans can only be modified by a licensed Drummond House Plan Canadian dealer. If any other business or individual with no affiliation to Drummond House Plans modifies a Drummond House Plan on your behalf, please ensure this business or individual has a licence to modify this specific plan or you will be subject to prosecution on the same level as the business or individual who modified or reproduced the plan.
For more details, do not hesitate to contact u by e-mail or by phone at 1-800-567-1413.
I agree to respect the conditions above to not reproduce, modify or build a model from Drummond House Plans without previously purchasing a complete house plan.














November 18
Denis Soubliere
im confused by the $245 charge for the walkout basement the picture showing this plan W3938 clearly shows a walkout basement