There are no shipping fees if you buy one of our 2 plan packages "PDF file format" or "5 sets of blueprints + PDF". Shipping charges may apply if you buy additional sets of blueprints.
House plan Olympe 2 (3992-V1)
Small modern cape cod house plan, cathedral ceiling, 1-car garage, large covered terrace, fireplace
Other useful information on this plan
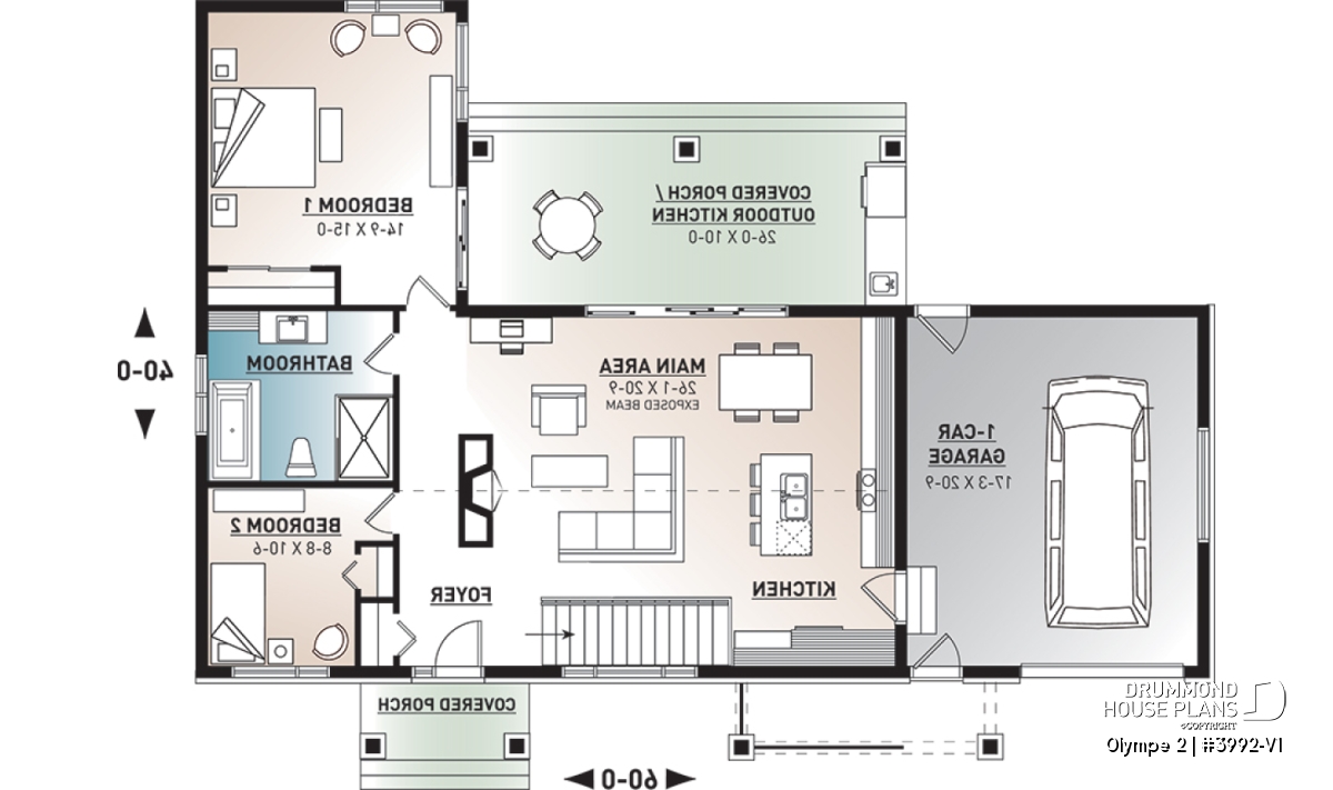
One-story home of Scandinavian inspiration with cathedral ceilings and one-car garage
One-story home of Scandinavian inspiration with cathedral ceilings including wooden beams, full covered exterior kitchen, kitchen island and fireplace.
Whether it be situated on a lake front or at the foot of a mountain, this new house plan Olympe 2 (plan #3992-V1) reminds us of that much loved and enjoyed cottage.
Very distinguished and charming, this plan with garage door that directly accesses the family room is sure to please. Of Scandinavian style, the assembled details make of this house plans a perfect choice for nature lovers. And we bet you cannot wait to see the inside!
With its simplicity and contemporary touch, you could easily incorporate Tesla solar roof tiles or any other type of solar energy panels. Consult our blog for the most recent information in regards to Tesla solar roof tiles.
The living room, kitchen and dining room create a spectacular common living area in part thanks to the 16’-0’’ high cathedral ceilings. The decorative wooden beams add even more style to the already vast room that leads to the exterior covered terrace and exterior kitchen through a triple patio doors. Being covered, the terrace will most certainly be a great family and friend meeting place during the warm season, rain or no rain!
A home with a garage door to access the dining room and kitchen! Very stylish, practical and convenient for rapid access to the exterior kitchen area.
Indisputably, this home has all the charm a cottage would have to offer and is the ideal choice for those of you who dream of cozy living. With impressive natural light and the fluidity created by the chosen architectural details, this house plans leaves no one indifferent.
The complete bathroom with separate shower communicates directly to the main bedroom where you also have a direct private access to the terrace. To enjoy the winter season with a warming fireplace in the living room area, as well as an enjoyable summer season spent under the spacious terrace, your search has finally ended, this is the perfect house plan for you!
---
IMPORTANT:
This house plan is part of a 3 house plan collection. Here are the distinctive features for each of them:
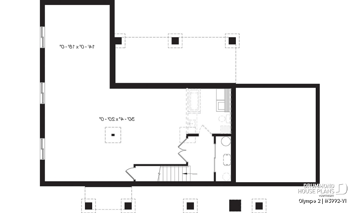
Plan # 3992: base model with 1212 heated square feet, no garage, laundry located in unfinished basement.
Plan # 3992-V1: exact same floor plan as base model # 3992, but with garage.
Plan # 3992-V2: enlarged floor plans to 1604 heated square feet, with garage and laundry located on main floor (not in basement like the two other versions).
Distinctive elements
Charming Modern Rustic Cottage house plan.
One-car garage with access to the house near kitchen.
Access the large covered terrace through an original modern garage door, or triple patio doors.
Outdoor kitchen located on the covered terrace.
Cathedral ceiling 16 ' (max) in the living room, kitchen and dining room, with exposed wooden beams for a rustic look.
9 'ceiling on the bedrooms and bathroom.
Open floor plan concept with fireplace in the family room.
Large island in the kitchen.
Master bedroom with private access to the rear terrace and bathroom.
Full bathroom with bath and large separate shower .
Unfinished basement to be converted to additional bedrooms, or as needed .
Plan feature(s)
Panoramic view, Fireplace, Island, Open floor layout, Cathedral ceiling, Deck
Plan architectural style(s)
. Scandinavian, . Transitional, . Modern rustic, . Country, . Craftsman / Northwest, . Farmhouse, . Cape Cod, . L-Shaped, Modern farmhouse
Similar plans
Previously Viewed Plans
Thank you for your comment! It must be approved before being put online, please allow a period of 24 hours.
Error with google reCaptcha! Try again
Here is a brief description of our different plan packages. Please select the plan package that suits your needs. You can change the package at the next step, if necessary.
PDF VERSION OF PLAN:
Complete digital version of plan (pdf format) sent by email (original plan format 18" x 24'' or 24" x 36'')
5 copies of plan + PDF:
Includes: 5 copies of plan, plan in PDF format (reduced size version), materials list.
Foundation type
Additional foundation types are available, a fee may apply. Please indicate your choice on the online order form, or to our customer service representative, when placing your house plan order.
If your desired foundation type is not available, please contact our customer service to receive your free plan modification quote.
Explanation of bonus space types
UNFINISHED BONUS ROOM
The bonus rooms are often planned above the garage and are accessible from the house. They are designed to be converted as an office, a laundry area, a bathroom, a library corner or even an additional bedroom for which homeowners must make sure to have a window that complies with current codes & standards.
STORAGE AREA
Often located above the garage, our storage areas are used only as storage and are usually accessible from the garage via a retractable staircase.
Do you like this plan but want it to be modified to suit your needs?
To add a garage, another bedroom, finish the basement or any other modification, click here and let us know about your desired changes and to get your free quote for the modification of your plan.
Conditions of use
Important copyright notice! Please take note of these copyright conditions before printing:
By printing this house plan, cottage or garage or the floorplan(s), you confirm being informed that every house plan on this website is the exclusive property of Drummond House
Plans and is protected by Canadian copyright law. You are aware that these prints cannot be used to build or even obtain a building permit. The graphic representations of these
models are offered by Drummond House Plans for the sole purpose of allowing you to notate modifications of a model and then take it to one of the Drummond House Plans Canadian dealers for
modification of the plan.
The purchase of a house plan, cottage or garage from Drummond House Plans is mandatory if you wish to build any of our models. The plan purchase allows you to build a single unit; you cannot resell or give your plan to anyone once the house, cottage or garage has been built. If you wish to build the same house, cottage or garage more than once, you need to obtain the licence to this effect. Please contact us for more details.
All plans from Drummond House Plans can only be modified by a licensed Drummond House Plan Canadian dealer. If any other business or individual with no affiliation to Drummond House Plans modifies a Drummond House Plan on your behalf, please ensure this business or individual has a licence to modify this specific plan or you will be subject to prosecution on the same level as the business or individual who modified or reproduced the plan.
For more details, do not hesitate to contact u by e-mail or by phone at 1-800-567-1413.
I agree to respect the conditions above to not reproduce, modify or build a model from Drummond House Plans without previously purchasing a complete house plan.




















