There are no shipping fees if you buy one of our 2 plan packages "PDF file format" or "5 sets of blueprints + PDF". Shipping charges may apply if you buy additional sets of blueprints.
House plan Minuet (3517)
Affordable Craftsman inspired home with cathedral ceiling, 3 bedrooms, 2 bathrooms and mezzanine
Other useful information on this plan
Cottage charmer house plan with 3 bedrooms and 2 bathrooms, affordable construction costs
Increasingly sought after by baby boomers, this kind of cottage includes all master amenities on the main floor. A cozy front porch dresses up the exterior and a well-designed plan includes many features in an efficient space.
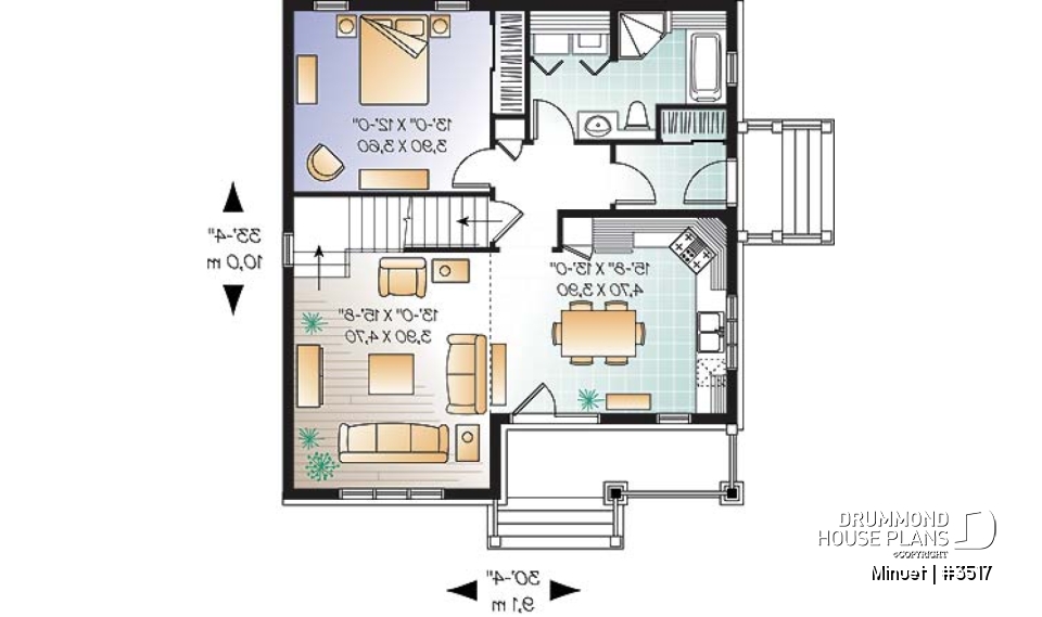
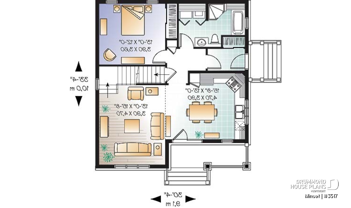
The entry leads directly to an eat-in kitchen and adjacent living room with vaulted ceiling. The alternate covered side entrance is a mudroom with generous closet. The main floor is completed by a master bedroom and full bathroom with bath separate shower and laundry closet.
Two upstairs bedrooms enjoy angled ceilings and a shared bathroom.
An unfinished basement provides space for storage or expanded living.
Distinctive elements
Living room with a large arched window and a cathedral ceiling.
One bedroom and laundry space located on the first level.
Foyer in the side-door entry.
Remarkable exterior look.
Plan feature(s)
Cathedral ceiling, Gound floor laundry room, Open floor layout, Master suite on main, Panoramic view, Sloped ceiling, Mezzanine
Plan architectural style(s)
. Country, . Craftsman / Northwest, . American, . Modern rustic, . Rustic, . A-Frame, . Traditional, . Cottage, chalet, cabin, . Vacation and waterfront, . Cape Cod
Similar plans
Previously Viewed Plans
Questions and comments
September 25
Ed League
I love this plan but don't need two bedrooms upstairs. I'm curious about the option of making the upstairs into a one bedroom with larger bath and walk in closet. Either this plan or something similar of similar sq footage and footprint.
Thank you,
Ed League
September 25
Customer service
Good day Mr. League and thank you for your interest in our plans.
The following are the links for three models that you may find interesting.
3507 might even be just what you're looking for!
plan 2597-V1 is another choice which may appeal to you
and
3507-V2 has an unfinished upper level that you can design according to your precise requirments.
Our plan customization team would be happy to provide a free estimate for any changes required to the plan of your choice within two business days after receipt of this on line form.
Please let me know if you have any other questions or comments.
Regards
Deb
December 17
Denise
Are there basement windows on the back sides of this house plan? If I got this plan, I would like to duplicate the first floor in the basement and would want to make sure there is an egress window of the bedroom.
December 17
Customer service
Good day and thank you for taking the time to write.
The basement window in the back is located (approximately) under the washer/dryer and measures 84" wide x 24" high. Because its larger dimension is on the horizontal, it is not sufficient for an egress window.
We offer comprehensive modification services for any of our plans and would be happy to provide a free estimate for this or any other changes that you might require.
Please let me know if I can further assist you.
Regards
Deborah
December 08
kristine
how much would it cost to build this house in ontario
December 09
Customer service
Dear Kristine,
Thank you for your interest in Drummond House Plans.
Since we are located in Quebec, the only building costs we have available are provincial averages for our province. The prices are from $148,000 to $179,000. Please note that these prices may not be accurate for Ontario.
Please contact me if you need further information. I will gladly answer any questions you may have.
Best Regards,
Doreen, Customer Service Department
August 19
Lisa Hartwig
We are looking for a design like this house, a simple square, but a bit bigger and a wrap around porch
August 20
Customer service
Dear Mrs Hartwig,
Thank you for your interest in Drummond House Plans.
Below you will find house plan suggestions that we are submitting to you today, in response to your specific criteria. We do not have a plan that meets your exact requirements so we are suggesting plans that might be interesting to you.
Please type the plan numbers below to automatically access the house plan suggested and its similar designs:
Plan 1435
Plan 3512
PLan 2597
Don't forget that any of our house plan can easily be modified or customized, online. To get a FREE estimate for your changes please visit the "Plan Modification Services" section of our website www.drummondhouseplans.com and follow the instructions or call our modification department at: 1-800-567-5267.
If you have further questions, do not hesitate to contact us again. We will gladly answer all your questions.
Best Regards,
Customer Service Department
Thank you for your comment! It must be approved before being put online, please allow a period of 24 hours.
Error with google reCaptcha! Try again
Here is a brief description of our different plan packages. Please select the plan package that suits your needs. You can change the package at the next step, if necessary.
PDF VERSION OF PLAN:
Complete digital version of plan (pdf format) sent by email (original plan format 18" x 24'' or 24" x 36'')
5 copies of plan + PDF:
Includes: 5 copies of plan, plan in PDF format (reduced size version), materials list.
Foundation type
Additional foundation types are available, a fee may apply. Please indicate your choice on the online order form, or to our customer service representative, when placing your house plan order.
If your desired foundation type is not available, please contact our customer service to receive your free plan modification quote.
Explanation of bonus space types
UNFINISHED BONUS ROOM
The bonus rooms are often planned above the garage and are accessible from the house. They are designed to be converted as an office, a laundry area, a bathroom, a library corner or even an additional bedroom for which homeowners must make sure to have a window that complies with current codes & standards.
STORAGE AREA
Often located above the garage, our storage areas are used only as storage and are usually accessible from the garage via a retractable staircase.
Do you like this plan but want it to be modified to suit your needs?
To add a garage, another bedroom, finish the basement or any other modification, click here and let us know about your desired changes and to get your free quote for the modification of your plan.
Conditions of use
Important copyright notice! Please take note of these copyright conditions before printing:
By printing this house plan, cottage or garage or the floorplan(s), you confirm being informed that every house plan on this website is the exclusive property of Drummond House
Plans and is protected by Canadian copyright law. You are aware that these prints cannot be used to build or even obtain a building permit. The graphic representations of these
models are offered by Drummond House Plans for the sole purpose of allowing you to notate modifications of a model and then take it to one of the Drummond House Plans Canadian dealers for
modification of the plan.
The purchase of a house plan, cottage or garage from Drummond House Plans is mandatory if you wish to build any of our models. The plan purchase allows you to build a single unit; you cannot resell or give your plan to anyone once the house, cottage or garage has been built. If you wish to build the same house, cottage or garage more than once, you need to obtain the licence to this effect. Please contact us for more details.
All plans from Drummond House Plans can only be modified by a licensed Drummond House Plan Canadian dealer. If any other business or individual with no affiliation to Drummond House Plans modifies a Drummond House Plan on your behalf, please ensure this business or individual has a licence to modify this specific plan or you will be subject to prosecution on the same level as the business or individual who modified or reproduced the plan.
For more details, do not hesitate to contact u by e-mail or by phone at 1-800-567-1413.
I agree to respect the conditions above to not reproduce, modify or build a model from Drummond House Plans without previously purchasing a complete house plan.















September 25
Ed League
I love this plan but don't need two bedrooms upstairs. I'm curious about the option of making the upstairs into a one bedroom with larger bath and walk in closet. Either this plan or something similar of similar sq footage and footprint.
Thank you,
Ed League