There are no shipping fees if you buy one of our 2 plan packages "PDF file format" or "5 sets of blueprints + PDF". Shipping charges may apply if you buy additional sets of blueprints.
House plan Gaillon 1 (4597)
Charming Country Style home with 3 bedrooms and open floor plan layout
Other useful information on this plan
Country cottage plan, small & affordable construction, 3 bedrooms
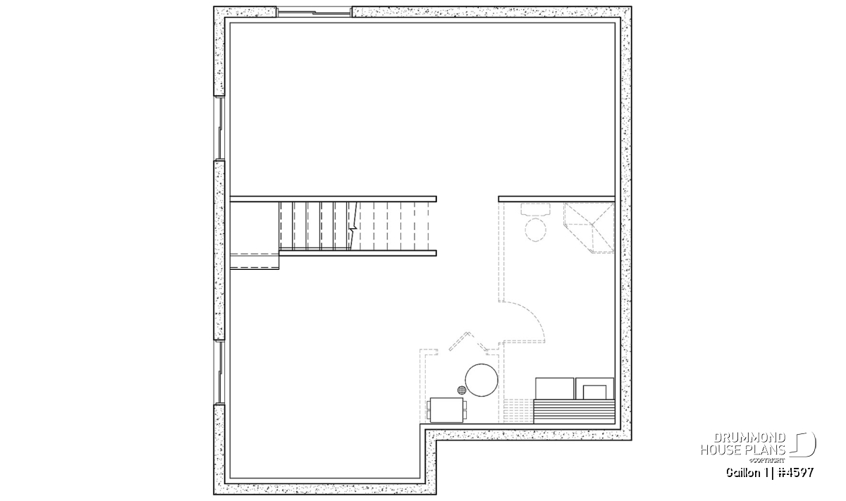
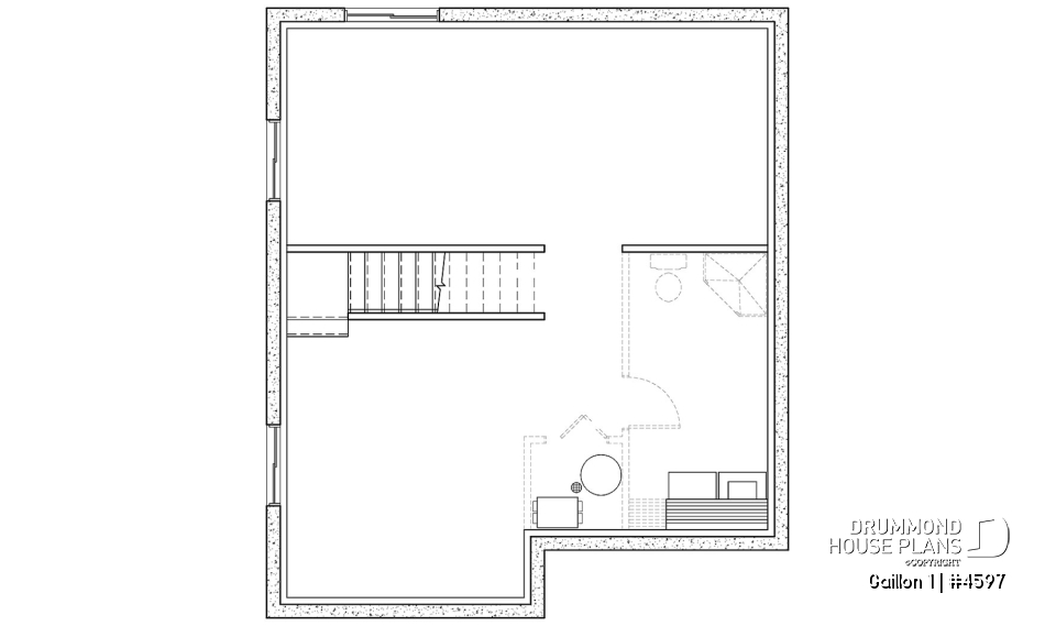
Dreams come true! 1168-sq. ft of prettiness brings you two bedrooms, two baths, and much more--a main-floor family room, half-bath with shower, bedroom, eat-in kitchen with French doors leading to the porch. Upstairs, there’s a master bedroom with walk-in closet, secondary bedroom, full bath and breezy mezzanine—the ideal place to tally your wish list.
Distinctive elements
Wraparound covered porch, access to outside from dining room via French doors, special ceiling treatments, cathedral ceiling in family room.
Plan feature(s)
Cathedral ceiling, Mezzanine, Open floor layout, Panoramic view, Loft, Master suite on main, Sloped ceiling, Entrance hall
Plan architectural style(s)
. Country, . Cottage, chalet, cabin, . Vacation and waterfront, . A-Frame, . American
Similar plans
Previously Viewed Plans
Questions and comments
June 10
Sueann woodman
could you tell me where we could fit a wash and dryer on the first floor?
June 10
Customer service
Hello,
the laundry area is located in the basement. However we can adjust this plan to include it on the main floor.
Thanks and let me know if you want to get a free quote on your plan changes?
Regards,
Marie
January 16
Carolyn
What would be the approximate cost to build this house.
January 16
Customer service
Good day and thank you for taking the time to write.
Although we do no actual building, a ballpark estimate to build this home in Quebec (Canada) would be around $150,000. which includes everything except for land, taxes and hook ups to municipal services.
Please let me know if I can further assist you.
Regards
Deborah
January 16
Evelyn Bednarz
Hi, beautiful house plans. On Plan W4597 could the roof line be changed to accommodate a wider porch. How deep is the porch in the existing plan? Is there a 2 car garage plan that would go well with this house. I'm things that we do not want an attached garage
Thank you
Evelyn Bednarz
January 16
Customer service
Good day Ms. Bednarz and thank you for your interest in this plan.
The roof line, with its 12/12 slope, could definately be changed and the porch widened from 3'4" in front and 4' on the side to the depth that most appeals to you and we would be happy to provide a free estimate for the changes within two business days after receipt of this on line form.
As for garage plans, our head designer suggests model
2977-22 but the actual roof pitch of 10/12 would need to be changed to match that of the house's. You need not request a plan modification for this as the truss manufacturer will be able to make the trusses with the pitch that you need at no extra charge as long as you let them know when you order.
Two other suggestions are 2993-V1 and model 2993 that, despite their roof pitch of 8/12, do not need to be modified because of the inverted pitch.
Please let me know if you have any other questions or comments.
Regards
Deborah
June 19
Linda Slovachek
I am looking for a small home eat in kitchen kitchen table buy back windowmaster bdrm suit den fire place one story between 700 sq ft to 1100sq ft. sofar not so much luck.
June 22
Customer service
Dear Mrs Slovachek,
Thank your for your interest in the Drummond House Plans. Below you will find house plan suggestions that we are submitting to you today, in response to your specific criterias.
Please click directly on the plan number below, or go to our website www.drummondhouseplans.com and type the plan numbers below to automatically access the house plan suggested and its similar designs:
Plan 2439
Plan 2153
Plan 2286
Plan 3238
Plan 2248
Don't forget that any of our house plan can easily be modified or customized, online. To get a FREE estimate for your changes please visit the "Plan Modification Services" section of our website www.drummondhouseplans.com and follow the instructions or call our modification department at: 1-866-567-5267.
If you need further information, do not hesitate to contact us again. We will gladly answer any question you may have.
Best Regards,
Customer Service Department
Thank you for your comment! It must be approved before being put online, please allow a period of 24 hours.
Error with google reCaptcha! Try again
Here is a brief description of our different plan packages. Please select the plan package that suits your needs. You can change the package at the next step, if necessary.
PDF VERSION OF PLAN:
Complete digital version of plan (pdf format) sent by email (original plan format 18" x 24'' or 24" x 36'')
5 copies of plan + PDF:
Includes: 5 copies of plan, plan in PDF format (reduced size version), materials list.
Foundation type
Additional foundation types are available, a fee may apply. Please indicate your choice on the online order form, or to our customer service representative, when placing your house plan order.
If your desired foundation type is not available, please contact our customer service to receive your free plan modification quote.
Explanation of bonus space types
UNFINISHED BONUS ROOM
The bonus rooms are often planned above the garage and are accessible from the house. They are designed to be converted as an office, a laundry area, a bathroom, a library corner or even an additional bedroom for which homeowners must make sure to have a window that complies with current codes & standards.
STORAGE AREA
Often located above the garage, our storage areas are used only as storage and are usually accessible from the garage via a retractable staircase.
Do you like this plan but want it to be modified to suit your needs?
To add a garage, another bedroom, finish the basement or any other modification, click here and let us know about your desired changes and to get your free quote for the modification of your plan.
Conditions of use
Important copyright notice! Please take note of these copyright conditions before printing:
By printing this house plan, cottage or garage or the floorplan(s), you confirm being informed that every house plan on this website is the exclusive property of Drummond House
Plans and is protected by Canadian copyright law. You are aware that these prints cannot be used to build or even obtain a building permit. The graphic representations of these
models are offered by Drummond House Plans for the sole purpose of allowing you to notate modifications of a model and then take it to one of the Drummond House Plans Canadian dealers for
modification of the plan.
The purchase of a house plan, cottage or garage from Drummond House Plans is mandatory if you wish to build any of our models. The plan purchase allows you to build a single unit; you cannot resell or give your plan to anyone once the house, cottage or garage has been built. If you wish to build the same house, cottage or garage more than once, you need to obtain the licence to this effect. Please contact us for more details.
All plans from Drummond House Plans can only be modified by a licensed Drummond House Plan Canadian dealer. If any other business or individual with no affiliation to Drummond House Plans modifies a Drummond House Plan on your behalf, please ensure this business or individual has a licence to modify this specific plan or you will be subject to prosecution on the same level as the business or individual who modified or reproduced the plan.
For more details, do not hesitate to contact u by e-mail or by phone at 1-800-567-1413.
I agree to respect the conditions above to not reproduce, modify or build a model from Drummond House Plans without previously purchasing a complete house plan.












June 10
Sueann woodman
could you tell me where we could fit a wash and dryer on the first floor?