There are no shipping fees if you buy one of our 2 plan packages "PDF file format" or "5 sets of blueprints + PDF". Shipping charges may apply if you buy additional sets of blueprints.
House plan Essex 2 (3883-V1)
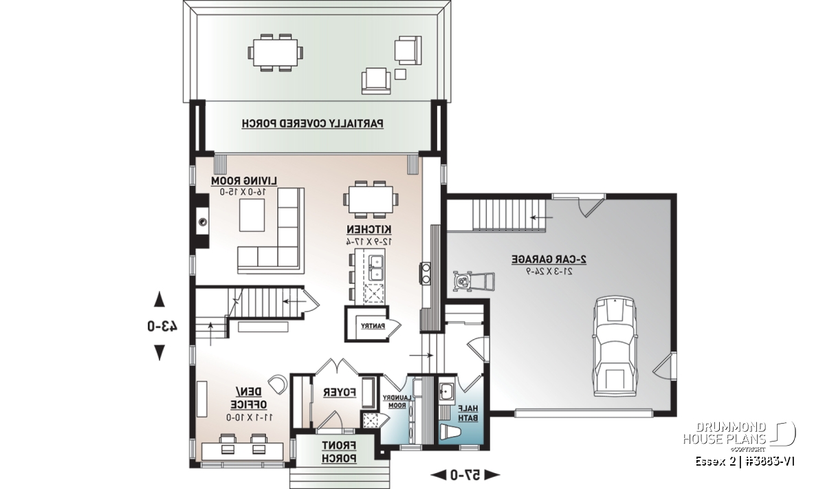
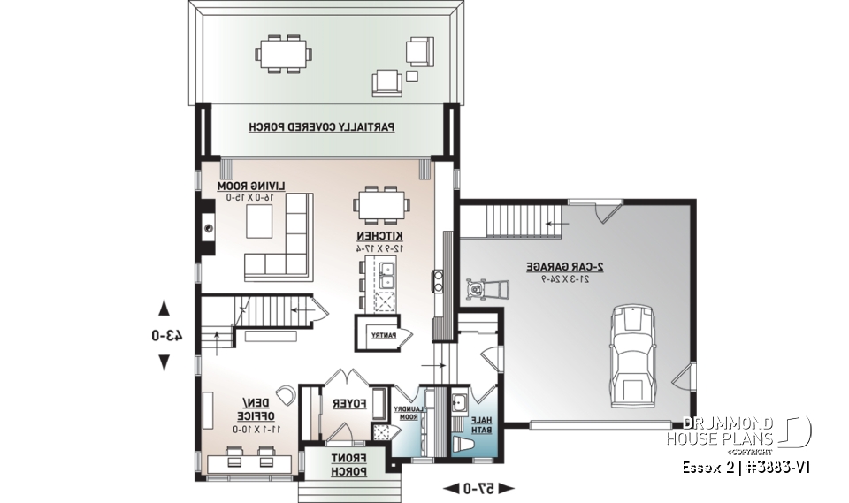
3 to 4 bedroom Cube Shaped house plan, home office, lots of natural lights, 2-car garage, unfinished basement
Other useful information on this plan
Cube Shaped House Plan with 3 to 4 bedrooms and a 2-car garage!
The contemporary look of this Minimalist house design will appeal to our forward-thinking customers that seeks to distinguish themselves. Offering 3 to 4 bedrooms, including a master suite on the second floor, this house floor plans will appeal to families with several children as well as blended families.
There is a 9’ ceiling throughout the main floor. The entrance hall features a practical coat closet, perfect for rainy days! A home office is located near the main entrance of the house and could also be easily converted into a nursery, bedroom #4 or a playroom, depending on your needs. The master suite is conveniently situated on the second floor and will appeal to families with younger children. The master suite includes a private balcony and also a good size walk-in closet. The master bathroom features a vanity, a large shower stall and a toilet area.
The kitchen offers plenty of counter space, a kitchen island and a practical pantry. The kitchen is also located near the half bath and the laundry room.
The family / living room has a fireplace and lots of natural light. In addition, a large covered terrace is accessible through retractable patio doors located in the dining room and family room area. The folding patio doors offer plenty of natural lights in the common areas.
On the second floor, two (2) good size bedrooms share a full bathroom with bathtub, shower, double vanity, toilet and storage.
The double car garage offers practical access to the outside, the unfinished basement and the main floor of the house. The unfinished basement will allow for extra bedrooms, storage, etc. in the future.
Alternate floor plan layouts are available for this home, see plan # 3883 et 3883-V2 for more details.
Distinctive elements
Cube Shaped style modern home plan with double car garage.
9 'ceiling throughout the main floor.
Closed foyer with coat closet.
Home office or bedroom #4 or playroom.
Master suite with private balcony and good size walk-in. Master bathroom with large shower.
Kitchen with lots of counter space, an island and a pantry. Living room with fireplace.
Folding patio doors in the dining and family room area, leading to a covered terrace at the rear of the house.
Half bathroom and laundry room located off the kitchen.
2 secondary good size bedrooms on second floor share a very large bathroom with shower, bathtub, double vanity and toilet.
Large double garage with access to the basement, to the rear and side of the house and the main floor of the house.
Unfinished basement can be easily finished for additional bedrooms, storage, home theater, etc.
For alternate floor plan layouts of this home, see plan # 3883 and # 3883-V2.
Plan feature(s)
Office / Study / Den, Gound floor laundry room, Laundry chute, Fireplace, Pantry, Ceiling over 8', Master suite upstairs, Deck, Basement access from garage, Lunch counter
Plan architectural style(s)
Similar plans
Previously Viewed Plans
Thank you for your comment! It must be approved before being put online, please allow a period of 24 hours.
Error with google reCaptcha! Try again
Here is a brief description of our different plan packages. Please select the plan package that suits your needs. You can change the package at the next step, if necessary.
PDF VERSION OF PLAN:
Complete digital version of plan (pdf format) sent by email (original plan format 18" x 24'' or 24" x 36'')
5 copies of plan + PDF:
Includes: 5 copies of plan, plan in PDF format (reduced size version), materials list.
Foundation type
Additional foundation types are available, a fee may apply. Please indicate your choice on the online order form, or to our customer service representative, when placing your house plan order.
If your desired foundation type is not available, please contact our customer service to receive your free plan modification quote.
Explanation of bonus space types
UNFINISHED BONUS ROOM
The bonus rooms are often planned above the garage and are accessible from the house. They are designed to be converted as an office, a laundry area, a bathroom, a library corner or even an additional bedroom for which homeowners must make sure to have a window that complies with current codes & standards.
STORAGE AREA
Often located above the garage, our storage areas are used only as storage and are usually accessible from the garage via a retractable staircase.
Do you like this plan but want it to be modified to suit your needs?
To add a garage, another bedroom, finish the basement or any other modification, click here and let us know about your desired changes and to get your free quote for the modification of your plan.
Conditions of use
Important copyright notice! Please take note of these copyright conditions before printing:
By printing this house plan, cottage or garage or the floorplan(s), you confirm being informed that every house plan on this website is the exclusive property of Drummond House
Plans and is protected by Canadian copyright law. You are aware that these prints cannot be used to build or even obtain a building permit. The graphic representations of these
models are offered by Drummond House Plans for the sole purpose of allowing you to notate modifications of a model and then take it to one of the Drummond House Plans Canadian dealers for
modification of the plan.
The purchase of a house plan, cottage or garage from Drummond House Plans is mandatory if you wish to build any of our models. The plan purchase allows you to build a single unit; you cannot resell or give your plan to anyone once the house, cottage or garage has been built. If you wish to build the same house, cottage or garage more than once, you need to obtain the licence to this effect. Please contact us for more details.
All plans from Drummond House Plans can only be modified by a licensed Drummond House Plan Canadian dealer. If any other business or individual with no affiliation to Drummond House Plans modifies a Drummond House Plan on your behalf, please ensure this business or individual has a licence to modify this specific plan or you will be subject to prosecution on the same level as the business or individual who modified or reproduced the plan.
For more details, do not hesitate to contact u by e-mail or by phone at 1-800-567-1413.
I agree to respect the conditions above to not reproduce, modify or build a model from Drummond House Plans without previously purchasing a complete house plan.











