There are no shipping fees if you buy one of our 2 plan packages "PDF file format" or "5 sets of blueprints + PDF". Shipping charges may apply if you buy additional sets of blueprints.
House plan Caldwell (3457)
Cube-shaped house plan, 4bedrooms 3 bathrooms, open floor plan, kitchen island, home office, media room
Other useful information on this plan
Caldwell (#3457) – Contemporary Multi-Level Home with Open Living Spaces and Flexible Family Layout
The Caldwell (#3457) is a striking multi-level home that reflects a modern and sophisticated approach to residential design. Created to balance style, comfort, and adaptability, this contemporary home offers generous living spaces and a thoughtful layout that meets the evolving needs of today’s families.
From the moment you step inside, the home impresses with its sense of openness. Tall ceilings enhance the main living areas, including the living room, dining area, and media space, creating an airy and inviting atmosphere. The kitchen stands at the heart of the Caldwell (#3457), featuring a functional layout, a welcoming lunch-style island, and expansive windows that connect the interior to the outdoors. A discreet home office nearby provides a quiet and practical workspace without disrupting the flow of daily life.
The dining area is elevated by custom built-in cabinetry with dedicated space for a wine display, and it shares a stunning three-sided fireplace with the living room, adding warmth and visual appeal. Service areas such as the powder room and laundry room are smartly tucked away, contributing to a clean and organized main level.
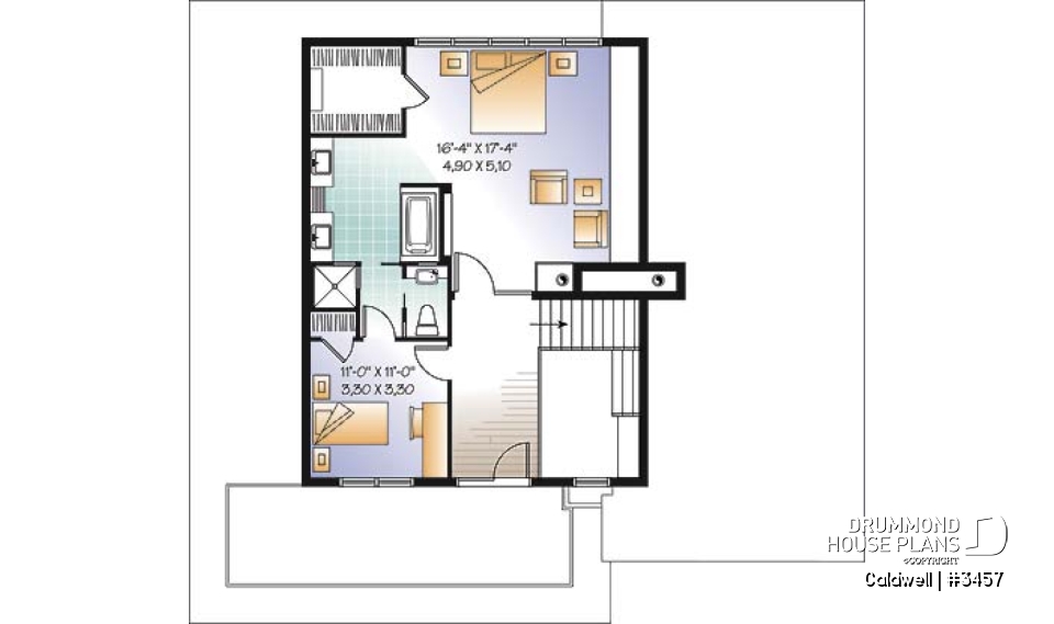
Upstairs, the primary suite serves as a private retreat, complete with a walk-in closet, a two-sided fireplace, and a built-in media unit. This level also includes a small additional bedroom, ideal as a nursery or young child’s room. A mezzanine leads to an outdoor terrace, offering a pleasant extension of the living space.
The lower level features two additional bedrooms, a shared bathroom, and a playroom or small lounge area, perfect for teenagers or guests. A partially unfinished basement provides valuable flexibility for future customization. With its integrated garage and direct access to the home, the Caldwell (#3457) delivers a modern, well-balanced living environment designed for comfort and long-term adaptability.
Distinctive elements
Modern three-level home with an integrated garage.
Impressive 10-foot ceilings in the media room, living room, and dining area, with approximately 9-foot ceilings throughout the remaining main living spaces.
8½-foot ceilings on the upper level, providing balanced proportions and everyday comfort.
Striking kitchen featuring a dramatic five-panel patio door, expanded refrigerator space, and a central lunch-style island.
Discrete home office nook set apart from the kitchen area.
Laundry room and powder room thoughtfully located near the kitchen, yet tucked away from main living areas.
Dining room enhanced with custom built-in cabinetry, including dedicated space for a wine cellar, and sharing a three-sided open fireplace with the living room.
Elegant primary suite on the upper level, offering a walk-in closet, a two-sided fireplace, and a built-in media unit.
Access to an outdoor terrace from the upper-level mezzanine.
Small additional bedroom on the upper level, perfectly suited as a nursery or a young child’s bedroom.
Two comfortable bedrooms on the lower level, each connected to a playroom or small lounge area and a shared bathroom.
Partially unfinished basement providing excellent potential for future customization.
Garage with direct access to the home near the kitchen, along with a staircase leading down to the basement.
Plan feature(s)
Fireplace, Balcony 2nd floor, Office / Study / Den, Separate bath and shower, Double sinks, Island, Gound floor laundry room, Ceiling over 8', Master suite upstairs, Walk-in master bed., 2-Story foyer, Game room
Plan architectural style(s)
Similar plans
Previously Viewed Plans
Questions and comments
March 02
Shawn
Good day...please can you send me links of models as the same as this? thanks in advance.
February 20
david
please send me four bed room plan like this secret roofing type
February 20
Customer service
Good day and thank you for taking the time to write
I would be happy to send you links for the type of model that you are looking for but I am not sure what you mean by 'secret roofing type'
Please clarify so that I can send you the proper models.
Thank you
Deb
Thank you for your comment! It must be approved before being put online, please allow a period of 24 hours.
Error with google reCaptcha! Try again
Here is a brief description of our different plan packages. Please select the plan package that suits your needs. You can change the package at the next step, if necessary.
PDF VERSION OF PLAN:
Complete digital version of plan (pdf format) sent by email (original plan format 18" x 24'' or 24" x 36'')
5 copies of plan + PDF:
Includes: 5 copies of plan, plan in PDF format (reduced size version), materials list.
Foundation type
Additional foundation types are available, a fee may apply. Please indicate your choice on the online order form, or to our customer service representative, when placing your house plan order.
If your desired foundation type is not available, please contact our customer service to receive your free plan modification quote.
Explanation of bonus space types
UNFINISHED BONUS ROOM
The bonus rooms are often planned above the garage and are accessible from the house. They are designed to be converted as an office, a laundry area, a bathroom, a library corner or even an additional bedroom for which homeowners must make sure to have a window that complies with current codes & standards.
STORAGE AREA
Often located above the garage, our storage areas are used only as storage and are usually accessible from the garage via a retractable staircase.
Do you like this plan but want it to be modified to suit your needs?
To add a garage, another bedroom, finish the basement or any other modification, click here and let us know about your desired changes and to get your free quote for the modification of your plan.
Conditions of use
Important copyright notice! Please take note of these copyright conditions before printing:
By printing this house plan, cottage or garage or the floorplan(s), you confirm being informed that every house plan on this website is the exclusive property of Drummond House
Plans and is protected by Canadian copyright law. You are aware that these prints cannot be used to build or even obtain a building permit. The graphic representations of these
models are offered by Drummond House Plans for the sole purpose of allowing you to notate modifications of a model and then take it to one of the Drummond House Plans Canadian dealers for
modification of the plan.
The purchase of a house plan, cottage or garage from Drummond House Plans is mandatory if you wish to build any of our models. The plan purchase allows you to build a single unit; you cannot resell or give your plan to anyone once the house, cottage or garage has been built. If you wish to build the same house, cottage or garage more than once, you need to obtain the licence to this effect. Please contact us for more details.
All plans from Drummond House Plans can only be modified by a licensed Drummond House Plan Canadian dealer. If any other business or individual with no affiliation to Drummond House Plans modifies a Drummond House Plan on your behalf, please ensure this business or individual has a licence to modify this specific plan or you will be subject to prosecution on the same level as the business or individual who modified or reproduced the plan.
For more details, do not hesitate to contact u by e-mail or by phone at 1-800-567-1413.
I agree to respect the conditions above to not reproduce, modify or build a model from Drummond House Plans without previously purchasing a complete house plan.












March 02
Shawn
Good day...please can you send me links of models as the same as this? thanks in advance.