There are no shipping fees if you buy one of our 2 plan packages "PDF file format" or "5 sets of blueprints + PDF". Shipping charges may apply if you buy additional sets of blueprints.
House plan Linea (3075)
Contemporary two-story multi-generational plan combining style, comfort and family living
Other useful information on this plan
Contemporary Two-Story Multi-Generational House Plan with Two Separate Units and Customizable Basement
This beautiful two-story multi-generational house plan combines contemporary elegance with practical family living. Its refined architecture showcases a harmonious blend of materials in soft, warm tones, creating a timeless and welcoming look. Designed as a true haven of comfort, it offers two distinct units while encouraging togetherness through carefully planned shared spaces.
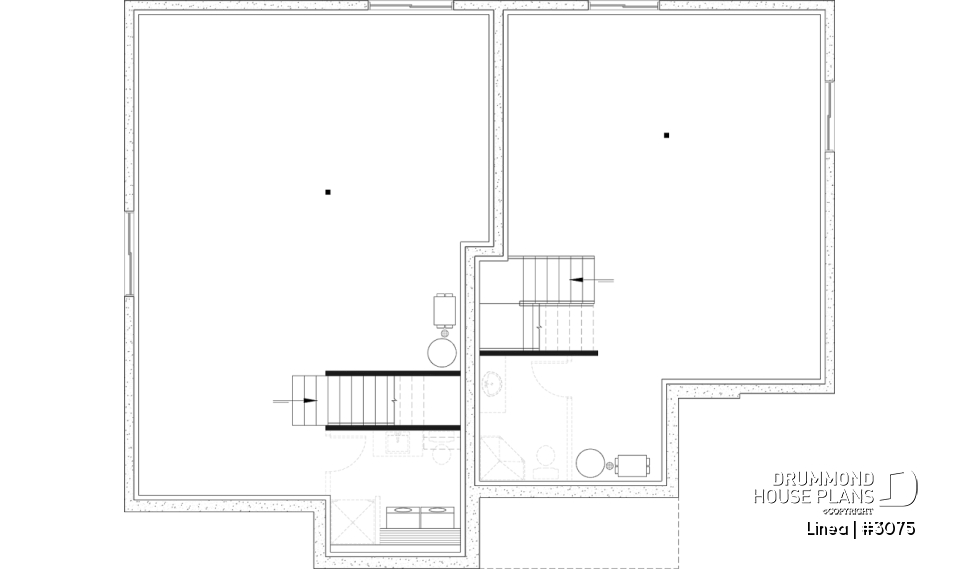
Both units share an unfinished basement — a blank canvas ready to be customized to your needs and lifestyle, whether as additional storage, a workshop, a family room or a guest suite. The common front entrance and covered balcony are perfect for welcoming family and friends and enjoying every season. With 9-foot ceilings on the main floor, each unit feels bright and spacious.
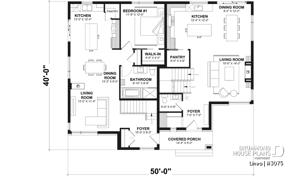
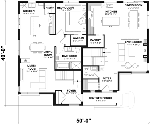
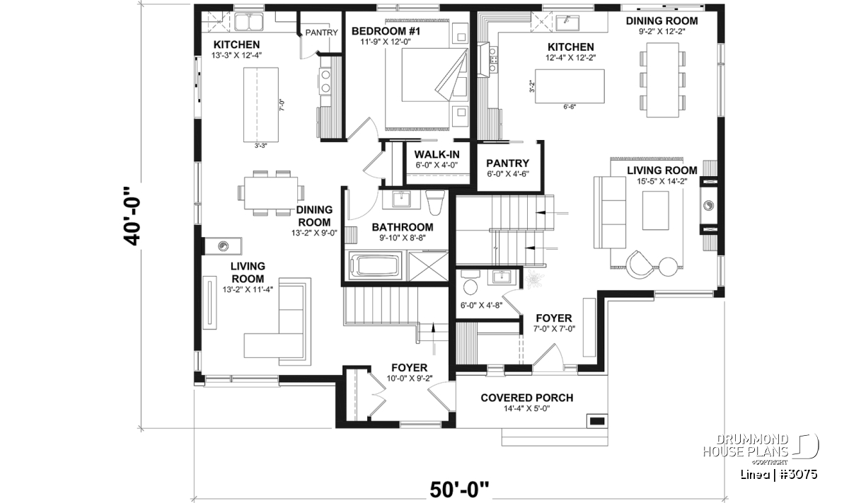
Family side (Unit #1)
The spacious entry features a large practical closet, and a discreet powder room adds comfort and privacy. A bright living room with fireplace invites cozy gatherings. The open-concept kitchen, dining and living area is flooded with natural light — ideal for entertaining. The functional kitchen offers a central island and generous pantry. The stunning master suite includes a large walk-in closet and a luxurious private bathroom with double vanity, separate tub and shower. Three additional bedrooms share a full bathroom, and a large laundry room with built-in sink and ample counter space completes this level.
Grandparents’ side (Unit #2)
The welcoming entry has a convenient closet. The open area features a double-sided fireplace between dining room and living room, creating a warm ambiance. The inviting kitchen is equipped with a central island and integrated pantry. A well-sized bedroom with walk-in closet provides generous storage, while a complete bathroom with separate tub and shower ensures comfort and privacy. A laundry area is planned in the basement for maximum convenience.
This contemporary multi-generational house plan is the ideal choice for combining style, comfort and harmonious family living.
Distinctive elements
Two-story contemporary multi-generational house plan.
A harmonious blend of materials in soft, warm tones creates a timeless look.
Both units share an unfinished basement, ready to be finished according to each family’s needs and lifestyle.
Common front entrance and covered balcony, perfect for enjoying every season.
Each unit benefits from 9' ceilings on the main floor, creating a sense of space and comfort.
Family side (Unit #1):
Spacious entry with large, practical closet.
Conveniently located powder room.
Bright living room with fireplace for cozy gatherings.
Open concept kitchen, dining and living area flooded with natural light.
Functional kitchen with central island and generous pantry.
Beautiful master suite with large walk-in closet and luxurious private bathroom featuring double vanity plus separate tub and shower.
Three additional bedrooms share a full bathroom.
Large laundry room with built-in sink and ample counter space.
Grandparents’ side (Unit #2):
Welcoming entry with handy closet.
Open area with double-sided fireplace between dining room and living room for a warm ambiance.
Inviting kitchen with central island and integrated pantry.
Well-sized bedroom with walk-in closet providing generous storage.
Complete bathroom with separate tub and shower for added comfort.
Laundry area planned in the basement for maximum convenience.
Plan feature(s)
Island, Pantry, Separate bath and shower, Double sinks, Ceiling over 8', Entrance hall, Fireplace, Open floor layout, Second floor laundry room, Master suite upstairs, Walk-in master bed.
Plan architectural style(s)
. Modern / Design, . European, . Transitional, . Modern rustic, . Mediterranean, . Contemporary, . Craftsman / Northwest, Modern Craftsman
Similar plans
Previously Viewed Plans
Thank you for your comment! It must be approved before being put online, please allow a period of 24 hours.
Error with google reCaptcha! Try again
Here is a brief description of our different plan packages. Please select the plan package that suits your needs. You can change the package at the next step, if necessary.
PDF VERSION OF PLAN:
Complete digital version of plan (pdf format) sent by email (original plan format 18" x 24'' or 24" x 36'')
5 copies of plan + PDF:
Includes: 5 copies of plan, plan in PDF format (reduced size version), materials list.
Foundation type
Additional foundation types are available, a fee may apply. Please indicate your choice on the online order form, or to our customer service representative, when placing your house plan order.
If your desired foundation type is not available, please contact our customer service to receive your free plan modification quote.
Explanation of bonus space types
UNFINISHED BONUS ROOM
The bonus rooms are often planned above the garage and are accessible from the house. They are designed to be converted as an office, a laundry area, a bathroom, a library corner or even an additional bedroom for which homeowners must make sure to have a window that complies with current codes & standards.
STORAGE AREA
Often located above the garage, our storage areas are used only as storage and are usually accessible from the garage via a retractable staircase.
Do you like this plan but want it to be modified to suit your needs?
To add a garage, another bedroom, finish the basement or any other modification, click here and let us know about your desired changes and to get your free quote for the modification of your plan.
Conditions of use
Important copyright notice! Please take note of these copyright conditions before printing:
By printing this house plan, cottage or garage or the floorplan(s), you confirm being informed that every house plan on this website is the exclusive property of Drummond House
Plans and is protected by Canadian copyright law. You are aware that these prints cannot be used to build or even obtain a building permit. The graphic representations of these
models are offered by Drummond House Plans for the sole purpose of allowing you to notate modifications of a model and then take it to one of the Drummond House Plans Canadian dealers for
modification of the plan.
The purchase of a house plan, cottage or garage from Drummond House Plans is mandatory if you wish to build any of our models. The plan purchase allows you to build a single unit; you cannot resell or give your plan to anyone once the house, cottage or garage has been built. If you wish to build the same house, cottage or garage more than once, you need to obtain the licence to this effect. Please contact us for more details.
All plans from Drummond House Plans can only be modified by a licensed Drummond House Plan Canadian dealer. If any other business or individual with no affiliation to Drummond House Plans modifies a Drummond House Plan on your behalf, please ensure this business or individual has a licence to modify this specific plan or you will be subject to prosecution on the same level as the business or individual who modified or reproduced the plan.
For more details, do not hesitate to contact u by e-mail or by phone at 1-800-567-1413.
I agree to respect the conditions above to not reproduce, modify or build a model from Drummond House Plans without previously purchasing a complete house plan.








