There are no shipping fees if you buy one of our 2 plan packages "PDF file format" or "5 sets of blueprints + PDF". Shipping charges may apply if you buy additional sets of blueprints.
House plan The Skybridge (2908)
Rustic A-Frame cottage house plan with walkout basement, cathedral ceiling, 3 to 4 bedrooms, fireplace
Other useful information on this plan
Striking four-season rustic chalet house plan
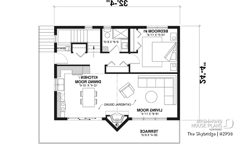
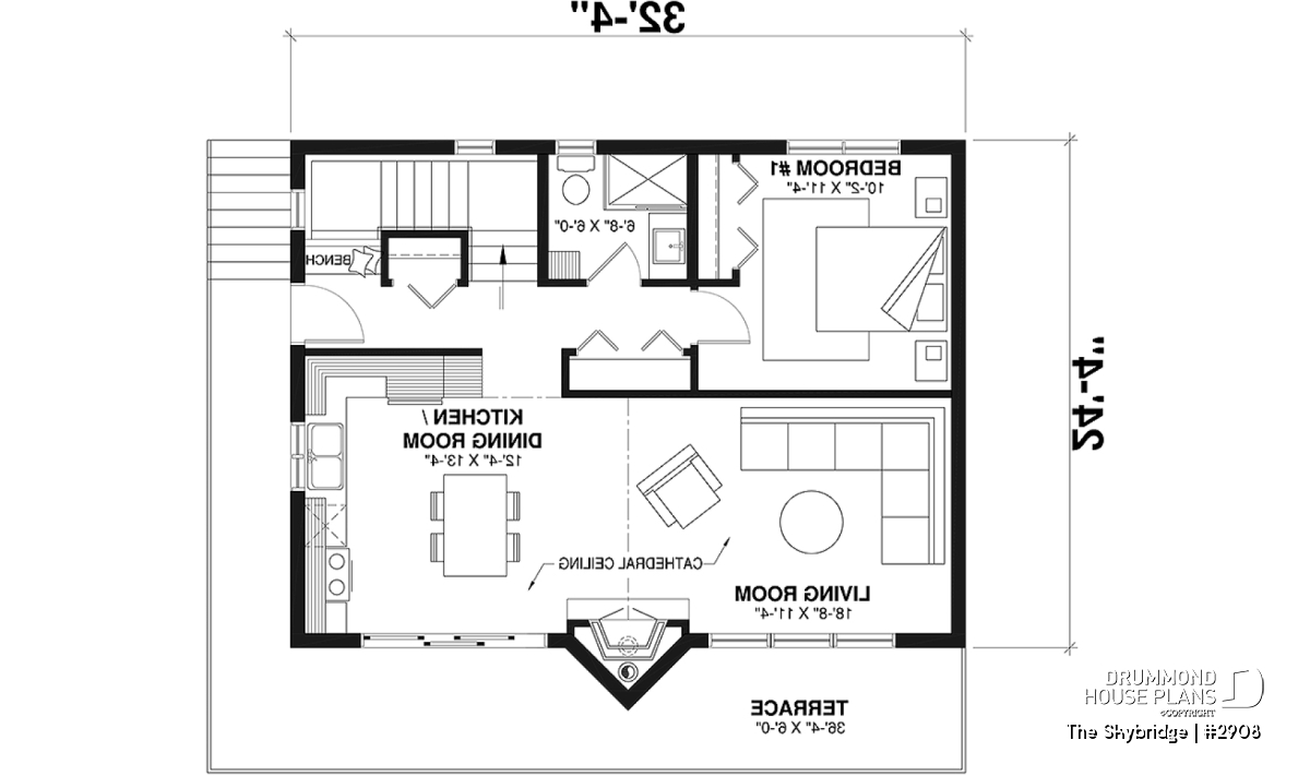
House plan SKYBRIDGE (#2908) offers a country cottage-style house with huge windows and 1,574 square feet.
The entrance, located on the ground floor, is a large mudroom with space for a bench. This entrance opens to the staircase leading to the basement on the walkout basement, and the hall which leads to a bedroom and to the bathroom including a bath shower. Opposite, a large wardrobe.
In the common living area, the kitchen, with a double sink, is complete and overlooks the dining room as well as the living room. This large open-concept space offers breathtaking views of nature with huge windows and a triple patio door. Giving the impression of cohabiting with nature, with its sublime gallery offering a panoramic view. As a bonus, a huge central fire place becomes the focal point of the ground floor.
This view can be enjoyed year-round. No matter the weather, it will be good to meet at the end of the day in this magnificent cottage. Whether in summer to enjoy the terrace, or in winter to enjoy the beautiful landscape with a superb fireplace where comfort and atmosphere are essential.
The architecture of the basement is just as impressive by offering direct access to the outside, through a large triple glazed patio door. Upon entering, a cozy living room with a second fireplace offers an atmosphere just as warm as on the upper ground floor. At the exit of the living room, there is the staircase leading to the top and a bonus space. This space offers a number of options that adapt to your needs, you can convert it into an office for teleworking as well as a storage room. On the other side, two good-sized bedrooms and a l bathroom including a shower and laundry facilities, complete this magnificent four-season chalet.
With SKYBRIDGE 2(#4908), it is possible to disconnect in a stylish chalet.
Distinctive elements
Cathedral ceiling and fireplace to living room, dining room and kitchen area. Bedroom #1 on 1st level. Family room and 2 secondary bedrooms on lower level.
Plan feature(s)
Fireplace, Access to basement from exterior, Open floor layout, Warparound, Panoramic view, Cathedral ceiling, Wood stove
Plan architectural style(s)
. Cottage, chalet, cabin, . Vacation and waterfront, . Ski chalets, . American, . A-Frame, . Rustic, . Scandinavian, . Mountain, . Craftsman / Northwest, . Modern rustic
Similar plans
Previously Viewed Plans
Thank you for your comment! It must be approved before being put online, please allow a period of 24 hours.
Error with google reCaptcha! Try again
Here is a brief description of our different plan packages. Please select the plan package that suits your needs. You can change the package at the next step, if necessary.
PDF VERSION OF PLAN:
Complete digital version of plan (pdf format) sent by email (original plan format 18" x 24'' or 24" x 36'')
5 copies of plan + PDF:
Includes: 5 copies of plan, plan in PDF format (reduced size version), materials list.
Foundation type
Additional foundation types are available, a fee may apply. Please indicate your choice on the online order form, or to our customer service representative, when placing your house plan order.
If your desired foundation type is not available, please contact our customer service to receive your free plan modification quote.
Explanation of bonus space types
UNFINISHED BONUS ROOM
The bonus rooms are often planned above the garage and are accessible from the house. They are designed to be converted as an office, a laundry area, a bathroom, a library corner or even an additional bedroom for which homeowners must make sure to have a window that complies with current codes & standards.
STORAGE AREA
Often located above the garage, our storage areas are used only as storage and are usually accessible from the garage via a retractable staircase.
Do you like this plan but want it to be modified to suit your needs?
To add a garage, another bedroom, finish the basement or any other modification, click here and let us know about your desired changes and to get your free quote for the modification of your plan.
Conditions of use
Important copyright notice! Please take note of these copyright conditions before printing:
By printing this house plan, cottage or garage or the floorplan(s), you confirm being informed that every house plan on this website is the exclusive property of Drummond House
Plans and is protected by Canadian copyright law. You are aware that these prints cannot be used to build or even obtain a building permit. The graphic representations of these
models are offered by Drummond House Plans for the sole purpose of allowing you to notate modifications of a model and then take it to one of the Drummond House Plans Canadian dealers for
modification of the plan.
The purchase of a house plan, cottage or garage from Drummond House Plans is mandatory if you wish to build any of our models. The plan purchase allows you to build a single unit; you cannot resell or give your plan to anyone once the house, cottage or garage has been built. If you wish to build the same house, cottage or garage more than once, you need to obtain the licence to this effect. Please contact us for more details.
All plans from Drummond House Plans can only be modified by a licensed Drummond House Plan Canadian dealer. If any other business or individual with no affiliation to Drummond House Plans modifies a Drummond House Plan on your behalf, please ensure this business or individual has a licence to modify this specific plan or you will be subject to prosecution on the same level as the business or individual who modified or reproduced the plan.
For more details, do not hesitate to contact u by e-mail or by phone at 1-800-567-1413.
I agree to respect the conditions above to not reproduce, modify or build a model from Drummond House Plans without previously purchasing a complete house plan.









February 07
rich rembisz
I like this plan but don't need 3 bedrooms. would like the master and master bath downstairs bigger leaving the loft for pseudo bedroom used for art and music room