There are no shipping fees if you buy one of our 2 plan packages "PDF file format" or "5 sets of blueprints + PDF". Shipping charges may apply if you buy additional sets of blueprints.
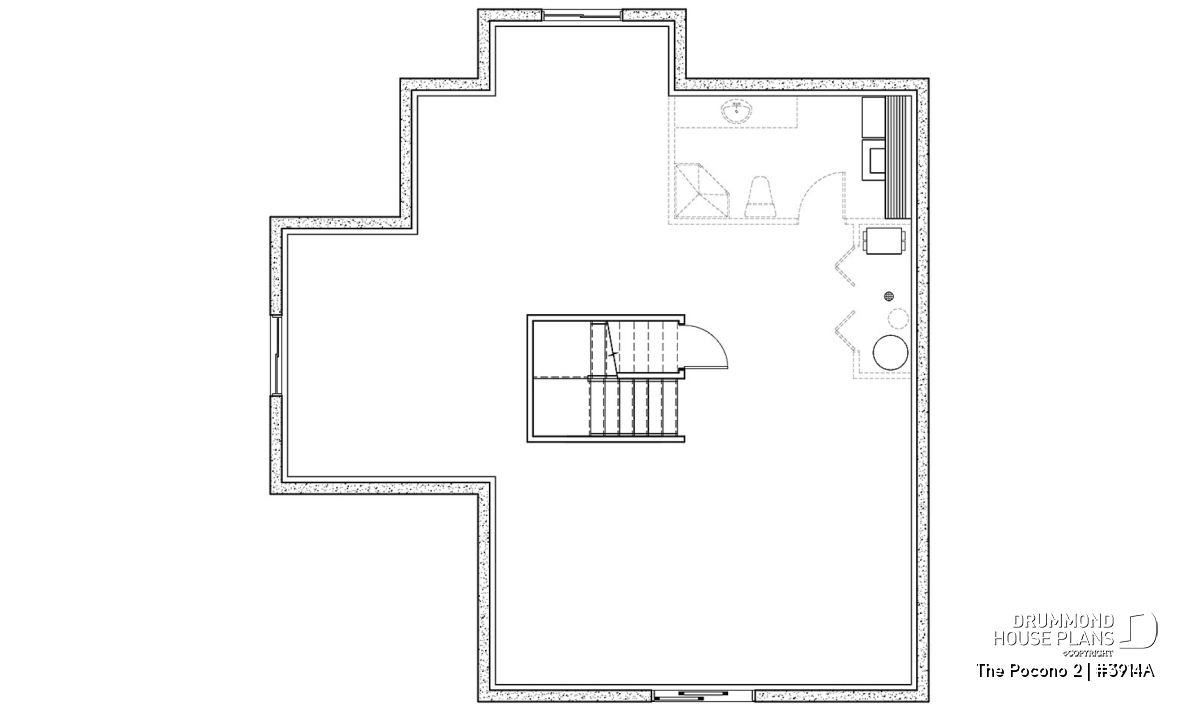
House plan The Pocono 2 (3914A)
Open floor plan lakefront cottage house plan with large deck, master and living with fireplace
Other useful information on this plan
Panoramic cottage house plan with great open floor plans
The designer has thought of everything to make this stunning chalet an exceptional place from which to enjoy breathtaking views on a waterfront or hillside property.
The wrap around porch with access to the main foyer in front leads into a 12’ x 16’ screened in porch that has access to the superb deck, spanning the entire rear of the home, and a separate door to the kitchen dining area inside to enhance the ease with which outdoor meals can be enjoyed.
A two sided fireplace adds coziness to the central living room and offers a unique cachet to the main floor master bedroom, with walk-in closet and its own access to the rear deck. The well appointed bathroom includes a corner bath, corner shower and a double vanity along with a linen closet. The walk-in pantry in the kitchen enhances the uninterrupted ‘flow’ of this open floor plan. 9’ ceilings throughout the main level and the walk-in closet/mud-room off of the entrance foyer are practical features that are sure to enhance the livability of this model.
Two large bedrooms share a full bathroom upstairs and are complete with ample storage space that includes a walk-in closet in one, his/hers closets and a separate sitting area in the other.
Distinctive elements
9' ceiling on 1st level. Open activity area. Master bedroom with a walk-in closet and bathroom. Storage space in foyer. 2 bedrooms on 2nd level with convenient storage.
Plan feature(s)
Fireplace, Open floor layout, Mud room, Walk-in master bed., Sloped ceiling, Ceiling over 8', Pantry, Island, Panoramic view, Screened porch, Master suite on main, Separate bath and shower, Double sinks
Plan architectural style(s)
. Cottage, chalet, cabin, . Country, . Vacation and waterfront, . Ski chalets, . Rustic, . American, . Traditional, . A-Frame, . Mountain
Similar plans
Previously Viewed Plans
Questions and comments
May 25
Alex
I like this plan over the other pocono plans, but have two quick questions. 1) Is there no laundry room in the pocono 2? 2) What is the width of the upstairs bedrooms with an 8 foot height?
May 25
Customer service
Good afternoon,
the laundry would be located in the walkout basement.
The size of the second floor bedrooms are:
12' x 13'
AND
16'4" x 12'
We can make changes to any house plan in our plan collection. Let us know if you have changes you would like us to do and we can provide a free cost estimate for those changes.
Thanks!
April 08
flint higgins
i need to purchase the materials list on this plan. W3914a today hopefully.
April 08
Customer service
Good day Mr. Higgins and thank you for your interest in this plan
We can sell you the materials list in PDF format to save time and the expense of shipping paper copies, all you need to do is call during regular business hours at 1 (800)567-5267 and we will be happy to process your order.
Regards
Deb
February 20
Nathalie
Good afternoon,
This is a beautiful house. We love the layout but we would prefer to have the two bedrooms (shown on the 2nd floor) in the basement instead. Do you have a model that has the same 1st level layout but only one floor instead of two?
Thank you,
Nathalie
February 20
Customer service
Good day and thank you for taking the time to write.
Although we do not have a stock plan with the features that you require, we would be happy to provide a free estimate for the customization of this beautiful model within two business days after receipt of this on line request.
Please let me know if I can further assist you
Regards
Deb
November 12
GREG AGNEW
CAN YOU BUILD A TREY CEILING IN THE MASTER BEDROOM WITH THIS PLAN?
November 12
Customer service
Good day Mr. Agnew and thank you for your interest in this plan.
There would be no problem building a trey ceiling in the master bedroom and it can be done on site so plan modification is not necessary.
Please let me know if you have any other questions or comments.
Regards
Deb
February 24
Jane Scott
If the plan was ordered with slab foundation could it be changed to put laundry and/or a two piece bath at the front entrance.
February 24
Customer service
Good day Ms. Scott and thank you for taking the time to write.
This plan could be customized to change the bathroom at the front entrance according to your requirements and we would be happy to send you a free estimate for the modification to this plan within two business days after receipt of this on line form
Please let me know if I can further assist you
Regards
Deb
Thank you for your comment! It must be approved before being put online, please allow a period of 24 hours.
Error with google reCaptcha! Try again
Here is a brief description of our different plan packages. Please select the plan package that suits your needs. You can change the package at the next step, if necessary.
PDF VERSION OF PLAN:
Complete digital version of plan (pdf format) sent by email (original plan format 18" x 24'' or 24" x 36'')
5 copies of plan + PDF:
Includes: 5 copies of plan, plan in PDF format (reduced size version), materials list.
Foundation type
Additional foundation types are available, a fee may apply. Please indicate your choice on the online order form, or to our customer service representative, when placing your house plan order.
If your desired foundation type is not available, please contact our customer service to receive your free plan modification quote.
Explanation of bonus space types
UNFINISHED BONUS ROOM
The bonus rooms are often planned above the garage and are accessible from the house. They are designed to be converted as an office, a laundry area, a bathroom, a library corner or even an additional bedroom for which homeowners must make sure to have a window that complies with current codes & standards.
STORAGE AREA
Often located above the garage, our storage areas are used only as storage and are usually accessible from the garage via a retractable staircase.
Do you like this plan but want it to be modified to suit your needs?
To add a garage, another bedroom, finish the basement or any other modification, click here and let us know about your desired changes and to get your free quote for the modification of your plan.
Conditions of use
Important copyright notice! Please take note of these copyright conditions before printing:
By printing this house plan, cottage or garage or the floorplan(s), you confirm being informed that every house plan on this website is the exclusive property of Drummond House
Plans and is protected by Canadian copyright law. You are aware that these prints cannot be used to build or even obtain a building permit. The graphic representations of these
models are offered by Drummond House Plans for the sole purpose of allowing you to notate modifications of a model and then take it to one of the Drummond House Plans Canadian dealers for
modification of the plan.
The purchase of a house plan, cottage or garage from Drummond House Plans is mandatory if you wish to build any of our models. The plan purchase allows you to build a single unit; you cannot resell or give your plan to anyone once the house, cottage or garage has been built. If you wish to build the same house, cottage or garage more than once, you need to obtain the licence to this effect. Please contact us for more details.
All plans from Drummond House Plans can only be modified by a licensed Drummond House Plan Canadian dealer. If any other business or individual with no affiliation to Drummond House Plans modifies a Drummond House Plan on your behalf, please ensure this business or individual has a licence to modify this specific plan or you will be subject to prosecution on the same level as the business or individual who modified or reproduced the plan.
For more details, do not hesitate to contact u by e-mail or by phone at 1-800-567-1413.
I agree to respect the conditions above to not reproduce, modify or build a model from Drummond House Plans without previously purchasing a complete house plan.





















May 25
Alex
I like this plan over the other pocono plans, but have two quick questions. 1) Is there no laundry room in the pocono 2? 2) What is the width of the upstairs bedrooms with an 8 foot height?