There are no shipping fees if you buy one of our 2 plan packages "PDF file format" or "5 sets of blueprints + PDF". Shipping charges may apply if you buy additional sets of blueprints.
House plan Ripley 2 (3152-V1)
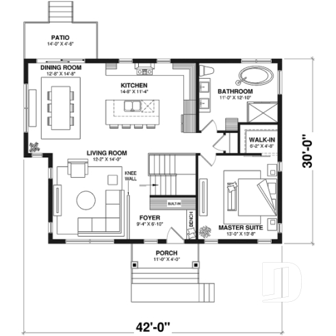
Single-storey home with optional finished basement ($) for up to 4 beds, 2 baths and 2 living rooms
Virtual visit
Other useful information on this plan
Charming rustic family home offering up to 4 bedrooms and 2 living rooms!
House plan Ripley 2 (# 3152-V1) offers 1204 sq.ft. on each of the floors. It is in fact a redeveloped and enlarged version of the original Ripley plan (3152-BH) which only offered 2 bedrooms versus 4 for this one, if you finished the daylight basement.
The ground floor opens onto a beautiful entrance offering a built-in section serving as a coat closet or storage, as well as a bench, practical for packages or simply sitting on!
The entire left sector of the house is open concept, making this plan the ideal set-up to receive family and friends. Note that the kitchen and dining room area allow for much brightness and would be perfect for an east-south orientation, otherwise... the plan is also available in an "reversed" version, allowing you to benefit from maximum sunlight .
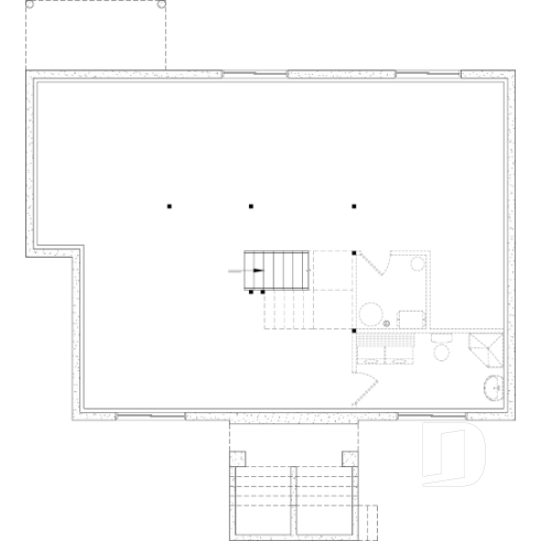
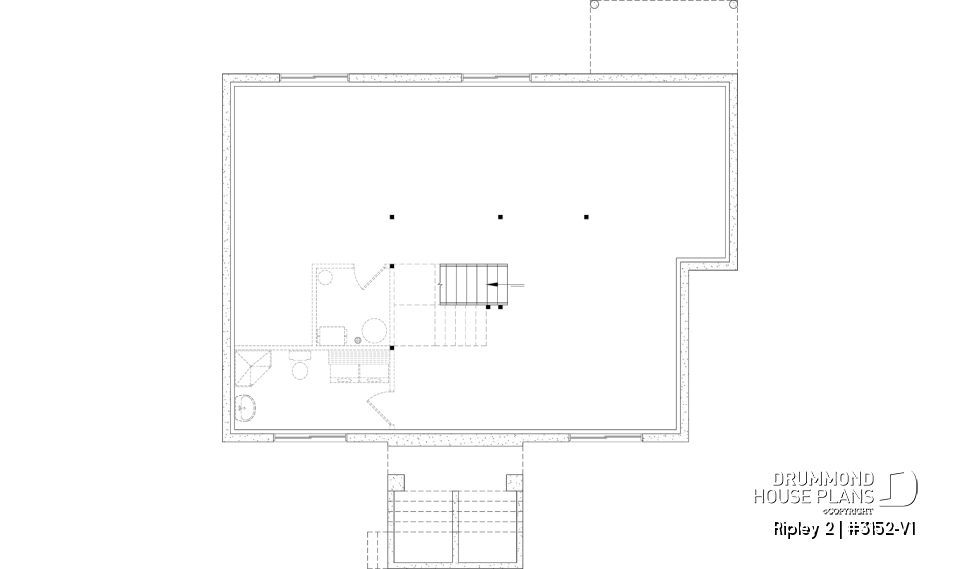
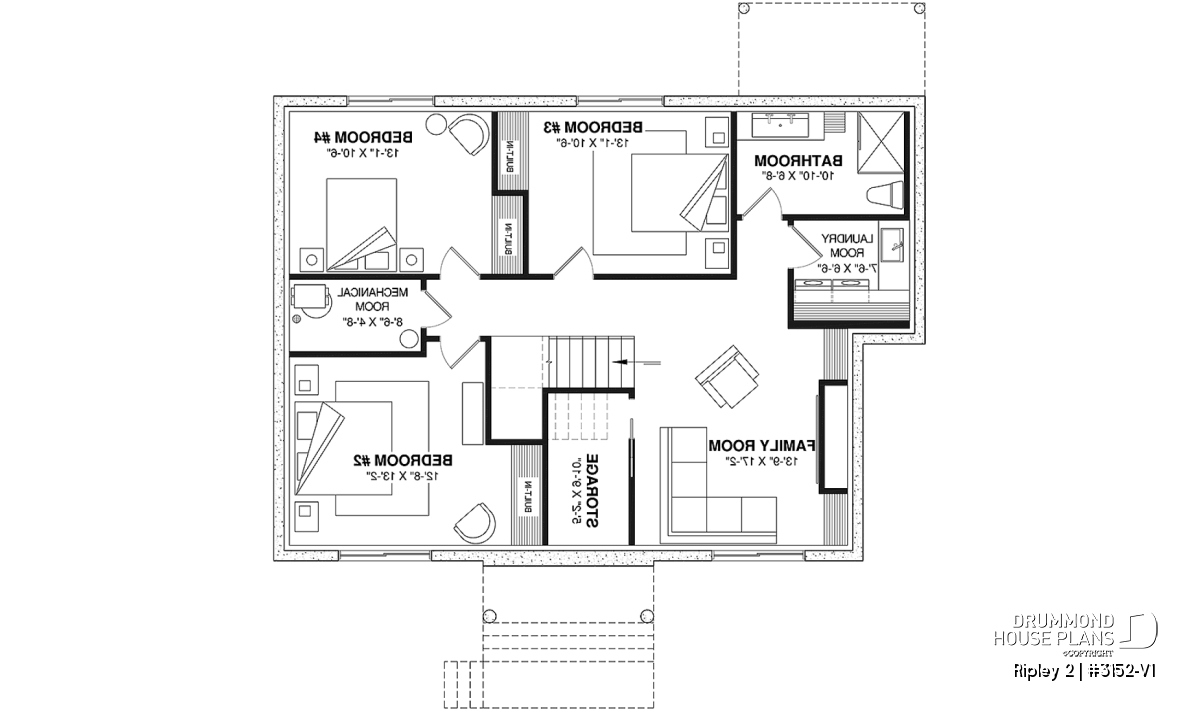
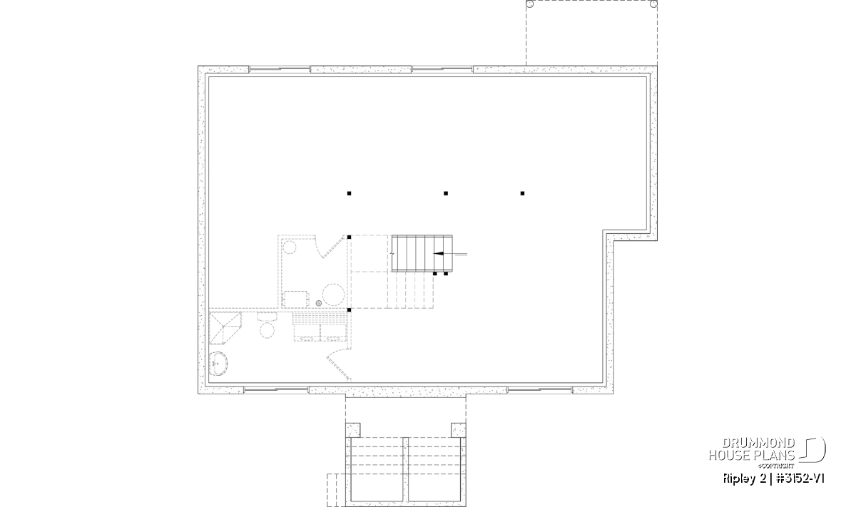
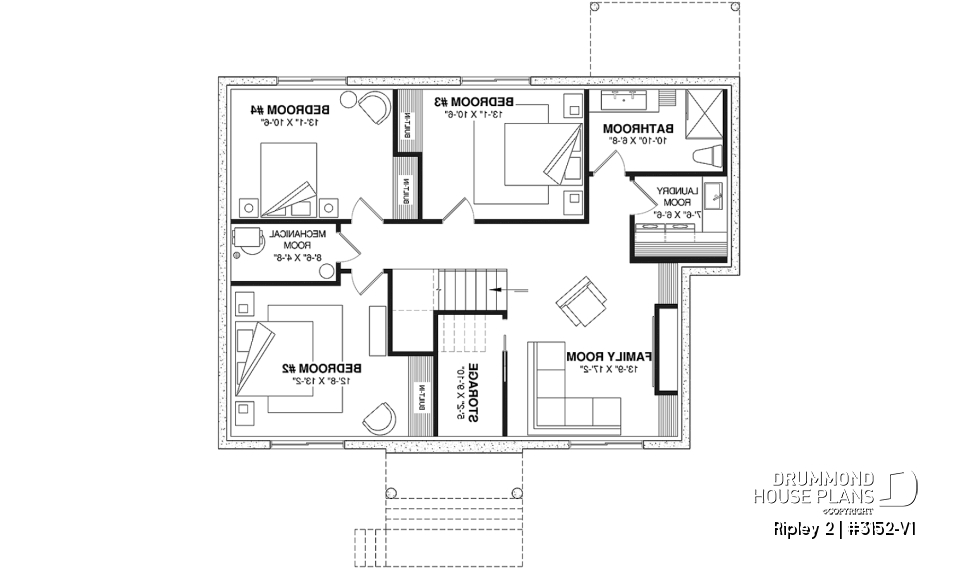
The fully finished basement (*optional) will be perfect for your children and teenagers. There are 3 bedrooms which share a shower room. In addition, a family room, ideal for gaming, is centrally located and of good size. This floor is completed by a shower room as well as a mechanical room and storage.
The versatile layout of the floors of this house will allow you to watch your children grow up, during the different stages of their lives!
---
*If you wish to purchase the finished basement plan, as presented on this plan page, please select this option in the shopping cart, in the "Selection of foundation type" section. If you do not select this option, you will receive the unfinished full basement option, at no extra charge.
Distinctive elements
Modern Farmhouse style bungalow with *optionnal ($) fully finished basement.
Entrance with built-in furniture and a bench.
4 bedrooms in total, if you finish the basement, ideal for families with older children as 3 of the bedrooms are in the daylight basement.
Parents' bedroom on the main floor with access to a large full bathroom with 2 sinks, in addition to a separate bath and shower.
Laundry room in the basement.
Family room in the basement.
Dining room open to the kitchen and living room.
Versatile plan allowing the layout of an office or a gym, using one of the 4 bedrooms, for example.
---
*If you wish to purchase the finished basement plan, as presented on this plan page, please select this option in the shopping cart, in the "Selection of foundation type" section. If you do not select this option, you will receive the unfinished full basement option, at no extra charge.
Plan feature(s)
Open floor layout, Separate bath and shower, Island, Built-ins, Entrance hall, Walk-in master bed., Bench seat(s), Double sinks, Builder, Self-Build, Ceiling over 8'
Plan architectural style(s)
. Transitional, . Craftsman / Northwest, Modern farmhouse, . Country, . Modern rustic, . Ranch, . Rustic, . American
Similar plans
Previously Viewed Plans
Thank you for your comment! It must be approved before being put online, please allow a period of 24 hours.
Error with google reCaptcha! Try again
Here is a brief description of our different plan packages. Please select the plan package that suits your needs. You can change the package at the next step, if necessary.
PDF VERSION OF PLAN:
Complete digital version of plan (pdf format) sent by email (original plan format 18" x 24'' or 24" x 36'')
5 copies of plan + PDF:
Includes: 5 copies of plan, plan in PDF format (reduced size version), materials list.
Foundation type
Additional foundation types are available, a fee may apply. Please indicate your choice on the online order form, or to our customer service representative, when placing your house plan order.
If your desired foundation type is not available, please contact our customer service to receive your free plan modification quote.
Explanation of bonus space types
UNFINISHED BONUS ROOM
The bonus rooms are often planned above the garage and are accessible from the house. They are designed to be converted as an office, a laundry area, a bathroom, a library corner or even an additional bedroom for which homeowners must make sure to have a window that complies with current codes & standards.
STORAGE AREA
Often located above the garage, our storage areas are used only as storage and are usually accessible from the garage via a retractable staircase.
Do you like this plan but want it to be modified to suit your needs?
To add a garage, another bedroom, finish the basement or any other modification, click here and let us know about your desired changes and to get your free quote for the modification of your plan.
Conditions of use
Important copyright notice! Please take note of these copyright conditions before printing:
By printing this house plan, cottage or garage or the floorplan(s), you confirm being informed that every house plan on this website is the exclusive property of Drummond House
Plans and is protected by Canadian copyright law. You are aware that these prints cannot be used to build or even obtain a building permit. The graphic representations of these
models are offered by Drummond House Plans for the sole purpose of allowing you to notate modifications of a model and then take it to one of the Drummond House Plans Canadian dealers for
modification of the plan.
The purchase of a house plan, cottage or garage from Drummond House Plans is mandatory if you wish to build any of our models. The plan purchase allows you to build a single unit; you cannot resell or give your plan to anyone once the house, cottage or garage has been built. If you wish to build the same house, cottage or garage more than once, you need to obtain the licence to this effect. Please contact us for more details.
All plans from Drummond House Plans can only be modified by a licensed Drummond House Plan Canadian dealer. If any other business or individual with no affiliation to Drummond House Plans modifies a Drummond House Plan on your behalf, please ensure this business or individual has a licence to modify this specific plan or you will be subject to prosecution on the same level as the business or individual who modified or reproduced the plan.
For more details, do not hesitate to contact u by e-mail or by phone at 1-800-567-1413.
I agree to respect the conditions above to not reproduce, modify or build a model from Drummond House Plans without previously purchasing a complete house plan.


















