There are no shipping fees if you buy one of our 2 plan packages "PDF file format" or "5 sets of blueprints + PDF". Shipping charges may apply if you buy additional sets of blueprints.
House plan Havre (90117)
Eco-friendly house plan with one bedroom, beautiful natural light in the back, and upstairs mezzanine
Other useful information on this plan
Eco-friendly house plan offering a beautiful and private master bedroom upstairs!
It is in a spirit of simplicity and peace that this chalet was created. Who doesn’t want to have their own little haven in the mountains, in the forest or on the edge of a lake to take refuge in?
The large windows at the rear of the chalet provide a south-facing courtyard. The fenestration was calculated to respect the principles of passive solar energy while maximizing natural ventilation. At the front there is practical exterior storage for storing sports or outdoor equipment.
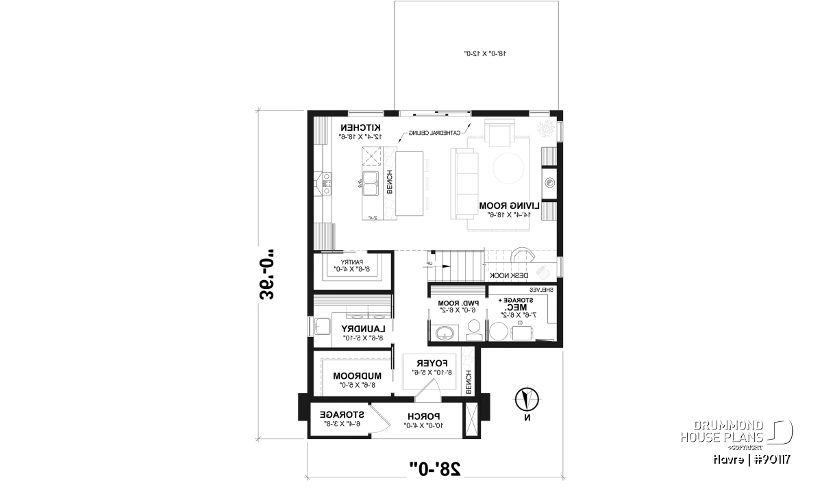
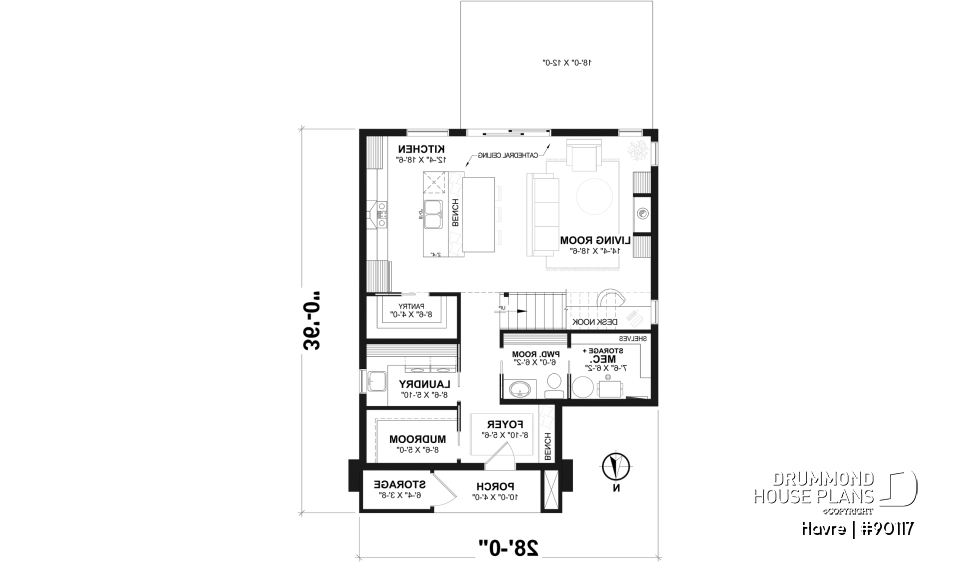
As you enter Havre, you will find the large walk-in coat closet on the right. The entire back of the chalet is reserved for the open area which includes the kitchen, dining room and living room. Equipped with a cathedral ceiling, this space will be submerged in delightful natural light coming directly from the south.
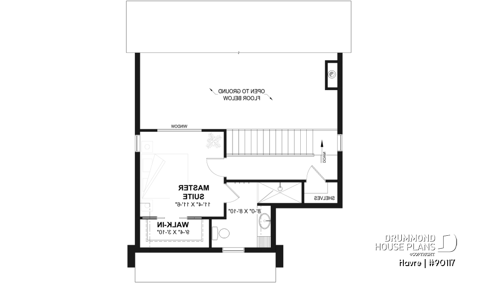
Upstairs, a beautiful master suite with private bathroom and walk-in closet awaits you!
Havre is a small chalet that will allow you to enjoy every moment. Thanks to its simple shape, well-thought-out spaces and the feeling of lightness that reigns in this chalet, you will want to be there all year round.
ECO-FRIENDLY HOUSE PLAN
This house plan is part of our “Eco-friendly house plan collection” and here is what distinguishes all the plans included in this selection:
Sun:
The orientation of the house according to the sun’s daily path, combined with the thermal capture of the sun's rays using optimal fenestration, minimizing heating costs and maximizing the presence of natural light.
Simplicity:
A house with modest volumes ensuring simplified construction, while favoring the maximization of interior spaces, to reduce the number of square feet and the construction cost.
Sound Mind & Body:
A home designed to promote the well-being and health of its occupants by being well ventilated, using durable and non-toxic materials (steel, wood, lightweight cladding, fiber cement, among others) and maximizing natural light.
Distinctive elements
Minimalist and **eco-friendly Scandinavian cottage house plan.
Superb windows at the rear, throughout the activity center.
Master bedroom upstairs, on the mezzanine, with private bathroom and walk-in closet.
Kitchen Island backed by a bench, serving as the main table for meals.
Living room open to the kitchen, and with ceilings of nearly 18' high.
Half bath with laundry room area.
Large coat closet at the front entrance.
Foundation included: floating slab. Other foundation types available.
---
This house plan is part of our “Eco-friendly house plan’ collection” and here is what distinguishes all the plans included in this selection:
SUN:
The orientation of the house according to the sun’s daily path, combined with the thermal capture of the sun's rays using optimal fenestration, minimizing heating costs and maximizing the presence of natural light.
SIMPLICITY:
A house with modest volumes ensuring simplified construction, while favoring the maximization of interior spaces, to reduce the number of square feet and the construction cost.
SOUND MIND & BODY:
A home designed to promote the well-being and health of its occupants by being well ventilated, using durable and non-toxic materials (steel, wood, lightweight cladding, fiber cement, among others) and maximizing natural light.
Plan feature(s)
Bench seat(s), Mezzanine, Open floor layout, Panoramic view, Island, Built-ins, Cathedral ceiling, Fireplace, Walk-in master bed., Gound floor laundry room, Mud room, Pantry, Planning desk, Master suite upstairs
Plan architectural style(s)
. Scandinavian, . Cottage, chalet, cabin, Trending, . Ski chalets, . Vacation and waterfront, . Craftsman / Northwest, . Contemporary
Similar plans
Previously Viewed Plans
Thank you for your comment! It must be approved before being put online, please allow a period of 24 hours.
Error with google reCaptcha! Try again
Here is a brief description of our different plan packages. Please select the plan package that suits your needs. You can change the package at the next step, if necessary.
PDF VERSION OF PLAN:
Complete digital version of plan (pdf format) sent by email (original plan format 18" x 24'' or 24" x 36'')
5 copies of plan + PDF:
Includes: 5 copies of plan, plan in PDF format (reduced size version), materials list.
Foundation type
Additional foundation types are available, a fee may apply. Please indicate your choice on the online order form, or to our customer service representative, when placing your house plan order.
If your desired foundation type is not available, please contact our customer service to receive your free plan modification quote.
Explanation of bonus space types
UNFINISHED BONUS ROOM
The bonus rooms are often planned above the garage and are accessible from the house. They are designed to be converted as an office, a laundry area, a bathroom, a library corner or even an additional bedroom for which homeowners must make sure to have a window that complies with current codes & standards.
STORAGE AREA
Often located above the garage, our storage areas are used only as storage and are usually accessible from the garage via a retractable staircase.
Do you like this plan but want it to be modified to suit your needs?
To add a garage, another bedroom, finish the basement or any other modification, click here and let us know about your desired changes and to get your free quote for the modification of your plan.
Conditions of use
Important copyright notice! Please take note of these copyright conditions before printing:
By printing this house plan, cottage or garage or the floorplan(s), you confirm being informed that every house plan on this website is the exclusive property of Drummond House
Plans and is protected by Canadian copyright law. You are aware that these prints cannot be used to build or even obtain a building permit. The graphic representations of these
models are offered by Drummond House Plans for the sole purpose of allowing you to notate modifications of a model and then take it to one of the Drummond House Plans Canadian dealers for
modification of the plan.
The purchase of a house plan, cottage or garage from Drummond House Plans is mandatory if you wish to build any of our models. The plan purchase allows you to build a single unit; you cannot resell or give your plan to anyone once the house, cottage or garage has been built. If you wish to build the same house, cottage or garage more than once, you need to obtain the licence to this effect. Please contact us for more details.
All plans from Drummond House Plans can only be modified by a licensed Drummond House Plan Canadian dealer. If any other business or individual with no affiliation to Drummond House Plans modifies a Drummond House Plan on your behalf, please ensure this business or individual has a licence to modify this specific plan or you will be subject to prosecution on the same level as the business or individual who modified or reproduced the plan.
For more details, do not hesitate to contact u by e-mail or by phone at 1-800-567-1413.
I agree to respect the conditions above to not reproduce, modify or build a model from Drummond House Plans without previously purchasing a complete house plan.







