There are no shipping fees if you buy one of our 2 plan packages "PDF file format" or "5 sets of blueprints + PDF". Shipping charges may apply if you buy additional sets of blueprints.
House plan Freya (3733)
Minimalist Scandinavian style home with lots of amenities! 3 to 5 beds, cathedral, optional finished basement
Other useful information on this plan
Modern Scandinavian home design, 3 to 5 bedrooms including a stunning master suite!
Inspired by Nordic architecture, this modern Scandinavian-style home blends simplicity, natural warmth, and functionality. With its clean lines, abundant light, and open spaces, it offers a perfect balance between modern comfort and timeless elegance.
The main floor features 9-foot ceilings that enhance the sense of openness and brightness throughout. In the dining area, a striking 15-foot cathedral ceiling creates an airy and impressive ambiance — a true architectural highlight. The covered front porch leads into a welcoming entry vestibule with storage, designed for everyday convenience and family living.
Bright and Functional Living Spaces
At the heart of the home, the modern kitchen stands out with its large island and walk-in pantry, offering both beauty and practicality. Open on one side to the dining room and on the other to the living area, this layout ensures smooth flow between spaces. The living room, featuring a central fireplace and large windows overlooking the covered rear terrace, provides a warm and inviting atmosphere ideal for family gatherings.
A family room adds an extra layer of comfort, with a central fireplace and built-in shelving on each side — perfect for books, décor, or cherished memories. A cozy built-in bench, located halfway between the main and upper floors, offers a charming nook for reading or relaxation.
Comfort and Privacy Upstairs
The primary suite serves as a peaceful retreat, featuring a freestanding tub, separate shower, and a walk-in closet. Two secondary bedrooms share a modern bathroom, while a convenient laundry room completes the upper level.
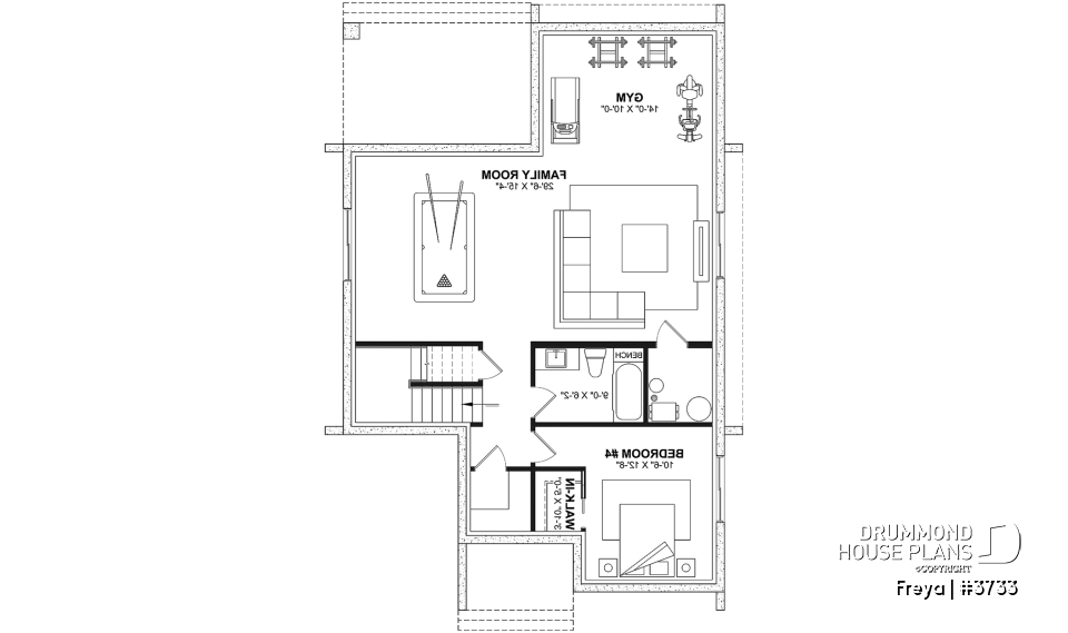
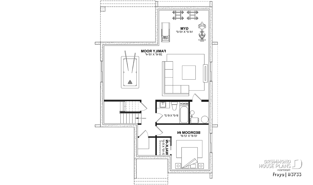
Versatile Basement and Outdoor Living
The *finished basement includes (optional $) a guest bedroom, bathroom, family room, home gym, and ample storage. The 15'6" x 10' covered rear terrace provides the perfect outdoor space for relaxing or entertaining in any season.
Combining clean Scandinavian lines, warm textures, and modern functionality, this home offers a lifestyle that’s both refined and inviting — an ideal choice for families seeking beauty, comfort, and balance.
---
*If you wish to purchase the finished basement plan, as presented on this plan page, please select this option in the shopping cart, in the "Selection of foundation type" section. If you do not select this option, you will receive the unfinished full basement option, at no extra charge.
Distinctive elements
Scandinavian inspired home.
Nine-foot ceilings throughout the main floor, except in the dining room, where a 15-foot cathedral ceiling adds a striking touch.
Covered front porch and a practical entryway with a closet.
Convenient office (or bedroom #5) located near the main entrance and powder room.
Functional kitchen with a large central island and walk-in pantry, open to the dining area on one side and the living room on the other.
Bright living room with a fireplace and large windows overlooking the rear terrace.
Spectacular dining room with a cathedral ceiling and direct access to the covered terrace.
Warm family room featuring a central fireplace with built-in shelves on each side.
Charming built-in bench halfway between the main floor and the upper level.
Primary suite offering a relaxing space with a bathtub, separate shower, and walk-in closet.
Two secondary bedrooms upstairs share a modern bathroom with shower.
Fully equipped laundry room conveniently located on the upper level.
Unfinished basement.
---
*Finished basement (optional):
Fully finished basement including a guest bedroom, bathroom, family room, gym, and storage area.
Beautiful covered rear terrace measuring 15'6" x 10', perfect for enjoying the outdoors in any weather.
---
*If you wish to purchase the finished basement plan, as presented on this plan page, please select this option in the shopping cart, in the "Selection of foundation type" section. If you do not select this option, you will receive the unfinished full basement option, at no extra charge.
Plan feature(s)
Panoramic view, Second floor laundry room, Master suite upstairs, Mud room, Deck, Pantry, Walk-in master bed., Separate bath and shower, Fireplace, Double sinks, Bench seat(s), Game room, Office / Study / Den, Shelves
Plan architectural style(s)
. Scandinavian, . Cottage, chalet, cabin, . Modern / Design, . Vacation and waterfront, . Contemporary
Similar plans
Previously Viewed Plans
Thank you for your comment! It must be approved before being put online, please allow a period of 24 hours.
Error with google reCaptcha! Try again
Here is a brief description of our different plan packages. Please select the plan package that suits your needs. You can change the package at the next step, if necessary.
PDF VERSION OF PLAN:
Complete digital version of plan (pdf format) sent by email (original plan format 18" x 24'' or 24" x 36'')
5 copies of plan + PDF:
Includes: 5 copies of plan, plan in PDF format (reduced size version), materials list.
Foundation type
Additional foundation types are available, a fee may apply. Please indicate your choice on the online order form, or to our customer service representative, when placing your house plan order.
If your desired foundation type is not available, please contact our customer service to receive your free plan modification quote.
Explanation of bonus space types
UNFINISHED BONUS ROOM
The bonus rooms are often planned above the garage and are accessible from the house. They are designed to be converted as an office, a laundry area, a bathroom, a library corner or even an additional bedroom for which homeowners must make sure to have a window that complies with current codes & standards.
STORAGE AREA
Often located above the garage, our storage areas are used only as storage and are usually accessible from the garage via a retractable staircase.
Do you like this plan but want it to be modified to suit your needs?
To add a garage, another bedroom, finish the basement or any other modification, click here and let us know about your desired changes and to get your free quote for the modification of your plan.
Conditions of use
Important copyright notice! Please take note of these copyright conditions before printing:
By printing this house plan, cottage or garage or the floorplan(s), you confirm being informed that every house plan on this website is the exclusive property of Drummond House
Plans and is protected by Canadian copyright law. You are aware that these prints cannot be used to build or even obtain a building permit. The graphic representations of these
models are offered by Drummond House Plans for the sole purpose of allowing you to notate modifications of a model and then take it to one of the Drummond House Plans Canadian dealers for
modification of the plan.
The purchase of a house plan, cottage or garage from Drummond House Plans is mandatory if you wish to build any of our models. The plan purchase allows you to build a single unit; you cannot resell or give your plan to anyone once the house, cottage or garage has been built. If you wish to build the same house, cottage or garage more than once, you need to obtain the licence to this effect. Please contact us for more details.
All plans from Drummond House Plans can only be modified by a licensed Drummond House Plan Canadian dealer. If any other business or individual with no affiliation to Drummond House Plans modifies a Drummond House Plan on your behalf, please ensure this business or individual has a licence to modify this specific plan or you will be subject to prosecution on the same level as the business or individual who modified or reproduced the plan.
For more details, do not hesitate to contact u by e-mail or by phone at 1-800-567-1413.
I agree to respect the conditions above to not reproduce, modify or build a model from Drummond House Plans without previously purchasing a complete house plan.


























