There are no shipping fees if you buy one of our 2 plan packages "PDF file format" or "5 sets of blueprints + PDF". Shipping charges may apply if you buy additional sets of blueprints.
House plan Nordic Haven (3978)
Scandinavian House Design Nordic Haven – 1,329 Sq.Ft., Open Living, Cathedral Ceilings, Covered Deck
Other useful information on this plan
Modern Scandinavian House or Cabin Plan: Open Layout, Cathedral Ceilings, and a Unique Covered Rear Terrace
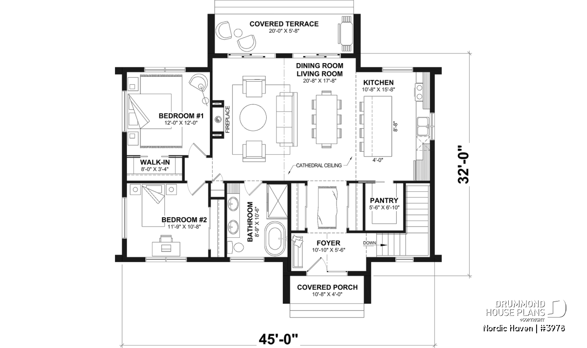
The NORDIC HAVEN house plan (#3978) features clean, refined lines inspired directly by modern Scandinavian design—a style highly appreciated in Québec for its balance of simplicity, warmth, and functionality. Its soft, elegant architecture, enhanced by a harmonious selection of materials and colors, creates an immediate sense of accessible refinement. From the very first glance, this compact 1,329 sq.ft. main-floor home (with an equally sized basement) stands out for its brightness, inviting atmosphere, and attention to detail.
The main floor offers a full open-concept layout, designed to support both daily living and gatherings with friends. The back of the home enjoys abundant natural light, illuminating the kitchen, dining room, and living area thanks to generous windows and two double patio doors. The space feels even larger thanks to striking cathedral ceilings located in the entry, kitchen, and living room. These elevated volumes create a remarkable visual impact and a strong sense of openness.
The front entry is open and well-organized, offering two large closets and a built-in bench perfect for boots and coats. The kitchen, the true heart of the home, is centered around a large island ideal for cooking and entertaining. A spacious walk-in pantry provides excellent storage, a valuable feature for active families or last-minute dinners. The kitchen and dining room open directly onto the living room, where a central fireplace creates a warm and welcoming ambiance visible from all main living areas.
At the back, two sets of double patio doors lead to a covered terrace measuring 20' x 5'8", perfect for enjoying the outdoors in any season. The main floor also includes two comfortable bedrooms—one primary and one secondary—that share a full bathroom with a separate tub and shower plus two sinks.
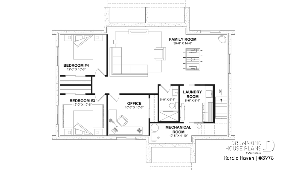
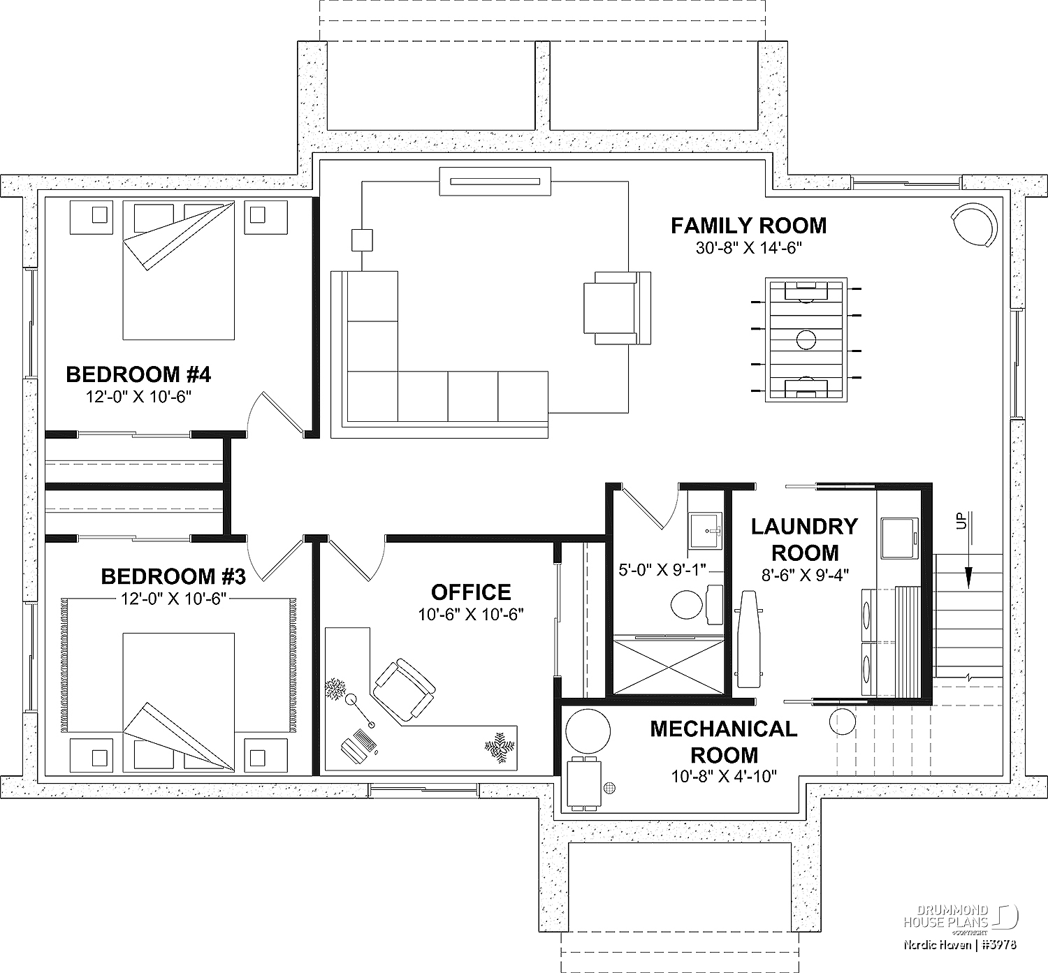
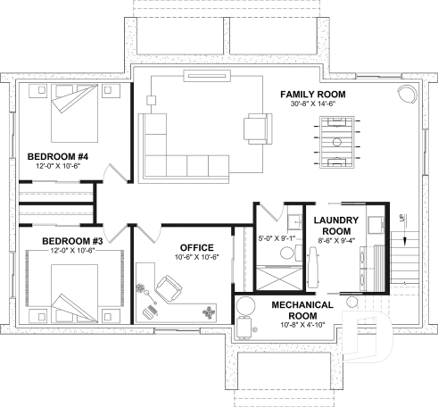
The standard basement is delivered unfinished and ready for your future layout plans.
For those who need more living space, the optional finished basement ($) adds two bedrooms, a home office (or Bedroom #5), a family room, a laundry room, a shower room, and a mechanical/storage area.
To receive the finished basement version, simply select the “Choose Your Foundation” option during checkout. If not selected, the unfinished basement is included at no extra cost.
Distinctive elements
Clean-lined house plan inspired by modern Scandinavian design.
Beautiful character created through thoughtful color choices and simple, refined architecture.
Abundant natural light at the back of the home, brightening all main living areas.
Open-concept layout across the entire main floor.
Remarkable sense of space with cathedral ceilings in the entry, kitchen, and living room.
Open front entry with built-in bench and two large closets.
Kitchen with a large island, ideal for cooking and entertaining.
Spacious walk-in pantry, perfect for storing essentials and handling last-minute meals.
Kitchen and dining area fully open to the living room.
Living room with a central fireplace visible from all main living areas.
Two double patio doors leading to a covered rear terrace measuring 20' x 5'8".
One primary bedroom and one secondary bedroom on the main floor share a full bathroom.
Bathroom includes a popular separate tub and shower combo, plus two sinks.
Standard basement delivered unfinished and ready to be customized.
---
Finished Basement (optional $):
2 bedrooms, office (or Bedroom #5), shower room, laundry room, family room, mechanical room, and storage.
---
*If you wish to purchase the finished basement plan, as presented on this plan page, please select this option in the shopping cart, in the "Selection of foundation type" section. If you do not select this option, you will receive the unfinished full basement option, at no extra charge.
Plan feature(s)
Cathedral ceiling, Panoramic view, Island, Pantry, Shelves, Separate bath and shower, Double sinks, Fireplace, Office / Study / Den, Game room, Open floor layout, Deck
Plan architectural style(s)
. Scandinavian, . Cottage, chalet, cabin, . Modern / Design, . Vacation and waterfront, Modern Craftsman, . Ski chalets, . Contemporary, . Ranch
Similar plans
Previously Viewed Plans
Thank you for your comment! It must be approved before being put online, please allow a period of 24 hours.
Error with google reCaptcha! Try again
Here is a brief description of our different plan packages. Please select the plan package that suits your needs. You can change the package at the next step, if necessary.
PDF VERSION OF PLAN:
Complete digital version of plan (pdf format) sent by email (original plan format 18" x 24'' or 24" x 36'')
5 copies of plan + PDF:
Includes: 5 copies of plan, plan in PDF format (reduced size version), materials list.
Foundation type
Additional foundation types are available, a fee may apply. Please indicate your choice on the online order form, or to our customer service representative, when placing your house plan order.
If your desired foundation type is not available, please contact our customer service to receive your free plan modification quote.
Explanation of bonus space types
UNFINISHED BONUS ROOM
The bonus rooms are often planned above the garage and are accessible from the house. They are designed to be converted as an office, a laundry area, a bathroom, a library corner or even an additional bedroom for which homeowners must make sure to have a window that complies with current codes & standards.
STORAGE AREA
Often located above the garage, our storage areas are used only as storage and are usually accessible from the garage via a retractable staircase.
Do you like this plan but want it to be modified to suit your needs?
To add a garage, another bedroom, finish the basement or any other modification, click here and let us know about your desired changes and to get your free quote for the modification of your plan.
Conditions of use
Important copyright notice! Please take note of these copyright conditions before printing:
By printing this house plan, cottage or garage or the floorplan(s), you confirm being informed that every house plan on this website is the exclusive property of Drummond House
Plans and is protected by Canadian copyright law. You are aware that these prints cannot be used to build or even obtain a building permit. The graphic representations of these
models are offered by Drummond House Plans for the sole purpose of allowing you to notate modifications of a model and then take it to one of the Drummond House Plans Canadian dealers for
modification of the plan.
The purchase of a house plan, cottage or garage from Drummond House Plans is mandatory if you wish to build any of our models. The plan purchase allows you to build a single unit; you cannot resell or give your plan to anyone once the house, cottage or garage has been built. If you wish to build the same house, cottage or garage more than once, you need to obtain the licence to this effect. Please contact us for more details.
All plans from Drummond House Plans can only be modified by a licensed Drummond House Plan Canadian dealer. If any other business or individual with no affiliation to Drummond House Plans modifies a Drummond House Plan on your behalf, please ensure this business or individual has a licence to modify this specific plan or you will be subject to prosecution on the same level as the business or individual who modified or reproduced the plan.
For more details, do not hesitate to contact u by e-mail or by phone at 1-800-567-1413.
I agree to respect the conditions above to not reproduce, modify or build a model from Drummond House Plans without previously purchasing a complete house plan.




