There are no shipping fees if you buy one of our 2 plan packages "PDF file format" or "5 sets of blueprints + PDF". Shipping charges may apply if you buy additional sets of blueprints.
House plan Bonzai (1909-BH)
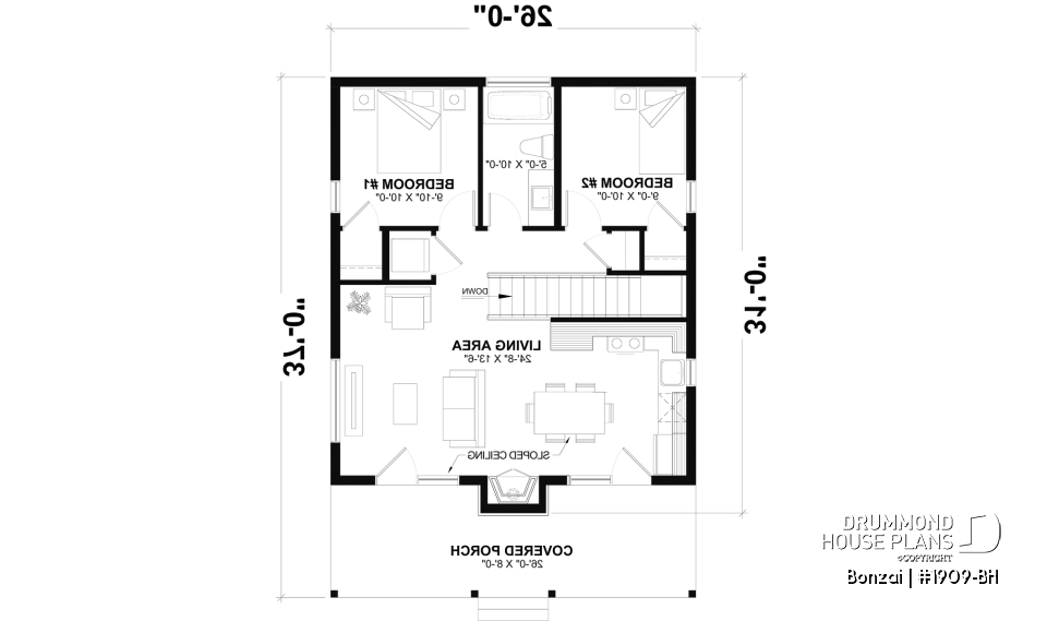
Modern small home or cabin plan with a charming covered front balcony, 2 bedrooms, central fireplace
Virtual visit
Other useful information on this plan
Modern Tiny Home or Affordable 2-Bedroom Cabin Plan
Looking for a bright, well-designed space with a sleek, modern feel — whether for everyday living or your nature getaways? The BONZAI model (#1909-BH) is a compact modern home or mini chalet with clean lines and a cozy ambiance that will charm you at first glance. Designed to combine comfort, style, and practicality, it offers a soft, contemporary atmosphere — perfect for peaceful living or relaxing escapes.
At the front, a spacious covered patio extends your living space outdoors. This true bonus area becomes your favorite spot during warm weather — ideal for morning coffee, a good book in the afternoon, or sharing a meal in the evening. Above the patio, large windows bring in an abundance of natural light, creating a bright and soothing atmosphere in the main living space.
Inside, you’ll find a smart open-concept layout, combining the kitchen, dining area, and living room around a central fireplace that brings warmth and a welcoming vibe. Whether you're with family, friends, or simply enjoying time to yourself, this space is made for connection and comfort.
The home features two cozy bedrooms, each with a small walk-in closet — a practical bonus for organized storage, even in a compact layout. A discreet laundry nook includes space for a washer-dryer and clever storage, blending function seamlessly into the design.
This home offers 684 heated sq.ft. and is built on a monolithic slab foundation, ideal for flat lots, but other foundation options are also available to suit your preferences — easily selected online or by phone.
A modern, bright, and welcoming retreat, ready to adapt to your lifestyle — whether it’s your forever home or your dream weekend escape!
---
*Unfinished basement (optional $): OPTION #1 - 764 sq.ft. on main floor
If you wish to purchase the house plan that includes an unfinished basement (as presented on this plan’s page under Option #1), please select this option in the shopping cart under “Select your foundation.” If you do not choose this option, you will receive the monolithic slab foundation.
Distinctive elements
Modern-style home or cottage (or cabin) with a clean and cozy look.
Spacious covered front patio, perfect as an extra living area on warm, sunny days.
Large windows above the patio fill the main living space with natural light.
Sloped ceiling from the front to the back of the house.
Open-concept living area with a central fireplace, creating a warm and inviting atmosphere.
Two comfortable bedrooms, each with its own walk-in closet for efficient storage.
Practical laundry area with space for a washer and dryer, plus built-in storage.
Monolithic slab foundation included, with several other options available when ordering online or by phone.
---
*Unfinished basement (optional $): OPTION #1
If you wish to purchase the house plan that includes an unfinished basement (as presented on this plan’s page under Option #1), please select this option in the shopping cart under “Select your foundation.” If you do not choose this option, you will receive the monolithic slab foundation.
---
ADDITIONAL NOTE:
The base plan offers 686 sq.ft. on the main floor.
Option #1 offers 764 sq.ft. on the main floor, and the same in the unfinished basement.
Plan feature(s)
Sloped ceiling, Deck, Fireplace, Open floor layout, Panoramic view, Self-Build, Gound floor laundry room
Plan architectural style(s)
. Modern rustic, . Modern / Design, . Cabin plans, . Rustic, . Cottage, chalet, cabin, . Transitional, . Vacation and waterfront, . Contemporary, . Craftsman / Northwest, . Mid-century, . Mountain
Similar plans
Previously Viewed Plans
Questions and comments
January 02
Brandie
Do you have a cost estimate on an idea of how much it would cost to build this house?
January 08
Marie
Hello Brandie,
The cost may vary from $90/sq.ft and up to over $500/sq.ft. depending on your location, the finishes you will choose, etc.
We advise you to consult with a local home builder to get his/her opinion about the right pricing in your specific area.
PLEASE TAKE NOTE that there is a 30% OFF any stock plan purchase + FREE Shipping from Jan 6 - 13, 2020, incl.
Please let us know if you have any more questions:
Email: [email protected]
Phone : 1-800-567-5267 ext. 109 (EST)
Customer service
DrummondHousePlans.com
Thank you for your comment! It must be approved before being put online, please allow a period of 24 hours.
Error with google reCaptcha! Try again
Here is a brief description of our different plan packages. Please select the plan package that suits your needs. You can change the package at the next step, if necessary.
PDF VERSION OF PLAN:
Complete digital version of plan (pdf format) sent by email (original plan format 18" x 24'' or 24" x 36'')
5 copies of plan + PDF:
Includes: 5 copies of plan, plan in PDF format (reduced size version), materials list.
Foundation type
Additional foundation types are available, a fee may apply. Please indicate your choice on the online order form, or to our customer service representative, when placing your house plan order.
If your desired foundation type is not available, please contact our customer service to receive your free plan modification quote.
Explanation of bonus space types
UNFINISHED BONUS ROOM
The bonus rooms are often planned above the garage and are accessible from the house. They are designed to be converted as an office, a laundry area, a bathroom, a library corner or even an additional bedroom for which homeowners must make sure to have a window that complies with current codes & standards.
STORAGE AREA
Often located above the garage, our storage areas are used only as storage and are usually accessible from the garage via a retractable staircase.
Do you like this plan but want it to be modified to suit your needs?
To add a garage, another bedroom, finish the basement or any other modification, click here and let us know about your desired changes and to get your free quote for the modification of your plan.
Conditions of use
Important copyright notice! Please take note of these copyright conditions before printing:
By printing this house plan, cottage or garage or the floorplan(s), you confirm being informed that every house plan on this website is the exclusive property of Drummond House
Plans and is protected by Canadian copyright law. You are aware that these prints cannot be used to build or even obtain a building permit. The graphic representations of these
models are offered by Drummond House Plans for the sole purpose of allowing you to notate modifications of a model and then take it to one of the Drummond House Plans Canadian dealers for
modification of the plan.
The purchase of a house plan, cottage or garage from Drummond House Plans is mandatory if you wish to build any of our models. The plan purchase allows you to build a single unit; you cannot resell or give your plan to anyone once the house, cottage or garage has been built. If you wish to build the same house, cottage or garage more than once, you need to obtain the licence to this effect. Please contact us for more details.
All plans from Drummond House Plans can only be modified by a licensed Drummond House Plan Canadian dealer. If any other business or individual with no affiliation to Drummond House Plans modifies a Drummond House Plan on your behalf, please ensure this business or individual has a licence to modify this specific plan or you will be subject to prosecution on the same level as the business or individual who modified or reproduced the plan.
For more details, do not hesitate to contact u by e-mail or by phone at 1-800-567-1413.
I agree to respect the conditions above to not reproduce, modify or build a model from Drummond House Plans without previously purchasing a complete house plan.



























January 02
Brandie
Do you have a cost estimate on an idea of how much it would cost to build this house?