There are no shipping fees if you buy one of our 2 plan packages "PDF file format" or "5 sets of blueprints + PDF". Shipping charges may apply if you buy additional sets of blueprints.
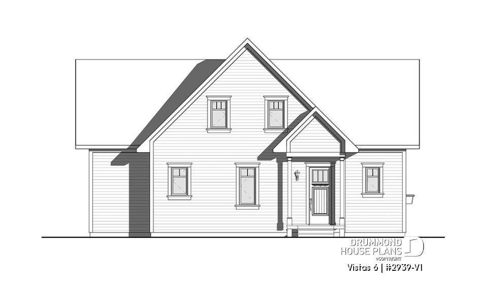
House plan Vistas 6 (2939-V1)
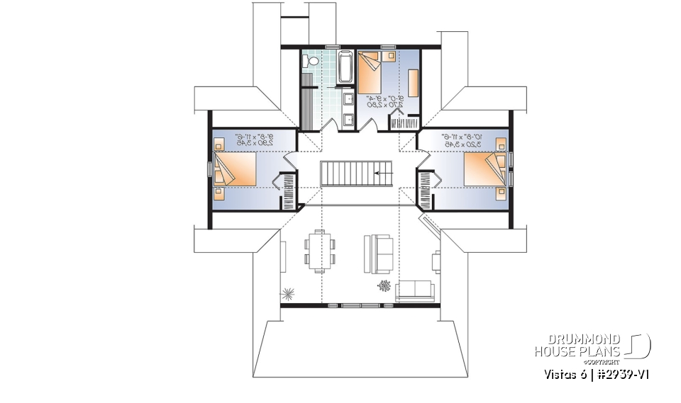
4 bedrooms lakefront cottage, walkout basement, master suite on first floor, panoramic views
Other useful information on this plan
Beautiful 4 bedroom cottage with walkout basement!
Four bedrooms and 3.5 baths creatively occupy an average size chalet. Living, dining rooms open to each other, sharing a cathedral ceilings, and entry to a nature-loving, covered balcony. Adults enjoy a main-floor master suite with deep walk-in closet and unique master bath. Second level offers 3 bedrooms and mezzanine overlook. Walk-out basement, included!
Distinctive elements
Country cottage chalet style house plan.
Main-floor master suite with private bathroom and walk-in.
Kitchen with kitchen island and pantry.
Abundant windows in the rear of the house. Cathedral ceiling in the dining / living rooms. Large covered rear porch.
Large unfinished walkout basement for extra square footage.
Plan feature(s)
Mezzanine, Deck, Cathedral ceiling, Pantry, Master suite upstairs, Access to basement from exterior, Open floor layout, Gound floor laundry room, Panoramic view, Island, Walk-in master bed.
Plan architectural style(s)
. Cottage, chalet, cabin, . A-Frame, . Country, . Traditional, . Vacation and waterfront, . American, . Ski chalets
Similar plans
Previously Viewed Plans
Questions and comments
July 16
Ken
Does the plan W2939 have a laundry room? V-1 shows one. Can you get V1 plan with 2 bedrooms and a loft instead of 3 bedrooms?
July 16
Customer service
Hello Ken,
I checked and plan 2939 does have a laundry room but it is in the basement. And yes, you could have plan 2939-V1 modified to suit your needs. Actually, we presently have a 30% discount on the base price of our plans for modifications. You can write to us at any time at: [email protected] for an estimate on changes.
September 29
Jim Hackbarth
Hello, you have a couple plans I am considering building my vacation home with. Is it possible to get an estimated materials cost prior to ordering the plans? I am the builder so a total cost to build won't help me. One of them is: W2939B-V1. Thanks!
September 29
Customer service
Good day Mr. Hackbarth and thank you for your interest in our plans.
The materials list can be purchased prior to buying the plan but the order must be placed by telephone during regular business hours (Eastern time)
If you are a registered builder we have a program with some interesting options that may also prove helpful so please feel free to call me for the details at 1-800-567-5267 ext. 115
Have a great day
Deb
Thank you for your comment! It must be approved before being put online, please allow a period of 24 hours.
Error with google reCaptcha! Try again
Here is a brief description of our different plan packages. Please select the plan package that suits your needs. You can change the package at the next step, if necessary.
PDF VERSION OF PLAN:
Complete digital version of plan (pdf format) sent by email (original plan format 18" x 24'' or 24" x 36'')
5 copies of plan + PDF:
Includes: 5 copies of plan, plan in PDF format (reduced size version), materials list.
Foundation type
Additional foundation types are available, a fee may apply. Please indicate your choice on the online order form, or to our customer service representative, when placing your house plan order.
If your desired foundation type is not available, please contact our customer service to receive your free plan modification quote.
Explanation of bonus space types
UNFINISHED BONUS ROOM
The bonus rooms are often planned above the garage and are accessible from the house. They are designed to be converted as an office, a laundry area, a bathroom, a library corner or even an additional bedroom for which homeowners must make sure to have a window that complies with current codes & standards.
STORAGE AREA
Often located above the garage, our storage areas are used only as storage and are usually accessible from the garage via a retractable staircase.
Do you like this plan but want it to be modified to suit your needs?
To add a garage, another bedroom, finish the basement or any other modification, click here and let us know about your desired changes and to get your free quote for the modification of your plan.
Conditions of use
Important copyright notice! Please take note of these copyright conditions before printing:
By printing this house plan, cottage or garage or the floorplan(s), you confirm being informed that every house plan on this website is the exclusive property of Drummond House
Plans and is protected by Canadian copyright law. You are aware that these prints cannot be used to build or even obtain a building permit. The graphic representations of these
models are offered by Drummond House Plans for the sole purpose of allowing you to notate modifications of a model and then take it to one of the Drummond House Plans Canadian dealers for
modification of the plan.
The purchase of a house plan, cottage or garage from Drummond House Plans is mandatory if you wish to build any of our models. The plan purchase allows you to build a single unit; you cannot resell or give your plan to anyone once the house, cottage or garage has been built. If you wish to build the same house, cottage or garage more than once, you need to obtain the licence to this effect. Please contact us for more details.
All plans from Drummond House Plans can only be modified by a licensed Drummond House Plan Canadian dealer. If any other business or individual with no affiliation to Drummond House Plans modifies a Drummond House Plan on your behalf, please ensure this business or individual has a licence to modify this specific plan or you will be subject to prosecution on the same level as the business or individual who modified or reproduced the plan.
For more details, do not hesitate to contact u by e-mail or by phone at 1-800-567-1413.
I agree to respect the conditions above to not reproduce, modify or build a model from Drummond House Plans without previously purchasing a complete house plan.






July 16
Ken
Does the plan W2939 have a laundry room? V-1 shows one. Can you get V1 plan with 2 bedrooms and a loft instead of 3 bedrooms?