There are no shipping fees if you buy one of our 2 plan packages "PDF file format" or "5 sets of blueprints + PDF". Shipping charges may apply if you buy additional sets of blueprints.
House plan The Trail Seeker (3900)
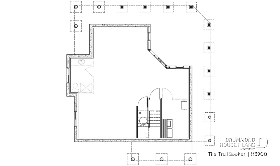
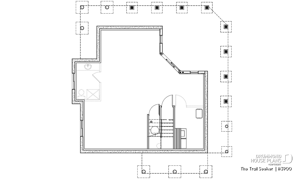
Affordable small cottage home plan, unfinished walkout (allowing for extra beds), large covered terrace
Other useful information on this plan
Affordable cottage plan with unfinished walkout basement
Designed at the turn of the millennium and in answer to the expectations of an ever growing clientele, this four season style house suggests many interesting elements on the outside as much as inside. Let’s examine it more closely!
Outside on the main level, a gallery spread over two facades ties together the front and rear of the house and join together with an arbour in order to be able to enjoy meals sheltered from the elements. As well, an exit from the basement and located just below this arbour allows for the possibility of a sheltered patio space at that level.
Inside, we are pleasantly surprised as we enter into an open activities center, bathed in light and benefiting from a 9 foot ceiling and over the entire main level. We appreciate a kitchen with central island and triple window at the sink, a dining room and a living room with an angled layout for a dynamic but not so common interior, a master bedroom with walk-in closet and a discreet access to an adjoining bathroom with corner bath and corner shower, and double glass doors allowing a view on the panorama through the dining room.
For interested parties, model 3930 proposes a complete design of the main level and basement level in a slightly enlarged format, see http://www.drummonddesigns.com/.
Distinctive elements
9' ceiling on 1st level. Open activity area and abundant windows towards the back. Bedroom #1 and bathroom on 1st floor. Two-sided gallery with a gazebo, which provides a nice spot for eating outdoors.
Plan feature(s)
Walk-in master bed., Island, Warparound, Open floor layout, Ceiling over 8', Access to basement from exterior, Separate bath and shower, Panoramic view
Plan architectural style(s)
. Country, . Vacation and waterfront, . Cape Cod, . Cottage, chalet, cabin, . Cabin plans
Similar plans
Previously Viewed Plans
Questions and comments
October 27
kathy
I discovered this plan after I had begun construction. so here goes! I have a 32x32 foundation on piers its walk in level from road in front but approx 12 feet up in rear built on side of hill, spectacular view. how can I build this house there? I love it but is it possible??? thanks and sorry newbie homebuilder here so be kind
November 26
John Martinez
I really like the w3900 and the w3900a house plans.
I am looking for a modular home, can these be build and shipped? if so I need prices and what kind of foundations do i need to construct. Have you this infromation?
John Martinez
November 29
Customer service
Dear Mr Martinez,
Thank you for your interest in Drummond House Plans.
We provide the plans only, we do not build. These two plans are not designed for modular construction. This plan can be built with the foundation of your choice. However, please note that all of our plans can easily be modified. To receive a Free Cost Estimate, you can visit the "Plan modification services" section of our website or contact our Modification Department at 1-800-567-5267.
Do not hesitate to contact me again if you need further information.
Best Regards,
Doreen, Customer Service Department
Thank you for your comment! It must be approved before being put online, please allow a period of 24 hours.
Error with google reCaptcha! Try again
Here is a brief description of our different plan packages. Please select the plan package that suits your needs. You can change the package at the next step, if necessary.
PDF VERSION OF PLAN:
Complete digital version of plan (pdf format) sent by email (original plan format 18" x 24'' or 24" x 36'')
5 copies of plan + PDF:
Includes: 5 copies of plan, plan in PDF format (reduced size version), materials list.
Foundation type
Additional foundation types are available, a fee may apply. Please indicate your choice on the online order form, or to our customer service representative, when placing your house plan order.
If your desired foundation type is not available, please contact our customer service to receive your free plan modification quote.
Explanation of bonus space types
UNFINISHED BONUS ROOM
The bonus rooms are often planned above the garage and are accessible from the house. They are designed to be converted as an office, a laundry area, a bathroom, a library corner or even an additional bedroom for which homeowners must make sure to have a window that complies with current codes & standards.
STORAGE AREA
Often located above the garage, our storage areas are used only as storage and are usually accessible from the garage via a retractable staircase.
Do you like this plan but want it to be modified to suit your needs?
To add a garage, another bedroom, finish the basement or any other modification, click here and let us know about your desired changes and to get your free quote for the modification of your plan.
Conditions of use
Important copyright notice! Please take note of these copyright conditions before printing:
By printing this house plan, cottage or garage or the floorplan(s), you confirm being informed that every house plan on this website is the exclusive property of Drummond House
Plans and is protected by Canadian copyright law. You are aware that these prints cannot be used to build or even obtain a building permit. The graphic representations of these
models are offered by Drummond House Plans for the sole purpose of allowing you to notate modifications of a model and then take it to one of the Drummond House Plans Canadian dealers for
modification of the plan.
The purchase of a house plan, cottage or garage from Drummond House Plans is mandatory if you wish to build any of our models. The plan purchase allows you to build a single unit; you cannot resell or give your plan to anyone once the house, cottage or garage has been built. If you wish to build the same house, cottage or garage more than once, you need to obtain the licence to this effect. Please contact us for more details.
All plans from Drummond House Plans can only be modified by a licensed Drummond House Plan Canadian dealer. If any other business or individual with no affiliation to Drummond House Plans modifies a Drummond House Plan on your behalf, please ensure this business or individual has a licence to modify this specific plan or you will be subject to prosecution on the same level as the business or individual who modified or reproduced the plan.
For more details, do not hesitate to contact u by e-mail or by phone at 1-800-567-1413.
I agree to respect the conditions above to not reproduce, modify or build a model from Drummond House Plans without previously purchasing a complete house plan.












October 27
kathy
I discovered this plan after I had begun construction. so here goes! I have a 32x32 foundation on piers its walk in level from road in front but approx 12 feet up in rear built on side of hill, spectacular view. how can I build this house there? I love it but is it possible??? thanks and sorry newbie homebuilder here so be kind