There are no shipping fees if you buy one of our 2 plan packages "PDF file format" or "5 sets of blueprints + PDF". Shipping charges may apply if you buy additional sets of blueprints.
House plan The Clearview 2 (4934)
A-France style lakefront vacation house plan, 3 bedrooms, 2 family rooms, mezzanine, garage
Other useful information on this plan
Contemporary vacation home plan with 3 bedrooms, mezzanine and large deck
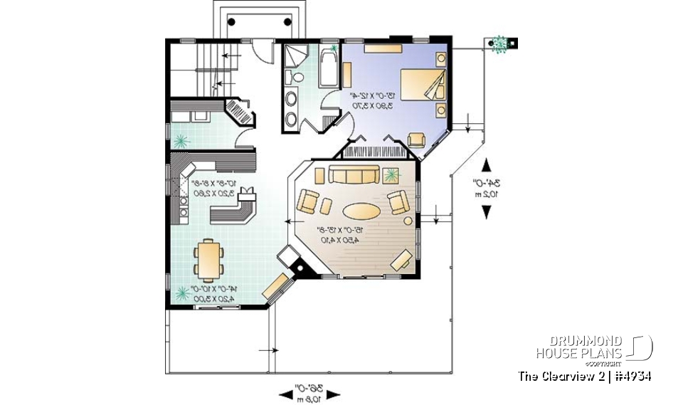
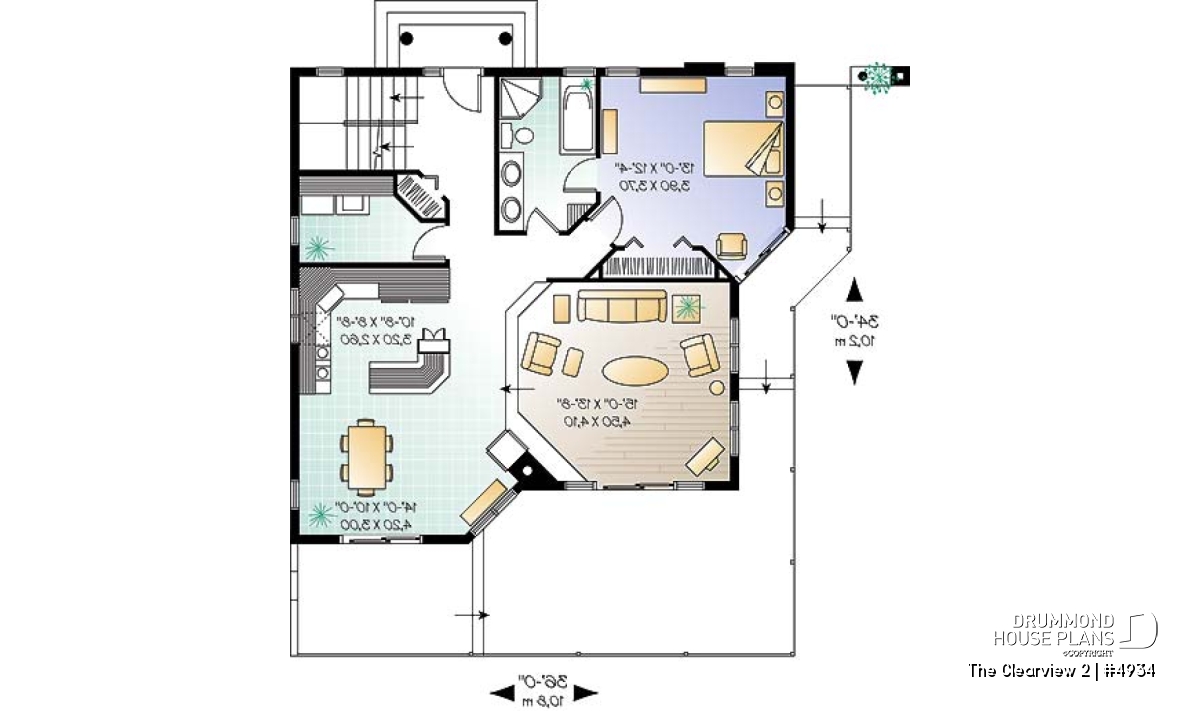
Family and guests will enjoy great views from every room in this contemporary vacation house through a multitude of full-length windows. A fireplace and soaring ceiling enhance the light-filled sunken living room. The adjacent dining room and open kitchen further enhance the open living area. Step onto the spacious wraparound deck from either the kitchen or dining room. A master bedroom is conveniently on the main floor and enjoys a walk-in closet and private bathroom access.
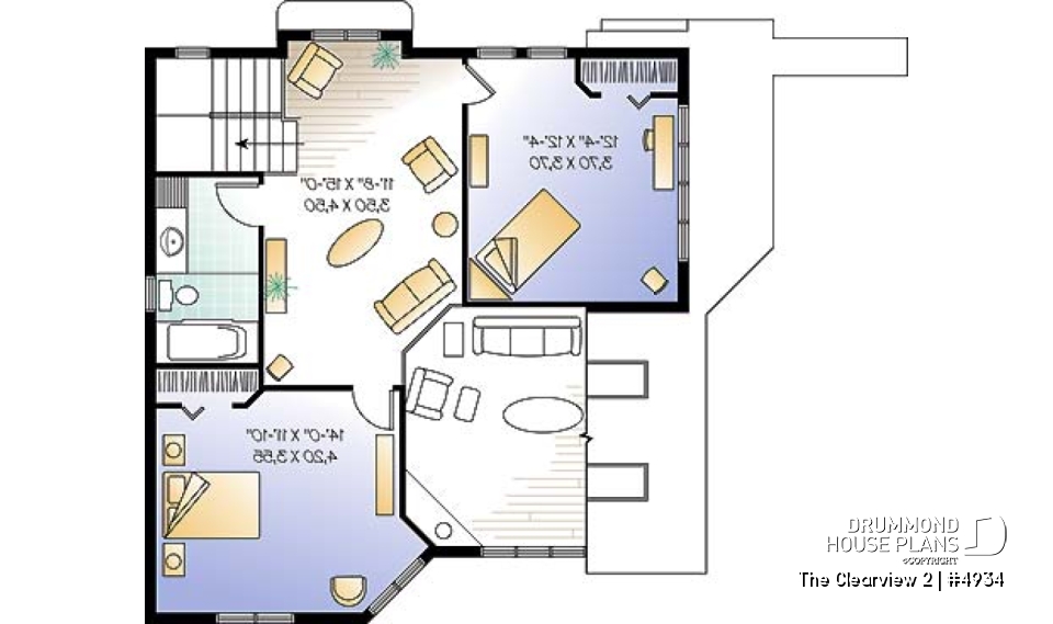
Upstairs, two additional bedrooms share a bathroom and their own mezzanine family room.
Distinctive elements
Master bedroom on first floor, fireplace, large porch, abundant windowing.
Plan feature(s)
Fireplace, Mezzanine, Side entry garage, Basement access from garage, Gound floor laundry room, Island
Plan architectural style(s)
. Vacation and waterfront, . Ski chalets, . European, . A-Frame, . American, . Cottage, chalet, cabin
Similar plans
Previously Viewed Plans
Questions and comments
July 12
Rick
can you combine clearview 2 and clearview one interior wall plans and make the width 36'6" and depth 34'6" to add 6" width and depth to the first floor bath?
July 12
Customer service
Good day and thank you for taking the time to write.
We would be happy to provide a free estimate for the changes that you require to combine the best of both of these plans.
I invite you to complete the following on line modification form
We will respond within two business days after receipt of your request with details about the cost and the lead time to make the changes.
Please let me know if you have any other questions or comments.
Regards
Deborah
January 10
twink.
what is the length?
January 11
Customer service
Good day and thank you for your interest in our plans.
I am not really sure as to which dimension you are referring by length.
The width of the foundation at its widest point, from the left wall of the bedroom to the right wall on which the kitchen and laudry rooms are located is 36'
The foundation depth from front to back starting at the wall with the window in the dining room and going back to the rear wall on which the bathroom is located is 34'
The terrace to the left is 8' wide and extends 13' from front to back.
The terrace in front is 23' wide and 12' deep.
Please let me know if I can further assist you.
Regards
Deborah
Thank you for your comment! It must be approved before being put online, please allow a period of 24 hours.
Error with google reCaptcha! Try again
Here is a brief description of our different plan packages. Please select the plan package that suits your needs. You can change the package at the next step, if necessary.
PDF VERSION OF PLAN:
Complete digital version of plan (pdf format) sent by email (original plan format 18" x 24'' or 24" x 36'')
5 copies of plan + PDF:
Includes: 5 copies of plan, plan in PDF format (reduced size version), materials list.
Foundation type
Additional foundation types are available, a fee may apply. Please indicate your choice on the online order form, or to our customer service representative, when placing your house plan order.
If your desired foundation type is not available, please contact our customer service to receive your free plan modification quote.
Explanation of bonus space types
UNFINISHED BONUS ROOM
The bonus rooms are often planned above the garage and are accessible from the house. They are designed to be converted as an office, a laundry area, a bathroom, a library corner or even an additional bedroom for which homeowners must make sure to have a window that complies with current codes & standards.
STORAGE AREA
Often located above the garage, our storage areas are used only as storage and are usually accessible from the garage via a retractable staircase.
Do you like this plan but want it to be modified to suit your needs?
To add a garage, another bedroom, finish the basement or any other modification, click here and let us know about your desired changes and to get your free quote for the modification of your plan.
Conditions of use
Important copyright notice! Please take note of these copyright conditions before printing:
By printing this house plan, cottage or garage or the floorplan(s), you confirm being informed that every house plan on this website is the exclusive property of Drummond House
Plans and is protected by Canadian copyright law. You are aware that these prints cannot be used to build or even obtain a building permit. The graphic representations of these
models are offered by Drummond House Plans for the sole purpose of allowing you to notate modifications of a model and then take it to one of the Drummond House Plans Canadian dealers for
modification of the plan.
The purchase of a house plan, cottage or garage from Drummond House Plans is mandatory if you wish to build any of our models. The plan purchase allows you to build a single unit; you cannot resell or give your plan to anyone once the house, cottage or garage has been built. If you wish to build the same house, cottage or garage more than once, you need to obtain the licence to this effect. Please contact us for more details.
All plans from Drummond House Plans can only be modified by a licensed Drummond House Plan Canadian dealer. If any other business or individual with no affiliation to Drummond House Plans modifies a Drummond House Plan on your behalf, please ensure this business or individual has a licence to modify this specific plan or you will be subject to prosecution on the same level as the business or individual who modified or reproduced the plan.
For more details, do not hesitate to contact u by e-mail or by phone at 1-800-567-1413.
I agree to respect the conditions above to not reproduce, modify or build a model from Drummond House Plans without previously purchasing a complete house plan.







July 12
Rick
can you combine clearview 2 and clearview one interior wall plans and make the width 36'6" and depth 34'6" to add 6" width and depth to the first floor bath?