There are no shipping fees if you buy one of our 2 plan packages "PDF file format" or "5 sets of blueprints + PDF". Shipping charges may apply if you buy additional sets of blueprints.
House plan La Hacienda 4 (3819)
4 bedroom Mediteranean house plan, 4 beds, 4 baths, large deck, master suite with fireplace & balcony
Other useful information on this plan
Unlimited Luxury for this 4 bedroom Spanish house plan with 2-car garage
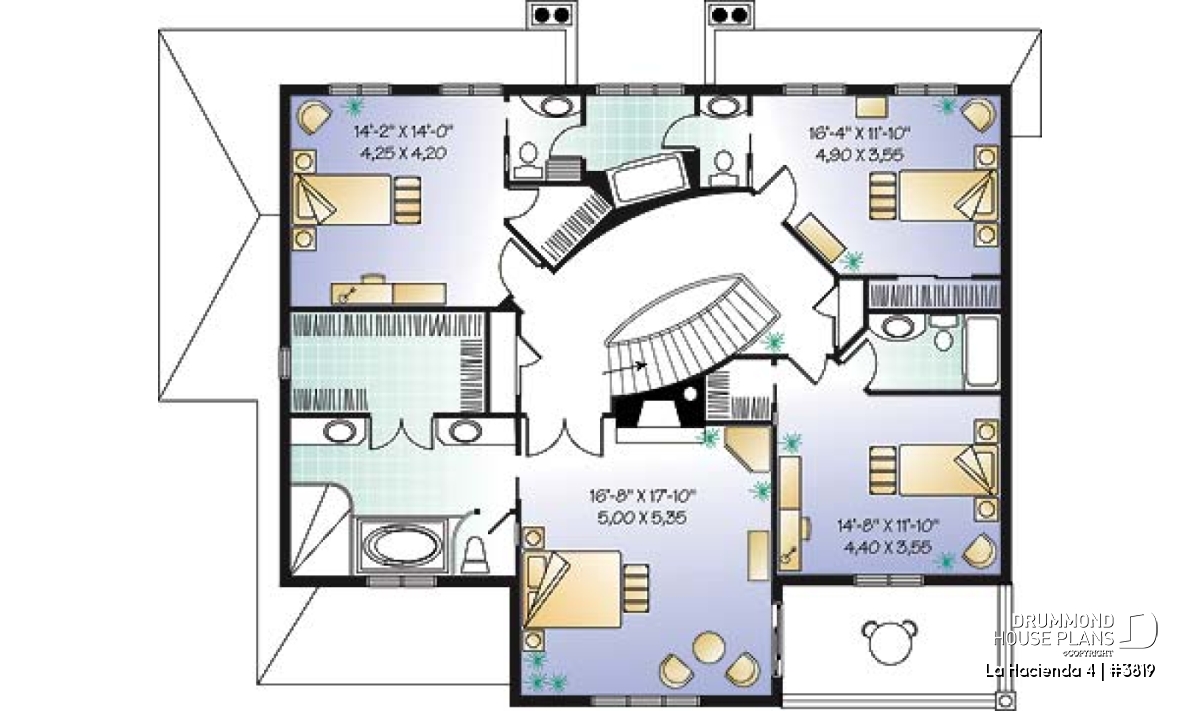
Stunning from both the front and back, this grand home encourages living with grace. Dramatic architectural columns, sweeping stairways, inside and out, fresh-air balconies, a terrace, and fireplaces (in both family room and master suite) give this 3251 sq.ft. design a villa vacation aura. With four bedrooms, 3.5 baths, den/home office and an abundance of amenities including a kitchen with island, breakfast area, walk-in pantry, laundry facilities, and more, this home embraces daily living. A two-car garage adds to family convenience.
If built on a slightly sloped lot, a daylight basement provides cool recreation potential. The addition of a backyard pool or an incredible view would be the icing on the cake!
Distinctive elements
Fabulous rear terrace. Really comfortable interior spaces. Large pantry in kitchen, central island and nice dinette area. Abundant fenestration at rear as well as in basement. Remarkable office space. Master bedroom suite with fireplace, large bathroom, large closet, and access to a private, covered balcony.
Plan feature(s)
Fireplace, Gound floor laundry room, Office / Study / Den, Master suite upstairs, Guest suite, Pantry, Island, Ceiling over 8', Deck, Breakfast nook, Balcony 2nd floor, Jack & Jill bath
Plan architectural style(s)
. Mediterranean, . Vacation and waterfront, . Florida, . Manors and small castles, . Cottage, chalet, cabin
Similar plans
Previously Viewed Plans
Questions and comments
May 21
manon tremblay
Très intéressant
May 21
Customer service
Merci!
N'hésitez pas de me relancer si vous avez d'autres questions ou commentaires.
Bien à vous
Deborah
April 29
Victor Chow
Hi
I'm planning to build a home in Port Coquitlam, B.C, Canada,using your plan W3819.
The lot dimension that I own is 13.306 metres in width and 45 metres in depth and it is a RS8 lot.
I would like to modify the plan to 3800 sq ft living space plus garage. I was hoping to modify the width of the front and lengthen the room to maximize space.
I also would like to have a walk-in basement as well.
Please advise if this is possible and the cost to modify.
Thanks
April 29
Customer service
Good day Mr. Chow and thank you for taking the time to write.
The best way to obtain a free estimate for the changes that are needed is to fill in our on line modifications form, below, with as much detail as possible about the maximization of the length and width.
http://www.drummondhouseplans.com/plan-modification-services/online-estimate-form/plan/1001715.html
We will be happy to respond to your request within two business days after receipt of your form.
Please let me know if I can further assist you.
Regards
Deborah
October 13
Roseanne McPherson
Question:
La Hacienda #4, Plan #3819, appears to have 3 levels looking at the picture (rendering). Where is the basement drawing?
October 13
Customer service
Dear Mrs McPherson,
Thank you for your interest in Drummond House Plans.
On our website, we do not display basement floor plans when the basement is unfinished, such as in this case. Unfinished basement floor plans show only the exterior walls and the location of the staircase.
If you have other questions, please do not hesitate to contact us again.
Sincerely,
France, Customer Service Department
Thank you for your comment! It must be approved before being put online, please allow a period of 24 hours.
Error with google reCaptcha! Try again
Here is a brief description of our different plan packages. Please select the plan package that suits your needs. You can change the package at the next step, if necessary.
PDF VERSION OF PLAN:
Complete digital version of plan (pdf format) sent by email (original plan format 18" x 24'' or 24" x 36'')
5 copies of plan + PDF:
Includes: 5 copies of plan, plan in PDF format (reduced size version), materials list.
Foundation type
Additional foundation types are available, a fee may apply. Please indicate your choice on the online order form, or to our customer service representative, when placing your house plan order.
If your desired foundation type is not available, please contact our customer service to receive your free plan modification quote.
Explanation of bonus space types
UNFINISHED BONUS ROOM
The bonus rooms are often planned above the garage and are accessible from the house. They are designed to be converted as an office, a laundry area, a bathroom, a library corner or even an additional bedroom for which homeowners must make sure to have a window that complies with current codes & standards.
STORAGE AREA
Often located above the garage, our storage areas are used only as storage and are usually accessible from the garage via a retractable staircase.
Do you like this plan but want it to be modified to suit your needs?
To add a garage, another bedroom, finish the basement or any other modification, click here and let us know about your desired changes and to get your free quote for the modification of your plan.
Conditions of use
Important copyright notice! Please take note of these copyright conditions before printing:
By printing this house plan, cottage or garage or the floorplan(s), you confirm being informed that every house plan on this website is the exclusive property of Drummond House
Plans and is protected by Canadian copyright law. You are aware that these prints cannot be used to build or even obtain a building permit. The graphic representations of these
models are offered by Drummond House Plans for the sole purpose of allowing you to notate modifications of a model and then take it to one of the Drummond House Plans Canadian dealers for
modification of the plan.
The purchase of a house plan, cottage or garage from Drummond House Plans is mandatory if you wish to build any of our models. The plan purchase allows you to build a single unit; you cannot resell or give your plan to anyone once the house, cottage or garage has been built. If you wish to build the same house, cottage or garage more than once, you need to obtain the licence to this effect. Please contact us for more details.
All plans from Drummond House Plans can only be modified by a licensed Drummond House Plan Canadian dealer. If any other business or individual with no affiliation to Drummond House Plans modifies a Drummond House Plan on your behalf, please ensure this business or individual has a licence to modify this specific plan or you will be subject to prosecution on the same level as the business or individual who modified or reproduced the plan.
For more details, do not hesitate to contact u by e-mail or by phone at 1-800-567-1413.
I agree to respect the conditions above to not reproduce, modify or build a model from Drummond House Plans without previously purchasing a complete house plan.






May 21
manon tremblay
Très intéressant