There are no shipping fees if you buy one of our 2 plan packages "PDF file format" or "5 sets of blueprints + PDF". Shipping charges may apply if you buy additional sets of blueprints.
House plan Sunny Haven 2 (3615-V1)
Modern Farmhouse plan, 3 bedrooms, 2.5 baths, 2-car garage, home office, mudroom, pantry
Other useful information on this plan
Sunny Haven 2 (#3615-V1) – Modern Farmhouse Home with Grand Entry, Bright Open Spaces, and Smart Family Layout
The Sunny Haven 2 (#3615-V1) delivers a refined interpretation of modern Farmhouse design, blending warmth, functionality, and architectural presence. This thoughtfully crafted home plan focuses on everyday comfort while offering a timeless aesthetic that suits a wide range of lifestyles.
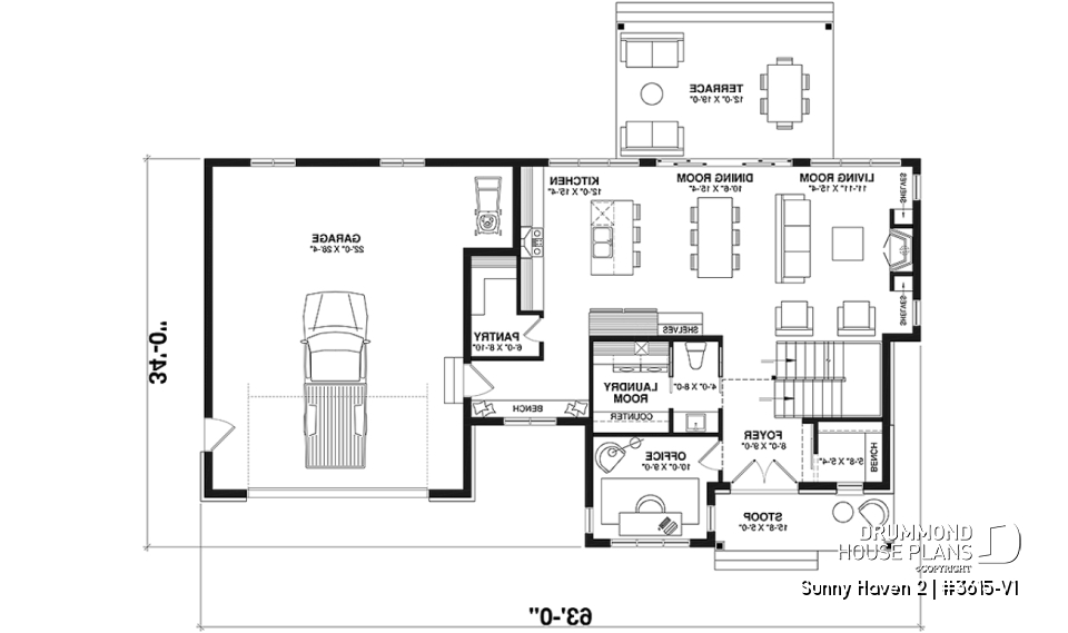
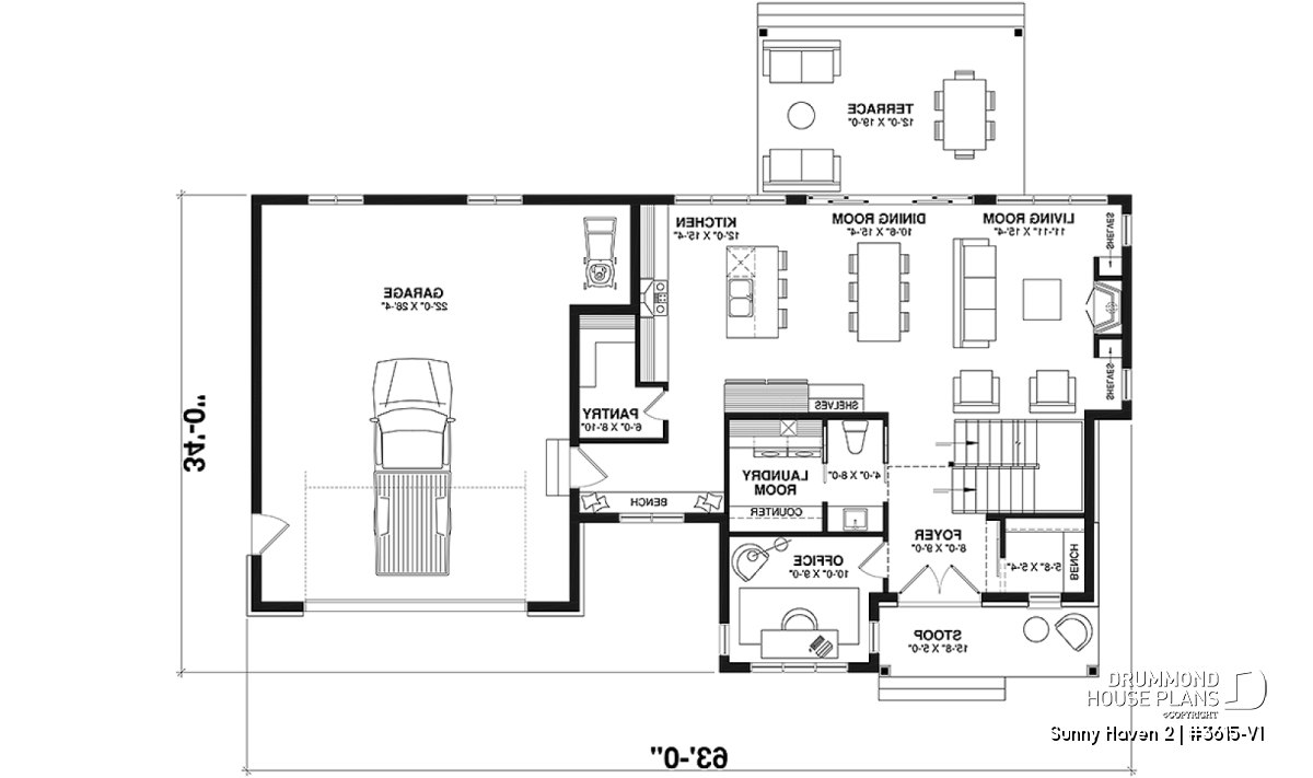
From the moment you arrive, the home stands out with its dramatic two-story front entry, creating a strong sense of volume and natural light. This welcoming space sets the tone for the rest of the interior. A dedicated home office, positioned away from the main living areas, provides a quiet and practical environment for remote work or study. Nearby, a spacious mudroom connected to the garage supports daily routines and keeps the home organized and clutter-free.
At the heart of Sunny Haven 2 (#3615-V1) lies a bright open-concept living area that brings together the kitchen, dining space, and living room. Designed for connection and flow, this central area benefits from generous windows and a seamless relationship with the outdoor surroundings. The kitchen features a large central island and a walk-in pantry, offering both efficiency and comfort for everyday use. The living room is enhanced by a fireplace, creating a cozy atmosphere ideal for family gatherings and relaxed evenings.
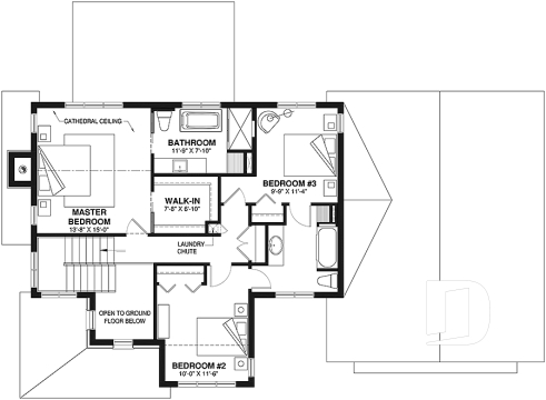
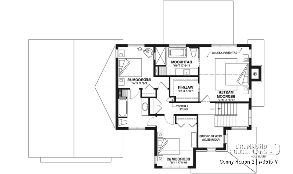
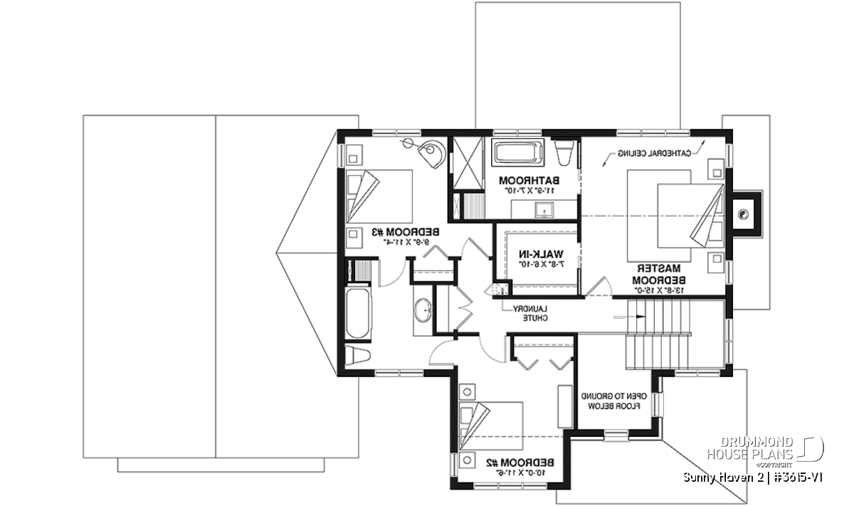
Upstairs, the primary suite serves as a private retreat. A cathedral ceiling adds architectural interest and a sense of openness, while the ensuite bathroom and walk-in closet provide practical luxury. Additional bedrooms are well-sized and adaptable, supporting the changing needs of growing families. Thoughtful storage solutions, including a laundry chute, contribute to the home’s overall efficiency and ease of use.
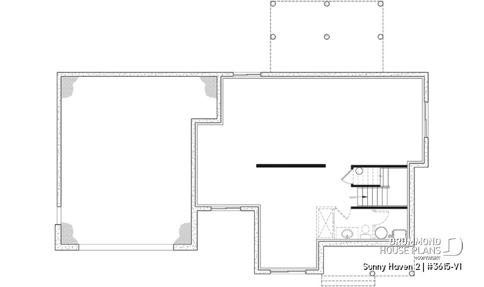
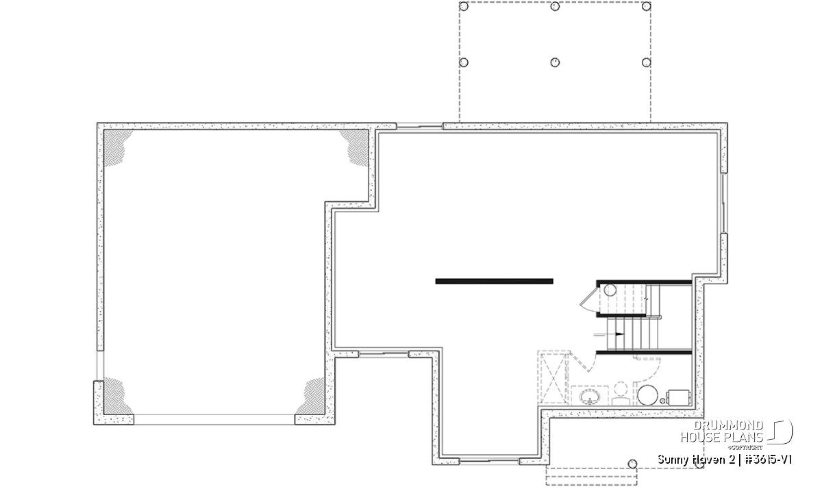
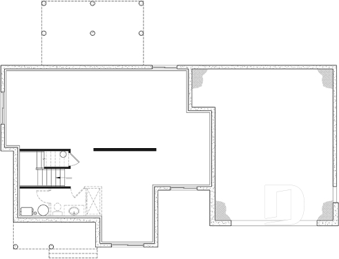
The unfinished basement presents valuable potential for future development, whether for additional living space, recreational areas, or storage.
With its smart layout, inviting Farmhouse character, and long-term adaptability, Sunny Haven 2 (#3615-V1) is a well-balanced home plan designed to evolve alongside modern family life.
Distinctive elements
Beautiful Modern Farmhouse home design with an integrated double garage.
Warm architectural style showcasing stone accents, wood details, and board-and-batten siding.
Striking two-story front entry creating a sense of openness and grandeur.
Functional home office, ideal for remote work.
Spacious mudroom located at the main entrance for optimal organization.
Convenient garage access near the kitchen, featuring a built-in bench that makes bringing in groceries easy.
9-foot ceilings on the main floor and 8-foot ceilings upstairs, with the exception of the primary suite, which features a cathedral ceiling.
Open-concept living area combining the kitchen, dining room, and living room, filled with natural light and offering views of the backyard.
Inviting living room enhanced by a cozy fireplace.
Well-designed kitchen with a large pantry and a generous central island.
Main-floor powder room and laundry room equipped with a laundry chute for added convenience.
Primary suite featuring a cathedral ceiling, private bathroom, and walk-in closet.
Additional laundry chute located in the upper hallway for easy access by all family members.
Two additional bedrooms on the upper level sharing a convenient Jack-and-Jill bathroom.
Spacious double garage offering ample room for vehicles and storage.
Basement ready to be finished to suit your future needs.
Covered rear terrace and large covered front porch, perfect for enjoying outdoor living in every season.
Plan feature(s)
Open floor layout, 2-Story foyer, Gound floor laundry room, Master suite upstairs, Island, Pantry, Mud room, Office / Study / Den, Fireplace, Jack & Jill bath, Ceiling over 8', Cathedral ceiling, Separate bath and shower, Coffee bar, Oversized garage, Mezzanine, Deck, Laundry chute, Sliding barn door(s), Bench seat(s), Walk-in master bed.
Plan architectural style(s)
Modern farmhouse, Modern Craftsman, . American, . Mountain, . Farmhouse, . Transitional, . Country, . Modern rustic, . Craftsman / Northwest
Similar plans
Previously Viewed Plans
Thank you for your comment! It must be approved before being put online, please allow a period of 24 hours.
Error with google reCaptcha! Try again
Here is a brief description of our different plan packages. Please select the plan package that suits your needs. You can change the package at the next step, if necessary.
PDF VERSION OF PLAN:
Complete digital version of plan (pdf format) sent by email (original plan format 18" x 24'' or 24" x 36'')
5 copies of plan + PDF:
Includes: 5 copies of plan, plan in PDF format (reduced size version), materials list.
Foundation type
Additional foundation types are available, a fee may apply. Please indicate your choice on the online order form, or to our customer service representative, when placing your house plan order.
If your desired foundation type is not available, please contact our customer service to receive your free plan modification quote.
Explanation of bonus space types
UNFINISHED BONUS ROOM
The bonus rooms are often planned above the garage and are accessible from the house. They are designed to be converted as an office, a laundry area, a bathroom, a library corner or even an additional bedroom for which homeowners must make sure to have a window that complies with current codes & standards.
STORAGE AREA
Often located above the garage, our storage areas are used only as storage and are usually accessible from the garage via a retractable staircase.
Do you like this plan but want it to be modified to suit your needs?
To add a garage, another bedroom, finish the basement or any other modification, click here and let us know about your desired changes and to get your free quote for the modification of your plan.
Conditions of use
Important copyright notice! Please take note of these copyright conditions before printing:
By printing this house plan, cottage or garage or the floorplan(s), you confirm being informed that every house plan on this website is the exclusive property of Drummond House
Plans and is protected by Canadian copyright law. You are aware that these prints cannot be used to build or even obtain a building permit. The graphic representations of these
models are offered by Drummond House Plans for the sole purpose of allowing you to notate modifications of a model and then take it to one of the Drummond House Plans Canadian dealers for
modification of the plan.
The purchase of a house plan, cottage or garage from Drummond House Plans is mandatory if you wish to build any of our models. The plan purchase allows you to build a single unit; you cannot resell or give your plan to anyone once the house, cottage or garage has been built. If you wish to build the same house, cottage or garage more than once, you need to obtain the licence to this effect. Please contact us for more details.
All plans from Drummond House Plans can only be modified by a licensed Drummond House Plan Canadian dealer. If any other business or individual with no affiliation to Drummond House Plans modifies a Drummond House Plan on your behalf, please ensure this business or individual has a licence to modify this specific plan or you will be subject to prosecution on the same level as the business or individual who modified or reproduced the plan.
For more details, do not hesitate to contact u by e-mail or by phone at 1-800-567-1413.
I agree to respect the conditions above to not reproduce, modify or build a model from Drummond House Plans without previously purchasing a complete house plan.

























