There are no shipping fees if you buy one of our 2 plan packages "PDF file format" or "5 sets of blueprints + PDF". Shipping charges may apply if you buy additional sets of blueprints.
                                                                                                                                                                                                                                                                                                                                                                                                                                                                                                                                                                                                                                                                                                                                                                          House plan St-Arnaud 3  (2673-V2)                
                                      
                                  
              
              Contemporary Farmhouse Home Plan – 4 Bedrooms, Double Garage and Stunning Fireplace
Virtual visit
Other useful information on this plan
Contemporary Farmhouse Home Plan – Double Garage, 4 Bedrooms and Two-Story Wood-Burning Fireplace
This charming farmhouse-style home plan with a double garage has been designed to meet the needs of today’s families while offering a warm and welcoming style. Inspired by the charm of modern farmhouses, it perfectly combines comfort, functionality, and timeless aesthetics—an ideal choice for couples and families seeking a spacious, inviting home.
From the moment you arrive, an inviting front porch welcomes your guests and invites you to enjoy the outdoors in peace. Inside, a large, family-friendly kitchen with a 5-seat island, generous pantry, and a spacious Z2C wine cellar conveniently located nearby becomes the heart of the home. This generous layout is perfect for cooking, sharing meals, and gathering with family. The dining area adjoining the family room creates a bright, seamless space for hosting friends and loved ones.
A Spectacular and Cozy Living Room with STÛV Wood Stove
The living room and family room stand out with their two-story central fireplace, bringing authentic charm and a warm ambiance. The proposed wood-burning model, the STÛV s21, is renowned for its elegant design and performance. The open mezzanine and cathedral ceiling add a dramatic effect and flood the space with natural light, creating a unique retreat where the whole family loves to gather.
Nearby, a practical mudroom located at the garage entrance makes everyday organization easy. A convenient main-floor powder room adds a touch of comfort for family and guests. Outdoors, a large covered terrace lets you set up an outdoor dining area or kitchen to extend your entertaining space.
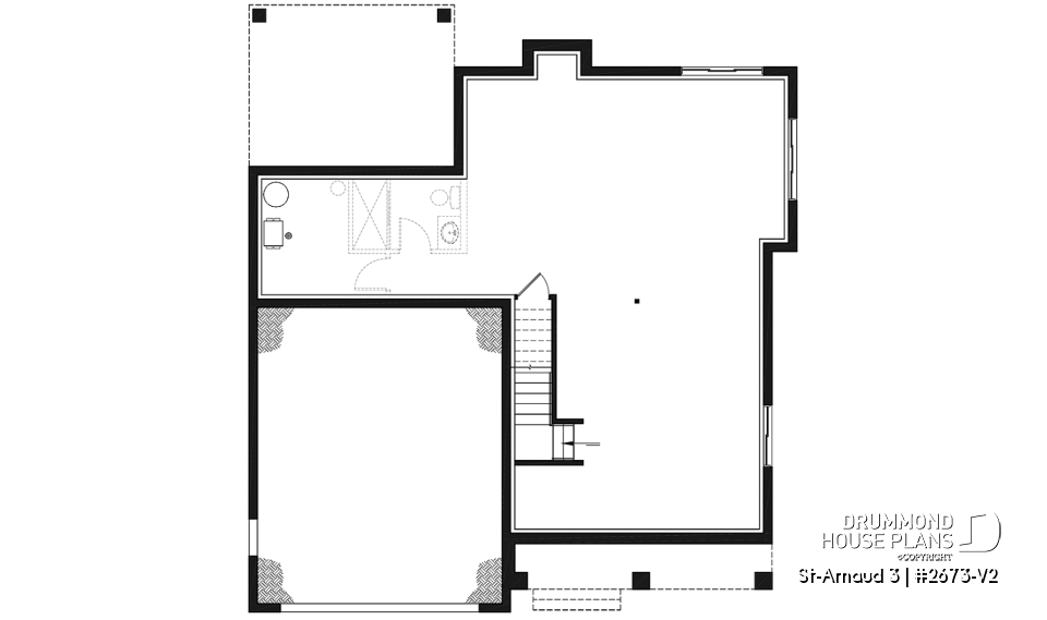
The spacious primary suite includes a double vanity, large shower, and an oversized walk-in closet, blending comfort and privacy. Upstairs, a laundry room with utility sink simplifies household tasks. Three secondary bedrooms, two of them with walk-in closets, share a generous full bathroom.
The open mezzanine overlooking the family room enhances the volume and brightness of the space. A double garage provides direct, convenient access to the home. Finally, an unfinished basement and several foundation options allow you to adapt this plan to your lifestyle and your lot.
Distinctive elements
Charming Farmhouse-Style Home Plan with Double Garage.
Inviting front porch, perfect for welcoming guests and enjoying the outdoors.
Spacious, family-friendly kitchen with a 5-seat island and generous pantry—ideal for cooking and gathering.
*Custom-designed wine cellar option: Z2C
Dining area adjoining the family room with a two-story central fireplace for a warm, welcoming atmosphere.
Proposed wood-burning fireplace model: STÛV s21.
Bright family room with mezzanine and cathedral ceiling, creating an open, dramatic space.
Practical mudroom located near the garage entrance for everyday convenience.
Handy main-floor powder room for guests and busy family life.
Large covered terrace, perfect for entertaining outdoors or setting up an outdoor kitchen.
Spacious primary suite with double vanity, large shower, and an oversized walk-in closet, combining comfort and privacy.
Three secondary bedrooms, two with walk-in closets, share a spacious full bathroom.
Open mezzanine overlooking the family room for a spectacular, airy effect.
Upstairs laundry room with utility sink for added practicality.
Double garage providing direct and convenient access to the home.
Unfinished basement ready to be customized to your needs. Other foundation options available.
Plan feature(s)
Mud room, Pantry, Island, Panoramic view, Fireplace, Mezzanine, Cathedral ceiling, Second floor laundry room, Master suite upstairs, Walk-in master bed., Deck, Wine cellar, Double sinks
Plan architectural style(s)
. Farmhouse, . American, . Transitional, . Country, . Craftsman / Northwest, Modern Craftsman, Modern farmhouse
Similar plans
Previously Viewed Plans
Thank you for your comment! It must be approved before being put online, please allow a period of 24 hours.
Error with google reCaptcha! Try again
Here is a brief description of our different plan packages. Please select the plan package that suits your needs. You can change the package at the next step, if necessary.
PDF VERSION OF PLAN:
Complete digital version of plan (pdf format) sent by email (original plan format 18" x 24'' or 24" x 36'')
5 copies of plan + PDF:
Includes: 5 copies of plan, plan in PDF format (reduced size version), materials list.
Foundation type
Additional foundation types are available, a fee may apply. Please indicate your choice on the online order form, or to our customer service representative, when placing your house plan order.
If your desired foundation type is not available, please contact our customer service to receive your free plan modification quote.
Explanation of bonus space types
UNFINISHED BONUS ROOM
The bonus rooms are often planned above the garage and are accessible from the house. They are designed to be converted as an office, a laundry area, a bathroom, a library corner or even an additional bedroom for which homeowners must make sure to have a window that complies with current codes & standards.
STORAGE AREA
Often located above the garage, our storage areas are used only as storage and are usually accessible from the garage via a retractable staircase.
Do you like this plan but want it to be modified to suit your needs?
To add a garage, another bedroom, finish the basement or any other modification, click here and let us know about your desired changes and to get your free quote for the modification of your plan.
Conditions of use
Important copyright notice! Please take note of these copyright conditions before printing:
        By printing this house plan, cottage or garage or the floorplan(s), you confirm being informed that every house plan on this website is the exclusive property of Drummond House
          Plans and is protected by Canadian copyright law. You are aware that these prints cannot be used to build or even obtain a building permit. The graphic representations of these
        models are offered by Drummond House Plans for the sole purpose of allowing you to notate modifications of a model and then take it to one of the Drummond House Plans Canadian dealers for
        modification of the plan.
The purchase of a house plan, cottage or garage from Drummond House Plans is mandatory if you wish to build any of our models. The plan purchase allows you to build a single unit; you cannot resell or give your plan to anyone once the house, cottage or garage has been built. If you wish to build the same house, cottage or garage more than once, you need to obtain the licence to this effect. Please contact us for more details.
All plans from Drummond House Plans can only be modified by a licensed Drummond House Plan Canadian dealer. If any other business or individual with no affiliation to Drummond House Plans modifies a Drummond House Plan on your behalf, please ensure this business or individual has a licence to modify this specific plan or you will be subject to prosecution on the same level as the business or individual who modified or reproduced the plan.
For more details, do not hesitate to contact u by e-mail or by phone at 1-800-567-1413.
I agree to respect the conditions above to not reproduce, modify or build a model from Drummond House Plans without previously purchasing a complete house plan.











 
                           
                           
                           
                           
                           
                           
                           
                           
                          


 
                             
                             
                            
























 
                                   
                                   
                                   
                                   
                                   
                                   
                                   
                                   
                                   
                                   
                                   
                                   
                                   
                                   
                                   
                                   
                                   
                                   
                                   
                                   
                                   
                                   
                                   
                                   
                                  


 
                               
                               
                               
                         
                         
                         
                         
                         
                                           
                         
                         
                         
                         
                         
                         
                         
                         
                         
                         
                         
                         
                         
                         
                         
                         
                         
                         
                         
                         
                         
                         
                         
                         
                         
               
               
               
               
               
               
               
               
              