There are no shipping fees if you buy one of our 2 plan packages "PDF file format" or "5 sets of blueprints + PDF". Shipping charges may apply if you buy additional sets of blueprints.
                                                                                                                                                                                                                                                                                                                                                                                                                                                                                                                                                                                                                                                                                                                                                                          House plan Magnolia house 2  (3988-V1)                
                                      
                                  
              
              Modern Farmhouse home plan with open concept, great kitchen with island, master bedroom with ensuite and more
Other useful information on this plan
Modern version of a country farmhouse house plan
This versatile model is an updated American style farmhouse or country cottage. Whether for a vacation home or a main residence this charming home offers a minimalist approach in natural tones that blend in well with its environment. The many windows throughout enhance passive energy by optimizing natural light.
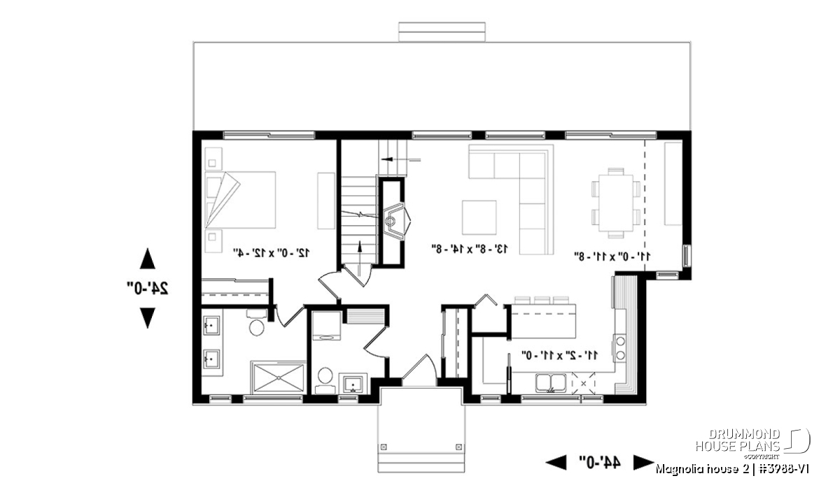
The master suite on the main level has a bathroom with shower and access to the large terrace facing the backyard  through its own patio doors thus enhancing the privacy of the occupants while letting in an abundance of natural light and scenic views of nature.
The kitchen has a lovely pantry with window and an island that can seat 3 comfortably. The dining room is adjacent patio or French doors (your choice!) and opens onto the living room with fireplace that has enough room above it to install a plasma TV. A powder room with space for a stack able washer/dryer pair complete the features of the first floor.
The second floor is not finished, allowing you to add extra bedrooms or a home office, reading room, or whatever your needs are.
Distinctive elements
Cottage with a country home look.
Abundance of natural light through the many windows throughout.
Master suite with shower room and private access to the terrace through patio doors.
Kitchen with pantry and island
Living room / dining room with open floor plan and a fireplace.
Reading or computer corner upstairs.
Plan feature(s)
Ceiling over 8', Sloped ceiling, Fireplace, Pantry, Master suite on main, Double sinks, Lunch counter, Loft
Plan architectural style(s)
. Transitional, . Modern / Design, . American, . Modern rustic, . Rustic, . Farmhouse, . Cottage, chalet, cabin, . Country, . Vacation and waterfront, . Scandinavian, . Ranch
Similar plans
Previously Viewed Plans
Thank you for your comment! It must be approved before being put online, please allow a period of 24 hours.
Error with google reCaptcha! Try again
Here is a brief description of our different plan packages. Please select the plan package that suits your needs. You can change the package at the next step, if necessary.
PDF VERSION OF PLAN:
Complete digital version of plan (pdf format) sent by email (original plan format 18" x 24'' or 24" x 36'')
5 copies of plan + PDF:
Includes: 5 copies of plan, plan in PDF format (reduced size version), materials list.
Foundation type
Additional foundation types are available, a fee may apply. Please indicate your choice on the online order form, or to our customer service representative, when placing your house plan order.
If your desired foundation type is not available, please contact our customer service to receive your free plan modification quote.
Explanation of bonus space types
UNFINISHED BONUS ROOM
The bonus rooms are often planned above the garage and are accessible from the house. They are designed to be converted as an office, a laundry area, a bathroom, a library corner or even an additional bedroom for which homeowners must make sure to have a window that complies with current codes & standards.
STORAGE AREA
Often located above the garage, our storage areas are used only as storage and are usually accessible from the garage via a retractable staircase.
Do you like this plan but want it to be modified to suit your needs?
To add a garage, another bedroom, finish the basement or any other modification, click here and let us know about your desired changes and to get your free quote for the modification of your plan.
Conditions of use
Important copyright notice! Please take note of these copyright conditions before printing:
        By printing this house plan, cottage or garage or the floorplan(s), you confirm being informed that every house plan on this website is the exclusive property of Drummond House
          Plans and is protected by Canadian copyright law. You are aware that these prints cannot be used to build or even obtain a building permit. The graphic representations of these
        models are offered by Drummond House Plans for the sole purpose of allowing you to notate modifications of a model and then take it to one of the Drummond House Plans Canadian dealers for
        modification of the plan.
The purchase of a house plan, cottage or garage from Drummond House Plans is mandatory if you wish to build any of our models. The plan purchase allows you to build a single unit; you cannot resell or give your plan to anyone once the house, cottage or garage has been built. If you wish to build the same house, cottage or garage more than once, you need to obtain the licence to this effect. Please contact us for more details.
All plans from Drummond House Plans can only be modified by a licensed Drummond House Plan Canadian dealer. If any other business or individual with no affiliation to Drummond House Plans modifies a Drummond House Plan on your behalf, please ensure this business or individual has a licence to modify this specific plan or you will be subject to prosecution on the same level as the business or individual who modified or reproduced the plan.
For more details, do not hesitate to contact u by e-mail or by phone at 1-800-567-1413.
I agree to respect the conditions above to not reproduce, modify or build a model from Drummond House Plans without previously purchasing a complete house plan.








                          
                          
                          
                          
                          
                          

                            
                            


