There are no shipping fees if you buy one of our 2 plan packages "PDF file format" or "5 sets of blueprints + PDF". Shipping charges may apply if you buy additional sets of blueprints.
House plan Corydon (3220)
Affordable Craftsman home with unfinished basement, and 2-car garage
Other useful information on this plan
Craftsman charm with ranch feel and a double garage
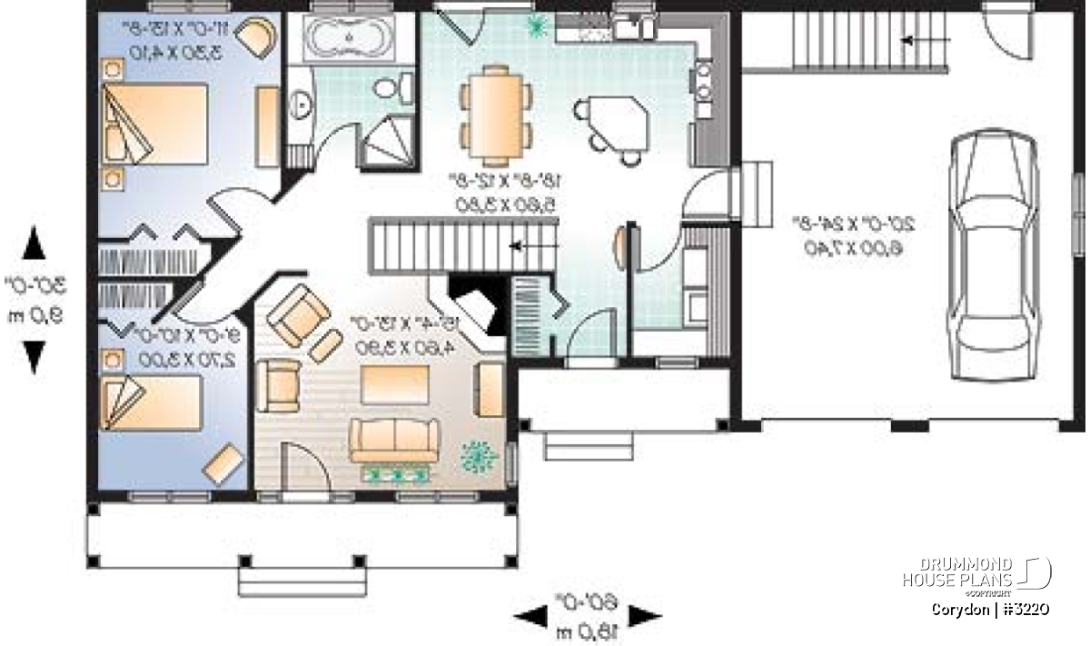
Two covered porches on the front facade add to the welcoming style whose curb appeal is enhanced by the well proportioned peaks and double garage.
Access to the inside from the foyer off the kitchen is adjacent to a separate laundry area with ample storage space and a counter. The kitchen/dining area has a convenient island and access to the garage as well.
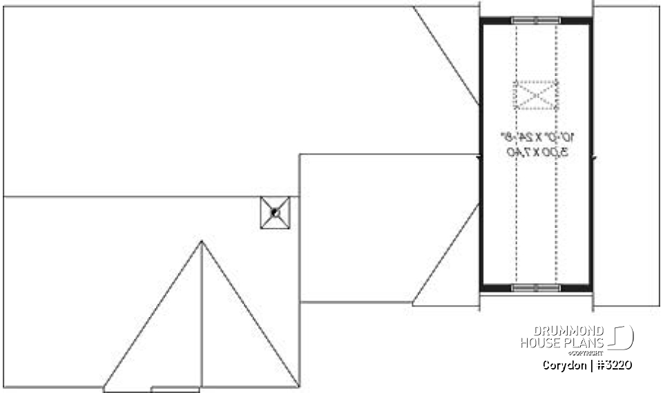
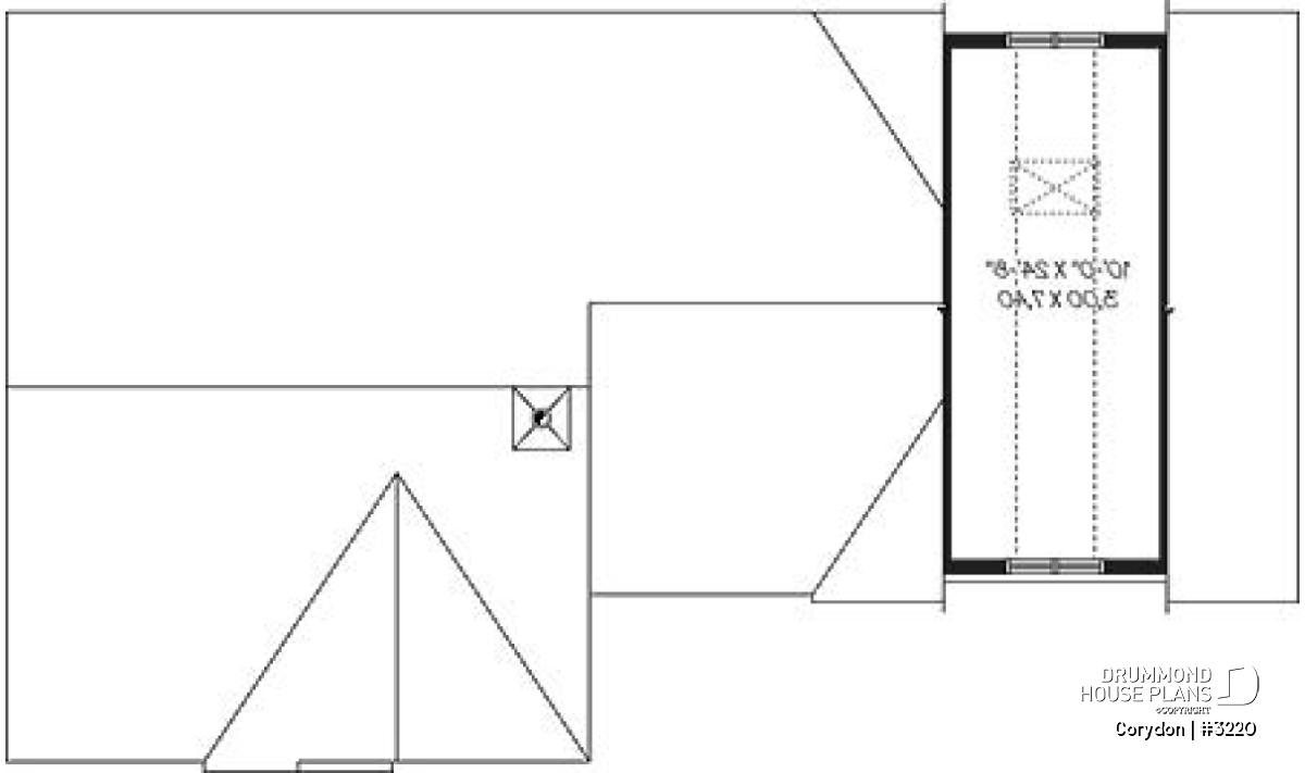
There is a second set of stairs to the full basement from the garage along with a convenient door to the back yard. The large 10’ x almost 25’ bonus space above the garage is an ideal place to store seasonal items. With some modifications to the original design this space could even be converted to a third bedroom or guest suite, accessible from the stairs.
Our customization specialists would be happy to give you the details!
The cozy, separate living room has its own door to the larger of the two front porches, a feature which is sure to be popular in milder weather, and is made even more welcoming by its corner fireplace. Two nicely sized bedrooms with abundant closet space along with a bathroom that has a bath and a corner shower complete the main floor of this unique plan.
Distinctive elements
Two covered front porches. Appreciable family room with corner fireplace. Independant laundry room on first level. Two-car garage with storage area above and access to basement.
Plan feature(s)
Fireplace, Basement access from garage, Island, Separate bath and shower, Gound floor laundry room
Plan architectural style(s)
. Traditional, . American, . Craftsman / Northwest, . Ranch, . Farmhouse, . Country
Similar plans
Previously Viewed Plans
Questions and comments
August 06
Laura
Hi There,
Is it possible to increase the depth and width (increase square footage), and the outside remain very similar (roof peak for example)?
Thanks
August 06
Customer service
Good day and thank you for taking the time to write.
We would be happy to return a free estimate for the changes that you require to this plan within two business days after receipt of this on line form.
Please let me know if I can further assist you
Regards
Deb
May 26
Laurie Redl
Can this home be well insulated for cold winters?
Thank you
May 26
Customer service
Good day Ms. Redl and thank you for your interest in this plan.
This home is designed to withstand cold winters with R20 insulation in the exterior walls and R40 in the ceiling. There are also energy enhancements such as 1" thick, rigid foam insulation at the foundation to ensure that a maximum of your heating dollar is spent for your comfort!
Please let me know if you have any other questions or comments.
Regards
Deb
Thank you for your comment! It must be approved before being put online, please allow a period of 24 hours.
Error with google reCaptcha! Try again
Here is a brief description of our different plan packages. Please select the plan package that suits your needs. You can change the package at the next step, if necessary.
PDF VERSION OF PLAN:
Complete digital version of plan (pdf format) sent by email (original plan format 18" x 24'' or 24" x 36'')
5 copies of plan + PDF:
Includes: 5 copies of plan, plan in PDF format (reduced size version), materials list.
Foundation type
Additional foundation types are available, a fee may apply. Please indicate your choice on the online order form, or to our customer service representative, when placing your house plan order.
If your desired foundation type is not available, please contact our customer service to receive your free plan modification quote.
Explanation of bonus space types
UNFINISHED BONUS ROOM
The bonus rooms are often planned above the garage and are accessible from the house. They are designed to be converted as an office, a laundry area, a bathroom, a library corner or even an additional bedroom for which homeowners must make sure to have a window that complies with current codes & standards.
STORAGE AREA
Often located above the garage, our storage areas are used only as storage and are usually accessible from the garage via a retractable staircase.
Do you like this plan but want it to be modified to suit your needs?
To add a garage, another bedroom, finish the basement or any other modification, click here and let us know about your desired changes and to get your free quote for the modification of your plan.
Conditions of use
Important copyright notice! Please take note of these copyright conditions before printing:
By printing this house plan, cottage or garage or the floorplan(s), you confirm being informed that every house plan on this website is the exclusive property of Drummond House
Plans and is protected by Canadian copyright law. You are aware that these prints cannot be used to build or even obtain a building permit. The graphic representations of these
models are offered by Drummond House Plans for the sole purpose of allowing you to notate modifications of a model and then take it to one of the Drummond House Plans Canadian dealers for
modification of the plan.
The purchase of a house plan, cottage or garage from Drummond House Plans is mandatory if you wish to build any of our models. The plan purchase allows you to build a single unit; you cannot resell or give your plan to anyone once the house, cottage or garage has been built. If you wish to build the same house, cottage or garage more than once, you need to obtain the licence to this effect. Please contact us for more details.
All plans from Drummond House Plans can only be modified by a licensed Drummond House Plan Canadian dealer. If any other business or individual with no affiliation to Drummond House Plans modifies a Drummond House Plan on your behalf, please ensure this business or individual has a licence to modify this specific plan or you will be subject to prosecution on the same level as the business or individual who modified or reproduced the plan.
For more details, do not hesitate to contact u by e-mail or by phone at 1-800-567-1413.
I agree to respect the conditions above to not reproduce, modify or build a model from Drummond House Plans without previously purchasing a complete house plan.

















August 06
Laura
Hi There,
Is it possible to increase the depth and width (increase square footage), and the outside remain very similar (roof peak for example)?
Thanks