There are no shipping fees if you buy one of our 2 plan packages "PDF file format" or "5 sets of blueprints + PDF". Shipping charges may apply if you buy additional sets of blueprints.
House plan Aspen Creek 2 (3154-V1)
2 bedroom Mountain style bungalow with garage, mud room, laundry room on main and open floor plan
Other useful information on this plan
Superb Mountain style one-story house plan with two bedrooms and unfinished daylight basement
The following country-style 2-bedroom bungalow with garage plan, Aspen Creek 2 (3154-V1), offers us 1,344 square feet of living space, in which multiple stages of life can accommodate.
Even from the outside, an elegance spreads from this house. The wood gables are reminiscent of the country style, and the mix of stones, bricks and siding gives a beautiful and interesting texture to the eye. The covered porch gives us access to the interior.
At the entrance, a nice closed space with a wardrobe of more than 6 feet in length, allows you to store all the everyday effects, without letting the temperature of the common space of the house be affected too much. Note that the entrance to the single garage is also separated, in a way, by the laundry room. In it, there is storage, a practical counter as well as appliances.
A wide corridor follows the two bedrooms as well as the bathroom to end in the open space common area. The master bedroom, located at the front of the house, offers a large walk-in closet, which frees up the bedroom space of any large furniture. Opposite is the second bedroom, perfect size for a child or an office for working from home. The bathroom offers a double sink, a freestanding tub and a large separate shower. Not to mention a storage wall.
In the kitchen, there is a good-sized island, which can easily accommodate 3 guests. The fact that the kitchen opens directly onto the open dining room, allows a very convivial space. This conviviality can be continued in the gallery with a patio door, or, on the opposite, in the living room.
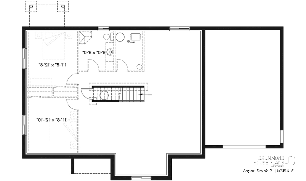
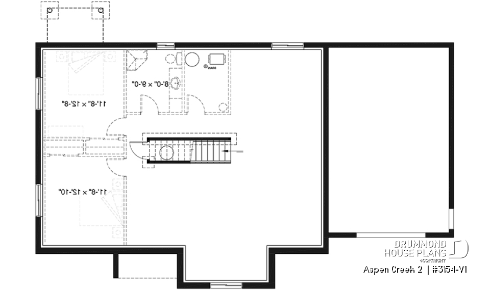
The convertible basement allows for the possibility of two other bedrooms as well as a second bathroom. So this well thought out house will meet all your needs.
Distinctive elements
Single-story Mountain-style home featuring a convenient single garage and a layout designed for effortless everyday living.
Warm and inviting interior thanks to carefully selected materials, soft natural tones and an overall welcoming ambiance.
Two well-sized bedrooms, including a primary suite with a walk-in closet—perfect for a young family or a couple seeking comfort and practicality.
Enclosed vestibule with a spacious closet, ideal for keeping the entryway organized and clean.
Functional kitchen with a central island, fully open to the dining area to encourage easy gatherings and enjoyable mealtimes.
Open-concept living area filled with natural light, thoughtfully arranged to suit the rhythm of family life.
Laundry room conveniently located next to the garage, making post-activity clean-ups quick and efficient.
Full family bathroom offering two sinks along with a separate bathtub and shower for smooth morning and evening routines.
Covered front porch providing a welcoming first impression and a sheltered outdoor space in any season.
Full-height basement ready to be finished to your needs—whether a family room, additional bedrooms, storage space or a hobby area.
Plan feature(s)
Gound floor laundry room, Open floor layout, Lunch counter, Island, Walk-in master bed., Mud room, Double sinks, Separate bath and shower
Plan architectural style(s)
Modern Craftsman, . Craftsman / Northwest, . Ranch, . Transitional, . Modern rustic, . Mountain, . Country, . Farmhouse
Similar plans
Previously Viewed Plans
Thank you for your comment! It must be approved before being put online, please allow a period of 24 hours.
Error with google reCaptcha! Try again
Here is a brief description of our different plan packages. Please select the plan package that suits your needs. You can change the package at the next step, if necessary.
PDF VERSION OF PLAN:
Complete digital version of plan (pdf format) sent by email (original plan format 18" x 24'' or 24" x 36'')
5 copies of plan + PDF:
Includes: 5 copies of plan, plan in PDF format (reduced size version), materials list.
Foundation type
Additional foundation types are available, a fee may apply. Please indicate your choice on the online order form, or to our customer service representative, when placing your house plan order.
If your desired foundation type is not available, please contact our customer service to receive your free plan modification quote.
Explanation of bonus space types
UNFINISHED BONUS ROOM
The bonus rooms are often planned above the garage and are accessible from the house. They are designed to be converted as an office, a laundry area, a bathroom, a library corner or even an additional bedroom for which homeowners must make sure to have a window that complies with current codes & standards.
STORAGE AREA
Often located above the garage, our storage areas are used only as storage and are usually accessible from the garage via a retractable staircase.
Do you like this plan but want it to be modified to suit your needs?
To add a garage, another bedroom, finish the basement or any other modification, click here and let us know about your desired changes and to get your free quote for the modification of your plan.
Conditions of use
Important copyright notice! Please take note of these copyright conditions before printing:
By printing this house plan, cottage or garage or the floorplan(s), you confirm being informed that every house plan on this website is the exclusive property of Drummond House
Plans and is protected by Canadian copyright law. You are aware that these prints cannot be used to build or even obtain a building permit. The graphic representations of these
models are offered by Drummond House Plans for the sole purpose of allowing you to notate modifications of a model and then take it to one of the Drummond House Plans Canadian dealers for
modification of the plan.
The purchase of a house plan, cottage or garage from Drummond House Plans is mandatory if you wish to build any of our models. The plan purchase allows you to build a single unit; you cannot resell or give your plan to anyone once the house, cottage or garage has been built. If you wish to build the same house, cottage or garage more than once, you need to obtain the licence to this effect. Please contact us for more details.
All plans from Drummond House Plans can only be modified by a licensed Drummond House Plan Canadian dealer. If any other business or individual with no affiliation to Drummond House Plans modifies a Drummond House Plan on your behalf, please ensure this business or individual has a licence to modify this specific plan or you will be subject to prosecution on the same level as the business or individual who modified or reproduced the plan.
For more details, do not hesitate to contact u by e-mail or by phone at 1-800-567-1413.
I agree to respect the conditions above to not reproduce, modify or build a model from Drummond House Plans without previously purchasing a complete house plan.














