front - BASE MODEL - Bright Bungalow House Plan with Double Garage, Cathedral Ceiling and Up to 6 Bedrooms - Dambroise 2

front - BASE MODEL

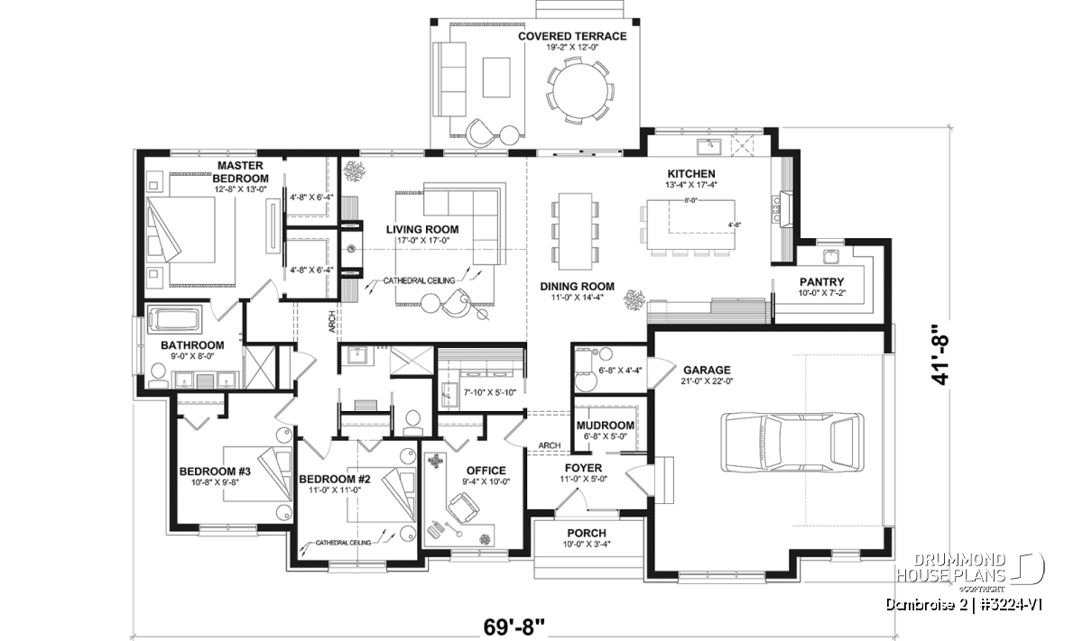
1st level - Bright Bungalow House Plan with Double Garage, Cathedral Ceiling and Up to 6 Bedrooms - Dambroise 2

1st level

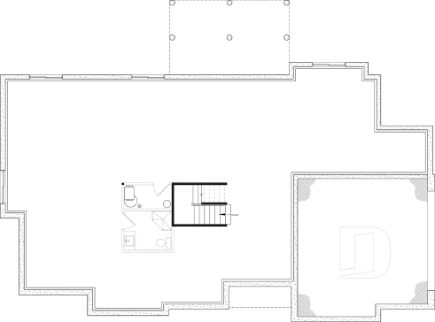
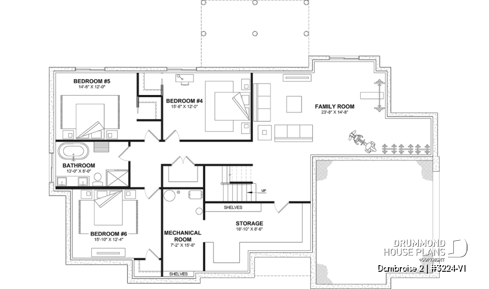
Unfinished basement - Bright Bungalow House Plan with Double Garage, Cathedral Ceiling and Up to 6 Bedrooms - Dambroise 2

Unfinished basement

1st level (Optional $) - Bright Bungalow House Plan with Double Garage, Cathedral Ceiling and Up to 6 Bedrooms - Dambroise 2

1st level (Optional $)

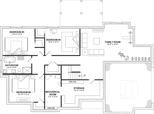
Finished basement (Optional $) - Bright Bungalow House Plan with Double Garage, Cathedral Ceiling and Up to 6 Bedrooms - Dambroise 2

Finished basement (Optional $)

rear elevation - Dambroise 2

rear elevation

Dambroise 2 House plan 3224-V1

Bright Bungalow House Plan with Double Garage, Cathedral Ceiling and Up to 6 Bedrooms

Starting from

1740$

Technical details summary Plan #3224-V1
Total living area 2016 sq.ft. Bedroom 3, 4, 5, 6
Full baths 2 Half baths -
Foundation included Unfinished Basement Garage Two-car garage
Width 69'8" Depth 41'8"

Need help ?

Our experts are here to guide you to make your dream project come to life.

Contact us

Come see us

Visit one of our 30 regional offices.

Our offices

Need a home insurance ?

To get your price, it's just here

Get a quote Advertisement

Additional details

General specifications

Total living area
2016 sq.ft.
1st level
2016 sq.ft.
Unfinished basement
2016 sq.ft.
1st level (Optional $)
2016 sq.ft.
Finished basement (Optional $)
2016 sq.ft.
Width
69'8"
Depth
41'8"
Ridge height from top of foundation
23'4"
Exterior wall
2 X 6
Other available foundations (a fee may apply)
Finished basement, Floating Slab, Crawl space, Monolithic Slab
Builder price code
E

Rooms specifications

Bedroom(s)
3, 4, 5, 6
Full baths
2
Half baths
-
Garage type
Two-car garage (494 sq.ft.)
Covered porch area
30 sq.ft.

1st level

Rooms
Sizes
Ceiling
Home office
9'4" x 10'0"
~ 9'0"
Closet
4'2" x 2'0"
~ 9'0"
Kitchen
13'4" x 17'4"
~ 9'0"
Pantry
10'0" x 7'2"
~ 9'0"
Kitchen island
8'0" x 4'6"
N/A
Bedroom
11'0" x 11'0"
~ 10'6"
Closet
4'6" x 2'0"
~ 9'0"
Bedroom
10'8" x 9'8"
~ 9'0"
Closet
4'4" x 2'0"
~ 9'0"
Laundry room
6'2" x 7'0"
~ 9'0"
Garage
21'0" x 22'0"
~ 10'8"
Mud room
6'8" x 5'0"
~ 9'0"
Foyer
11'0" x 5'0"
~ 9'0"
Porch
10'0" x 3'4"
~ 9'4"
Dining room
11'0" x 14'4"
~ 9'0"
Covered deck
19'2" x 12'0"
~ 9'4"
Master suite
12'8" x 13'0"
~ 9'0"
Full bathroom
9'0" x 8'0"
~ 9'0"
Shower
4'0" x 3'0"
N/A
Linen
1'6" x 1'4"
N/A
Walk-in closet
4'8" x 6'4"
~ 9'0"
Walk-in closet
4'8" x 6'4"
~ 9'0"
Closet
4'0" x 1'4"
~ 9'0"
Shower room or three quarter bath
8'4" x 6'0"
~ 9'0"
Enclosed toilet space
3'6" x 5'4"
~ 9'0"
Shower
2'8" x 4'0"
N/A
Linen
2'0" x 1'0"
N/A
Living room
17'0" x 17'0"
~ 13'5"

Unfinished basement

Finished basement (Optional $)

1st level (Optional $)

Dambroise 2 (#3224-V1): Modern Rustic Bungalow House Plan with 6 Bedrooms, Double Garage & Finished Basement Option

The Dambroise 2 (#3224-V1) is a stunning modern rustic bungalow house plan designed to offer both comfort and versatility, with a total of 2,016 sq. ft. on the main floor and an additional 2,016 sq. ft. basement ready to be customized to your needs.

From the moment you arrive, this home stands out with its warm architectural style, blending natural textures and clean modern lines. The side double garage enhances the façade while offering flexibility, as it can easily be adapted to a front-facing configuration if desired.

Inside, the main floor welcomes you with 9-foot ceilings throughout and a spectacular cathedral ceiling in the living room, creating an open and airy atmosphere. The rear of the home is filled with natural light thanks to large windows and a patio door, seamlessly connecting the kitchen, dining room, and living room into one inviting living space.

At the heart of the home, the kitchen is designed for both everyday living and entertaining. A large central island seating up to six people becomes the perfect gathering spot, while the walk-in pantry—designed as a functional back kitchen with its own sink—keeps everything organized and within reach. Whether hosting family or friends, this layout delivers both style and practicality.

The living room offers a warm and welcoming ambiance, highlighted by a central fireplace visible from the entire main living area and enhanced by built-in cabinetry on each side. Nearby, a dedicated home office located near the entrance provides a quiet and practical space for working from home or managing daily tasks.

Functionality is also front and center with a spacious mudroom accessible from both the front entrance and the garage, along with a conveniently located laundry room on the main floor. Thoughtful architectural details, such as decorative ceiling arches, add a unique touch of character throughout the home.

The primary suite, located on the main floor, is designed as a true private retreat. It features two walk-in closets and a bright ensuite bathroom complete with a freestanding tub, separate shower, and double vanity. Two additional bedrooms complete the main level, sharing a well-designed bathroom with a shower and closet.

The basement, included as unfinished in the base plan, offers exceptional potential with another 2,016 sq. ft. to customize according to your lifestyle. For those needing more space, the optional finished basement layout allows for up to six bedrooms in total, making this home ideal for large families, multi-generational living, or those who simply want extra room to grow. The finished option also includes a spacious family room, a dedicated gym area, a full bathroom, and ample storage space with a mechanical room.

At the back, a generous 19' x 12' terrace extends your living space outdoors, creating the perfect setting for relaxing evenings or entertaining guests.

The Dambroise 2 (#3224-V1) is a thoughtfully designed bungalow that combines modern style, functional living spaces, and long-term flexibility—perfect for today’s families and tomorrow’s possibilities.

Distinctive elements

Large modern rustic bungalow with a double garage, offering a warm and contemporary look.
9' ceilings throughout the main floor, with an impressive cathedral ceiling in the living room.
Exceptional natural light at the rear with large windows and a patio door in the kitchen, dining area and living room.
Front entry and garage entry both lead to a spacious mudroom, ideal for everyday organization.
Dedicated home office located near the entrance, featuring a closet for practical storage.
Elegant decorative ceiling arches between the office and main living area, adding character.
Main floor laundry room conveniently located near the kitchen, complete with a utility sink.
Spacious, inviting kitchen with a wine storage area and a large island seating up to 6 people.
Walk-in pantry designed as a back kitchen with sink and abundant storage for optimal functionality.
Open-concept kitchen flowing seamlessly into the dining room and living room, perfect for entertaining.
Warm and inviting living room with a central fireplace visible from the entire living space, and built-in cabinetry on each side.
Main floor primary suite featuring a private bathroom and two separate walk-in closets.
Bright ensuite bathroom with a freestanding tub, separate shower, and double vanity.
Two additional bedrooms sharing a bathroom with shower.
Unfinished basement offering great potential for future development.
Large 19' x 12' rear terrace, ideal for both lounging and outdoor dining.
Side double garage that can easily be reconfigured to a front-facing garage if desired.
---
Optional finished basement:
Three additional generously sized bedrooms, each with a walk-in closet.
Large bathroom with separate tub and shower, and double vanity.
Spacious family room with a dedicated area for a home gym.
Large storage space including the mechanical room.
---
*If you wish to purchase the finished basement plan, as presented on this plan page, please select this option in the shopping cart, in the "Selection of foundation type" section. If you do not select this option, you will receive the unfinished full basement option, at no extra charge.

Plan feature(s)

Side load garage, Open floor layout, Arch, Butler's pantry, Coffee bar, Separate bath and shower, Cathedral ceiling, Fireplace, Island, Gound floor laundry room, Master suite on main, Covered patios, His/Hers walk-in, Panoramic view, Ceiling over 8', Pantry, Built-ins, Double sinks, Office / Study / Den, Side entry garage, Wash tank, Mud room, Butler's pantry, Wine cellar

Plan architectural style(s)

Craftsman / Northwest, Ranch, Farmhouse, Rustic, Mountain, American, Country, Modern rustic

Similar plans
Logo Drummond House Plans image drummond house plans
The plan Dambroise 2 is protected by the copyright law.

The illustrations shown may differ from the detailed construction plans you will receive, as plans are regularly updated to comply with current building codes.

Photos displayed on this page may reflect modifications made by homeowners and may vary from the original plan.

Learn more

A question or a comment on this plan ?

Contact information

Your request

Add your pictures or photos

To add one or more photos, click or drag your files into the area below. You may upload up to eight JPG or JPEG images. This step is optional.

Sorry, your browser does not support file uploads.