There are no shipping fees if you buy one of our 2 plan packages "PDF file format" or "5 sets of blueprints + PDF". Shipping charges may apply if you buy additional sets of blueprints.
                                                                                                                                                                                                                                                                                                                                                                                                                                                                                                                                                                                                                                                                                                                                                                          House plan The Timberline 2  (3912)                
                                      
                                  
              
              Stunning 4 beds 3 baths lake / mountain house plan, 2 fireplaces, open concept, 2-car garage, x-large deck
Other useful information on this plan
Expansive Panoramic View, reverse floor plan cottage design and 4+ bedrooms
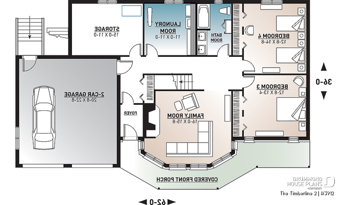
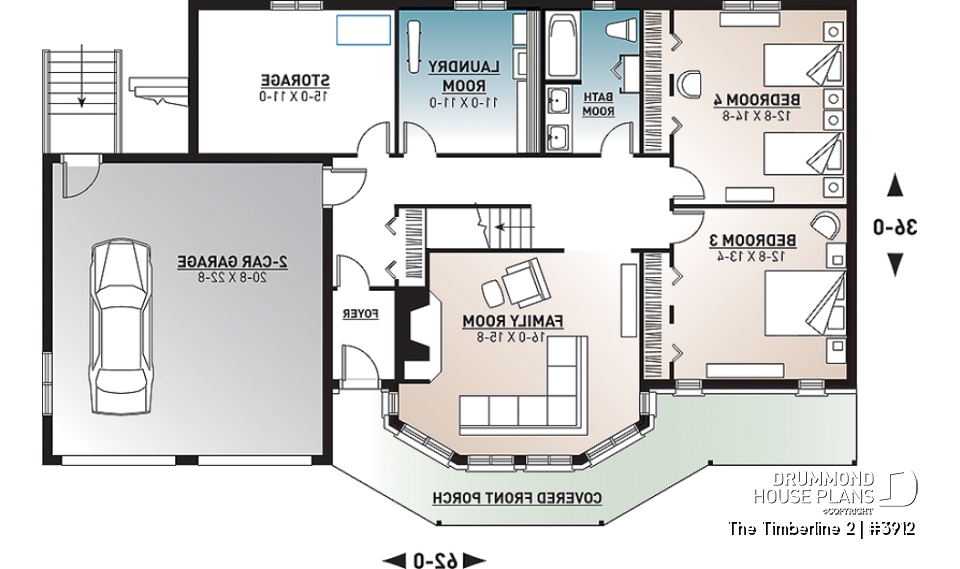
While many chalet-type homes have a panoramic view towards the rear, this one has a different orientation with a panoramic windowed façade. Ideal for a sloping lot, with a lot grading up towards the rear of the house, the main level becomes the basement and the second floor becomes the main level.
The basement level boasts a two-car garage, entry foyer, generous storage area, ample  laundry/sewing room with drying area, a bathroom and two good-sized bedrooms. A family room enjoys abundant light by day and the glow of a fireplace by night.
The upstairs activity center is open and flowing with a kitchen with central lunch counter, an independent breakfast area, a dining room which can easily sit up to ten and family room with breathtaking cathedral ceiling. The master bedroom has a command view of the panorama, his and hers closets and private bathroom for pleasure and relaxation.  Bedroom four could also be used as a den and the whole level enjoys direct access to an impressive wraparound deck at the front and above the garage.
Distinctive elements
Cathedral ceiling in the main living area. Two sided fireplace between the living and dining rooms. Kitchen with corner pantry and island. Master suite on main level is one of the 5 bedrooms. Double, drive under garage with terrace above.
Plan feature(s)
Fireplace, Breakfast nook, Master suite upstairs, Island, Panoramic view, Cathedral ceiling, Inverted living, Gound floor laundry room, Open floor layout, Deck, Pantry
Plan architectural style(s)
. Cottage, chalet, cabin, . Vacation and waterfront, . Ski chalets, . American, . A-Frame, . Scandinavian, . Modern / Design, . Mountain
Similar plans
Previously Viewed Plans
Questions and comments
December 08
Neftalí
What is the estimate cost for the construction of this model?
Thanks!
December 08
Customer service
Good day and thank you for taking the time to write 
Although we do no actual construction, the ballpark estimate to build this home in Quebec (Canada) starts at around $355,000. 
This estimate is based on professional grade materials and includes ceramic in the foyer, the kitchen and the bathrooms with hardwood flooring throughout the common areas and in  the bedrooms. The kitchen cabinetry is wood grain melamine. This construction estimate to build in Quebec was updated on January 10th 2014 and is for a turn key project. 
The cost of the land and its excavation, taxes and hook-ups to municipal or other services is not included in the calculation and it is highly recommended to consult local contractors and materials suppliers to get a better idea of the actual cost to build in your area. 
I hope that this provides some helpful information and I invite you to contact me if you have any other questions or comments 
Regards 
Deb
Thank you for your comment! It must be approved before being put online, please allow a period of 24 hours.
Error with google reCaptcha! Try again
Here is a brief description of our different plan packages. Please select the plan package that suits your needs. You can change the package at the next step, if necessary.
PDF VERSION OF PLAN:
Complete digital version of plan (pdf format) sent by email (original plan format 18" x 24'' or 24" x 36'')
5 copies of plan + PDF:
Includes: 5 copies of plan, plan in PDF format (reduced size version), materials list.
Foundation type
Additional foundation types are available, a fee may apply. Please indicate your choice on the online order form, or to our customer service representative, when placing your house plan order.
If your desired foundation type is not available, please contact our customer service to receive your free plan modification quote.
Explanation of bonus space types
UNFINISHED BONUS ROOM
The bonus rooms are often planned above the garage and are accessible from the house. They are designed to be converted as an office, a laundry area, a bathroom, a library corner or even an additional bedroom for which homeowners must make sure to have a window that complies with current codes & standards.
STORAGE AREA
Often located above the garage, our storage areas are used only as storage and are usually accessible from the garage via a retractable staircase.
Do you like this plan but want it to be modified to suit your needs?
To add a garage, another bedroom, finish the basement or any other modification, click here and let us know about your desired changes and to get your free quote for the modification of your plan.
Conditions of use
Important copyright notice! Please take note of these copyright conditions before printing:
        By printing this house plan, cottage or garage or the floorplan(s), you confirm being informed that every house plan on this website is the exclusive property of Drummond House
          Plans and is protected by Canadian copyright law. You are aware that these prints cannot be used to build or even obtain a building permit. The graphic representations of these
        models are offered by Drummond House Plans for the sole purpose of allowing you to notate modifications of a model and then take it to one of the Drummond House Plans Canadian dealers for
        modification of the plan.
The purchase of a house plan, cottage or garage from Drummond House Plans is mandatory if you wish to build any of our models. The plan purchase allows you to build a single unit; you cannot resell or give your plan to anyone once the house, cottage or garage has been built. If you wish to build the same house, cottage or garage more than once, you need to obtain the licence to this effect. Please contact us for more details.
All plans from Drummond House Plans can only be modified by a licensed Drummond House Plan Canadian dealer. If any other business or individual with no affiliation to Drummond House Plans modifies a Drummond House Plan on your behalf, please ensure this business or individual has a licence to modify this specific plan or you will be subject to prosecution on the same level as the business or individual who modified or reproduced the plan.
For more details, do not hesitate to contact u by e-mail or by phone at 1-800-567-1413.
I agree to respect the conditions above to not reproduce, modify or build a model from Drummond House Plans without previously purchasing a complete house plan.










                          
                          
                          
                          
                          
                          
                          
                          

                            
                            


                                  
                                  
                                  
                        
                        
                        
                        
                        
                        
                        
                        
                        
                        
                        
              
              
              
              
              
              
              
              
              
              
December 08
Neftalí
What is the estimate cost for the construction of this model?
Thanks!