There are no shipping fees if you buy one of our 2 plan packages "PDF file format" or "5 sets of blueprints + PDF". Shipping charges may apply if you buy additional sets of blueprints.
House plan Sequoia 2 (3713-V1)
Affordable Modern home plan, garage, 3 beds, 1.5 baths, family & living rooms, 9' ceiling on main, fireplace
Other useful information on this plan
Contemporary style that’s in demand for its 3 beds, 2 baths and garage
Having received much attention at a Home Show in which it had been built on site and in response to the many requests for the addition of a garage to plan 3713, we are pleased to present model 3713-V1. The addition of a garage that is 14’ wide and almost 28’ deep is sure to meet the needs of the many who specifically requested this convenient feature.
Outside, the addition of a garage clad in fibre cement panels with cedar siding matches the rest of the structure for a pleasing visual impact and definite curb appeal.
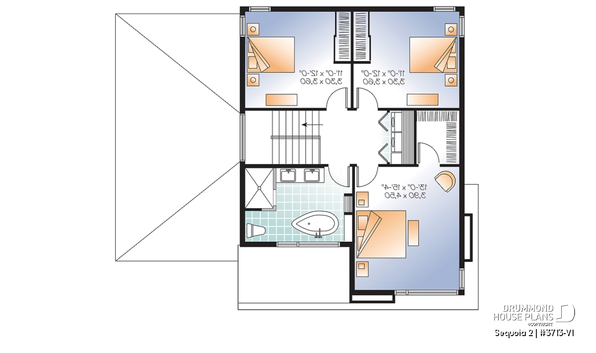
Inside, other than the service entrance from the garage, this plan shares the same laudable features as its predecessor such as 9’ ceilings throughout the main level, a modern fireplace in the living room, a kitchen with an 8’ x 3’ island and computer corner, nicely sized bedrooms with ample closet space that includes a walk-in in the master bedroom and a full bathroom with separate 42” x 60” shower enclosure.
We invite you to discover our contemporary collection and share your comments with us !
Distinctive elements
9' ceiling throughout main floor. Fireplace in living room. Kitchen with 8'x3' island and adjoining conversation room. Good-sized bedrooms with closets and master bedroom includes walk-in closet. Generous bathroom with independant 42"x60" shower.
Plan feature(s)
Second floor laundry room, Island, Sitting area, Ceiling over 8', Panoramic view, Fireplace, Separate bath and shower, Entrance hall, Double sinks, Office / Study / Den
Plan architectural style(s)
. Modern / Design, . Modern rustic, . Transitional, . Contemporary
Similar plans
Previously Viewed Plans
Questions and comments
August 25
patrick
can this be modified to have 4 bedrooms, 3 bathrooms, 2 family rooms, no basement and potential cost to build
August 25
Customer service
Good day Mr. Allanah and thank you for your interest in this plan.
We would be happy to provide a free estimate for the changes that you need done to this plan within two business days after receipt of this on line form.
Although ballpark estimates to build these plans in Quebec, Canada are given on our French web site, the cost to build your modified plan will vary. It is therefore your local contractors and materials suppliers that would be your best resource for this specific information.
Please let me know if I can further assist you
Regards
Deb
February 13
Jim
How much does this build cost, with basement?
February 13
Customer service
Good day and thank you for taking the time to write
There are ballpark construction estimates to build the model in Quebec available, which appear on our French site, that you can access by clicking on the link ?Plans de maison (FR)? at the upper right side of the screen. This estimate does not include the BCIN requirements which are necessary if you want to obtain a building permit in Ontario.
The estimates are based on professional grade materials and include ceramic in the hallway, the kitchen and the bathrooms and hardwood flooring throughout the common areas and the bedrooms (carpet in the bedrooms of models that have less than 1,800 sq.ft. of living space) with wood grain melamine cabinetry. The lower of the two construction estimates is for a self managed project in which the owner does all of the planning, scheduling and signature of contracts with the various specialized contractors as well as taking care of the physical installation of the vapor barrier, the insulation, the gyproc and the paint and the higher of the two estimates is for a turn key project.
In either case the cost of the land and its excavation, taxes and hook-ups to municipal or other services is not included in the calculation and it is highly recommended to consult local contractors and materials suppliers to get a better idea of the actual cost to build in your area.
I hope that this provides some helpful information and I invite you to contact me if you have any other questions or comments
Regards
Deb
Deb
Thank you for your comment! It must be approved before being put online, please allow a period of 24 hours.
Error with google reCaptcha! Try again
Here is a brief description of our different plan packages. Please select the plan package that suits your needs. You can change the package at the next step, if necessary.
PDF VERSION OF PLAN:
Complete digital version of plan (pdf format) sent by email (original plan format 18" x 24'' or 24" x 36'')
5 copies of plan + PDF:
Includes: 5 copies of plan, plan in PDF format (reduced size version), materials list.
Foundation type
Additional foundation types are available, a fee may apply. Please indicate your choice on the online order form, or to our customer service representative, when placing your house plan order.
If your desired foundation type is not available, please contact our customer service to receive your free plan modification quote.
Explanation of bonus space types
UNFINISHED BONUS ROOM
The bonus rooms are often planned above the garage and are accessible from the house. They are designed to be converted as an office, a laundry area, a bathroom, a library corner or even an additional bedroom for which homeowners must make sure to have a window that complies with current codes & standards.
STORAGE AREA
Often located above the garage, our storage areas are used only as storage and are usually accessible from the garage via a retractable staircase.
Do you like this plan but want it to be modified to suit your needs?
To add a garage, another bedroom, finish the basement or any other modification, click here and let us know about your desired changes and to get your free quote for the modification of your plan.
Conditions of use
Important copyright notice! Please take note of these copyright conditions before printing:
By printing this house plan, cottage or garage or the floorplan(s), you confirm being informed that every house plan on this website is the exclusive property of Drummond House
Plans and is protected by Canadian copyright law. You are aware that these prints cannot be used to build or even obtain a building permit. The graphic representations of these
models are offered by Drummond House Plans for the sole purpose of allowing you to notate modifications of a model and then take it to one of the Drummond House Plans Canadian dealers for
modification of the plan.
The purchase of a house plan, cottage or garage from Drummond House Plans is mandatory if you wish to build any of our models. The plan purchase allows you to build a single unit; you cannot resell or give your plan to anyone once the house, cottage or garage has been built. If you wish to build the same house, cottage or garage more than once, you need to obtain the licence to this effect. Please contact us for more details.
All plans from Drummond House Plans can only be modified by a licensed Drummond House Plan Canadian dealer. If any other business or individual with no affiliation to Drummond House Plans modifies a Drummond House Plan on your behalf, please ensure this business or individual has a licence to modify this specific plan or you will be subject to prosecution on the same level as the business or individual who modified or reproduced the plan.
For more details, do not hesitate to contact u by e-mail or by phone at 1-800-567-1413.
I agree to respect the conditions above to not reproduce, modify or build a model from Drummond House Plans without previously purchasing a complete house plan.

























August 25
patrick
can this be modified to have 4 bedrooms, 3 bathrooms, 2 family rooms, no basement and potential cost to build