There are no shipping fees if you buy one of our 2 plan packages "PDF file format" or "5 sets of blueprints + PDF". Shipping charges may apply if you buy additional sets of blueprints.
House plan Oakvale (6118)
Country-style house plan with 2 to 4 bedrooms, optional finished basement ($), garage, open floor plan
Virtual visit
Other useful information on this plan
Modern farmhouse style home plan offering a layout designed for small and large families!
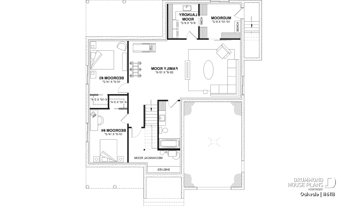
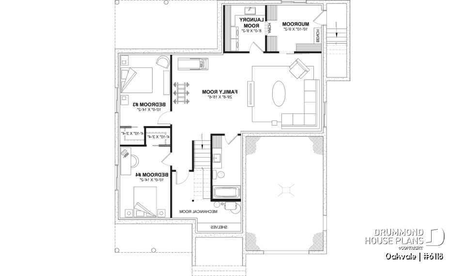
The OAKVALE house plan (#6118) offers 1398 sq. ft. on the ground floor and a 400 sq. ft. garage. A finished basement proposal is also illustrated (option on plan $) if you want to increase the space available to your family. Many foundations options are available.
Two bedrooms are planned on the ground floor, and if you want to finish the basement, two other bedrooms are arranged there, for a total of 4 bedrooms.
The ground floor, with its 9-foot ceiling and open concept floor, will have a unifying effect on your family. Indeed, whether you are in the kitchen, the dining room or the living room, everything is open allowing you to participate in the conversation while cooking!
The master bedroom has a walk-in closet and receives beautiful natural light from its large window overlooking the back yard. The bathroom includes a separate bath and shower, two sinks and a private toilet. The 2nd bedroom on the ground floor can be used as an office or bedroom, depending on your needs.
The covered rear terrace allows for additional living space in the warm season! It will be a delight for your receptions when the weather allows!
---
*Optional basement finishing ($):
2 secondary bedrooms, a bathroom, the laundry room, the mechanical room and a large family room.
**If you wish to obtain the finished basement plan, please select this option in the shopping cart.
Distinctive elements
Country-style single-story house plan, with a good-sized single garage.
Cute front balcony, large enough to set up 2 chairs and relax.
*Option to finish the basement for a total of 4 bedrooms.
The garage access and the front entrance open onto a mudroom with seating area.
The living room, with cathedral ceiling is open to the kitchen and dining room.
All the ceilings on the ground floor are 9' high except in the living room (cathedral).
The kitchen has a pantry and a central island, and is open to the dining room.
The master bedroom offers a walk-in closet.
The master bedroom and the secondary bedroom share the full bathroom. The latter has two sinks, and a separate bath and shower.
A side entrance allows access to the basement from the outside.
The sheltered rear terrace can accommodate a dining area and a lounge area without problem.
---
*Optional basement finishing ($):
2 secondary bedrooms, a bathroom, the laundry room, the mechanical room and a large family room.
---
**If you wish to obtain the finished basement plan, please select this option in the shopping cart.
Plan feature(s)
Access to basement from exterior, Pantry, Deck, Mud room, Ceiling over 8', Cathedral ceiling, Open floor layout, Pantry, Walk-in master bed., Separate bath and shower, Double sinks, Island, Bench seat(s), Arch, Sliding barn door(s), Access to basement from exterior, Builder, Self-Build
Plan architectural style(s)
Modern farmhouse, . American, . Farmhouse, . Country, . Modern rustic, . Craftsman / Northwest, Modern Craftsman
Similar plans
Previously Viewed Plans
Thank you for your comment! It must be approved before being put online, please allow a period of 24 hours.
Error with google reCaptcha! Try again
Here is a brief description of our different plan packages. Please select the plan package that suits your needs. You can change the package at the next step, if necessary.
PDF VERSION OF PLAN:
Complete digital version of plan (pdf format) sent by email (original plan format 18" x 24'' or 24" x 36'')
5 copies of plan + PDF:
Includes: 5 copies of plan, plan in PDF format (reduced size version), materials list.
Foundation type
Additional foundation types are available, a fee may apply. Please indicate your choice on the online order form, or to our customer service representative, when placing your house plan order.
If your desired foundation type is not available, please contact our customer service to receive your free plan modification quote.
Explanation of bonus space types
UNFINISHED BONUS ROOM
The bonus rooms are often planned above the garage and are accessible from the house. They are designed to be converted as an office, a laundry area, a bathroom, a library corner or even an additional bedroom for which homeowners must make sure to have a window that complies with current codes & standards.
STORAGE AREA
Often located above the garage, our storage areas are used only as storage and are usually accessible from the garage via a retractable staircase.
Do you like this plan but want it to be modified to suit your needs?
To add a garage, another bedroom, finish the basement or any other modification, click here and let us know about your desired changes and to get your free quote for the modification of your plan.
Conditions of use
Important copyright notice! Please take note of these copyright conditions before printing:
By printing this house plan, cottage or garage or the floorplan(s), you confirm being informed that every house plan on this website is the exclusive property of Drummond House
Plans and is protected by Canadian copyright law. You are aware that these prints cannot be used to build or even obtain a building permit. The graphic representations of these
models are offered by Drummond House Plans for the sole purpose of allowing you to notate modifications of a model and then take it to one of the Drummond House Plans Canadian dealers for
modification of the plan.
The purchase of a house plan, cottage or garage from Drummond House Plans is mandatory if you wish to build any of our models. The plan purchase allows you to build a single unit; you cannot resell or give your plan to anyone once the house, cottage or garage has been built. If you wish to build the same house, cottage or garage more than once, you need to obtain the licence to this effect. Please contact us for more details.
All plans from Drummond House Plans can only be modified by a licensed Drummond House Plan Canadian dealer. If any other business or individual with no affiliation to Drummond House Plans modifies a Drummond House Plan on your behalf, please ensure this business or individual has a licence to modify this specific plan or you will be subject to prosecution on the same level as the business or individual who modified or reproduced the plan.
For more details, do not hesitate to contact u by e-mail or by phone at 1-800-567-1413.
I agree to respect the conditions above to not reproduce, modify or build a model from Drummond House Plans without previously purchasing a complete house plan.


















