There are no shipping fees if you buy one of our 2 plan packages "PDF file format" or "5 sets of blueprints + PDF". Shipping charges may apply if you buy additional sets of blueprints.
House plan Maple Way (3287)
One-story Modern Farmhouse, Spacious Master Suite, 2-Car-Garage, Large Covered Terrace, 10' Ceiling in Living
Virtual visit
Other useful information on this plan
Maple Way House Plan – Modern and Timeless Farmhouse with Double Garage and Gas Fireplace
This modern farmhouse model captivates with its timeless appeal and a design that blends elegance with functionality. Its façade stands out with a beautiful roofline and refined finishes, evoking the charm of country homes reimagined for today’s lifestyle.
From the moment you enter, a welcoming foyer with built-in bench sets the tone — comfort, style, and practicality. Nearby, a versatile office space can easily be converted into a third bedroom to suit your family’s needs.
At the heart of the home, the bright, open kitchen features a large pantry and a cozy window bench, perfect for admiring the view or relaxing with a coffee. The living room, with its 10-foot ceiling and central gas fireplace, offers a warm and elegant ambiance. Built-in benches and shelving on each side of the fireplace add harmony, character, and charm.
The 9-foot ceilings throughout the rest of the main floor enhance the sense of openness and light. A mudroom at the garage entrance makes everyday organization simple and convenient, connecting directly to the pantry and kitchen.
The primary suite is a true retreat, complete with two spacious walk-in closets and a private bathroom featuring a freestanding tub, large glass shower, private toilet enclosure, and dual vanities. A secondary bedroom, set apart for privacy, enjoys its own private shower room — ideal for guests or family.
A laundry room adjacent to the primary suite adds everyday convenience, while a 20' x 13' covered terrace extends the living space outdoors, perfect for year-round enjoyment.
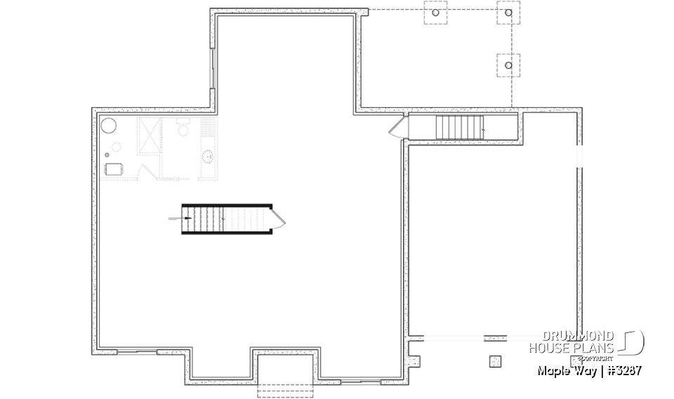
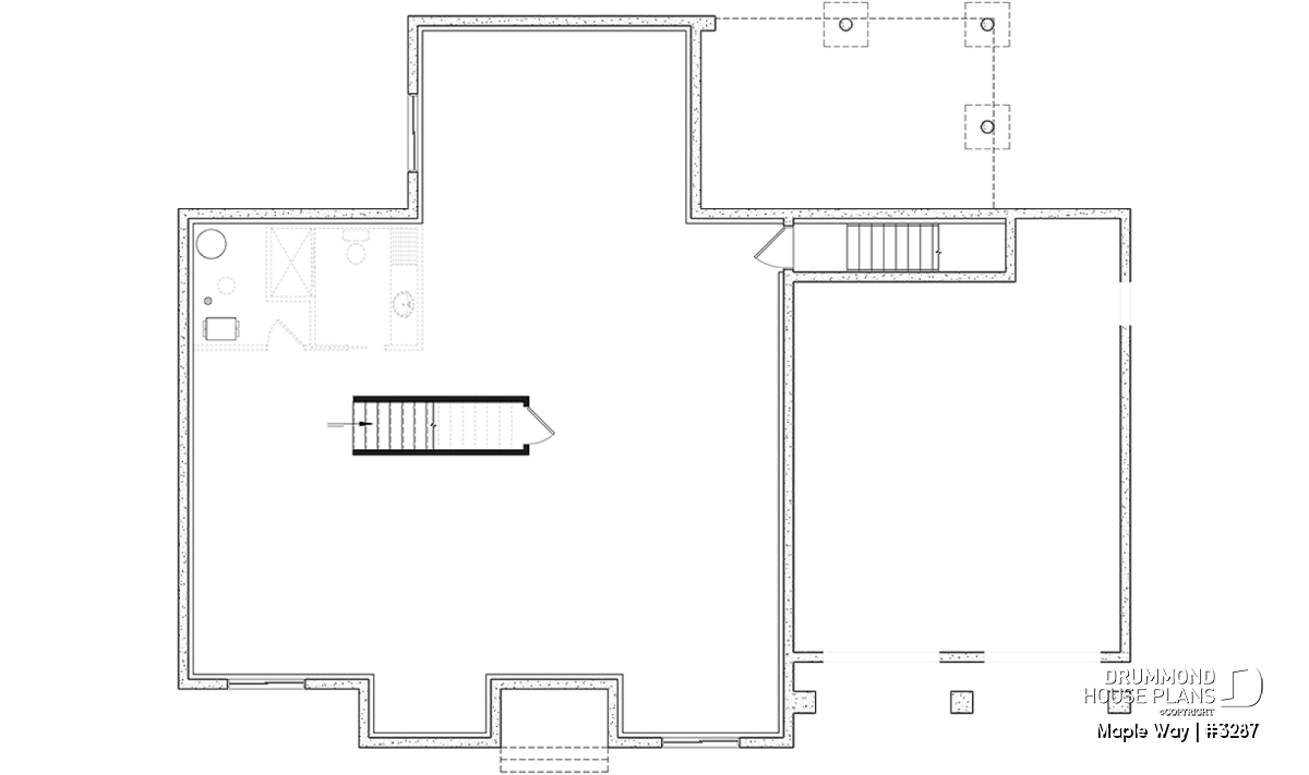
The unfinished basement offers countless layout possibilities to adapt to your future needs, from extra bedrooms to a family room or gym. A double garage with direct basement access completes the layout.
Perfectly combining modern style, warmth, and practicality, this bright farmhouse home embodies a lifestyle that’s both elegant and timeless, designed for comfort and family living at its finest.
Distinctive elements
Modern Farmhouse with Elegant and Timeless Style.
Distinctive façade featuring a beautiful roofline and refined finishes.
Welcoming entryway with a built-in bench.
Versatile office space that can easily be converted into a 3rd bedroom.
Bright kitchen with a large pantry and a charming window bench to enjoy the view.
Living room with a 10-foot ceiling and central fireplace, creating a warm and inviting atmosphere.
Built-in benches and shelving on each side of the fireplace for a decorative and practical touch.
Nine-foot ceilings throughout the other rooms, offering an open and airy feel.
Convenient mudroom at the garage entrance, located near the pantry and kitchen.
Primary suite with private bathroom and two separate walk-in closets.
Elegant bathroom featuring a freestanding tub, double vanity, large glass shower, and private toilet enclosure.
Secondary bedroom set apart for privacy, with a walk-in closet and its own private shower — perfect for guests.
Laundry room with utility sink, located next to the primary bedroom.
Large covered terrace (20' x 13') — perfect for enjoying the outdoors in any season.
Unfinished basement to be customized according to your needs and lifestyle.
Spacious double garage with direct access to the basement.
Plan feature(s)
Cathedral ceiling, Ceiling over 8', Master suite upstairs, Gound floor laundry room, Office / Study / Den, Mud room, Pantry, Deck, Basement access from garage, Fireplace, Built-ins, His/Hers walk-in, Separate bath and shower, Bench seat(s)
Plan architectural style(s)
. Farmhouse, . Mountain, . American, . Craftsman / Northwest, . Ranch, . Transitional, . Country, . Modern rustic, . L-Shaped
Similar plans
Previously Viewed Plans
Thank you for your comment! It must be approved before being put online, please allow a period of 24 hours.
Error with google reCaptcha! Try again
Here is a brief description of our different plan packages. Please select the plan package that suits your needs. You can change the package at the next step, if necessary.
PDF VERSION OF PLAN:
Complete digital version of plan (pdf format) sent by email (original plan format 18" x 24'' or 24" x 36'')
5 copies of plan + PDF:
Includes: 5 copies of plan, plan in PDF format (reduced size version), materials list.
Foundation type
Additional foundation types are available, a fee may apply. Please indicate your choice on the online order form, or to our customer service representative, when placing your house plan order.
If your desired foundation type is not available, please contact our customer service to receive your free plan modification quote.
Explanation of bonus space types
UNFINISHED BONUS ROOM
The bonus rooms are often planned above the garage and are accessible from the house. They are designed to be converted as an office, a laundry area, a bathroom, a library corner or even an additional bedroom for which homeowners must make sure to have a window that complies with current codes & standards.
STORAGE AREA
Often located above the garage, our storage areas are used only as storage and are usually accessible from the garage via a retractable staircase.
Do you like this plan but want it to be modified to suit your needs?
To add a garage, another bedroom, finish the basement or any other modification, click here and let us know about your desired changes and to get your free quote for the modification of your plan.
Conditions of use
Important copyright notice! Please take note of these copyright conditions before printing:
By printing this house plan, cottage or garage or the floorplan(s), you confirm being informed that every house plan on this website is the exclusive property of Drummond House
Plans and is protected by Canadian copyright law. You are aware that these prints cannot be used to build or even obtain a building permit. The graphic representations of these
models are offered by Drummond House Plans for the sole purpose of allowing you to notate modifications of a model and then take it to one of the Drummond House Plans Canadian dealers for
modification of the plan.
The purchase of a house plan, cottage or garage from Drummond House Plans is mandatory if you wish to build any of our models. The plan purchase allows you to build a single unit; you cannot resell or give your plan to anyone once the house, cottage or garage has been built. If you wish to build the same house, cottage or garage more than once, you need to obtain the licence to this effect. Please contact us for more details.
All plans from Drummond House Plans can only be modified by a licensed Drummond House Plan Canadian dealer. If any other business or individual with no affiliation to Drummond House Plans modifies a Drummond House Plan on your behalf, please ensure this business or individual has a licence to modify this specific plan or you will be subject to prosecution on the same level as the business or individual who modified or reproduced the plan.
For more details, do not hesitate to contact u by e-mail or by phone at 1-800-567-1413.
I agree to respect the conditions above to not reproduce, modify or build a model from Drummond House Plans without previously purchasing a complete house plan.























































