There are no shipping fees if you buy one of our 2 plan packages "PDF file format" or "5 sets of blueprints + PDF". Shipping charges may apply if you buy additional sets of blueprints.
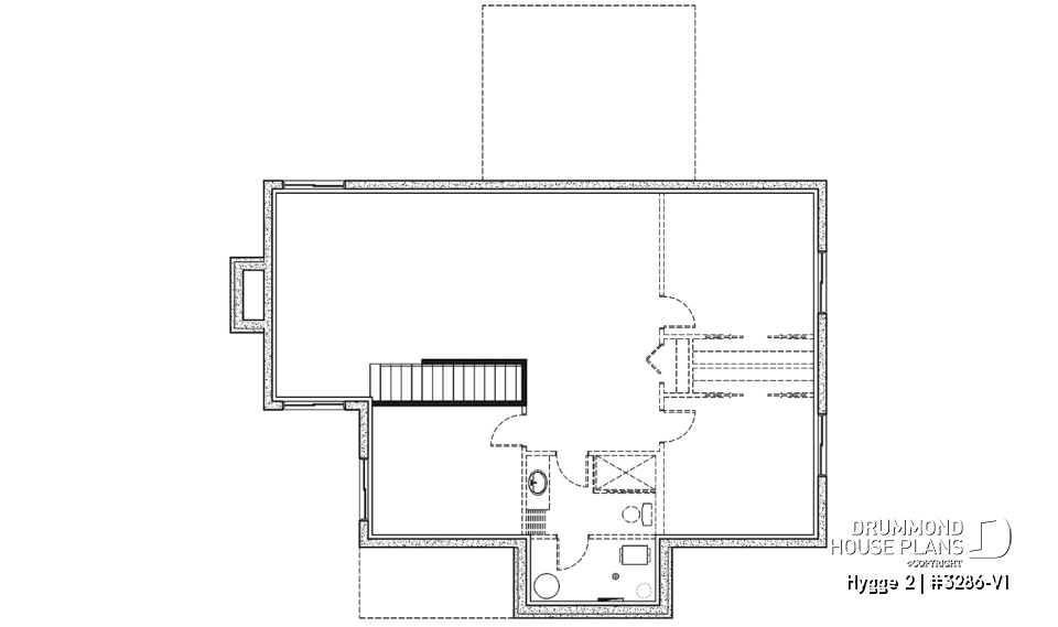
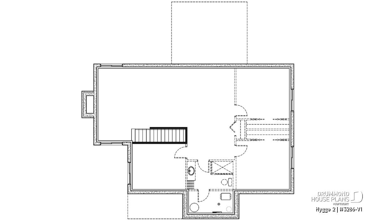
House plan Hygge 2 (3286-V1)
Modern Scandinavian Home Design, Master Suite, Home Office or Bedroom #2, Covered Rear Balcony
Other useful information on this plan
Modern Scandinavian One-Story Home with Large Covered Terrace and Bright Open Living Spaces: A Clean, Warm and Functional Layout
This stunning Scandinavian-style one-story home strikes the perfect balance between minimalist elegance, modern comfort and thoughtful functionality. From the very first glance, its clean lines, warm character and inviting architecture reflect the essence of Nordic design: simplicity, brightness and an atmosphere that enhances everyday well-being. The covered front porch creates a welcoming first impression and leads naturally into a well-organized entryway featuring built-in storage to keep the space neat and clutter-free.
Inside, the floor plan offers a smooth and intuitive flow, ideal for contemporary family living. The primary suite stands out with its refined ambiance. Its cathedral ceiling enhances the sense of openness and tranquility, while the private bathroom and well-designed storage solutions add comfort and ease to daily life. This room becomes a true retreat—calm, elegant and perfectly suited for relaxation.
A conveniently located laundry room on the main floor adds to the home’s practicality, making everyday chores easier and more efficient. Bedroom #2, versatile and filled with natural light, can serve as a secondary bedroom, a guest room or a dedicated study. With direct access to a nearby bathroom, it becomes even more functional for teenagers, visitors or remote-work needs.
The heart of the home is the rear living area, beautifully illuminated by abundant natural light. The kitchen, featuring a large central island and generous pantry, opens fully to the dining area, creating a warm and welcoming environment typical of Scandinavian homes. The adjacent living room, complete with a cozy fireplace and a 10' ceiling, adds comfort and sophistication to this shared space, making it the perfect gathering spot for family time and entertaining.
Outside, the spacious 17' x 14' covered rear terrace extends the living space seamlessly, acting as a true outdoor room usable through multiple seasons. It easily accommodates an outdoor dining area and a relaxing lounge setup, offering comfort and shelter from the weather.
In summary, this modern Scandinavian one-story home stands out for its clean design, exceptional brightness and contemporary comfort. It provides a warm, harmonious and highly functional living environment ideally suited for today’s families.
Distinctive elements
Beautiful Modern Scandinavian-style single-story home offering clean lines and modern comfort.
Covered front porch leading to a welcoming entryway with built-in storage.
Spacious primary bedroom with cathedral ceiling, private bathroom and a refined, peaceful ambiance.
Convenient main-floor laundry room perfectly located for everyday living.
Bedroom #2 can also serve as a study, featuring direct access to a nearby bathroom.
Bright kitchen with a large island and pantry, fully open to the dining area for easy, social living.
Living room with a cozy fireplace and a 10' ceiling, while the rest of the home enjoys 9' ceilings.
Abundant natural light throughout the rear living spaces, enhancing the home’s warm atmosphere.
Large covered rear terrace measuring 17' x 14', ideal for creating an outdoor dining area and a relaxing lounge space sheltered from the weather.
Plan feature(s)
Open floor layout, Gound floor laundry room, Split bedrooms, Panoramic view, Fireplace, Island, Pantry, Ceiling over 8', Cathedral ceiling, Master suite on main, Deck, Mud room, Office / Study / Den, Plafond avec fausses poutres
Plan architectural style(s)
. Scandinavian, . Craftsman / Northwest, . Ranch, . Modern / Design, . Vacation and waterfront, . Modern rustic, . Contemporary
Similar plans
Previously Viewed Plans
Thank you for your comment! It must be approved before being put online, please allow a period of 24 hours.
Error with google reCaptcha! Try again
Here is a brief description of our different plan packages. Please select the plan package that suits your needs. You can change the package at the next step, if necessary.
PDF VERSION OF PLAN:
Complete digital version of plan (pdf format) sent by email (original plan format 18" x 24'' or 24" x 36'')
5 copies of plan + PDF:
Includes: 5 copies of plan, plan in PDF format (reduced size version), materials list.
Foundation type
Additional foundation types are available, a fee may apply. Please indicate your choice on the online order form, or to our customer service representative, when placing your house plan order.
If your desired foundation type is not available, please contact our customer service to receive your free plan modification quote.
Explanation of bonus space types
UNFINISHED BONUS ROOM
The bonus rooms are often planned above the garage and are accessible from the house. They are designed to be converted as an office, a laundry area, a bathroom, a library corner or even an additional bedroom for which homeowners must make sure to have a window that complies with current codes & standards.
STORAGE AREA
Often located above the garage, our storage areas are used only as storage and are usually accessible from the garage via a retractable staircase.
Do you like this plan but want it to be modified to suit your needs?
To add a garage, another bedroom, finish the basement or any other modification, click here and let us know about your desired changes and to get your free quote for the modification of your plan.
Conditions of use
Important copyright notice! Please take note of these copyright conditions before printing:
By printing this house plan, cottage or garage or the floorplan(s), you confirm being informed that every house plan on this website is the exclusive property of Drummond House
Plans and is protected by Canadian copyright law. You are aware that these prints cannot be used to build or even obtain a building permit. The graphic representations of these
models are offered by Drummond House Plans for the sole purpose of allowing you to notate modifications of a model and then take it to one of the Drummond House Plans Canadian dealers for
modification of the plan.
The purchase of a house plan, cottage or garage from Drummond House Plans is mandatory if you wish to build any of our models. The plan purchase allows you to build a single unit; you cannot resell or give your plan to anyone once the house, cottage or garage has been built. If you wish to build the same house, cottage or garage more than once, you need to obtain the licence to this effect. Please contact us for more details.
All plans from Drummond House Plans can only be modified by a licensed Drummond House Plan Canadian dealer. If any other business or individual with no affiliation to Drummond House Plans modifies a Drummond House Plan on your behalf, please ensure this business or individual has a licence to modify this specific plan or you will be subject to prosecution on the same level as the business or individual who modified or reproduced the plan.
For more details, do not hesitate to contact u by e-mail or by phone at 1-800-567-1413.
I agree to respect the conditions above to not reproduce, modify or build a model from Drummond House Plans without previously purchasing a complete house plan.



















