There are no shipping fees if you buy one of our 2 plan packages "PDF file format" or "5 sets of blueprints + PDF". Shipping charges may apply if you buy additional sets of blueprints.
House plan Charlotte (6110)
Country ranch house plan with 3 bedrooms on main floor and up to 2 more beds on finished basement (optional $)
Other useful information on this plan
House with perfect floors for a large families!
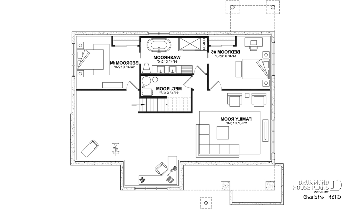
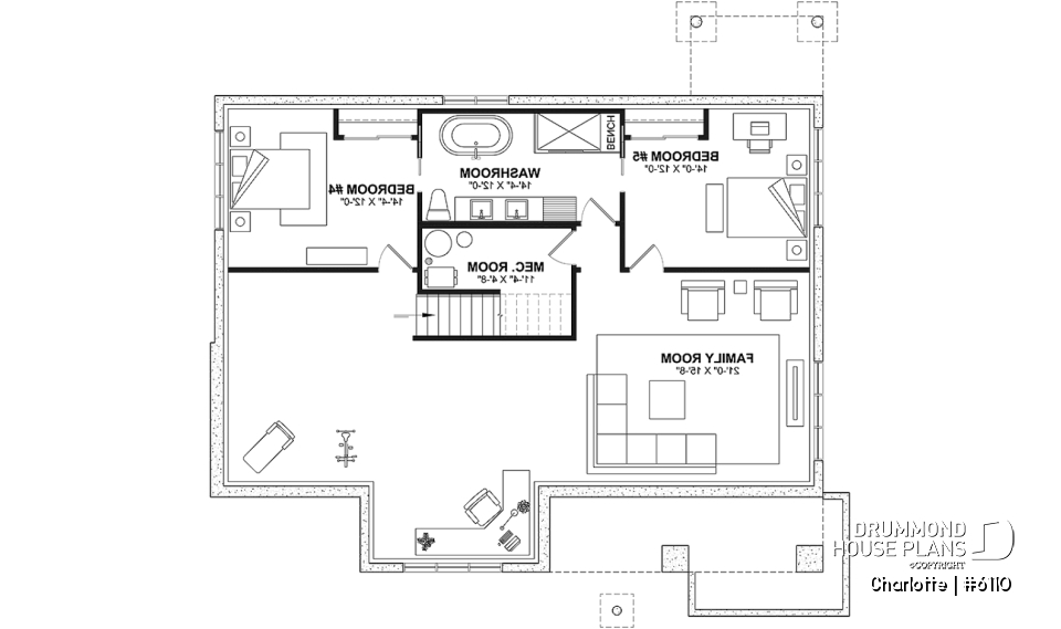
House plan CHARLOTTE (# 6110) features 1463 sq.ft. on the ground floor, and the possibility of another 1,463 sq.ft. fitted out in the basement (*optional $). The latter is also out of the ground which brings a beautiful natural daylight to this floor.
This Farmhouse-style bungalow is perfect for families with young children. Indeed the ground floor provides 3 bedrooms in the same area, allowing parents to keep an eye on their youngest. In addition, this house is thought out in every corner, as proof with the beautiful and practical mudroom at the entrance with a bench, the kitchen with pantry and large central island, as well as the laundry room which is judiciously located on the ground floor. In addition, the 3 bedrooms on the ground floor each have a walk-in closet. The entire family area is open concept and bathed in a lot of natural light from the abundant windows in this space.
The basement proposal (*optional $) would allow you to obtain up to 6 bedrooms, depending on the finish you will do. Indeed, 2 bedrooms are already planned with Jack & Jill bathroom, but the family room could also easily be converted into bedroom # 6, according to your needs. You wouldn't be left out as there is also an open concept office and gym area that could also become a playroom or family room.
Lots of versatility for this warm house intended for large families!
*If you wish to purchase the finished basement plan, please select this option in the shopping cart, in the "Selection of foundation type" section. If you do not select this option, you will receive the unfinished full basement option, at no extra charge.
Distinctive elements
Charming Country Ranch style house plan.
Ideal for families with young children because 3 bedrooms on the ground floor.
Beautiful large covered front porch.
Entrance with walk-in mudroom and bench.
Kitchen with pantry and wine cellar space suggested on the island.
Open floor plan concept.
Parents bedroom with large walk-in closet.
Walk-in closet in the two secondary bedrooms.
Full bathroom with 2 sinks, separate bath and shower.
Laundry room on the ground floor.
*Finished basement (optional $):
2 bedrooms with Jack & Jill bathroom.
Family room.
Large, versatile space for office, gym or more.
Several types of foundation are available for each of our house plans.
*If you wish to purchase the finished basement plan, please select this option in the shopping cart, in the "Selection of foundation type" section. If you do not select this option, you will receive the unfinished full basement option, at no extra charge.
Plan feature(s)
Gound floor laundry room, Walk-in master bed., Double sinks, Separate bath and shower, Mud room, Pantry, Wine cellar, Open floor layout, Island, Bench seat(s), Jack & Jill bath, Ceiling over 8', Game room, Planning desk, Builder, Self-Build
Plan architectural style(s)
. Craftsman / Northwest, Modern Craftsman, . Farmhouse, . Rustic, . Country, . American, . Ranch, . Transitional, . Modern rustic, . Traditional
Similar plans
Previously Viewed Plans
Thank you for your comment! It must be approved before being put online, please allow a period of 24 hours.
Error with google reCaptcha! Try again
Here is a brief description of our different plan packages. Please select the plan package that suits your needs. You can change the package at the next step, if necessary.
PDF VERSION OF PLAN:
Complete digital version of plan (pdf format) sent by email (original plan format 18" x 24'' or 24" x 36'')
5 copies of plan + PDF:
Includes: 5 copies of plan, plan in PDF format (reduced size version), materials list.
Foundation type
Additional foundation types are available, a fee may apply. Please indicate your choice on the online order form, or to our customer service representative, when placing your house plan order.
If your desired foundation type is not available, please contact our customer service to receive your free plan modification quote.
Explanation of bonus space types
UNFINISHED BONUS ROOM
The bonus rooms are often planned above the garage and are accessible from the house. They are designed to be converted as an office, a laundry area, a bathroom, a library corner or even an additional bedroom for which homeowners must make sure to have a window that complies with current codes & standards.
STORAGE AREA
Often located above the garage, our storage areas are used only as storage and are usually accessible from the garage via a retractable staircase.
Do you like this plan but want it to be modified to suit your needs?
To add a garage, another bedroom, finish the basement or any other modification, click here and let us know about your desired changes and to get your free quote for the modification of your plan.
Conditions of use
Important copyright notice! Please take note of these copyright conditions before printing:
By printing this house plan, cottage or garage or the floorplan(s), you confirm being informed that every house plan on this website is the exclusive property of Drummond House
Plans and is protected by Canadian copyright law. You are aware that these prints cannot be used to build or even obtain a building permit. The graphic representations of these
models are offered by Drummond House Plans for the sole purpose of allowing you to notate modifications of a model and then take it to one of the Drummond House Plans Canadian dealers for
modification of the plan.
The purchase of a house plan, cottage or garage from Drummond House Plans is mandatory if you wish to build any of our models. The plan purchase allows you to build a single unit; you cannot resell or give your plan to anyone once the house, cottage or garage has been built. If you wish to build the same house, cottage or garage more than once, you need to obtain the licence to this effect. Please contact us for more details.
All plans from Drummond House Plans can only be modified by a licensed Drummond House Plan Canadian dealer. If any other business or individual with no affiliation to Drummond House Plans modifies a Drummond House Plan on your behalf, please ensure this business or individual has a licence to modify this specific plan or you will be subject to prosecution on the same level as the business or individual who modified or reproduced the plan.
For more details, do not hesitate to contact u by e-mail or by phone at 1-800-567-1413.
I agree to respect the conditions above to not reproduce, modify or build a model from Drummond House Plans without previously purchasing a complete house plan.




















