There are no shipping fees if you buy one of our 2 plan packages "PDF file format" or "5 sets of blueprints + PDF". Shipping charges may apply if you buy additional sets of blueprints.
House plan Celeste 3 (3507-V2)
Affordable Small Cottage-styel home (rustic cottage) with unfinished bonus space on second floor - DIY project
Other useful information on this plan
Popular Transitional cottage style house plan with a large bonus space for xtra bedrooms!
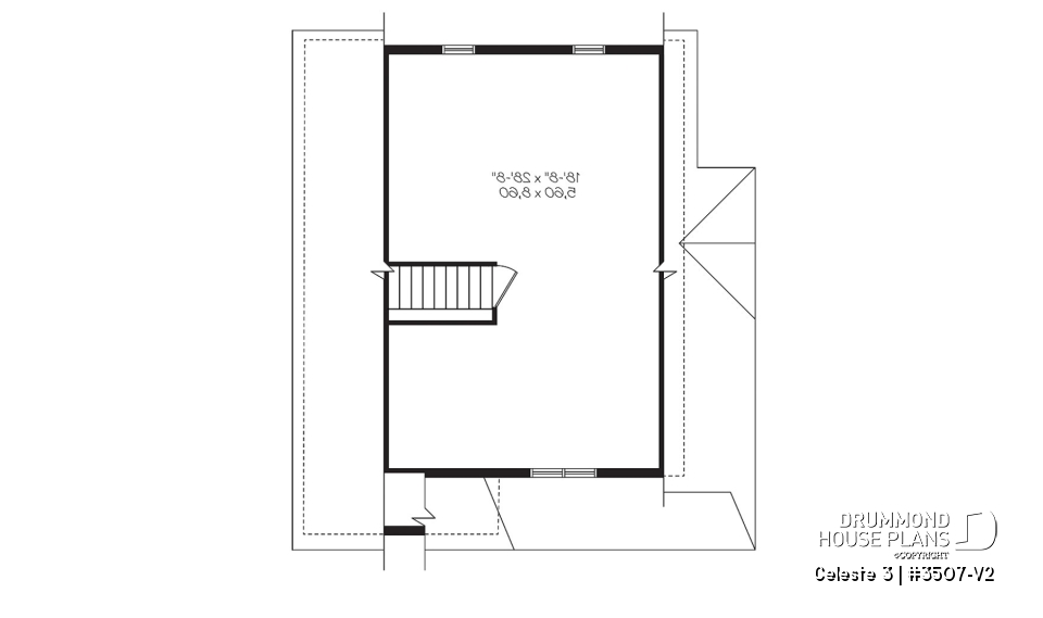
Inspired by the very popular 3507 cottage, plan 3507-V2 offers a more comfortable first level by increasing its depth by two feet. The progressive design offers a floor plan that can grow as your needs change because the living space upstairs can accommodate bedrooms or be left unfinished according to the owner's needs.
Following the example of plan 3507, this plan offers the open living area complete with generous fenestration in front and a comfortable bedroom with a 10' x 2' closet. Private access to the bathroom, with its laundry area, and a 5' x 2' closet at the service entrance along with a second access to the bathroom permit the owners to enjoy all of the conveniences on the same floor.
The progressive approach of this home permits initial construction on a budget as the staircase accesses the second floor through an insulated door. The second floor can accommodate the addition of extra bedrooms bathroom if required at a later date
Distinctive elements
Special plan with finished ground floor and unfinished second level. All amenities on the ground floor and well-windowed activites areas.
Plan feature(s)
Gound floor laundry room, Warparound, Open floor layout, Loft, Panoramic view, Separate bath and shower, Living bonus space
Plan architectural style(s)
. Country, . Craftsman / Northwest, . Cape Cod, . A-Frame, . Modern rustic, . Rustic, . Transitional, . Cottage, chalet, cabin
Similar plans
Previously Viewed Plans
Questions and comments
February 02
Sandra Thomas
what is the ceiling height on the lower level?
February 02
Customer service
Good day Ms. Thomas and thank you for taking the time to write.
The ceiling height on the main level is 8' throughout.
By clicking on the "view room details" link above the floor plan, you will be able to see many dimensions which are not on the floor plan including bathroom and closet sizes as well as ceiling heights.
Please let me know if I can further assist you.
Regards
Deb
Thank you for your comment! It must be approved before being put online, please allow a period of 24 hours.
Error with google reCaptcha! Try again
Here is a brief description of our different plan packages. Please select the plan package that suits your needs. You can change the package at the next step, if necessary.
PDF VERSION OF PLAN:
Complete digital version of plan (pdf format) sent by email (original plan format 18" x 24'' or 24" x 36'')
5 copies of plan + PDF:
Includes: 5 copies of plan, plan in PDF format (reduced size version), materials list.
Foundation type
Additional foundation types are available, a fee may apply. Please indicate your choice on the online order form, or to our customer service representative, when placing your house plan order.
If your desired foundation type is not available, please contact our customer service to receive your free plan modification quote.
Explanation of bonus space types
UNFINISHED BONUS ROOM
The bonus rooms are often planned above the garage and are accessible from the house. They are designed to be converted as an office, a laundry area, a bathroom, a library corner or even an additional bedroom for which homeowners must make sure to have a window that complies with current codes & standards.
STORAGE AREA
Often located above the garage, our storage areas are used only as storage and are usually accessible from the garage via a retractable staircase.
Do you like this plan but want it to be modified to suit your needs?
To add a garage, another bedroom, finish the basement or any other modification, click here and let us know about your desired changes and to get your free quote for the modification of your plan.
Conditions of use
Important copyright notice! Please take note of these copyright conditions before printing:
By printing this house plan, cottage or garage or the floorplan(s), you confirm being informed that every house plan on this website is the exclusive property of Drummond House
Plans and is protected by Canadian copyright law. You are aware that these prints cannot be used to build or even obtain a building permit. The graphic representations of these
models are offered by Drummond House Plans for the sole purpose of allowing you to notate modifications of a model and then take it to one of the Drummond House Plans Canadian dealers for
modification of the plan.
The purchase of a house plan, cottage or garage from Drummond House Plans is mandatory if you wish to build any of our models. The plan purchase allows you to build a single unit; you cannot resell or give your plan to anyone once the house, cottage or garage has been built. If you wish to build the same house, cottage or garage more than once, you need to obtain the licence to this effect. Please contact us for more details.
All plans from Drummond House Plans can only be modified by a licensed Drummond House Plan Canadian dealer. If any other business or individual with no affiliation to Drummond House Plans modifies a Drummond House Plan on your behalf, please ensure this business or individual has a licence to modify this specific plan or you will be subject to prosecution on the same level as the business or individual who modified or reproduced the plan.
For more details, do not hesitate to contact u by e-mail or by phone at 1-800-567-1413.
I agree to respect the conditions above to not reproduce, modify or build a model from Drummond House Plans without previously purchasing a complete house plan.













February 02
Sandra Thomas
what is the ceiling height on the lower level?