There are no shipping fees if you buy one of our 2 plan packages "PDF file format" or "5 sets of blueprints + PDF". Shipping charges may apply if you buy additional sets of blueprints.
House plan Eskal (6983)
Modern one bedroom home with attached RV garage and single and four bedroom garage option
Other useful information on this plan
Small modern house with RV garage offers 2 flexible options, one with accommodation and the other for a large family!
.
Distinctive elements
Mid-century inspired house, offering 3 very different floor layouts!
A carport that can accommodate 2+ cars is present in all options.
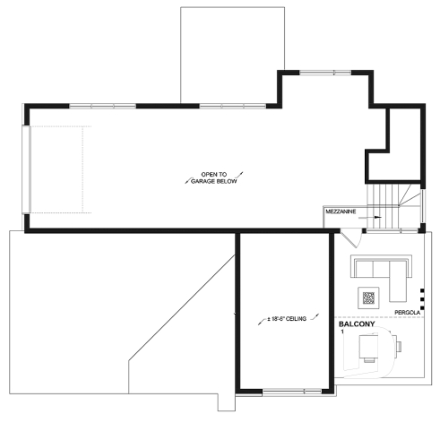
The basic floor layout, offering a single bedroom, will be ideal for person(s) owning a Class A, B or C motorhome, or RV. This version offers a 40' x 16'2'' RV garage, with rooms for motorcycle or bicycle(s) and mechanical room.
In addition you will find a staircase leading to a beautiful pergola terrace, upstairs.
Another terrace, sheltered, is on the ground floor and can be accessed from the RV garage, for a total of 2 terraces in this option.
The kitchen area and living room are open concept and offer an 18'6'' ceiling giving an effect of grandeur to this still compact room.
A large entrance with cloakroom, a kitchen with island, a shower room, a 12' x 10' bedroom as well as a stacked washer/dryer area complete this basic layout. Everything is there for guaranteed comfort during the months of the year when you will not be on vacation with your RV!
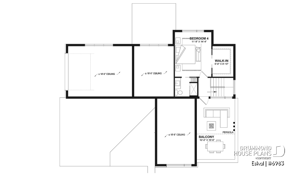
Option #1 offers a more family-style house with a total of 4 bedrooms, including a beautiful master or guest suite upstairs.
The RV garage is converted into a large single car garage.
The carport is there and always for 2+ cars.
The 2 terraces are also there, one with access from bedroom #2 and the other is upstairs.
The kitchen area and living room are open concept and offer an 18'6'' ceiling giving an effect of grandeur to this area.
A large entrance with walk-in coat closet, a kitchen with island, a shower room, a 12' x 10' bedroom as well as a stacked washer/dryer area completes this option #1.
Option #2 completely changes its purpose by offering 2 accommodations.
Please note that the 2 accommodations can share the carport which is designed for 2+ cars. However, the single garage will be private to the front accommodation.
It would therefore be possible either to rent the rear or front accommodation, or simply to create a bi-generational (or intergenerational) type dwelling there.
The rear accommodation, arranged over 2 floors, offers 2 bedrooms, 2 shower rooms, kitchen area, dining room and living room, in addition to access to the two terraces: one at the rear, and the other at upstairs.
The main accommodation at the front includes the kitchen area and living room (open concept) and offers an 18'6'' ceiling giving an effect of grandeur to this area.
A large entrance with cloakroom, a kitchen with island, a shower room, a 12' x 10' bedroom as well as a stacked washer/dryer area.
*The basic floor layout and OPTIONS 1 and 2 are included in the construction plan you will receive. You can build the floor that suits your family. If you initially go with the basic floor (with RV garage), eventually and depending on your needs you could convert your garage into living space as suggested on the option(s).
Plan feature(s)
Sloped ceiling, Entrance hall, Mud room, Gound floor laundry room, Shelves, Island, Oversized garage, Open floor layout
Plan architectural style(s)
. Mid-century, . Modern / Design, . Contemporary
Similar plans
Previously Viewed Plans
Thank you for your comment! It must be approved before being put online, please allow a period of 24 hours.
Error with google reCaptcha! Try again
Here is a brief description of our different plan packages. Please select the plan package that suits your needs. You can change the package at the next step, if necessary.
PDF VERSION OF PLAN:
Complete digital version of plan (pdf format) sent by email (original plan format 18" x 24'' or 24" x 36'')
5 copies of plan + PDF:
Includes: 5 copies of plan, plan in PDF format (reduced size version), materials list.
Foundation type
Additional foundation types are available, a fee may apply. Please indicate your choice on the online order form, or to our customer service representative, when placing your house plan order.
If your desired foundation type is not available, please contact our customer service to receive your free plan modification quote.
Explanation of bonus space types
UNFINISHED BONUS ROOM
The bonus rooms are often planned above the garage and are accessible from the house. They are designed to be converted as an office, a laundry area, a bathroom, a library corner or even an additional bedroom for which homeowners must make sure to have a window that complies with current codes & standards.
STORAGE AREA
Often located above the garage, our storage areas are used only as storage and are usually accessible from the garage via a retractable staircase.
Do you like this plan but want it to be modified to suit your needs?
To add a garage, another bedroom, finish the basement or any other modification, click here and let us know about your desired changes and to get your free quote for the modification of your plan.
Conditions of use
Important copyright notice! Please take note of these copyright conditions before printing:
By printing this house plan, cottage or garage or the floorplan(s), you confirm being informed that every house plan on this website is the exclusive property of Drummond House
Plans and is protected by Canadian copyright law. You are aware that these prints cannot be used to build or even obtain a building permit. The graphic representations of these
models are offered by Drummond House Plans for the sole purpose of allowing you to notate modifications of a model and then take it to one of the Drummond House Plans Canadian dealers for
modification of the plan.
The purchase of a house plan, cottage or garage from Drummond House Plans is mandatory if you wish to build any of our models. The plan purchase allows you to build a single unit; you cannot resell or give your plan to anyone once the house, cottage or garage has been built. If you wish to build the same house, cottage or garage more than once, you need to obtain the licence to this effect. Please contact us for more details.
All plans from Drummond House Plans can only be modified by a licensed Drummond House Plan Canadian dealer. If any other business or individual with no affiliation to Drummond House Plans modifies a Drummond House Plan on your behalf, please ensure this business or individual has a licence to modify this specific plan or you will be subject to prosecution on the same level as the business or individual who modified or reproduced the plan.
For more details, do not hesitate to contact u by e-mail or by phone at 1-800-567-1413.
I agree to respect the conditions above to not reproduce, modify or build a model from Drummond House Plans without previously purchasing a complete house plan.










