There are no shipping fees if you buy one of our 2 plan packages "PDF file format" or "5 sets of blueprints + PDF". Shipping charges may apply if you buy additional sets of blueprints.
House plan Nomad 2 (6980-V1)
Farmhouse-style home plan with attached RV garage, and an option offering 2-bedroom, two-story accommodation
Virtual visit
Other useful information on this plan
Compact Farmhouse with attached RV garage or 2 bedroom unit, it's up to you to choose what's convenient for you!
"Nomad 2" house plan (# 6980-V1) is the second in the series of 6 models from the HYBRID collection. This project was developed for a home builder wishing to offer a scalable home concept to a groupe of customers who own a recreational vehicle (RV), such as a motorhome, a fifth wheel or a trailer home. This collection offers an alternative accommodation for travelers, retirees and/or adventurers, wishing to have a "home away from home" with family and friends as well as a garage space allowing storage and access to their RV directly from their home.
In addition, for each of the 6 models, one or two options are offered for a potential conversion of the RV garage space into livable space. Whether for the addition of bedrooms and bathrooms, bi-generational housing or a family room, this flexible space will be able to adjust to your evolving needs.
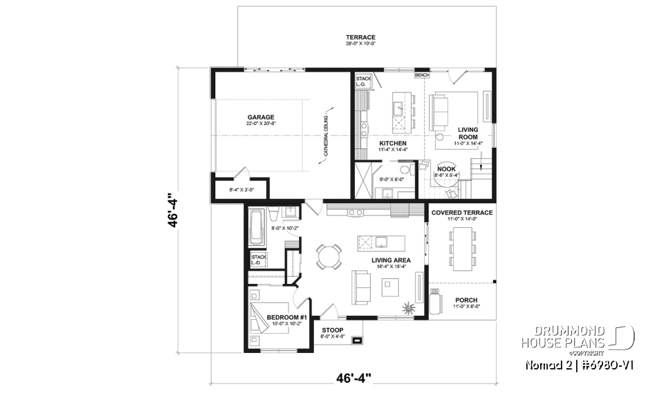
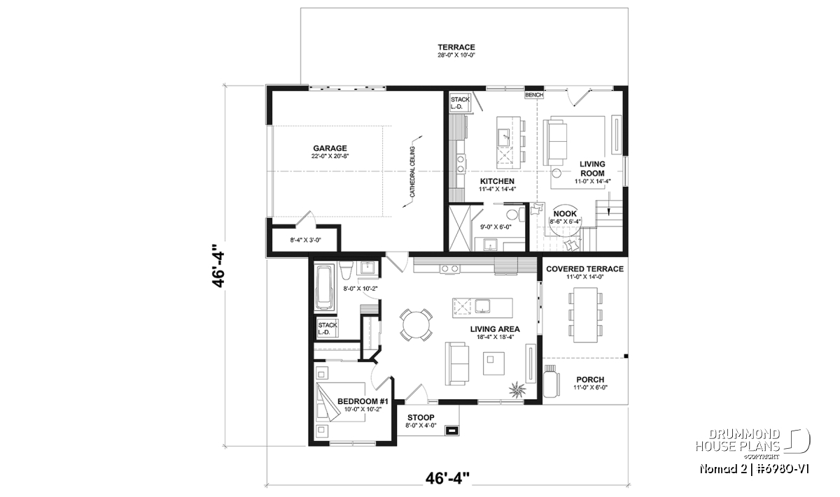
BASIC FLOOR LAYOUT
The basic plan of the NOMAD 2 house (plan #6980-V1) is exactly the same as its basic NOMAD model (plan #6980). The only difference is in their #1 OPTION. For plan 6980, the RV garage is converted entirely into living space while for the 6980-V1, it is converted into a single garage + living space.
Just like its initial model, NOMAD 2 (#6980-V1) offers a floor space of 650 sq.ft. concentrated on one level. The attached RV garage is 45' x 20'-8'', or 1119 sq.ft. with a cathedral ceiling of 21' x 7''. The foundation of this house is on a floating slab, but it should be noted that other foundation options are available on our website, or via our plan modification service; contact us for details.
The ceiling of the living space of the NOMAD plan is 9' high giving an effect of amplitude to this small format model. The front porch is sheltered, welcoming visitors while protecting them from bad weather. A practical closet, near the front entrance, can accommodate jackets and coats, if the temperature requires it. The only bedroom provided in this house receives beautiful natural light through the large front window. It also has a regular sized wardrobe. The kitchen offers a beautiful 7’8’’ x 2’6’’ island and also receives natural light from the patio door leading to the side covered terrace. A portion of this terrace is not covered. The kitchen area, dining room and living room are open concept, thus promoting great exchanges between the occupants when meeting friends or family. The bathroom offers a bath (with shower), a stacked washer/dryer as well as a small linen closet.
SCALABLE MODEL - OPTION 1
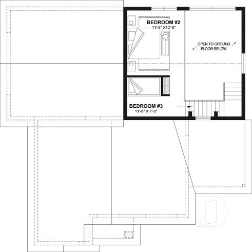
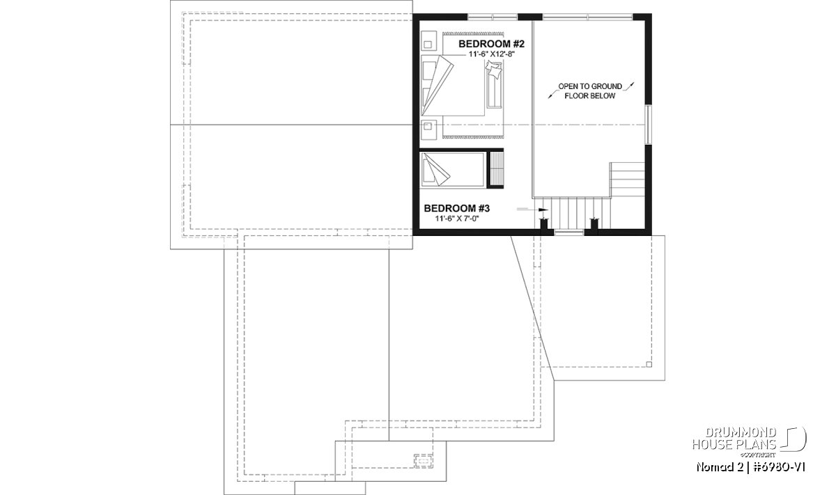
Included in the plan you will receive, OPTION 1 of the NOMAD 2 house converts the RV garage into a two-story apartment that can be rented, or simply to accommodate parents (for a two-generation concept). You will therefore find a kitchen, a shower room, a living room, a washer/dryer area (on the ground floor) as well as two bedrooms upstairs, with a mezzanine overlooking the living room. In addition, a large single garage, allocated to the main one-bedroom accommodation, completes OPTION 1.
Enjoy discovering the flexibility of this magnificent new HYBRID collection because no matter what life throws at you, there will be a model or option that will satisfy your current and future lifestyle!
Distinctive elements
Magnificent classic design that can suit both retirees and families, depending on the option you choose!
Please note that the 2 floor options (one and two accomodations) are included in the plan you will receive.
The basic floor layout (1 bedroom) of this plan is ideal for those who spend the winter in the south and who have an RV, trailer home or other recreational vehicle that they wish to store at home!
This versatile plan also has an OPTION 1 where the garage has been converted into an attached 2-story appartment. This accommodation could serve as a multigenerational or rental depending on your needs. It offers 2 bedrooms, a kitchen, a living room, a shower room, and a washer/dryer area. In addition, a pretty mezzanine upstairs allows a ceiling of more than 21'7'' in the living room! Please note that the large one-car garage belongs to the front unit (the one-bed unit).
This home is ideal for lots with panoramic views.
The intended foundation is a floating slab, but other foundation options are also available.
*The basic floor layout and option #1 are included in the construction plan you will receive. You can build the floor that best suits your family. If you initially go with the basic floor (with RV garage), eventually and depending on your needs you could convert your garage into living space as suggested on the option(s).
Plan feature(s)
Oversized garage, Side entry garage, Deck, Open floor layout, Ceiling over 8', Panoramic view, Cathedral ceiling, Gound floor laundry room
Plan architectural style(s)
. Farmhouse, . American, Modern farmhouse, . Traditional, Classic
Similar plans
Previously Viewed Plans
Thank you for your comment! It must be approved before being put online, please allow a period of 24 hours.
Error with google reCaptcha! Try again
Here is a brief description of our different plan packages. Please select the plan package that suits your needs. You can change the package at the next step, if necessary.
PDF VERSION OF PLAN:
Complete digital version of plan (pdf format) sent by email (original plan format 18" x 24'' or 24" x 36'')
5 copies of plan + PDF:
Includes: 5 copies of plan, plan in PDF format (reduced size version), materials list.
Foundation type
Additional foundation types are available, a fee may apply. Please indicate your choice on the online order form, or to our customer service representative, when placing your house plan order.
If your desired foundation type is not available, please contact our customer service to receive your free plan modification quote.
Explanation of bonus space types
UNFINISHED BONUS ROOM
The bonus rooms are often planned above the garage and are accessible from the house. They are designed to be converted as an office, a laundry area, a bathroom, a library corner or even an additional bedroom for which homeowners must make sure to have a window that complies with current codes & standards.
STORAGE AREA
Often located above the garage, our storage areas are used only as storage and are usually accessible from the garage via a retractable staircase.
Do you like this plan but want it to be modified to suit your needs?
To add a garage, another bedroom, finish the basement or any other modification, click here and let us know about your desired changes and to get your free quote for the modification of your plan.
Conditions of use
Important copyright notice! Please take note of these copyright conditions before printing:
By printing this house plan, cottage or garage or the floorplan(s), you confirm being informed that every house plan on this website is the exclusive property of Drummond House
Plans and is protected by Canadian copyright law. You are aware that these prints cannot be used to build or even obtain a building permit. The graphic representations of these
models are offered by Drummond House Plans for the sole purpose of allowing you to notate modifications of a model and then take it to one of the Drummond House Plans Canadian dealers for
modification of the plan.
The purchase of a house plan, cottage or garage from Drummond House Plans is mandatory if you wish to build any of our models. The plan purchase allows you to build a single unit; you cannot resell or give your plan to anyone once the house, cottage or garage has been built. If you wish to build the same house, cottage or garage more than once, you need to obtain the licence to this effect. Please contact us for more details.
All plans from Drummond House Plans can only be modified by a licensed Drummond House Plan Canadian dealer. If any other business or individual with no affiliation to Drummond House Plans modifies a Drummond House Plan on your behalf, please ensure this business or individual has a licence to modify this specific plan or you will be subject to prosecution on the same level as the business or individual who modified or reproduced the plan.
For more details, do not hesitate to contact u by e-mail or by phone at 1-800-567-1413.
I agree to respect the conditions above to not reproduce, modify or build a model from Drummond House Plans without previously purchasing a complete house plan.



















