There are no shipping fees if you buy one of our 2 plan packages "PDF file format" or "5 sets of blueprints + PDF". Shipping charges may apply if you buy additional sets of blueprints.
House plan Halte (6984)
Small Modern house with 28'8'' x 18'8'' size VR garage and several floor layout options
Other useful information on this plan
Tiny modern home with garage for small motorhome and 2 options for a 2 bedroom home with or without a one-car garage!
.
Distinctive elements
Small modern house with garage for small motorhome and 2 bedroom options with or without a single car garage. All 3 options include a floating slab type foundation. Other foundation types are available, please contact us.
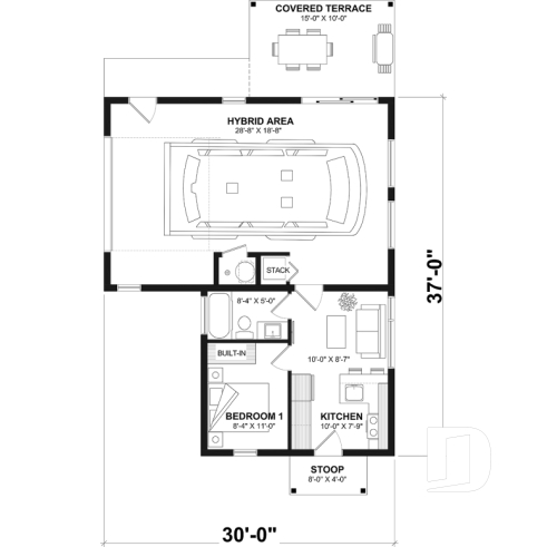
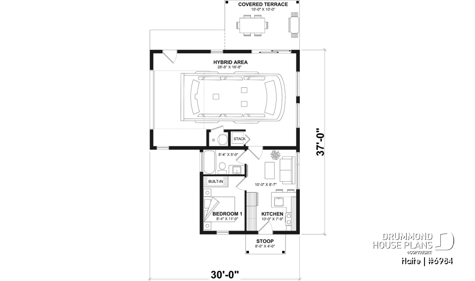
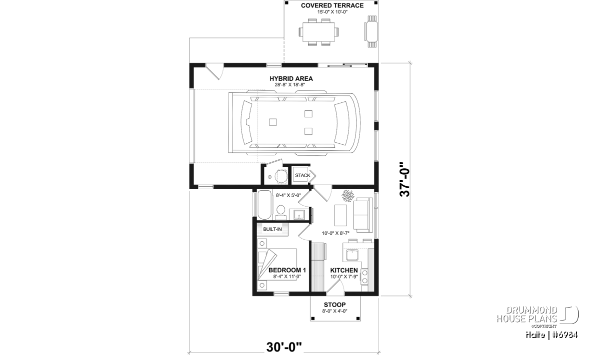
The basic plan of this 353 sq. ft. tiny house includes a covered front porch and a sheltered rear terrace with access from the motorhome garage. The latter also includes a stacked washer/dryer area. The ceiling of the house is 9' while that of the garage is 17'8'' and 10'4'' for the rear terrace. The kitchen has a lunch counter, serving as a dining table, and is open to the living room. A bedroom with built-in furniture and a bathroom complete this mini-house.
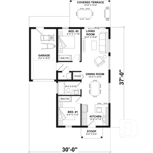
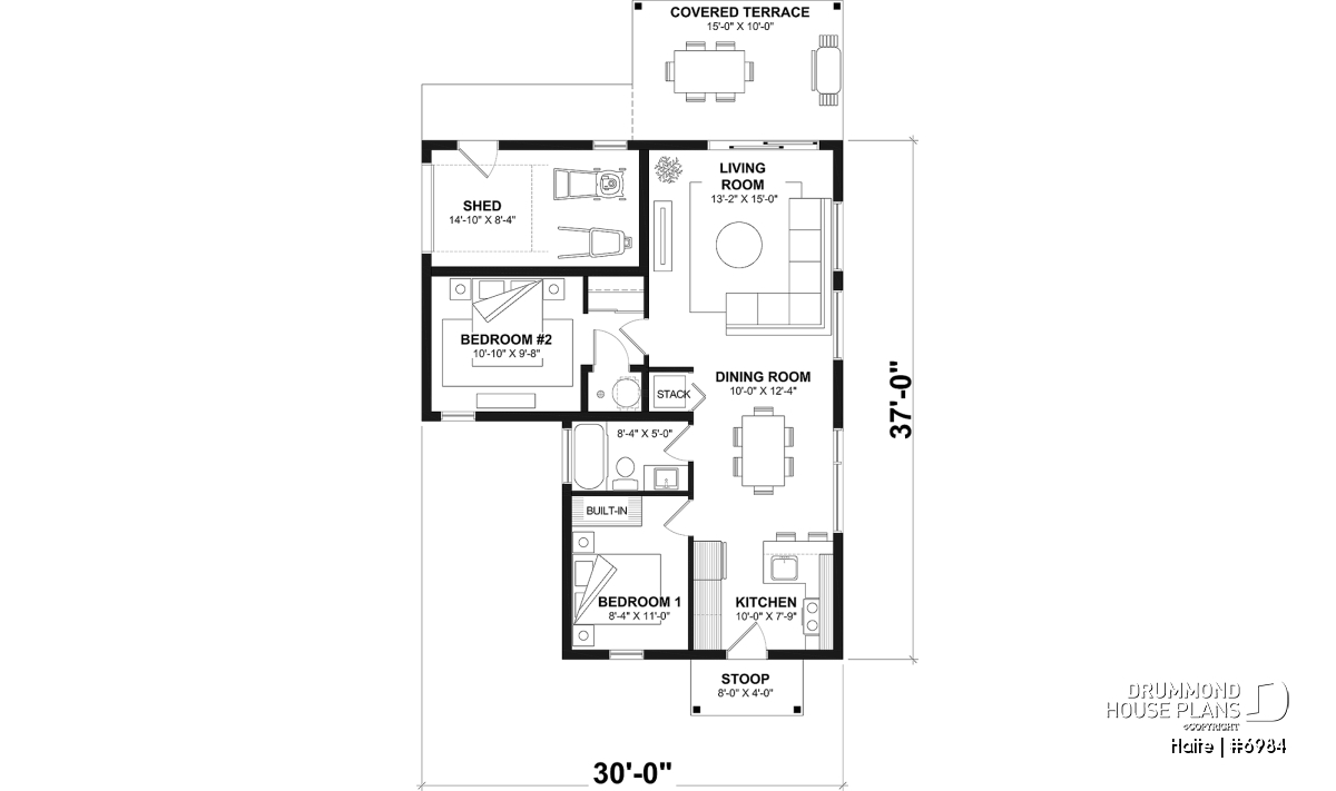
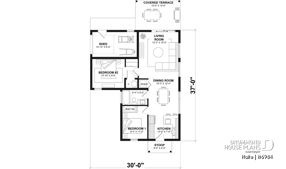
OPTION 1 uses the space in the small motorhome garage by converting it into an additional bedroom (total of 2 bedrooms) and a built-in shed with a small garage door. In addition, a dining room is added and the living room expands and moves to the rear of the home. The stacked washer/dryer is relocated inside near bedroom #2. The latter offers a wardrobe and a small walk-in closet. The ceiling of the living room, bedroom #2 as well as the shed is 17'8'' while it is 9' for the rest of the house. The covered rear terrace is accessible via the living room and offers a 10'4'' ceiling height.
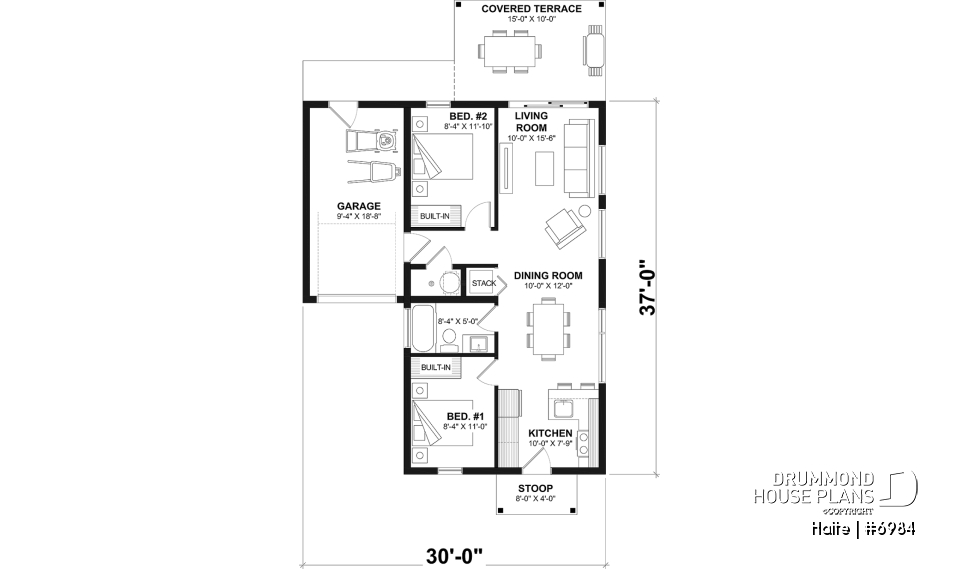
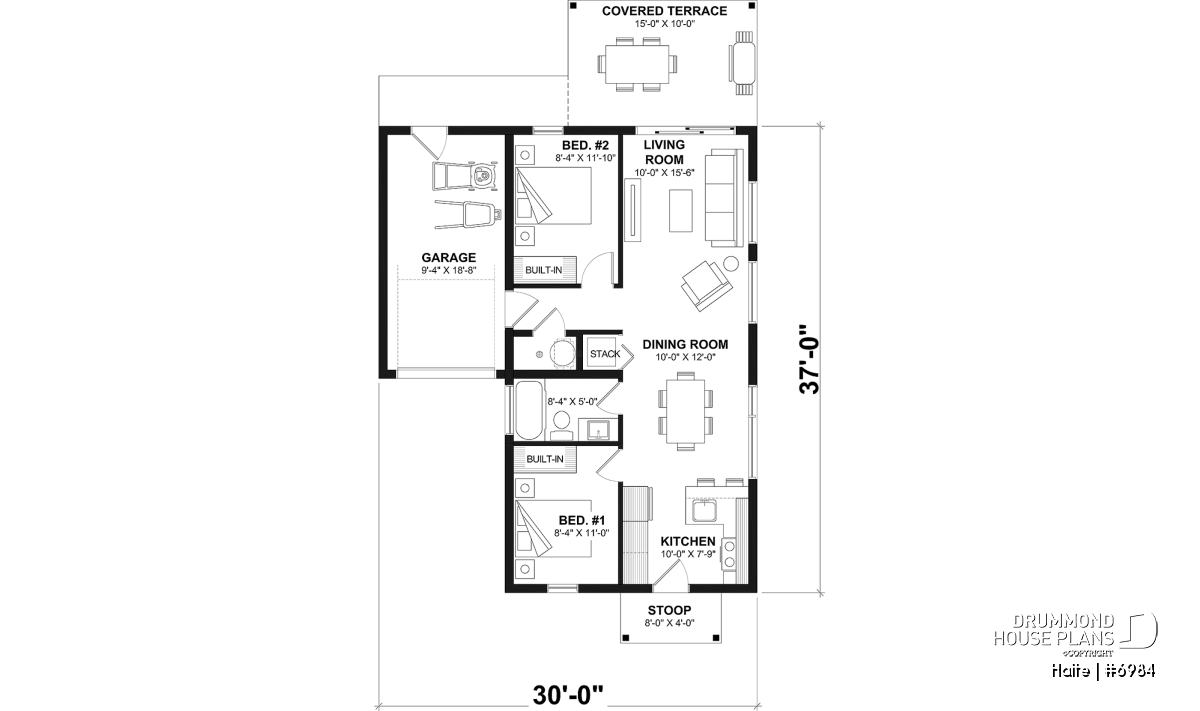
OPTION 2 offers a small single garage with front access. There is also a kitchen with lunch counter, a dining room open to the living room, 2 bedrooms with built-in furniture in each, as well as a bathroom and a washer/dryer stacked in a closet. The rear covered terrace can again be accessed through the living room. The ceilings of the garage, bedroom #2, washer/dryer area, storage and living room are 17'8'' while other areas are 9' high, except for the covered terrace which is 10' 4''.
*The basic floor layout, option 1 and option 2 are included in the construction plan you will receive. You can build the floor that best suits your family. If you initially go with the basic floor (with RV garage), eventually and depending on your needs you could convert your garage into living space as suggested on the option(s).
Plan feature(s)
Panoramic view, Lunch counter, Deck, Ceiling over 8', Built-ins, Open floor layout, Side entry garage, Gound floor laundry room
Plan architectural style(s)
Similar plans
Previously Viewed Plans
Thank you for your comment! It must be approved before being put online, please allow a period of 24 hours.
Error with google reCaptcha! Try again
Here is a brief description of our different plan packages. Please select the plan package that suits your needs. You can change the package at the next step, if necessary.
PDF VERSION OF PLAN:
Complete digital version of plan (pdf format) sent by email (original plan format 18" x 24'' or 24" x 36'')
5 copies of plan + PDF:
Includes: 5 copies of plan, plan in PDF format (reduced size version), materials list.
Foundation type
Additional foundation types are available, a fee may apply. Please indicate your choice on the online order form, or to our customer service representative, when placing your house plan order.
If your desired foundation type is not available, please contact our customer service to receive your free plan modification quote.
Explanation of bonus space types
UNFINISHED BONUS ROOM
The bonus rooms are often planned above the garage and are accessible from the house. They are designed to be converted as an office, a laundry area, a bathroom, a library corner or even an additional bedroom for which homeowners must make sure to have a window that complies with current codes & standards.
STORAGE AREA
Often located above the garage, our storage areas are used only as storage and are usually accessible from the garage via a retractable staircase.
Do you like this plan but want it to be modified to suit your needs?
To add a garage, another bedroom, finish the basement or any other modification, click here and let us know about your desired changes and to get your free quote for the modification of your plan.
Conditions of use
Important copyright notice! Please take note of these copyright conditions before printing:
By printing this house plan, cottage or garage or the floorplan(s), you confirm being informed that every house plan on this website is the exclusive property of Drummond House
Plans and is protected by Canadian copyright law. You are aware that these prints cannot be used to build or even obtain a building permit. The graphic representations of these
models are offered by Drummond House Plans for the sole purpose of allowing you to notate modifications of a model and then take it to one of the Drummond House Plans Canadian dealers for
modification of the plan.
The purchase of a house plan, cottage or garage from Drummond House Plans is mandatory if you wish to build any of our models. The plan purchase allows you to build a single unit; you cannot resell or give your plan to anyone once the house, cottage or garage has been built. If you wish to build the same house, cottage or garage more than once, you need to obtain the licence to this effect. Please contact us for more details.
All plans from Drummond House Plans can only be modified by a licensed Drummond House Plan Canadian dealer. If any other business or individual with no affiliation to Drummond House Plans modifies a Drummond House Plan on your behalf, please ensure this business or individual has a licence to modify this specific plan or you will be subject to prosecution on the same level as the business or individual who modified or reproduced the plan.
For more details, do not hesitate to contact u by e-mail or by phone at 1-800-567-1413.
I agree to respect the conditions above to not reproduce, modify or build a model from Drummond House Plans without previously purchasing a complete house plan.










