There are no shipping fees if you buy one of our 2 plan packages "PDF file format" or "5 sets of blueprints + PDF". Shipping charges may apply if you buy additional sets of blueprints.
House plan Appalachian (90107)
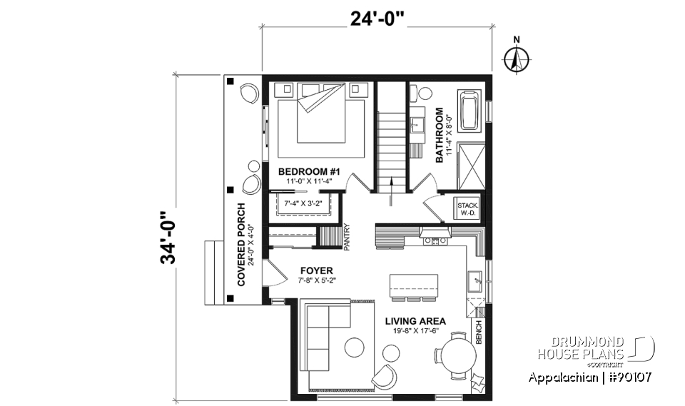
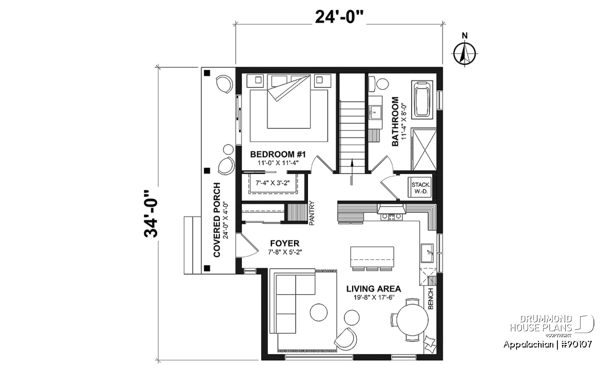
Side entrance, panoramic view at front, 1 to 3 beds, covered side porch, optional finished basement ($)
Other useful information on this plan
Small Rustic Modern house plan or eco-friendly cabin plan
The design of the APPALACHIAN house or cabin plan (#90107) was based on a lot with a south-facing facade. This wonderful little house or cottage is suitable for a minimalist lifestyle for a small family. There are two levels on the main floor, to divide the circulation flow. We therefore enter the upper level of the house where we find the entrance, the main bedroom, a large family bathroom, a stacked washer and dryer, the kitchen and the dining room. The living room is bathed in light all day long thanks to its large window.
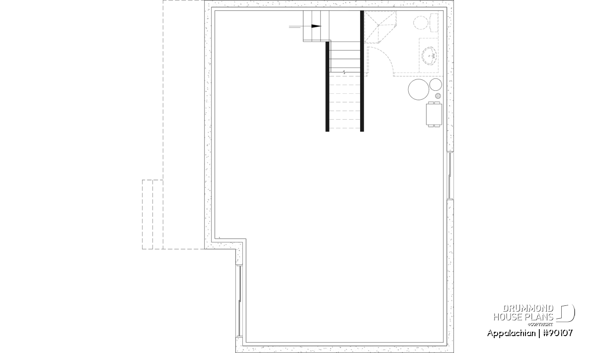
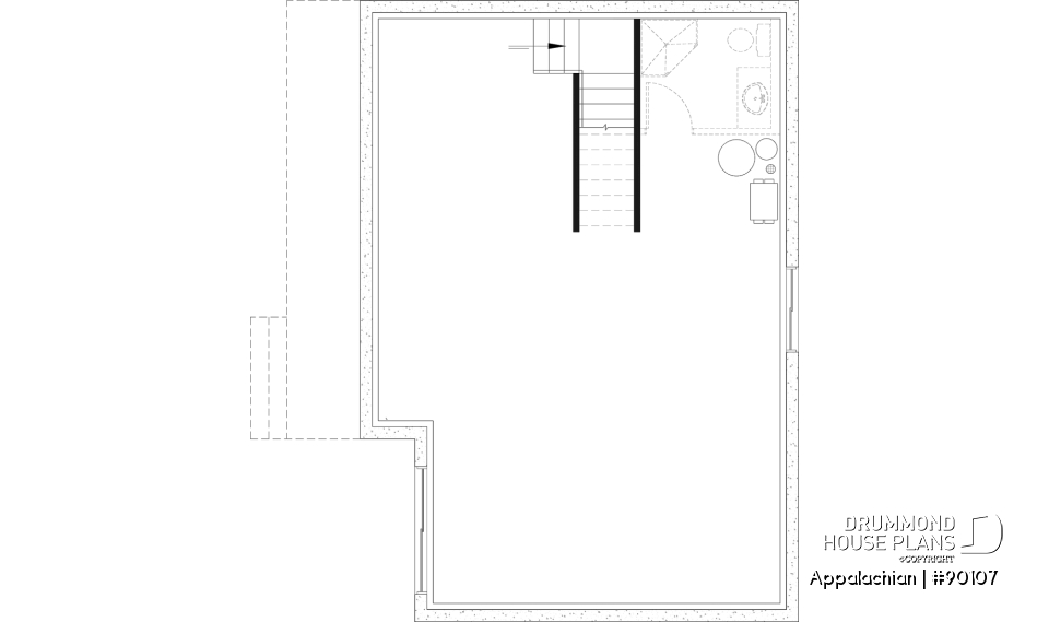
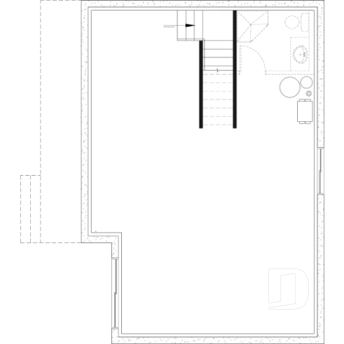
Regarding the *optional finished basement, there are two good size bedrooms with each a walk-in closet. On that floor there is also a family room, a shower room and the large mechanical room.
Every square foot of the Appalachian home is maximized to provide a comfortable and functional space for a small family. The emphasis is on living areas in order to take advantage of the beautiful natural light all day long.
*If you wish to purchase the finished basement plan, please select this option in the shopping cart, in the "Selection of foundation type" section. If you do not select this option, you will receive the unfinished full basement option, at no extra charge.
ECO-FRIENDLY HOUSE PLAN
This house plan is part of our “Eco-friendly house plan collection” and here is what distinguishes all the plans included in this selection:
Sun:
The orientation of the house according to the sun’s daily path, combined with the thermal capture of the sun's rays using optimal fenestration, minimizing heating costs and maximizing the presence of natural light.
Simplicity:
A house with modest volumes ensuring simplified construction, while favoring the maximization of interior spaces, to reduce the number of square feet and the construction cost.
Sound Mind & Body:
A home designed to promote the well-being and health of its occupants by being well ventilated, using durable and non-toxic materials (steel, wood, lightweight cladding, fiber cement, among others) and maximizing natural light.
Distinctive elements
**Modern rustic style eco-friendly rustic cabin plan.
Large side covered porch 24' x 4'.
9' ceiling on the entire ground floor.
Coat closet near the main entrance (side).
Open floor plan.
Master bedroom on the ground floor with walk-in closet.
Bathroom with separate bath and shower.
Kitchen with island and dining room with bench.
Practical stacked washer/dryer on the main floor.
*Finished basement (optional $):
2 good size bedrooms in the basement with a walk-in closet in each and a shower room.
Large family room.
Spacious mechanical room allowing plenty of storage.
---
*If you wish to purchase the finished basement plan, please select this option in the shopping cart, in the "Selection of foundation type" section. If you do not select this option, you will receive the unfinished full basement option, at no extra charge.
---
**This house plan is part of our “Eco-friendly house plan’ collection” and here is what distinguishes all the plans included in this selection:
SUN:
The orientation of the house according to the sun’s daily path, combined with the thermal capture of the sun's rays using optimal fenestration, minimizing heating costs and maximizing the presence of natural light.
SIMPLICITY:
A house with modest volumes ensuring simplified construction, while favoring the maximization of interior spaces, to reduce the number of square feet and the construction cost.
SOUND MIND & BODY:
A home designed to promote the well-being and health of its occupants by being well ventilated, using durable and non-toxic materials (steel, wood, lightweight cladding, fiber cement, among others) and maximizing natural light.
Plan feature(s)
Ceiling over 8', Island, Open floor layout, Bench seat(s), Walk-in master bed., Gound floor laundry room, Self-Build
Plan architectural style(s)
. Cottage, chalet, cabin, . Mid-century, . Modern / Design, . Rustic, . Transitional, . Vacation and waterfront, . Modern rustic, . Ski chalets, . Cabin plans, . Contemporary, . Scandinavian
Similar plans
Previously Viewed Plans
Thank you for your comment! It must be approved before being put online, please allow a period of 24 hours.
Error with google reCaptcha! Try again
Here is a brief description of our different plan packages. Please select the plan package that suits your needs. You can change the package at the next step, if necessary.
PDF VERSION OF PLAN:
Complete digital version of plan (pdf format) sent by email (original plan format 18" x 24'' or 24" x 36'')
5 copies of plan + PDF:
Includes: 5 copies of plan, plan in PDF format (reduced size version), materials list.
Foundation type
Additional foundation types are available, a fee may apply. Please indicate your choice on the online order form, or to our customer service representative, when placing your house plan order.
If your desired foundation type is not available, please contact our customer service to receive your free plan modification quote.
Explanation of bonus space types
UNFINISHED BONUS ROOM
The bonus rooms are often planned above the garage and are accessible from the house. They are designed to be converted as an office, a laundry area, a bathroom, a library corner or even an additional bedroom for which homeowners must make sure to have a window that complies with current codes & standards.
STORAGE AREA
Often located above the garage, our storage areas are used only as storage and are usually accessible from the garage via a retractable staircase.
Do you like this plan but want it to be modified to suit your needs?
To add a garage, another bedroom, finish the basement or any other modification, click here and let us know about your desired changes and to get your free quote for the modification of your plan.
Conditions of use
Important copyright notice! Please take note of these copyright conditions before printing:
By printing this house plan, cottage or garage or the floorplan(s), you confirm being informed that every house plan on this website is the exclusive property of Drummond House
Plans and is protected by Canadian copyright law. You are aware that these prints cannot be used to build or even obtain a building permit. The graphic representations of these
models are offered by Drummond House Plans for the sole purpose of allowing you to notate modifications of a model and then take it to one of the Drummond House Plans Canadian dealers for
modification of the plan.
The purchase of a house plan, cottage or garage from Drummond House Plans is mandatory if you wish to build any of our models. The plan purchase allows you to build a single unit; you cannot resell or give your plan to anyone once the house, cottage or garage has been built. If you wish to build the same house, cottage or garage more than once, you need to obtain the licence to this effect. Please contact us for more details.
All plans from Drummond House Plans can only be modified by a licensed Drummond House Plan Canadian dealer. If any other business or individual with no affiliation to Drummond House Plans modifies a Drummond House Plan on your behalf, please ensure this business or individual has a licence to modify this specific plan or you will be subject to prosecution on the same level as the business or individual who modified or reproduced the plan.
For more details, do not hesitate to contact u by e-mail or by phone at 1-800-567-1413.
I agree to respect the conditions above to not reproduce, modify or build a model from Drummond House Plans without previously purchasing a complete house plan.






