There are no shipping fees if you buy one of our 2 plan packages "PDF file format" or "5 sets of blueprints + PDF". Shipping charges may apply if you buy additional sets of blueprints.
House plan Whittier (3422)
European style house plan, 3-car garage, large family room with fireplace, home office, master suite, 3 beds
Other useful information on this plan
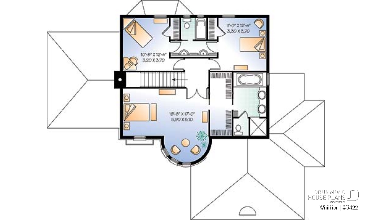
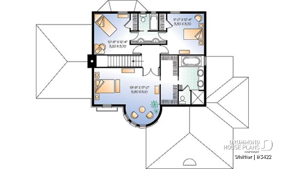
Castle turret with a purpose
>
A classic turret lends distinction to the European-inspired house plan. The turret houses a home office on the main floor and a half-moon sitting area in the master bedroom.
Views from the foyer include a unique glimpse of the dining room, a central two-sided fireplace and the welcoming and dramatic sunken family room with 12’ ceilings. Entertain guests in a brightly windowed dining room or spacious cook-friendly kitchen. A discreet powder room and laundry complete the main level.
Upstairs, two nice-sized bedrooms share a Jack and Jill bathroom. The master retreat is a generous sleeping chamber with seating area, enviable walk-in closet and spa-style bathroom.
A three car garage completes the expected amenities.
Distinctive elements
12 foot ceiling in family room, home office in turret, monumental two-sided fireplace, see-thru staircase (at base), remarkable master bedroom with nice reading corner in turret area.
Plan feature(s)
Fireplace, Gound floor laundry room, Office / Study / Den, Island, Pantry, Ceiling over 8', Cathedral ceiling, Side entry garage, Master suite upstairs, Jack & Jill bath, His/Hers walk-in, Separate bath and shower, Double sinks
Plan architectural style(s)
. European, . Manors and small castles, . Country, . Victorian
Similar plans
Previously Viewed Plans
Questions and comments
April 14
Stan
I love these house plans, can the be expanded a little?
April 14
Customer service
Good day and thank you for your interest in this plan.
We would be happy to return a free estimate for any changes required to this plan within two business days after receipt of this on line form.
Please let me know if I can further assist you
Regards
Deb
March 12
Alison
Is there a ballpark figure for how much the materials/construction would cost for this home?
March 12
Customer service
Good day and thank you for taking the time to write.
Although we do not have construction estimates for your area, a ballpark figure for the construction of this home in Quebec, Canada starts at around $476,000.
The estimates are based on professional grade materials and include ceramic in the hallway, the kitchen and the bathrooms and hardwood flooring throughout the common areas and the bedrooms with wood grain melamine cabinetry. The construction estimate to build in Quebec was updated on January 10th 2014 and includes the cost of materials and manpower combined as we have no detailed breakdown that separates the two.
The cost of the land and its excavation, taxes and hook-ups to municipal or other services is not included in the calculation and it is highly recommended to consult local contractors and materials suppliers to get a better idea of the actual cost to build in your area.
I hope that this provides some helpful information and I invite you to contact me if you have any other questions or comments
Regards
Deb
December 12
wes
where would the TV in the living room
December 13
Customer service
Dear Wes,
Thank you for your interest in Drummond House Plans.
The TV could be located anywhere in the living room. We have placed it against the back wall.
If you need further information, please contact me again. I will gladly answer any questions you may have.
Best Regards,
Doreen, Customer Service Departement
Thank you for your comment! It must be approved before being put online, please allow a period of 24 hours.
Error with google reCaptcha! Try again
Here is a brief description of our different plan packages. Please select the plan package that suits your needs. You can change the package at the next step, if necessary.
PDF VERSION OF PLAN:
Complete digital version of plan (pdf format) sent by email (original plan format 18" x 24'' or 24" x 36'')
5 copies of plan + PDF:
Includes: 5 copies of plan, plan in PDF format (reduced size version), materials list.
Foundation type
Additional foundation types are available, a fee may apply. Please indicate your choice on the online order form, or to our customer service representative, when placing your house plan order.
If your desired foundation type is not available, please contact our customer service to receive your free plan modification quote.
Explanation of bonus space types
UNFINISHED BONUS ROOM
The bonus rooms are often planned above the garage and are accessible from the house. They are designed to be converted as an office, a laundry area, a bathroom, a library corner or even an additional bedroom for which homeowners must make sure to have a window that complies with current codes & standards.
STORAGE AREA
Often located above the garage, our storage areas are used only as storage and are usually accessible from the garage via a retractable staircase.
Do you like this plan but want it to be modified to suit your needs?
To add a garage, another bedroom, finish the basement or any other modification, click here and let us know about your desired changes and to get your free quote for the modification of your plan.
Conditions of use
Important copyright notice! Please take note of these copyright conditions before printing:
By printing this house plan, cottage or garage or the floorplan(s), you confirm being informed that every house plan on this website is the exclusive property of Drummond House
Plans and is protected by Canadian copyright law. You are aware that these prints cannot be used to build or even obtain a building permit. The graphic representations of these
models are offered by Drummond House Plans for the sole purpose of allowing you to notate modifications of a model and then take it to one of the Drummond House Plans Canadian dealers for
modification of the plan.
The purchase of a house plan, cottage or garage from Drummond House Plans is mandatory if you wish to build any of our models. The plan purchase allows you to build a single unit; you cannot resell or give your plan to anyone once the house, cottage or garage has been built. If you wish to build the same house, cottage or garage more than once, you need to obtain the licence to this effect. Please contact us for more details.
All plans from Drummond House Plans can only be modified by a licensed Drummond House Plan Canadian dealer. If any other business or individual with no affiliation to Drummond House Plans modifies a Drummond House Plan on your behalf, please ensure this business or individual has a licence to modify this specific plan or you will be subject to prosecution on the same level as the business or individual who modified or reproduced the plan.
For more details, do not hesitate to contact u by e-mail or by phone at 1-800-567-1413.
I agree to respect the conditions above to not reproduce, modify or build a model from Drummond House Plans without previously purchasing a complete house plan.







April 14
Stan
I love these house plans, can the be expanded a little?