There are no shipping fees if you buy one of our 2 plan packages "PDF file format" or "5 sets of blueprints + PDF". Shipping charges may apply if you buy additional sets of blueprints.
House plan Winslet 3 (3876-V2)
Modern 2 storey-home plan for narrow-lot, with garage, 3 bedrooms, open layout, laundry room on second floor
Other useful information on this plan
Modern home with garage for a narrow lot
Plan number 3876-V2, also called Patriot 3, is a slightly enlarged version of the original plan number 3876. In addition, the laundry room has been relocated on the second level for convenient access to the bedrooms.
You will notice the rather narrow 27’ in width, including a garage, which makes it perfect for smaller lots. The space above the garage is used for the master bedroom, which also allowed the addition of a large walk in closet.
On the main floor, the spacious entrance has as a large closet and this area is big enough to fit an entrance bench and even a small table. The kitchen has an island and is open to the dining area, as well as the family room area (or living room). A patio door and windows allow occupants to enjoy plenty of natural light in the common area.
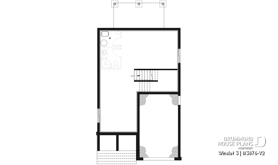
A practical bathroom (washroom) was fitted halfway between the ground floor and the basement. Speaking of basement, it was designed to be above ground level which allows for lots of light, ideal for rooms in the basement or also if you need additional rooms, an office space or family room.
The parents' room is large and offers a large walk-in closet. Upstairs we also find two (2) additional bedrooms with closets, as well as a laundry room and a large family bathroom. The family bathroom is composed of 2 sinks, a large shower, toilet and bath.
Do you want to modify this plan to personalize it to your specific needs? We can change this plan for you online or through our regional offices. Contact us for more information.
Distinctive elements
Modern two-story home with garage, ideal for narrow lot.
Large entrance hall with coat closet (or storage area).
Kitchen with island and open to dining and living rooms.
Master bedroom with walk-in closet.
Laundry on second floor.
Large family bathroom with two sinks, large shower and bath.
Plan feature(s)
Panoramic view, Island, Walk-in master bed., Second floor laundry room, Open floor layout, Planning desk, Separate bath and shower, Double sinks
Plan architectural style(s)
. Contemporary, . Modern / Design, . Transitional
Similar plans
Previously Viewed Plans
Thank you for your comment! It must be approved before being put online, please allow a period of 24 hours.
Error with google reCaptcha! Try again
Here is a brief description of our different plan packages. Please select the plan package that suits your needs. You can change the package at the next step, if necessary.
PDF VERSION OF PLAN:
Complete digital version of plan (pdf format) sent by email (original plan format 18" x 24'' or 24" x 36'')
5 copies of plan + PDF:
Includes: 5 copies of plan, plan in PDF format (reduced size version), materials list.
Foundation type
Additional foundation types are available, a fee may apply. Please indicate your choice on the online order form, or to our customer service representative, when placing your house plan order.
If your desired foundation type is not available, please contact our customer service to receive your free plan modification quote.
Explanation of bonus space types
UNFINISHED BONUS ROOM
The bonus rooms are often planned above the garage and are accessible from the house. They are designed to be converted as an office, a laundry area, a bathroom, a library corner or even an additional bedroom for which homeowners must make sure to have a window that complies with current codes & standards.
STORAGE AREA
Often located above the garage, our storage areas are used only as storage and are usually accessible from the garage via a retractable staircase.
Do you like this plan but want it to be modified to suit your needs?
To add a garage, another bedroom, finish the basement or any other modification, click here and let us know about your desired changes and to get your free quote for the modification of your plan.
Conditions of use
Important copyright notice! Please take note of these copyright conditions before printing:
By printing this house plan, cottage or garage or the floorplan(s), you confirm being informed that every house plan on this website is the exclusive property of Drummond House
Plans and is protected by Canadian copyright law. You are aware that these prints cannot be used to build or even obtain a building permit. The graphic representations of these
models are offered by Drummond House Plans for the sole purpose of allowing you to notate modifications of a model and then take it to one of the Drummond House Plans Canadian dealers for
modification of the plan.
The purchase of a house plan, cottage or garage from Drummond House Plans is mandatory if you wish to build any of our models. The plan purchase allows you to build a single unit; you cannot resell or give your plan to anyone once the house, cottage or garage has been built. If you wish to build the same house, cottage or garage more than once, you need to obtain the licence to this effect. Please contact us for more details.
All plans from Drummond House Plans can only be modified by a licensed Drummond House Plan Canadian dealer. If any other business or individual with no affiliation to Drummond House Plans modifies a Drummond House Plan on your behalf, please ensure this business or individual has a licence to modify this specific plan or you will be subject to prosecution on the same level as the business or individual who modified or reproduced the plan.
For more details, do not hesitate to contact u by e-mail or by phone at 1-800-567-1413.
I agree to respect the conditions above to not reproduce, modify or build a model from Drummond House Plans without previously purchasing a complete house plan.







