There are no shipping fees if you buy one of our 2 plan packages "PDF file format" or "5 sets of blueprints + PDF". Shipping charges may apply if you buy additional sets of blueprints.
House plan Ventura (90112)
Magnificient eco-friendly Farmhouse, 4+ beds, 2 kitchen islands, playroom, gym, optional finished basement ($)
Other useful information on this plan
MAGNIFICENT AND ECO-FRIENDLY HOME DESIGNED FOR THE CHARMING AND POPULAR VENTURA FAMILY!
The design of the Ventura house (#90112) was thought for a lot with a north-west facade. As soon as you approach the front threshold, you will be impressed by the effect of grandeur offered by this magnificent Farmhouse. Even for large families, it will be impossible to step on each other's toes in this noble residence.
On the ground floor, you will find a main entrance with a spacious cloakroom and a bathroom in addition to a secondary entrance connecting directly with the back kitchen. And you are not dreaming, there is indeed a double height gymnasium accessible from the main entrance locker room.
In addition, with its two islands, the kitchen has everything to be functional and accommodate many people. A breakfast area is set back from the kitchen, the “Starbucks” corner as the Ventura family calls it. The dining room, located to the south, offers a magnificent double-height ceiling bringing in light all day long into the large open area. Meanwhile, the living room can accommodate a large family to admire the fireplace.
Upstairs, you will be charmed by its vastness and impressive “open to below”. In addition to the magnificent master bedroom with a cathedral ceiling and walk-in closet, you will find three other bedrooms. The family bathroom has been designed like a spa. Large and functional, making it a great space to relax and remove all daily stresses. Lastly, a mezzanine will offer a magnificent view of the gymnasium and even access to it thanks to the fireman's pole.
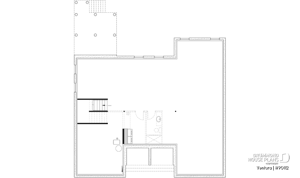
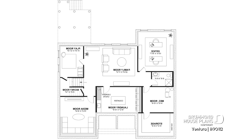
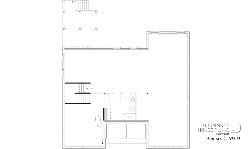
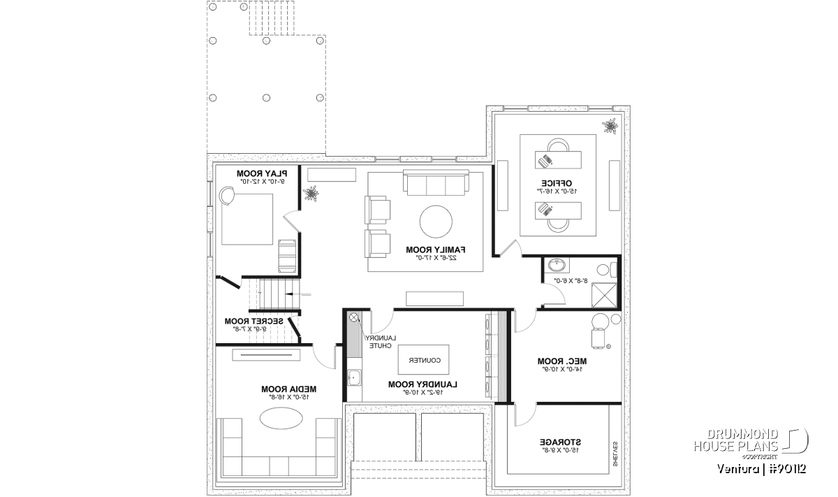
In the basement, there are several playful surprises. First, your children will have a large playroom with a little secret corner under the stairs. A cinema room will allow for great family evenings, not to mention the space you will have in the family room to gather and play board games, for example. The laundry room allows two sets of washer-dryers, a convenient folding counter, a soaking sink and a laundry chute. Finally, an office, a shower room and the mechanical room are also fitted out there.
In short, what you should remember from this house: size, natural light and originality. It has everything to please and offers joy and pleasure at all levels for every member of the family!
---
* For more information or to buy a traditional construction version, please contact our customer service.
ECO-FRIENDLY HOUSE PLAN
This house plan is part of our “Eco-friendly house plan collection” and here is what distinguishes all the plans included in this selection:
Sun:
The orientation of the house according to the sun’s daily path, combined with the thermal capture of the sun's rays using optimal fenestration, minimizing heating costs and maximizing the presence of natural light.
Simplicity:
A house with modest volumes ensuring simplified construction, while favoring the maximization of interior spaces, to reduce the number of square feet and the construction cost.
Sound Mind & Body:
A home designed to promote the well-being and health of its occupants by being well ventilated, using durable and non-toxic materials (steel, wood, lightweight cladding, fiber cement, among others) and maximizing natural light.
Distinctive elements
**Eco-friendly Modern farmhouse offering 4+ bedrooms and many surprises!
Ceiling at 9' everywhere on the ground floor, except in the gymnasium and dining room where they are at 18'6''.
Spacious entrance with large cloakroom.
Half bath judiciously located between the entrance and the living room.
Two-storey open gymnasium with climbing wall and fireman's pole coming from the second floor.
Living room with fireplace and built-in furniture on each side.
Kitchen with practical & very large back kitchen.
Small well-windowed breakfast area, with bench seat.
Open area in the kitchen which offers 2 large islands.
Parents' bedroom with large walk-in closet and cathedral ceiling.
Upstairs mezzanine overlooking the gymnasium.
Large family bathroom with practical cabin toilet, 2 sinks, separate bath and shower and a laundry chute.
Large sheltered terrace of 14' x 14'.
*Finished basement (optional $):
Very large laundry room with laundry chute from upstairs and enough space for 2 washers and 2 dryers + large island.
Cinema room and games room planned in the basement, and adjoining a large central family room.
Home office, shower room and mechanical room.
---
*If you wish to purchase the finished basement plan, please select this option in the shopping cart, in the "Selection of foundation type" section. If you do not select this option, you will receive the unfinished full basement option, at no extra charge.
---
**This house plan is part of our “Eco-friendly house plan’ collection” and here is what distinguishes all the plans included in this selection:
SUN:
The orientation of the house according to the sun’s daily path, combined with the thermal capture of the sun's rays using optimal fenestration, minimizing heating costs and maximizing the presence of natural light.
SIMPLICITY:
A house with modest volumes ensuring simplified construction, while favoring the maximization of interior spaces, to reduce the number of square feet and the construction cost.
SOUND MIND & BODY:
A home designed to promote the well-being and health of its occupants by being well ventilated, using durable and non-toxic materials (steel, wood, lightweight cladding, fiber cement, among others) and maximizing natural light.
Plan feature(s)
Side load garage, Laundry chute, Media Room, Master suite upstairs, Mud room, Bench seat(s), Game room, Butler's pantry, Office / Study / Den, Breakfast nook, Island, Ceiling over 8', Mezzanine, Walk-in master bed., Cathedral ceiling, Separate bath and shower, Double sinks, Oversized garage, Built-ins, Shelves, Fireplace, Deck, Panoramic view, 2-Story foyer, Arch
Plan architectural style(s)
Modern farmhouse, . American, . Farmhouse, . Traditional, . Transitional, . Country, Classic, . Vacation and waterfront
Similar plans
Previously Viewed Plans
Thank you for your comment! It must be approved before being put online, please allow a period of 24 hours.
Error with google reCaptcha! Try again
Here is a brief description of our different plan packages. Please select the plan package that suits your needs. You can change the package at the next step, if necessary.
PDF VERSION OF PLAN:
Complete digital version of plan (pdf format) sent by email (original plan format 18" x 24'' or 24" x 36'')
5 copies of plan + PDF:
Includes: 5 copies of plan, plan in PDF format (reduced size version), materials list.
Foundation type
Additional foundation types are available, a fee may apply. Please indicate your choice on the online order form, or to our customer service representative, when placing your house plan order.
If your desired foundation type is not available, please contact our customer service to receive your free plan modification quote.
Explanation of bonus space types
UNFINISHED BONUS ROOM
The bonus rooms are often planned above the garage and are accessible from the house. They are designed to be converted as an office, a laundry area, a bathroom, a library corner or even an additional bedroom for which homeowners must make sure to have a window that complies with current codes & standards.
STORAGE AREA
Often located above the garage, our storage areas are used only as storage and are usually accessible from the garage via a retractable staircase.
Do you like this plan but want it to be modified to suit your needs?
To add a garage, another bedroom, finish the basement or any other modification, click here and let us know about your desired changes and to get your free quote for the modification of your plan.
Conditions of use
Important copyright notice! Please take note of these copyright conditions before printing:
By printing this house plan, cottage or garage or the floorplan(s), you confirm being informed that every house plan on this website is the exclusive property of Drummond House
Plans and is protected by Canadian copyright law. You are aware that these prints cannot be used to build or even obtain a building permit. The graphic representations of these
models are offered by Drummond House Plans for the sole purpose of allowing you to notate modifications of a model and then take it to one of the Drummond House Plans Canadian dealers for
modification of the plan.
The purchase of a house plan, cottage or garage from Drummond House Plans is mandatory if you wish to build any of our models. The plan purchase allows you to build a single unit; you cannot resell or give your plan to anyone once the house, cottage or garage has been built. If you wish to build the same house, cottage or garage more than once, you need to obtain the licence to this effect. Please contact us for more details.
All plans from Drummond House Plans can only be modified by a licensed Drummond House Plan Canadian dealer. If any other business or individual with no affiliation to Drummond House Plans modifies a Drummond House Plan on your behalf, please ensure this business or individual has a licence to modify this specific plan or you will be subject to prosecution on the same level as the business or individual who modified or reproduced the plan.
For more details, do not hesitate to contact u by e-mail or by phone at 1-800-567-1413.
I agree to respect the conditions above to not reproduce, modify or build a model from Drummond House Plans without previously purchasing a complete house plan.






















