There are no shipping fees if you buy one of our 2 plan packages "PDF file format" or "5 sets of blueprints + PDF". Shipping charges may apply if you buy additional sets of blueprints.
                                                                                                                                                                                                                                                                                                                                                                                                                                                                                                                                                                                                                                                                                                                                                                          House plan Toundra  (6126)                
                                  
              
              Country style modest single-story house plan, 2 to 4 bedrooms, open concept and finished basement (optional $)
Other useful information on this plan
Country-Inspired Home Plan – Elegance, Comfort, and Warmth All Under One Roof!
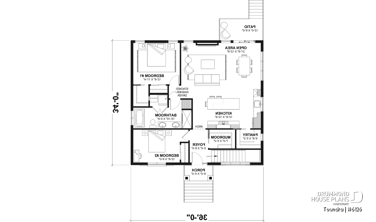
Fall in love with this beautifully designed country-style home that blends rustic charm with modern functionality. From the moment you arrive, you’ll be greeted by a warm, inviting entryway featuring a practical coat closet—perfect for staying organized and setting the tone for a well-thought-out, welcoming interior.
The main floor offers an airy and bright ambiance thanks to 9-foot ceilings, creating a wonderful sense of openness in every room. The primary bedroom is a peaceful, private retreat complete with a spacious walk-in closet that meets even the highest storage expectations.
The generously sized bathroom has everything you need: a freestanding tub for relaxing soaks, a glass-enclosed shower, double vanity, and a neatly integrated stacked washer/dryer area for maximum efficiency.
At the heart of the home is the kitchen—a space designed to inspire and connect. With its walk-in pantry and large central island, it’s perfect for preparing delicious meals while staying part of the conversation. The kitchen opens seamlessly to the dining and living areas, forming a spacious open-concept layout ideal for hosting family and friends in a cozy, welcoming atmosphere.
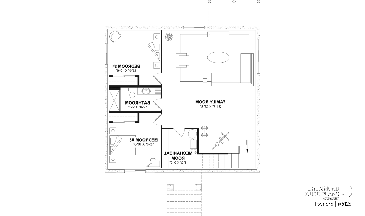
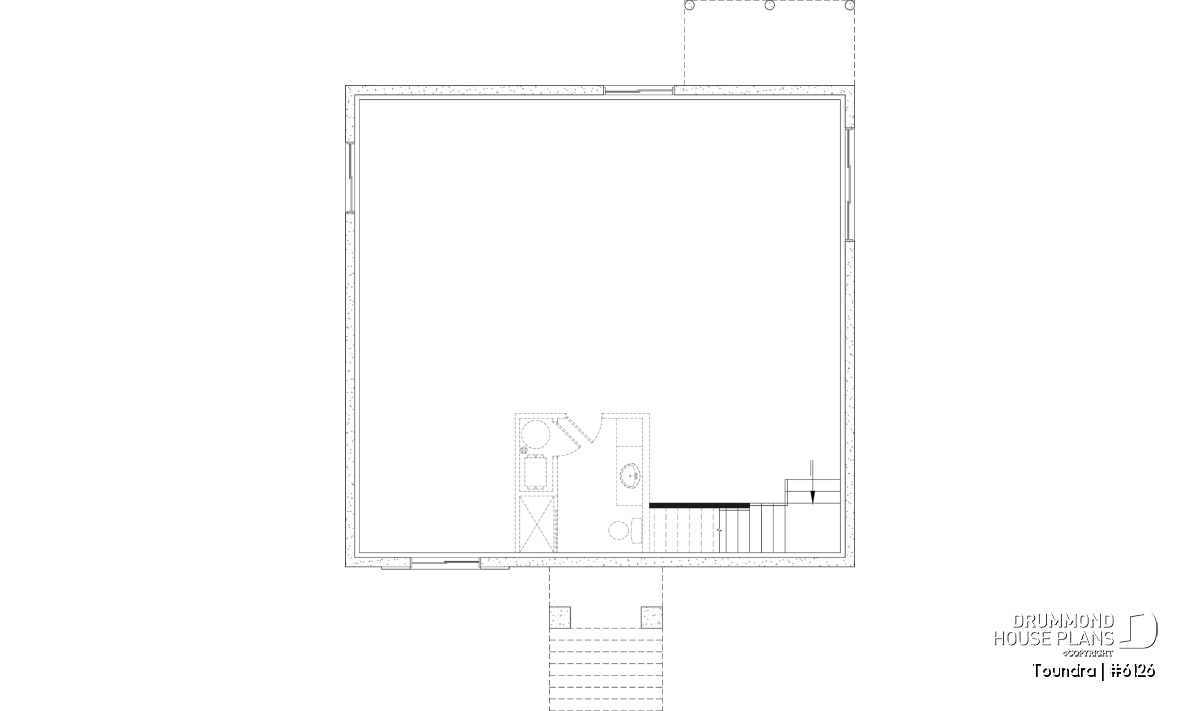
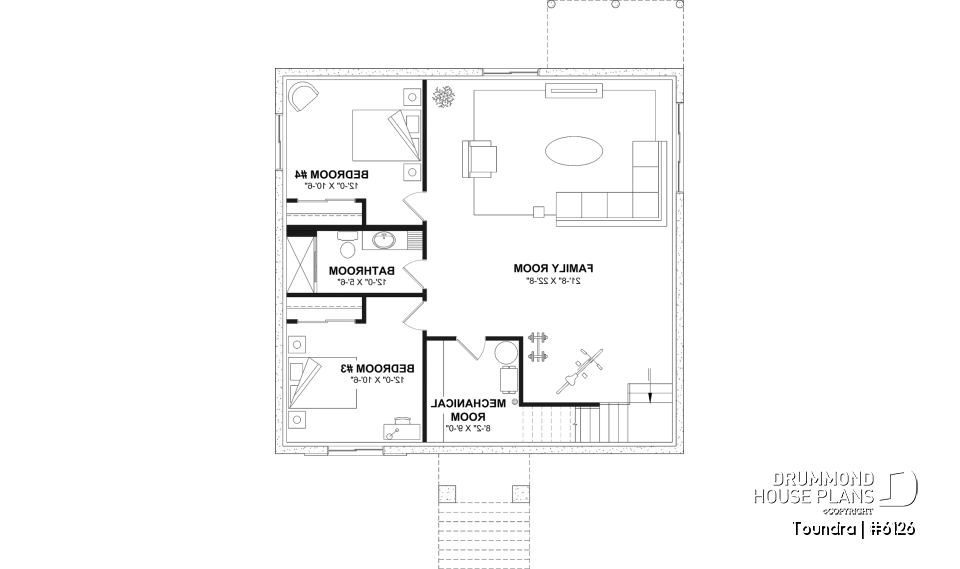
And there’s more: the plans include an unfinished basement, ready to be tailored to your needs—at no additional cost. For those looking to expand their living space, an optional finished basement upgrade is available ($). This version includes two additional bedrooms, a convenient shower room, a mechanical room, and a generous family room perfect for movie nights or relaxing downtime.
This charming country-style home plan offers a strong foundation to create a living space that reflects your lifestyle—spacious, comfortable, and truly inviting, while being perfectly suited to modern family life.
---
*If you wish to purchase the finished basement plan, as presented on this plan page, please select this option in the shopping cart, in the "Selection of foundation type" section.  If you do not select this option, you will receive the unfinished full basement option, at no extra charge.
Distinctive elements
Country-Inspired Home Design!
9-foot ceilings on the main floor create a bright, spacious feel.
Welcoming entryway with a practical coat closet.
Primary bedroom features a walk-in closet.
Spacious bathroom with separate tub and shower, double vanity, and a stacked washer/dryer area.
Inviting kitchen with a pantry and large central island—perfect for gathering.
Open-concept layout connecting the kitchen, dining, and living areas—a warm, welcoming space to host family and friends!
---
*Finished basement (optional $): 
2 bedrooms, shower room, mechanical room and large family room.
---
*If you wish to purchase the finished basement plan, as presented on this plan page, please select this option in the shopping cart, in the "Selection of foundation type" section.  If you do not select this option, you will receive the unfinished full basement option, at no extra charge.
Plan feature(s)
Mud room, Pantry, Island, Walk-in master bed., Open floor layout, Ceiling over 8', Double sinks, Separate bath and shower, Gound floor laundry room, Arch, Shelves
Plan architectural style(s)
. Country, . Farmhouse, Modern farmhouse, Trending, . Transitional, . Modern rustic, . Craftsman / Northwest, Modern Craftsman
Similar plans
Previously Viewed Plans
Thank you for your comment! It must be approved before being put online, please allow a period of 24 hours.
Error with google reCaptcha! Try again
Here is a brief description of our different plan packages. Please select the plan package that suits your needs. You can change the package at the next step, if necessary.
PDF VERSION OF PLAN:
Complete digital version of plan (pdf format) sent by email (original plan format 18" x 24'' or 24" x 36'')
5 copies of plan + PDF:
Includes: 5 copies of plan, plan in PDF format (reduced size version), materials list.
Foundation type
Additional foundation types are available, a fee may apply. Please indicate your choice on the online order form, or to our customer service representative, when placing your house plan order.
If your desired foundation type is not available, please contact our customer service to receive your free plan modification quote.
Explanation of bonus space types
UNFINISHED BONUS ROOM
The bonus rooms are often planned above the garage and are accessible from the house. They are designed to be converted as an office, a laundry area, a bathroom, a library corner or even an additional bedroom for which homeowners must make sure to have a window that complies with current codes & standards.
STORAGE AREA
Often located above the garage, our storage areas are used only as storage and are usually accessible from the garage via a retractable staircase.
Do you like this plan but want it to be modified to suit your needs?
To add a garage, another bedroom, finish the basement or any other modification, click here and let us know about your desired changes and to get your free quote for the modification of your plan.
Conditions of use
Important copyright notice! Please take note of these copyright conditions before printing:
        By printing this house plan, cottage or garage or the floorplan(s), you confirm being informed that every house plan on this website is the exclusive property of Drummond House
          Plans and is protected by Canadian copyright law. You are aware that these prints cannot be used to build or even obtain a building permit. The graphic representations of these
        models are offered by Drummond House Plans for the sole purpose of allowing you to notate modifications of a model and then take it to one of the Drummond House Plans Canadian dealers for
        modification of the plan.
The purchase of a house plan, cottage or garage from Drummond House Plans is mandatory if you wish to build any of our models. The plan purchase allows you to build a single unit; you cannot resell or give your plan to anyone once the house, cottage or garage has been built. If you wish to build the same house, cottage or garage more than once, you need to obtain the licence to this effect. Please contact us for more details.
All plans from Drummond House Plans can only be modified by a licensed Drummond House Plan Canadian dealer. If any other business or individual with no affiliation to Drummond House Plans modifies a Drummond House Plan on your behalf, please ensure this business or individual has a licence to modify this specific plan or you will be subject to prosecution on the same level as the business or individual who modified or reproduced the plan.
For more details, do not hesitate to contact u by e-mail or by phone at 1-800-567-1413.
I agree to respect the conditions above to not reproduce, modify or build a model from Drummond House Plans without previously purchasing a complete house plan.








 
                           
                           
                           
                           
                           
                          


 
                             
                             
                            








 
                                   
                                   
                                   
                                   
                                   
                                   
                                   
                                   
                                   
                         
                         
                         
                         
                         
                         
                         
                         
                         
                         
                         
                         
                         
                         
                         
                         
                         
               
               
               
               
               
               
               
               
              