There are no shipping fees if you buy one of our 2 plan packages "PDF file format" or "5 sets of blueprints + PDF". Shipping charges may apply if you buy additional sets of blueprints.
House plan Tiago (3741)
Modern house plan 3 to 5 bedrooms, office, 2.5 baths, master suite upstairs, optional finished basement ($)
Other useful information on this plan
A Timeless Home Designed to Stand the Test of Time
The TIAGO house plan (#3741) is sure to charm you with its refined exterior, blending raw materials with a natural aesthetic and sleek modern lines. Offering 2,184 sq. ft. spread across two floors, plus an *optional fully finished basement of 1,101 sq. ft., this home is both stylish and functional.
All ceilings on the main and upper floors are 9 feet high, creating a spacious and airy feel. A garage can be added, with access from either the staircase landing or directly through the mudroom entrance. This customization can be easily arranged through one of our offices across Quebec and Ontario, or online.
Thoughtfully Designed Living Spaces
Stepping through the front entrance, you'll find a spacious mudroom to the right and a built-in bench to the left. The living room, featuring a cozy fireplace, comfortably accommodates 6 to 7 people. The open-concept kitchen flows seamlessly into the dining area and highlights a sought-after trio: walk-in pantry, wine cellar, and oversized island—perfect for both everyday living and entertaining. Additionally, a dedicated office space in this area can easily be converted into a children’s playroom. A powder room, conveniently located on the landing leading to the basement, completes this floor.
A Luxurious Upper Level
Upstairs, the spacious primary bedroom boasts a generous walk-in closet and a private ensuite bathroom. With a soaking tub positioned beneath a large window, an expansive shower, and dual sinks, this space truly earns the title of a "dream bathroom." Two children’s bedrooms, a full bathroom, a laundry room, and a hallway closet complete the upper floor.
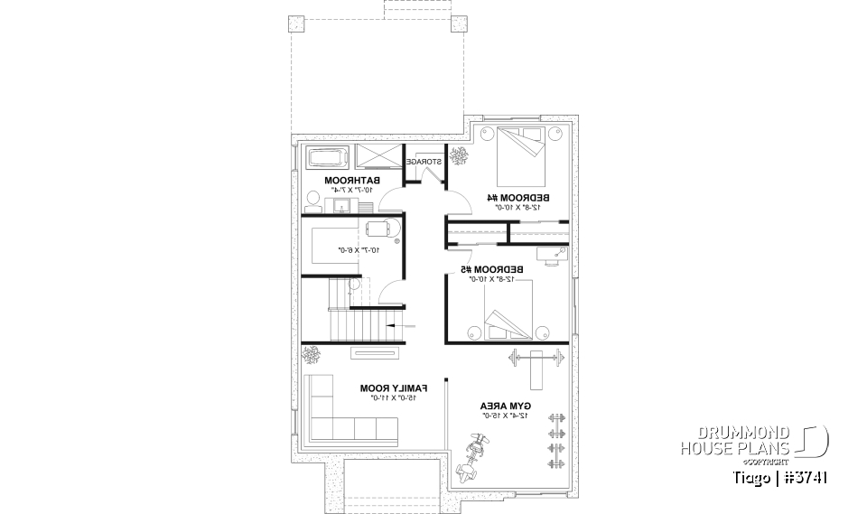
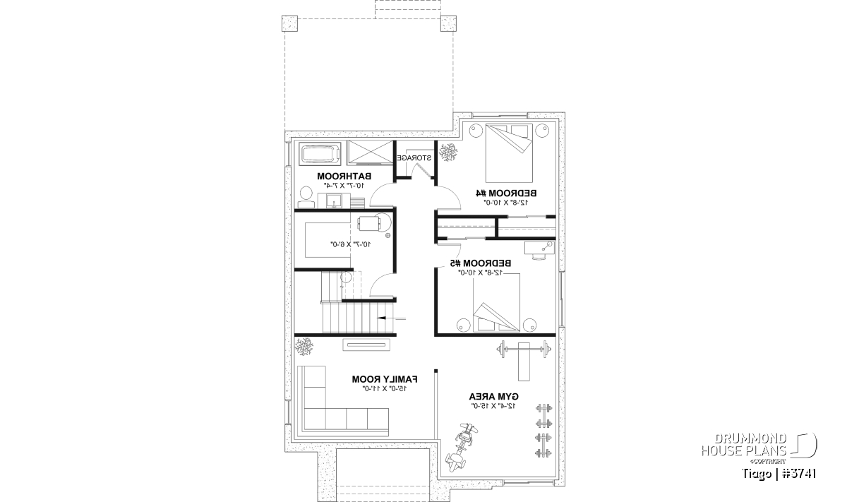
*Optional Finished Basement ($)
For those needing additional space, the finished basement offers:
Two additional bedrooms (for a total of five)
A large gym
A spacious family room
A full bathroom with a separate tub and shower
Ample storage space
The Perfect Home for Growing Families!
With 5 bedrooms, 2 living rooms, a dedicated games room, and 2.5 bathrooms, this home is designed to meet the needs of modern families.
Make TIAGO your dream home and enjoy a space built for comfort, style, and everyday living!
---
*If you wish to purchase the finished basement plan, as presented on this plan page, please select this option in the shopping cart, in the "Selection of foundation type" section. If you do not select this option, you will receive the unfinished full basement option, at no extra charge.
Distinctive elements
Transitional style two-story house offering 3 to 5 bedrooms.
9' ceilings on both floors.
Large front entrance with mudroom and bench seating area.
Fireplace in the living room.
Wine cellar, pantry and island in the kitchen.
Office/desk space (or games room) set back from the kitchen.
Powder room.
Parents' suite with walk-in closet and private bathroom.
Laundry room upstairs.
*Finished basement (optional $):
2 Bedrooms, family room, gym, bathroom and storage.
*If you wish to purchase the finished basement plan, as presented on this plan page, please select this option in the shopping cart, in the "Selection of foundation type" section. If you do not select this option, you will receive the unfinished full basement option, at no extra charge.
Plan feature(s)
Master suite upstairs, Office / Study / Den, Island, Pantry, Ceiling over 8', Second floor laundry room, Mud room, Walk-in master bed., Separate bath and shower, Double sinks, Deck, Bench seat(s), Open floor layout, Fireplace, Shelves, Built-ins, Wine cellar, Builder
Plan architectural style(s)
. Modern / Design, Trending, . Transitional, . Contemporary
Similar plans
Previously Viewed Plans
Thank you for your comment! It must be approved before being put online, please allow a period of 24 hours.
Error with google reCaptcha! Try again
Here is a brief description of our different plan packages. Please select the plan package that suits your needs. You can change the package at the next step, if necessary.
PDF VERSION OF PLAN:
Complete digital version of plan (pdf format) sent by email (original plan format 18" x 24'' or 24" x 36'')
5 copies of plan + PDF:
Includes: 5 copies of plan, plan in PDF format (reduced size version), materials list.
Foundation type
Additional foundation types are available, a fee may apply. Please indicate your choice on the online order form, or to our customer service representative, when placing your house plan order.
If your desired foundation type is not available, please contact our customer service to receive your free plan modification quote.
Explanation of bonus space types
UNFINISHED BONUS ROOM
The bonus rooms are often planned above the garage and are accessible from the house. They are designed to be converted as an office, a laundry area, a bathroom, a library corner or even an additional bedroom for which homeowners must make sure to have a window that complies with current codes & standards.
STORAGE AREA
Often located above the garage, our storage areas are used only as storage and are usually accessible from the garage via a retractable staircase.
Do you like this plan but want it to be modified to suit your needs?
To add a garage, another bedroom, finish the basement or any other modification, click here and let us know about your desired changes and to get your free quote for the modification of your plan.
Conditions of use
Important copyright notice! Please take note of these copyright conditions before printing:
By printing this house plan, cottage or garage or the floorplan(s), you confirm being informed that every house plan on this website is the exclusive property of Drummond House
Plans and is protected by Canadian copyright law. You are aware that these prints cannot be used to build or even obtain a building permit. The graphic representations of these
models are offered by Drummond House Plans for the sole purpose of allowing you to notate modifications of a model and then take it to one of the Drummond House Plans Canadian dealers for
modification of the plan.
The purchase of a house plan, cottage or garage from Drummond House Plans is mandatory if you wish to build any of our models. The plan purchase allows you to build a single unit; you cannot resell or give your plan to anyone once the house, cottage or garage has been built. If you wish to build the same house, cottage or garage more than once, you need to obtain the licence to this effect. Please contact us for more details.
All plans from Drummond House Plans can only be modified by a licensed Drummond House Plan Canadian dealer. If any other business or individual with no affiliation to Drummond House Plans modifies a Drummond House Plan on your behalf, please ensure this business or individual has a licence to modify this specific plan or you will be subject to prosecution on the same level as the business or individual who modified or reproduced the plan.
For more details, do not hesitate to contact u by e-mail or by phone at 1-800-567-1413.
I agree to respect the conditions above to not reproduce, modify or build a model from Drummond House Plans without previously purchasing a complete house plan.






















