There are no shipping fees if you buy one of our 2 plan packages "PDF file format" or "5 sets of blueprints + PDF". Shipping charges may apply if you buy additional sets of blueprints.
House plan The Woodlette 1 (2919)
2 to 3 bedroom affordable modern style house plan, lots of natural light, cathedral ceiling + mezzanine
Other useful information on this plan
Very popular chalet style house with 2 to 3 bedrooms
Very popular ever since its arrival on the market, this one surprised many people by the fact that it was being constructed not only as a four season vacation home, but oftentimes as a residential home. We must say that it does possess many assets to just limit construction uniquely as a vacation home.
First, the exterior presents a façade in relief thanks to the conjugation of two peaks and also by means of original mouldings both at the head of the angled door as well as at the head of the upper level window, and without forgetting that beautiful arched window which everyone cannot help but appreciate.
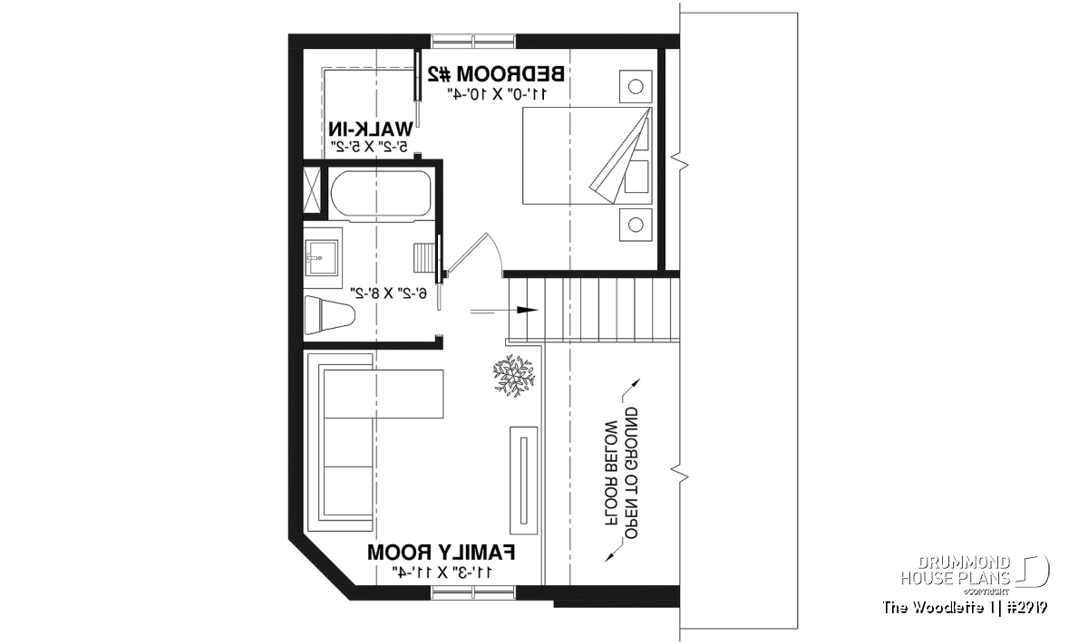
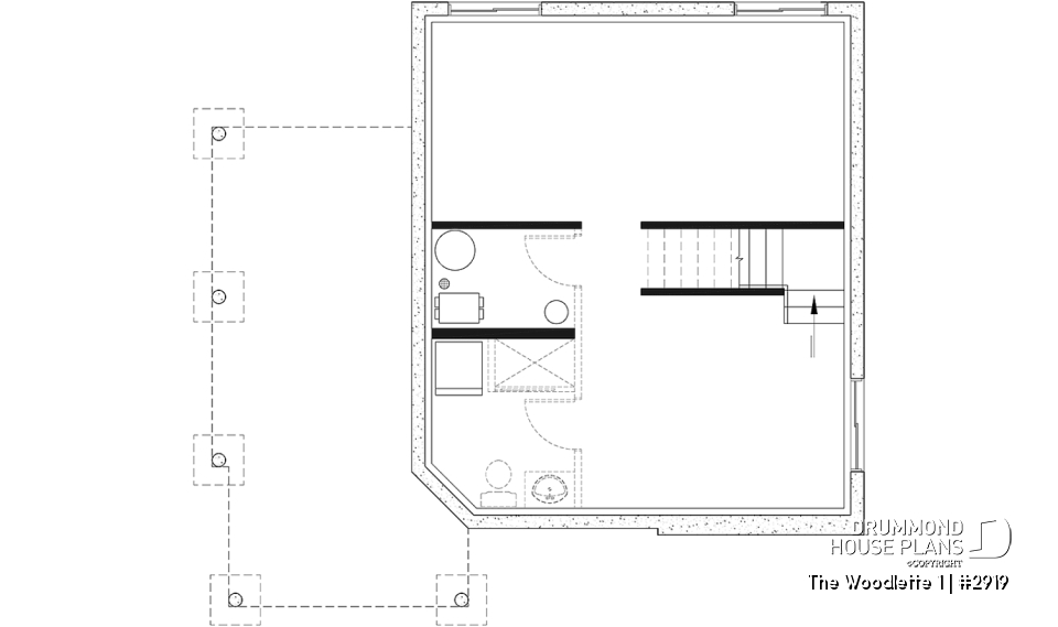
Inside, these assets translate into the presence of a bedroom on the main level, a surprising fact for a home of such size, and by an entirely open activities center adorned by a cathedral ceiling over the living room thereby expanding the interior space. At the upper level, this popularity is justified by the presence of liveable space in the mezzanine, which many will appreciate converting into a third bedroom.
Appreciate many similar plans to this model by visiting http://www.drummonddesigns.com//
Distinctive elements
Cathedral ceiling and mezzanine overlooking living room. Master bedroom on main floor. 3rd bedroom can be added on second floor (instead of reading room).
Plan feature(s)
Cathedral ceiling, Mezzanine, Sloped ceiling, Mud room, Master suite on main, Panoramic view, Open floor layout
Plan architectural style(s)
. Transitional, . Vacation and waterfront, . Ski chalets, . A-Frame, . Cottage, chalet, cabin, . Rustic, . Scandinavian, . Country, . Modern / Design
Similar plans
Previously Viewed Plans
Questions and comments
October 07
Marina Smith
Is this a prefab model? Im looking for a prefab for ease of build.
October 07
Customer service
Good day Ms. Smith and thank you for your interest in this plan.
Although the plans for this model are intended for a build on site you could contact a local manufacturer to find out whether they could prefabricate this model from our plans.
We do also have several other options, including those built with a NOYO core, and I invite you to contact me if you have any other questions or comments.
Regards
Deb
April 23
Renae Klein
Is there anyway to incorporate a washer and dryer on either the first or second floor.
Thanks
April 23
Customer service
Good day Ms. Klein and thank you for taking the time to write.
The addition of a stackable washer and dryer on the first floor of this plan could be made by removing the window and the shelves from the main entrance foyer, on the other side of the wall from the shower, which could be closed-off with a door to hide the laundry area.
Please let me know if I can further assist you
Regards
Deb
Thank you for your comment! It must be approved before being put online, please allow a period of 24 hours.
Error with google reCaptcha! Try again
Here is a brief description of our different plan packages. Please select the plan package that suits your needs. You can change the package at the next step, if necessary.
PDF VERSION OF PLAN:
Complete digital version of plan (pdf format) sent by email (original plan format 18" x 24'' or 24" x 36'')
5 copies of plan + PDF:
Includes: 5 copies of plan, plan in PDF format (reduced size version), materials list.
Foundation type
Additional foundation types are available, a fee may apply. Please indicate your choice on the online order form, or to our customer service representative, when placing your house plan order.
If your desired foundation type is not available, please contact our customer service to receive your free plan modification quote.
Explanation of bonus space types
UNFINISHED BONUS ROOM
The bonus rooms are often planned above the garage and are accessible from the house. They are designed to be converted as an office, a laundry area, a bathroom, a library corner or even an additional bedroom for which homeowners must make sure to have a window that complies with current codes & standards.
STORAGE AREA
Often located above the garage, our storage areas are used only as storage and are usually accessible from the garage via a retractable staircase.
Do you like this plan but want it to be modified to suit your needs?
To add a garage, another bedroom, finish the basement or any other modification, click here and let us know about your desired changes and to get your free quote for the modification of your plan.
Conditions of use
Important copyright notice! Please take note of these copyright conditions before printing:
By printing this house plan, cottage or garage or the floorplan(s), you confirm being informed that every house plan on this website is the exclusive property of Drummond House
Plans and is protected by Canadian copyright law. You are aware that these prints cannot be used to build or even obtain a building permit. The graphic representations of these
models are offered by Drummond House Plans for the sole purpose of allowing you to notate modifications of a model and then take it to one of the Drummond House Plans Canadian dealers for
modification of the plan.
The purchase of a house plan, cottage or garage from Drummond House Plans is mandatory if you wish to build any of our models. The plan purchase allows you to build a single unit; you cannot resell or give your plan to anyone once the house, cottage or garage has been built. If you wish to build the same house, cottage or garage more than once, you need to obtain the licence to this effect. Please contact us for more details.
All plans from Drummond House Plans can only be modified by a licensed Drummond House Plan Canadian dealer. If any other business or individual with no affiliation to Drummond House Plans modifies a Drummond House Plan on your behalf, please ensure this business or individual has a licence to modify this specific plan or you will be subject to prosecution on the same level as the business or individual who modified or reproduced the plan.
For more details, do not hesitate to contact u by e-mail or by phone at 1-800-567-1413.
I agree to respect the conditions above to not reproduce, modify or build a model from Drummond House Plans without previously purchasing a complete house plan.














October 07
Marina Smith
Is this a prefab model? Im looking for a prefab for ease of build.