There are no shipping fees if you buy one of our 2 plan packages "PDF file format" or "5 sets of blueprints + PDF". Shipping charges may apply if you buy additional sets of blueprints.
House plan Olympe 4 (3992-V3)
Country-Style Chalet Plan – Walk-Out Basement, 3 Bedrooms, 2 Terraces and Central Fireplace
Other useful information on this plan
Modern Rustic Chalet Plan with Walk-Out Basement – 3 Bedrooms, 2 Terraces and Grand Fireplace
This country-style home or chalet plan has been designed to combine comfort, functionality, and timeless style. With a walk-out basement, it’s perfectly suited for sloped lots and natural settings. Its architecture blends rustic charm with modern efficiency to create a warm, light-filled living space—ideal for families looking to enjoy a unique setting in every season.
From the outside, a covered front porch sets the tone with a welcoming entrance and a convenient spot to drop off skis, boots, or gear before stepping inside. Inside, an entryway with mudroom adjoining the powder room streamlines daily life and adds comfort and convenience for guests. Generous windows in every room flood the interior with natural light and frame beautiful views of the outdoors, creating a serene, energizing atmosphere.
A Wood-Burning Fireplace at the Heart of the Home
The heart of the home is the open-concept kitchen and living area, designed to encourage connection and family time. At its center stands a grand fireplace, a distinctive feature of this plan. The proposed STÛV s16-Z wood-burning fireplace combines performance with elegant design. It brings warmth and a cozy, Scandinavian-inspired ambiance to winter evenings while blending seamlessly into the chalet’s rustic-modern architecture. Visible from the entire main floor, it becomes the true focal point of the home, transforming every shared moment into a warm memory.
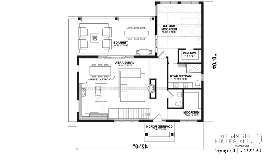
The kitchen stands out with its functional layout and generous space, while the 16-foot cathedral ceiling with exposed beams in the living and kitchen areas adds rustic charm and a spectacular feel. On the main floor, the primary suite includes a private bathroom, large walk-in closet, and oversized windows overlooking the backyard, with direct access to Upper Terrace #1.
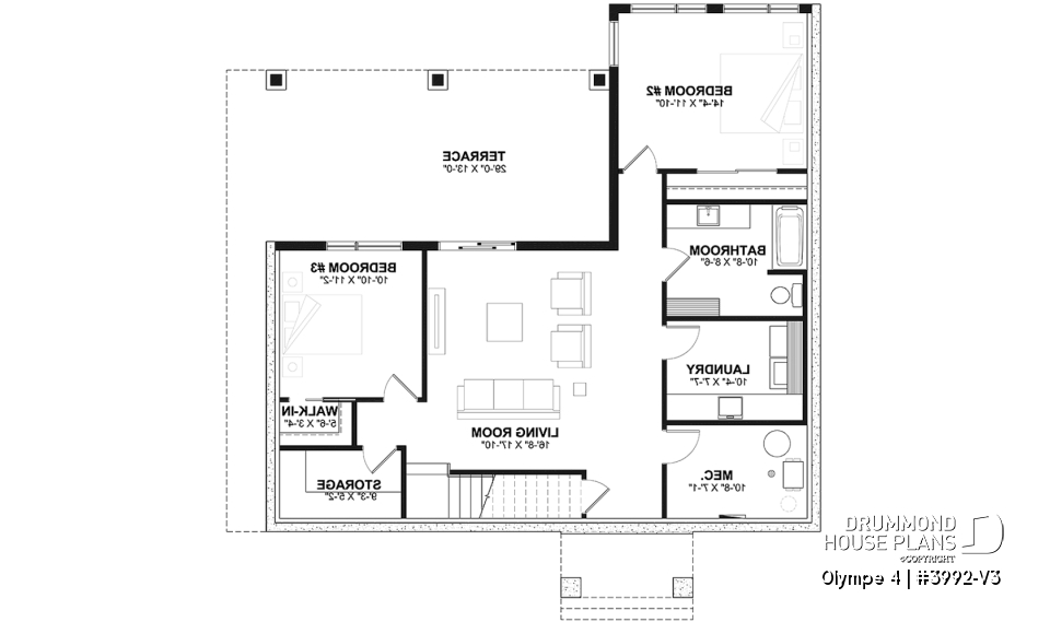
The lower level offers a family room with access to Covered Terrace #2, as well as two additional bedrooms sharing a full bathroom, ensuring privacy and comfort for everyone.
This versatile model adapts to your lifestyle and your lot. It offers multiple variations available on our website so you can create the country-style home or chalet of your dreams.
Distinctive elements
Country-style home or chalet plan with walk-out basement.
Two covered terraces, perfect for enjoying the outdoors in every season.
Exceptional natural light thanks to abundant windows in every room.
Covered front porch.
Entry with mudroom adjoining the powder room, practical on the main floor for guests.
Open-concept kitchen and living room with *central fireplace, ideal for warm family moments.
*Proposed fireplace: STÛV wood-burning model s16-Z.
16' cathedral ceiling with exposed beams in the kitchen and living room for rustic charm.
On the main floor, a beautiful primary suite with private bathroom, walk-in closet, and backyard view through large windows.
Access to upper Terrace #1 from both the living area and the primary bedroom.
Lower-level family room with access to covered Terrace #2.
Two additional bedrooms sharing a bathroom on the garden level.
This model offers several variations to discover on our website.
Plan feature(s)
Open floor layout, Panoramic view, Fireplace, Master suite on main, Mud room, Deck, Island, Plafond avec fausses poutres, Cathedral ceiling, Ceiling over 8', Access to basement from exterior
Plan architectural style(s)
. Cottage, chalet, cabin, . Mountain, . Contemporary, . Craftsman / Northwest, . Ski chalets, . Transitional, . Modern / Design, . Modern rustic, . Farmhouse, . L-Shaped, Modern farmhouse, . Vacation and waterfront, . Ranch, . Rustic, . American, . Cape Cod, . Country
Similar plans
Previously Viewed Plans
Thank you for your comment! It must be approved before being put online, please allow a period of 24 hours.
Error with google reCaptcha! Try again
Here is a brief description of our different plan packages. Please select the plan package that suits your needs. You can change the package at the next step, if necessary.
PDF VERSION OF PLAN:
Complete digital version of plan (pdf format) sent by email (original plan format 18" x 24'' or 24" x 36'')
5 copies of plan + PDF:
Includes: 5 copies of plan, plan in PDF format (reduced size version), materials list.
Foundation type
Additional foundation types are available, a fee may apply. Please indicate your choice on the online order form, or to our customer service representative, when placing your house plan order.
If your desired foundation type is not available, please contact our customer service to receive your free plan modification quote.
Explanation of bonus space types
UNFINISHED BONUS ROOM
The bonus rooms are often planned above the garage and are accessible from the house. They are designed to be converted as an office, a laundry area, a bathroom, a library corner or even an additional bedroom for which homeowners must make sure to have a window that complies with current codes & standards.
STORAGE AREA
Often located above the garage, our storage areas are used only as storage and are usually accessible from the garage via a retractable staircase.
Do you like this plan but want it to be modified to suit your needs?
To add a garage, another bedroom, finish the basement or any other modification, click here and let us know about your desired changes and to get your free quote for the modification of your plan.
Conditions of use
Important copyright notice! Please take note of these copyright conditions before printing:
By printing this house plan, cottage or garage or the floorplan(s), you confirm being informed that every house plan on this website is the exclusive property of Drummond House
Plans and is protected by Canadian copyright law. You are aware that these prints cannot be used to build or even obtain a building permit. The graphic representations of these
models are offered by Drummond House Plans for the sole purpose of allowing you to notate modifications of a model and then take it to one of the Drummond House Plans Canadian dealers for
modification of the plan.
The purchase of a house plan, cottage or garage from Drummond House Plans is mandatory if you wish to build any of our models. The plan purchase allows you to build a single unit; you cannot resell or give your plan to anyone once the house, cottage or garage has been built. If you wish to build the same house, cottage or garage more than once, you need to obtain the licence to this effect. Please contact us for more details.
All plans from Drummond House Plans can only be modified by a licensed Drummond House Plan Canadian dealer. If any other business or individual with no affiliation to Drummond House Plans modifies a Drummond House Plan on your behalf, please ensure this business or individual has a licence to modify this specific plan or you will be subject to prosecution on the same level as the business or individual who modified or reproduced the plan.
For more details, do not hesitate to contact u by e-mail or by phone at 1-800-567-1413.
I agree to respect the conditions above to not reproduce, modify or build a model from Drummond House Plans without previously purchasing a complete house plan.


















