There are no shipping fees if you buy one of our 2 plan packages "PDF file format" or "5 sets of blueprints + PDF". Shipping charges may apply if you buy additional sets of blueprints.
House plan Whistler (3974)
House plan with loft bedroom (total of 3 beds), open floor plan, fireplace and more
Virtual visit
Other useful information on this plan
Walkout Modern Craftsman Home with loft, mezzanine and cathedral ceiling!
House plan WHISTLER (#3974) is remarkable for its small rustic cottage look and ski lodge style. With finished spaces on 3 floors, including a walkout basement, it nevertheless offers all the spaces required for a family of 4 people!
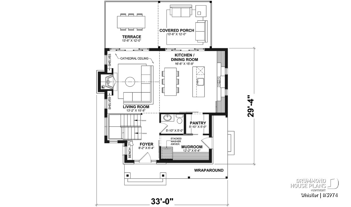
The front entrance has a bench seat and direct access to a large mudroom. A side entrance is also planned, with access to this same mudroom.
The kitchen offers a pantry which is also communicating with the mudroom, through a barn door. In addition, there is a good-sized island that can easily accommodate 4 guests. The living room offers a cathedral ceiling over 16'8'' high and a fireplace with shelves that can be fitted on each side. Double patio doors are found in the living room as well as in the dining room bringing a beautiful natural light to this sector of the house. A large partially sheltered terrace is also provided at this level.
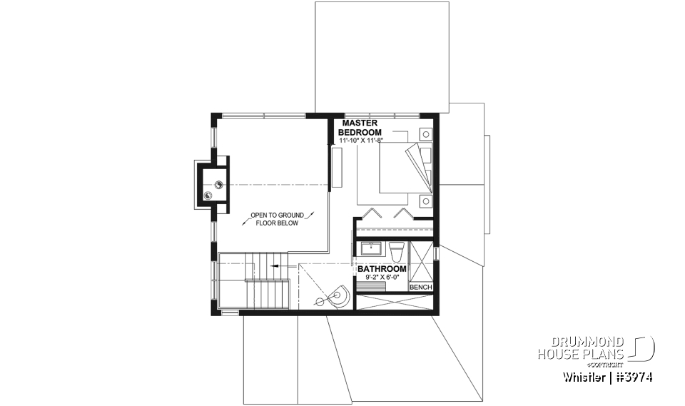
The upstairs loft bedroom includes a shower room and a reading area.
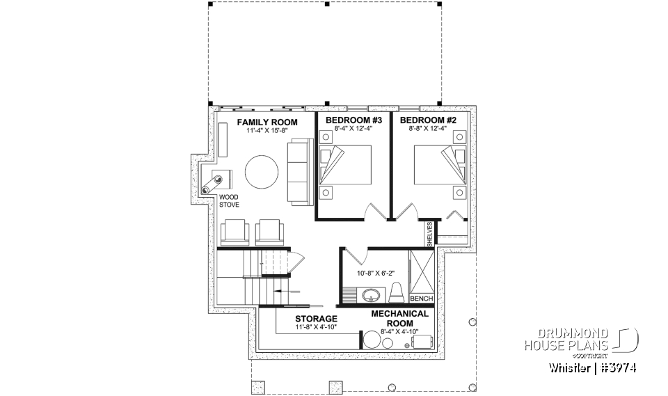
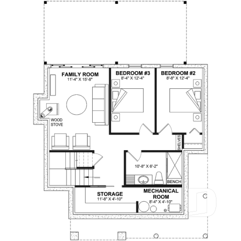
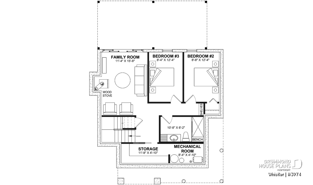
The walkout basement is fully finished. It includes 2 bedrooms, a shower room, a family room with wood stove as well as the mechanical room and a storage area. A large sheltered terrace is also offered at this level.
Cottage or house, if you think efficiency and amenities, this plan will meet all your needs!
Distinctive elements
Modern Craftsman style cottage plan!
Total of 3 bedrooms and 2.5 bathrooms.
Walkout basement offering a layout of 2 bedrooms, shower room and family room with wood stove.
Open concept ground floor.
Main front entrance with bench seat.
Side entrance with mudroom and access to the pantry.
Pantry with barn door and access to mudroom.
Fireplace with built-ins furniture on each side.
Upstairs loft converted into a bedroom.
Mezzanine overlooking the living room.
Large sheltered terrace at garden level.
Partially sheltered terrace on the main floor.
Plan feature(s)
Open floor layout, Warparound, Pantry, Loft, Mezzanine, Cathedral ceiling, Master suite upstairs, Mud room, Sliding barn door(s), Deck, Wood stove, Fireplace, Shelves, Bench seat(s)
Plan architectural style(s)
. Contemporary, Modern Craftsman, . Rustic, . Transitional, . Ski chalets, . Modern rustic, . Vacation and waterfront, . Craftsman / Northwest, . Country, Trending, . Mountain, . Cottage, chalet, cabin
Similar plans
Previously Viewed Plans
Thank you for your comment! It must be approved before being put online, please allow a period of 24 hours.
Error with google reCaptcha! Try again
Here is a brief description of our different plan packages. Please select the plan package that suits your needs. You can change the package at the next step, if necessary.
PDF VERSION OF PLAN:
Complete digital version of plan (pdf format) sent by email (original plan format 18" x 24'' or 24" x 36'')
5 copies of plan + PDF:
Includes: 5 copies of plan, plan in PDF format (reduced size version), materials list.
Foundation type
Additional foundation types are available, a fee may apply. Please indicate your choice on the online order form, or to our customer service representative, when placing your house plan order.
If your desired foundation type is not available, please contact our customer service to receive your free plan modification quote.
Explanation of bonus space types
UNFINISHED BONUS ROOM
The bonus rooms are often planned above the garage and are accessible from the house. They are designed to be converted as an office, a laundry area, a bathroom, a library corner or even an additional bedroom for which homeowners must make sure to have a window that complies with current codes & standards.
STORAGE AREA
Often located above the garage, our storage areas are used only as storage and are usually accessible from the garage via a retractable staircase.
Do you like this plan but want it to be modified to suit your needs?
To add a garage, another bedroom, finish the basement or any other modification, click here and let us know about your desired changes and to get your free quote for the modification of your plan.
Conditions of use
Important copyright notice! Please take note of these copyright conditions before printing:
By printing this house plan, cottage or garage or the floorplan(s), you confirm being informed that every house plan on this website is the exclusive property of Drummond House
Plans and is protected by Canadian copyright law. You are aware that these prints cannot be used to build or even obtain a building permit. The graphic representations of these
models are offered by Drummond House Plans for the sole purpose of allowing you to notate modifications of a model and then take it to one of the Drummond House Plans Canadian dealers for
modification of the plan.
The purchase of a house plan, cottage or garage from Drummond House Plans is mandatory if you wish to build any of our models. The plan purchase allows you to build a single unit; you cannot resell or give your plan to anyone once the house, cottage or garage has been built. If you wish to build the same house, cottage or garage more than once, you need to obtain the licence to this effect. Please contact us for more details.
All plans from Drummond House Plans can only be modified by a licensed Drummond House Plan Canadian dealer. If any other business or individual with no affiliation to Drummond House Plans modifies a Drummond House Plan on your behalf, please ensure this business or individual has a licence to modify this specific plan or you will be subject to prosecution on the same level as the business or individual who modified or reproduced the plan.
For more details, do not hesitate to contact u by e-mail or by phone at 1-800-567-1413.
I agree to respect the conditions above to not reproduce, modify or build a model from Drummond House Plans without previously purchasing a complete house plan.



































