There are no shipping fees if you buy one of our 2 plan packages "PDF file format" or "5 sets of blueprints + PDF". Shipping charges may apply if you buy additional sets of blueprints.
House plan Oakdale 3 (3226-V2)
U shape Ranch house plan, 2-car garage, master suite, large kitchen with island, high ceiling, bonus room
Other useful information on this plan
Ranch bungalow with large bonus room and up to 4 bedrooms!
This tidy bungalow boasts an open floor plan and loads of flexibility. A covered entry leads to an open foyer, and the eye is drawn to the focal point of a lovely fireplace flanked by generous built-in cabinetry or the vista of windows offering backyard views.
The kitchen is sure to be the hub of activity with generous island area plus easy access to the dining room and living room.
The first bedroom is ideally situated to serve as a bedroom, den or office – ideal as family circumstances change. It and a second bedroom have easy access to a full bathroom. The master suite includes a very comfortable 5-piece bathroom and, of course, walk-in closet.
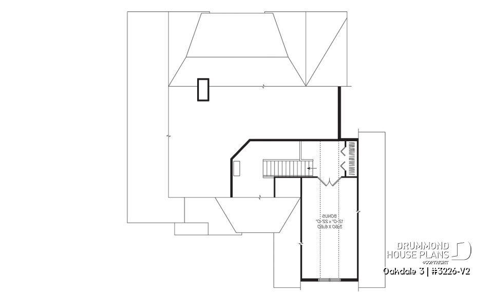
A bonus space over the garage is ideal for a game room or media room plus an undeveloped basement allows for additional bedrooms or activity areas. The plan is designed with a full basement and could easily be built on a sloping lot with daylight or walk-out basement.
A double garage with workshop area and covered grilling deck off the back top off the essentials. This comfortable home is suitable for every stage of life!
Distinctive elements
Ranch house plan with 2 to 4 bedrooms and bonus room.
9 foot ceilings throughout main floor plus vaulted entrance.
Bonus space access near the main entrance. Living room with fireplace and built-ins.
Kitchen with generous island.
Well-windowed dining room.
Large master suite with ensuite and walk-in.
Three bedrooms or two plus guest room/den or office.
Bonus space for additional social or bedroom space.
2-car garage.
Unfinished daylight basement. Other foundations available.
Plan feature(s)
Office / Study / Den, Living bonus space, Fireplace, Master suite upstairs, Gound floor laundry room, Panoramic view, Island, Built-ins, Open floor layout, Ceiling over 8', Walk-in master bed., Separate bath and shower, Double sinks
Plan architectural style(s)
. Ranch, . Country, . Craftsman / Northwest, . Modern rustic, . Traditional, . American, . Transitional
Similar plans
Previously Viewed Plans
Questions and comments
September 02
Gail Sotzke
I am from Michigan. My husband and I are retired and I just love this plan. Is there a plan similar, but smaller, maybe a 2 bedroom. I love the big kitchen. Thank you, Gail
March 13
Carl
I like this plan except for the master bedroom, is there any alternate versions with the bathroom/closet and bedroom reversed? having the bedroom at the back?
March 13
Customer service
Good day and thank you for taking the time to write
Although there are no stock plans that fit your requirement, we would be happy to send you a free estimate for the changes that you need within two business days after receipt of this on line form.
Please let me know if I can further assist you
Regards
Deb
February 06
Doris
The walls in the living room area around the fireplace and entrance- do they have shelving? Also the walls at the entrance of the living room area, are they structurally needed? What do the dotted lines indicate? If you do not want a basement, is there room where the stairs are placed for closet or freezer?
February 06
Customer service
Good day and thank you for your interest in this plan.
Yes, the walls in the living room area around the fireplace and entrance do have shelving.
The walls at the entrance of the living room area are decorative and as such are not structural.
The dotted lines indicate areas where the ceiling is vaulted except in the the office where they symbolize a Murphy bed.
If you choose to order this plan without a basement there is ample room where the stairs are placed to a closet or a freezer.
Please let me know if you have any other questions or comments.
Regards
Deb
January 28
April
Hi . I see your reply to building this house in Quebec, what do you think the cost difference would be to build same house in British Columbia ? Thank you.
January 28
Customer service
Good day and thank you for taking the time to write.
Since building costs are highly location sensitive, your best resources for this information are your local contractors and materials suppliers.
Please let me know if I can further assist you
Regards
Deb
February 12
Kyle Meade
I really like this plan, I am going to be building in Rigaud, Qc. Are you able to provide a cost estimate?
Thanks,
February 12
Customer service
Good day Mr. Meade and thank you for your interest in this plan.
A ballpark construction estimate to build this home in Quebec (Canada) starts at $324,000. for a self managed project in which the owner does all of the planning, scheduling and signature of contracts with the various specialized contractors as well as taking care of the physical installation of the vapor barrier, the insulation, the gyproc and the paint.
The turn key estimate starts at $366,000. but neither option includes the cost of the land and its excavation, taxes or hook-ups to municipal services. These estimates are meant as a guide and can vary from 10% to 30% depending on the region, the season and the materials chosen.
The calculations are based on professional grade materials and include ceramic in the hallway, the kitchen and the bathrooms and hardwood flooring throughout the common areas and the bedrooms with wood grain melamine cabinetry in the kitchen.
I hope this information is helpful, please let me know if you have any other questions
Regards
Deb
Thank you for your comment! It must be approved before being put online, please allow a period of 24 hours.
Error with google reCaptcha! Try again
Here is a brief description of our different plan packages. Please select the plan package that suits your needs. You can change the package at the next step, if necessary.
PDF VERSION OF PLAN:
Complete digital version of plan (pdf format) sent by email (original plan format 18" x 24'' or 24" x 36'')
5 copies of plan + PDF:
Includes: 5 copies of plan, plan in PDF format (reduced size version), materials list.
Foundation type
Additional foundation types are available, a fee may apply. Please indicate your choice on the online order form, or to our customer service representative, when placing your house plan order.
If your desired foundation type is not available, please contact our customer service to receive your free plan modification quote.
Explanation of bonus space types
UNFINISHED BONUS ROOM
The bonus rooms are often planned above the garage and are accessible from the house. They are designed to be converted as an office, a laundry area, a bathroom, a library corner or even an additional bedroom for which homeowners must make sure to have a window that complies with current codes & standards.
STORAGE AREA
Often located above the garage, our storage areas are used only as storage and are usually accessible from the garage via a retractable staircase.
Do you like this plan but want it to be modified to suit your needs?
To add a garage, another bedroom, finish the basement or any other modification, click here and let us know about your desired changes and to get your free quote for the modification of your plan.
Conditions of use
Important copyright notice! Please take note of these copyright conditions before printing:
By printing this house plan, cottage or garage or the floorplan(s), you confirm being informed that every house plan on this website is the exclusive property of Drummond House
Plans and is protected by Canadian copyright law. You are aware that these prints cannot be used to build or even obtain a building permit. The graphic representations of these
models are offered by Drummond House Plans for the sole purpose of allowing you to notate modifications of a model and then take it to one of the Drummond House Plans Canadian dealers for
modification of the plan.
The purchase of a house plan, cottage or garage from Drummond House Plans is mandatory if you wish to build any of our models. The plan purchase allows you to build a single unit; you cannot resell or give your plan to anyone once the house, cottage or garage has been built. If you wish to build the same house, cottage or garage more than once, you need to obtain the licence to this effect. Please contact us for more details.
All plans from Drummond House Plans can only be modified by a licensed Drummond House Plan Canadian dealer. If any other business or individual with no affiliation to Drummond House Plans modifies a Drummond House Plan on your behalf, please ensure this business or individual has a licence to modify this specific plan or you will be subject to prosecution on the same level as the business or individual who modified or reproduced the plan.
For more details, do not hesitate to contact u by e-mail or by phone at 1-800-567-1413.
I agree to respect the conditions above to not reproduce, modify or build a model from Drummond House Plans without previously purchasing a complete house plan.













September 02
Gail Sotzke
I am from Michigan. My husband and I are retired and I just love this plan. Is there a plan similar, but smaller, maybe a 2 bedroom. I love the big kitchen. Thank you, Gail