There are no shipping fees if you buy one of our 2 plan packages "PDF file format" or "5 sets of blueprints + PDF". Shipping charges may apply if you buy additional sets of blueprints.
House plan Liana (3882)
Modern cottage plan with 3 covered terraces, large master suite, open floor plans, 2 car garage
Other useful information on this plan
Contemporary home plan with a two-car garage and 3 covered terraces!
Here is a modern house plan with double garage designed in a truly contemporary spirit for its occupants, with its somewhat simplified architectural lines and popular exterior materials and colors and interior floor plans that have an open living concept, as well as being functional and trendy! So without further delay, let’s step in!
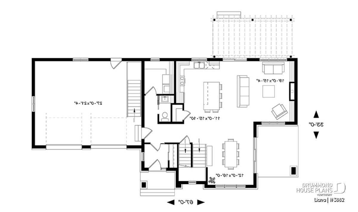
Once we’ve crossed the vestibule, we notice the presence of a convenient laundry room and powder bathroom, located near the access to the garage and the kitchen. The large size living room has lots of natural light, a great fireplace and practical built-in furniture on each side. Right next to the living room, on the exterior and accessible from the kitchen is a beautiful terrace with pergola. The kitchen features a large central island that can easily accommodate 5 guests for cocktails and a handy pantry. The dining room area is right next to a sheltered terrace.
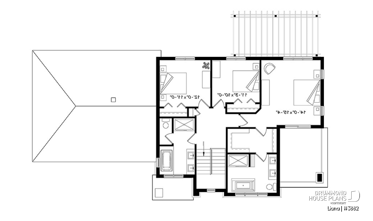
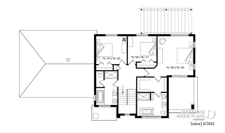
Upstairs, a master suite enjoys a large walk-in closet and a large bathroom with double vanity, separate bathtub and shower. In addition, the master suite boosts a covered balcony, giving access to a quiet place for reading or your morning coffee away from the early daybreak family hubbub. Two secondary bedrooms share a large bathroom with toilet cabin, double vanity, and a separate large shower stall and bathtub.
The full unfinished basement can be accessed from the house and also from the 2-car garage.
Distinctive elements
Contemporary home with lots of natural lights.
Open kitchen / family room concept on main floor.
Kitchen with large island, pantry and direct access to a large rear covered balcony.
Family room with fireplace and built-ins.
Large laundry room with counters.
Master suite with walk-ins, large private bathroom and private covered balcony.
Secondary bathroom with dual vanity, large shower and private toilet room.
Plan feature(s)
Gound floor laundry room, Basement access from garage, Fireplace, Pantry, Ceiling over 8', Master suite upstairs, Walk-in master bed., Deck, Island, Balcony 2nd floor, Open floor layout, Built-ins, Entrance hall, Double sinks, Separate bath and shower, Pergola
Plan architectural style(s)
. Contemporary, . Modern / Design, . American, . Modern rustic, . Vacation and waterfront, . Transitional, Modern farmhouse
Similar plans
Previously Viewed Plans
Thank you for your comment! It must be approved before being put online, please allow a period of 24 hours.
Error with google reCaptcha! Try again
Here is a brief description of our different plan packages. Please select the plan package that suits your needs. You can change the package at the next step, if necessary.
PDF VERSION OF PLAN:
Complete digital version of plan (pdf format) sent by email (original plan format 18" x 24'' or 24" x 36'')
5 copies of plan + PDF:
Includes: 5 copies of plan, plan in PDF format (reduced size version), materials list.
Foundation type
Additional foundation types are available, a fee may apply. Please indicate your choice on the online order form, or to our customer service representative, when placing your house plan order.
If your desired foundation type is not available, please contact our customer service to receive your free plan modification quote.
Explanation of bonus space types
UNFINISHED BONUS ROOM
The bonus rooms are often planned above the garage and are accessible from the house. They are designed to be converted as an office, a laundry area, a bathroom, a library corner or even an additional bedroom for which homeowners must make sure to have a window that complies with current codes & standards.
STORAGE AREA
Often located above the garage, our storage areas are used only as storage and are usually accessible from the garage via a retractable staircase.
Do you like this plan but want it to be modified to suit your needs?
To add a garage, another bedroom, finish the basement or any other modification, click here and let us know about your desired changes and to get your free quote for the modification of your plan.
Conditions of use
Important copyright notice! Please take note of these copyright conditions before printing:
By printing this house plan, cottage or garage or the floorplan(s), you confirm being informed that every house plan on this website is the exclusive property of Drummond House
Plans and is protected by Canadian copyright law. You are aware that these prints cannot be used to build or even obtain a building permit. The graphic representations of these
models are offered by Drummond House Plans for the sole purpose of allowing you to notate modifications of a model and then take it to one of the Drummond House Plans Canadian dealers for
modification of the plan.
The purchase of a house plan, cottage or garage from Drummond House Plans is mandatory if you wish to build any of our models. The plan purchase allows you to build a single unit; you cannot resell or give your plan to anyone once the house, cottage or garage has been built. If you wish to build the same house, cottage or garage more than once, you need to obtain the licence to this effect. Please contact us for more details.
All plans from Drummond House Plans can only be modified by a licensed Drummond House Plan Canadian dealer. If any other business or individual with no affiliation to Drummond House Plans modifies a Drummond House Plan on your behalf, please ensure this business or individual has a licence to modify this specific plan or you will be subject to prosecution on the same level as the business or individual who modified or reproduced the plan.
For more details, do not hesitate to contact u by e-mail or by phone at 1-800-567-1413.
I agree to respect the conditions above to not reproduce, modify or build a model from Drummond House Plans without previously purchasing a complete house plan.





























