There are no shipping fees if you buy one of our 2 plan packages "PDF file format" or "5 sets of blueprints + PDF". Shipping charges may apply if you buy additional sets of blueprints.
House plan Mt. Meridian 3 (6804A)
Lakefront spectacular house plan, large master suite, breakfast nook, 3 bedrooms, homeoffice, 2-car garage
Other useful information on this plan
Beautiful lakefront house plan with wraparound porch and great master suite
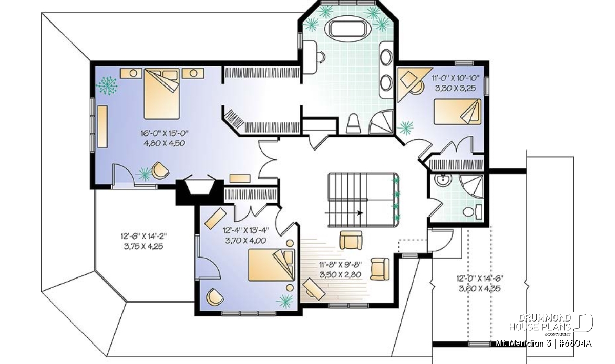
Here’s an ideal three bedrooms with 2.5 baths. A stylish layout of 2687 sq. ft. offers foyer entrance, 9’ ceilings on the main floor, fireplace to light up the living and dining rooms, and roomy kitchen with special space for breakfast. Upstairs master suite enjoys its own bath, and glamorous balcony. Secondary bedrooms share a bath. Two-car garage.
Distinctive elements
Abundant windowing,
9 foot ceiling on first floor,
Covered porch,
Plan feature(s)
Fireplace, Living bonus space, Panoramic view, Master suite upstairs, Side entry garage, Gound floor laundry room, Deck, Balcony 2nd floor, Walk-in master bed., Breakfast nook, Ceiling over 8', Warparound, Office / Study / Den, Sloped ceiling, Cathedral ceiling, Separate bath and shower, Double sinks
Plan architectural style(s)
. Country, . Farmhouse, . Traditional, . Vacation and waterfront, . American, . Transitional, . Modern rustic, . Cottage, chalet, cabin
Similar plans
Previously Viewed Plans
Questions and comments
September 25
Annmarie
I like the image to this plan #W6804A but it does not match the floor plan that is matched with it. The garage is not in the same location in the floor plan. The garage in the image is in the rear of the home and the floor plan is in the front of the home. Even if you reverse the floor plan it does not match up. Is it possible to contact the architect/designer?
September 25
Customer service
Good day and thank you for taking the time to write.
I am not sure that I understand as the garage does appear to be in the right place but maybe it is confusing because the image has a slight angle to better show the porch and upstairs balcony.
Both the main living/dining room and the second family room have doors that open onto this 18'4" x 20' porch (on the left) and the garage is to the right of the 12'4" x 14'8" family room, just beyond the main entrance foyer (with large closet).
Since the garage doors are accessible only from the right side of the building, they are not visible in the image (but appear as thin lines between the thicker foundation outline of the main level floor plan) which is why only the windows, bottom for the garage and second floor for the bonus space, are visible from the front.
When looking at the rear elevation (black and white image) the porch side is on the right and what is visible from the back is the 31' x 5' wrap around porch which appears in back to the right when viewed from the back of the house and the "man" door which gives direct access to the garage from the back yard is on the left of the elevation image because this profile is as seen from the back of the house.
Our designers would be happy to give you a free estimate for any changes that you might need to this plan within two business days after receipt of this on line request but feel free to let me know if you have any other questions or comments
Regards
Deb
January 30
ahmad kamal
i am in Lebanon how do you have any person help me hear
January 30
Customer service
Good day and thank you for your interest in our plans.
Although we do not have any associates in your country, you can purchase your plans through our Internet site.
For our overseas clients, I suggest purchase of the CAD elecronic file which can be modified to conform to our regional requirments.
Whether CAD or PDF files, there is no extra charge for shipping electronic versions of our plans as they are sent via Email.
Please let me know if I can further assist you.
Regards
Deborah
August 22
jessica
i was wondering what that type of house would cost to build in iowa thanks
August 22
Customer service
Good day and thank you for taking the time to write.
The only construction estimates that we have for our plans are those if built in Quebec, Canada.
You can access the cost estimate for this plan by clicking on "French" at the upper, right hand side of this page to get a ballpark idea.
This will bring you to our French site and the amount that you see on the first line of the technical details (fiche technique) is the estimate which was updated on January 18th of this year and includes everything except for land, taxes and hook ups to municipal services.
There will probably be a difference and your best resources are local contractors and material suppliers in order to know how much it costs to build in your area.
Please let me know if you have any other questions or comments.
Regards
Deborah
Thank you for your comment! It must be approved before being put online, please allow a period of 24 hours.
Error with google reCaptcha! Try again
Here is a brief description of our different plan packages. Please select the plan package that suits your needs. You can change the package at the next step, if necessary.
PDF VERSION OF PLAN:
Complete digital version of plan (pdf format) sent by email (original plan format 18" x 24'' or 24" x 36'')
5 copies of plan + PDF:
Includes: 5 copies of plan, plan in PDF format (reduced size version), materials list.
Foundation type
Additional foundation types are available, a fee may apply. Please indicate your choice on the online order form, or to our customer service representative, when placing your house plan order.
If your desired foundation type is not available, please contact our customer service to receive your free plan modification quote.
Explanation of bonus space types
UNFINISHED BONUS ROOM
The bonus rooms are often planned above the garage and are accessible from the house. They are designed to be converted as an office, a laundry area, a bathroom, a library corner or even an additional bedroom for which homeowners must make sure to have a window that complies with current codes & standards.
STORAGE AREA
Often located above the garage, our storage areas are used only as storage and are usually accessible from the garage via a retractable staircase.
Do you like this plan but want it to be modified to suit your needs?
To add a garage, another bedroom, finish the basement or any other modification, click here and let us know about your desired changes and to get your free quote for the modification of your plan.
Conditions of use
Important copyright notice! Please take note of these copyright conditions before printing:
By printing this house plan, cottage or garage or the floorplan(s), you confirm being informed that every house plan on this website is the exclusive property of Drummond House
Plans and is protected by Canadian copyright law. You are aware that these prints cannot be used to build or even obtain a building permit. The graphic representations of these
models are offered by Drummond House Plans for the sole purpose of allowing you to notate modifications of a model and then take it to one of the Drummond House Plans Canadian dealers for
modification of the plan.
The purchase of a house plan, cottage or garage from Drummond House Plans is mandatory if you wish to build any of our models. The plan purchase allows you to build a single unit; you cannot resell or give your plan to anyone once the house, cottage or garage has been built. If you wish to build the same house, cottage or garage more than once, you need to obtain the licence to this effect. Please contact us for more details.
All plans from Drummond House Plans can only be modified by a licensed Drummond House Plan Canadian dealer. If any other business or individual with no affiliation to Drummond House Plans modifies a Drummond House Plan on your behalf, please ensure this business or individual has a licence to modify this specific plan or you will be subject to prosecution on the same level as the business or individual who modified or reproduced the plan.
For more details, do not hesitate to contact u by e-mail or by phone at 1-800-567-1413.
I agree to respect the conditions above to not reproduce, modify or build a model from Drummond House Plans without previously purchasing a complete house plan.








September 25
Annmarie
I like the image to this plan #W6804A but it does not match the floor plan that is matched with it. The garage is not in the same location in the floor plan. The garage in the image is in the rear of the home and the floor plan is in the front of the home. Even if you reverse the floor plan it does not match up. Is it possible to contact the architect/designer?